Киевская
Киевская
Искать объявления по всей области

Недвижимость в Киевской области

Оренда палетомісць склад логістика зберігання Белогородка топ
  • 4000 м2
  • 1 / 4 эт.
16 грн.
Відповідальне зберігання товару, Білогородка. Оренда палетомісць. Склад. Палетне зберігання. Капітальна будова. Рампа для навантаження/розвантаження. Рівна бетонна підлога. Ролетні ворота 3х3. Є запас потужності з електроенергії (своя підстанція) Територія огороджена, охороняється, встановлено відеоспостереження. Є адміністративна будівля під офіс. Розташування – 2 км від Софіївській Борщагівці у бік Білогородки. Ціна за домовленістю.
Белогородка
Кімната в гуртожитку оренда Киев топ 2
    3 000 грн.
    Довгострокова оренда кімнат та лїжко- місць в гуртожитку, заключається договір, можлива співпраця з підприємствами. Від метро Червоний хутір 2 км, Дарницький район. Є парковка, гаряча та холодна вода., пральна машина. Вартість ліжко - місця від 3000 грн. кімнат від 6000 до 8000, + електроенергія. Телефонувати з 09.00 до 18.00, на чат не писати, буваю вкрай рідко. За домовленістю можливе поселення з тваринами. Адреса вул. Бориспільська, 19
    Киев, Дарницкий
    ВЛАСНИК! Без комісії! Здається 3-кімнатна квартира в Шевченківському районі – Сирець/ Нивки (весь 2- Киев топ 13
      30 948 грн.
      Втомилися від галасливих багатоповерхівок? Уявіть, що ваш ранок починається не з шуму ліфта чи сусідів за стіною, а з чашки ароматної кави на власній просторій терасі з вишуканими балясинами. Свіже повітря, спокій приватного сектору та атмосфера заміського маєтку — тут, на межі мальовничого Сирця та Нивок, ви нарешті знайдете той затишок, якого так бракує у великому місті. Ми пропонуємо в оренду не просто житло, а весь другий поверх приватного будинку з окремим входом за адресою: вул. Наталії Забіли, 3а. ???? Простір, створений для комфортного життя: • Сніданки з панорамним видом: Шикарна кухня-їдальня в еркері з величезними вікнами, наповнена світлом. Велика обідня зона, сучасна кухня з барною стійкою та великим холодильником Side-by-Side — ідеальне місце для родинних вечорів. • Вечори біля вогню: У вашому розпорядженні власне подвір'я та мангал. Готуйте барбекю та насолоджуйтеся відпочинком на свіжому повітрі прямо вдома. • Три окремі спальні для кожного: • Майстер-спальня в еко-стилі з натурального дерева, великим ліжком та власною гардеробною. • Велика дитяча: Дуже світла, з двома ліжками та двома робочими столами — ідеально для навчання та творчості. • Третя кімната: Затишна спальня або тихий кабінет для дистанційної роботи. • Сучасні зручності: Простора передпокій-вітальня, охайний санвузол із душовою кабіною, швидкісний Wi-Fi. ???? Повна комплектація побутовою технікою: Для вашого комфорту в домі встановлено все необхідне:посудомийна машина (забудьте про побудові клопоти), великий холодильник Side-by-Side (дводверний), телевізор для сімейних переглядів, електрична варильна поверхня та духова шафа, мікрохвильова піч, електрочайник, бойлер (гаряча вода 24/7) ⚙️ Автономність та прозорість: • Автономне електроопалення (до наступного сезону буде встановлено твердопаливний котел із водяною подушкою). • Електроенергія оплачується за окремим лічильником. • ???? Локація та інфраструктура: • Природа: Будинок розташований між двома найкращими парками — Сирецьким та парком «Нивки». • Транспорт: Прямо навпроти зупинка (авт. 47, марш. 540) — кілька хвилин до м. Сирець та м. Нивки. • Все поруч: Ринок «Нивки», супермаркети, школи та дитяча бібліотека — все під рукою. ???? Pet-friendly: Ми знаємо, що ваші хвостики — це сім'я, тому раді гостям із вихованими тваринами! ???? Умови оренди: • Вартість: еквівалент 600 євро на місяць (оплата в грн за актуальним курсом). • Заставна сума у розмірі місячної плати + комунальні послуги. Цей дім чекає на людей, які цінують спокій та комфорт. Телефонуйте, щоб домовитися про перегляд та відчути цю атмосферу особисто! ???? Контактний номер: +380667443838 Вікторія
      Киев
      Продам 2 х кімн квартиру м-н Яблуневий 20
      • Двухкомнатная
      • 50 м2
      • 2 / 5 эт.
      1 542 870 грн.
      Продам 2 х кімн квартиру м-н Яблуневий. Зручне місцерозташування. Не кутова. Двохстороння. Фото реальне.
      Обухов
      Продам  2-х кімн квартиру по  вул.  Глибочицька 25/15 15
      • Двухкомнатная
      • 60 м2
      • 9 / 17 эт.
      3 658 806 грн.
      Квартири з готовими документами., правовласності і технічний паспорт!!! Продається 3 двокімнатні квартири в новому ЖК LookyanSky! - 2к розташована на 9 поверсі - 59.7кв.м ЦІНА 83 000$ - 2к розташована на 5 поверсі - 74.1 кв. м ЦІНА 103 500$ - 2к розташована на 11 поверсі - 74.1 кв.м ЦІНА 103 500$ Статус будинку: Зданий в експлуатацію в 2024 році. Пропонуютьься стильні квартири у сучасному житловому комплексі , який розташований у зручному та перспективному районі. Квартири знаходиться на 5, 9 і 11 поверсі з чудовим видом на місто та відмінною інфраструктурою. Особливості квартири: Площа: простори кімнати, зручне планування та висока стеля (2, 7 м). Вікна: металопластикові нові вікна, 2 на всю ширину. Лоджія: засклена, додаткове місце для відпочинку. Стан: чорнові роботи (стін), стяжка підлоги, залізні вхідні двері. Суміщений санвузол: туалет та ванна в одному приміщенні. Інфраструктура та розташування: Розвинута інфраструктура: поруч сквер ім. Гейдара Алієва, супермаркети Ультрамаркет та Сільпо, дитячі садочки, школа, лікарні та відділення Нової пошти. Лише 15 хвилин пішки до ст. метро Лук'янівська. Зупинки громадського транспорту біля будинку для швидкого доступу до будь-якої частини міста. Прекрасні краєвиди з вулиці Лук'янівської на старий Поділ, а також можливість прогулянки на гору Юрковиця для панорамних видів на Київ. Переваги комплексу: Індивідуальна газова котельня, лічильники на електрику, тепло та воду. Дворівневий підземний паркінг. Житловий комплекс побудований за сучасними стандартами, з високоякісними матеріалами та ретельно продуманою інфраструктурою. Комісійні ріелтора сплачує покупець!
      Киев, Подольский
      Продам 2-х кімн. квартиру, пр. Берестейський, 39, Київ 14
      • Двухкомнатная
      • 60 м2
      • 7 / 14 эт.
      4 364 118 грн.
      Продам 2-х кімнатну, світлу, затишну, простору та доглянуту квартиру в місті Києві по проспекту Берестейський, 39, 7/14 поверх, площею 60 кв.м., кухня – 9 кв.м. Квартира має вітальню, простору спальню, дві лоджії, повністю оснащена усіма необхідними меблями та технікою (бойлер, пральна машина, посудомийна машина, холодильник, варильна панель, духова шафа, гриль, посуд, гардеробна, ванна). Вікна квартири орієнтовані в бік, протилежний від Берестейського проспекту та виходять на парк і у двір. Будинок має комфортне місце для життя із розвиненою інфраструктурою всередині та розташований у затишному місці, з чудовою транспортною розв'язкою, поруч парк КПІ, парк імені Івана Багряного (колишній парк ім. Пушкіна), Сквер "Поляна", сквер НТУУ КПІ, Київський зоопарк, у пішій доступності до метро Шулявська (12 хвилин) та метро КПІ (15 хвилин). У будинку є домофон та консьєрж. Чудова інвестиція під оренду або для власного проживання. Вартість квартири - 99 000$, комісія 3%, можливий торг. Перегляд - за домовленістю. Комісія 3%. Тел. 09*********54, Тетяна.
      Киев, Шевченковский
      Продам 2-х кімн.квартиру в Ліко Град! 14
      • Двухкомнатная
      • 79 м2
      • 7 / 18 эт.
      6 524 136 грн.
      Простора 2-кімн квартира в ЖК Ліко-Град. Світла з функціональним плануванням: дві окремі кімнати (спальня та зал), 2 окремі санвузли, гардеробна кімната в спальній кімнаті, засклений балкон. Квартира мебльована та укомплектована всією необхідною технікою: пральна машина з сушкою, посудомийна машина, духова шафа, холодильник, мікрохвильова піч, бойлер, кондиціонери в кожній кімнаті, оптоволоконний енергонезалежний інтернет. В будинку є підземний паркінг, магазини, відділення декількох пошт, кав'ярні та ресторан. Дуже розвинена інфраструкутра поруч із будинком: велика парковка, сучасний спорт зал в 2 хвилинах ходьби, АТБ, Сільпо, Ашан, Новус в 5 хвилинах . можливий продаж по держпрограмам
      Киев, Голосеевский
      Продам 2-х кімн. квартиру, вул. Шалімова, 35А, Київ, Відрадний 18
      • Двухкомнатная
      • 68 м2
      • 5 / 24 эт.
      4 849 020 грн.
      Продам 2х кімнатну світлу, простору квартиру у новому сучасному ЖК Микитська по вул. Шалімова (Героїв Севастополя), 35-А, що знаходиться у Солом’янському районі (Відрадний), 5 пов. 24 поверхівки, загальна площа 68 кв.м., кухня 10.3 кв.м., кімнати 14 і 20 кв.м. У квартирі виконаний якісний ремонт, частково мебльована, теплі поли у кухні, бойлер на 100л., пральна машина, ванна та туалет роздільні, є лоджія. Будинок 2016 року. Район з розвиненою інфраструктурою. Поруч парки Відрадний та Мамаєва Слобода, медмістечко, садок, школа, спортивна школа, зупинки міського транспорту, магазини. кафе, НАУ та КПІ. Перегляди за домовленістю вартість - 110000$
      Киев, Соломенский
      продам 2-х кімн. метро Васильківська, без комісіі 11
      • Двухкомнатная
      • 47 м2
      • 2 / 5 эт.
      2 547 940 грн. Без комиссии
      Без комісіі, пров. Василя Жуковського 13/16, зараз пров. Леопольда Ященка, кут вул.Ломоносова, 2/5 цегл., по документам перший, дивись фото, 47/30/7,5, жилий стан, потребує косметичного ремонту, хода суміжні, без балкона, с/в окремий, кахель, лічильники на воду, бойлер, склопакети, паркет, поруч школи, дитсадочок, швидкий продаж, вільна, метро Васильківська 5 хвилин пішки
      Киев, Голосеевский
      Продам 2 х кімнат квартиру Бориспіль вул. К. Шлях 16
      • Двухкомнатная
      • 54 м2
      • 11 / 9 эт.
      2 865 330 грн.
      Продам 2 х кімнатну квартиру Бориспіль вул. К. Шлях 47, 9/9, 54/28/10 , зручне транспортне сполучення Ціна 65000 у. о торг
      Борисполь
      Продам 2-х кімнатну Дарниця метро 15
      • Двухкомнатная
      • 47 м2
      • 5 / 5 эт.
      2 777 166 грн. Без комиссии
      Без комісії Вул.Будівельників Квартира утеплена по периметру зовні, кімнати суміжні, зал прохідний, спальня окремо. Поміняна сантехніка, електрика, вікна, труби, батареї. Ремонт даху був в 2017 році, підʼїзд з ремонтом. Утеплений балкон. В квартирі посудомийна машина, пральна машина, кондиціонер, бойлер, сигналізація. Квартира готова до продажу, у власності більше 3-х років, без опікунських і тп. Власник в Україні. Розгляну безготівкову оплату.
      Киев, Днепровский
      Продам 2-х кімнатну кв-ру на Борщагівці 10
      • Двухкомнатная
      • 52 м2
      • 9 / 9 эт.
      2 380 428 грн.
      Продам 2-х кімнатну квартиру Святошинський р-н, вул. Тулузи, 9/9 поверхового будинку, чешка. Загальна площа 52.1 м.кв., житлова - 29,2 м.кв., кухня - 8м.кв. Кімнати окремі 18,4м.кв та 10.8м.кв. Не кутова, балкон на кімнату та кухню - застеклений, лічильники води, газове централізоване постачання. Тамбур на три квартири. Відмінне розташування будинку, все необхідне в кроковій доступності: чудовий парк "Інтернаціональний", кінотеатр, школи, ТЦ Квадрат, ЕКО, стоматологія, великий ринок, МакДональдс. Зручне транспортне сполучення: до швидкісного трамваю - 4 хв пішки, трамваєм 20 хв до Залізничного вокзалу. Чистий продаж. Можливий торг.
      Киев, Святошинский
      Продам 2-х кімнатну кв ЖК Династія Вокзальна Солом'янка 9
      • Двухкомнатная
      • 62 м2
      • 22 / 25 эт.
      5 245 758 грн.
      Пропонується до продажу стильна 2-кімнатна квартира з дизайнерським ремонтом у престижному житловому комплексі ЖК «Династія», вул. Липківського, 37Б, Солом’янський район. Квартира розташована на 22 поверсі 26-поверхового сучасного будинку 2018 року, що дарує чудові панорамні краєвиди на місто та багато природного світла завдяки вітринним вікнам. Площа — 62 м² | кухня-студія 10 м² Планування продумане для комфортного сучасного життя: окрема спальня простора кухня-студія з обідньою зоною вітальня суміжний санвузол висота стелі 2,75 м Квартира виконана у сучасному стилі з використанням якісних матеріалів. Дизайнерський ремонт, тепла підлога, панорамні вікна та повна комплектація меблями і технікою дозволяють заїхати одразу після покупки. У квартирі залишається: вбудована кухня холодильник духова шафа електроплита витяжка посудомийна машина пральна машина телевізор кондиціонер бойлер фільтр для води двоспальне ліжко Переваги квартири: дизайнерський ремонт тепла підлога панорамні вікна кухня-студія повна комплектація технікою високий поверх з видом працює інтернет, вода, опалення та ліфт під час відключень Переваги будинку та комплексу: закрита територія під охороною консьєрж відеоспостереження сигналізація пасажирський та вантажний ліфти безбар’єрний вхід зручний доступ до укриття Головна перевага локації — сучасний престижний житловий комплекс у Солом’янському районі, поруч із центром міста та метро Вокзальна. Поруч: метро Вокзальна супермаркети та кафе бізнес-центри школи та дитячі садки зручний виїзд у центр Києва Квартира підходить під єОселю та єВідновлення, що значно розширює можливості покупки. Ідеальний варіант для комфортного проживання або вигідної інвестиції під оренду.
      Киев, Соломенский
      Продам 2-х кімнатну квартиру 43.9м2, поверх 1, ЦЕНТР, село Бузова 18
      • Двухкомнатная
      • 43.9 м2
      • 1 / 2 эт.
      1 102 050 грн. Без комиссии
      Продаж квартири у селі Бузова, Київська область Пропонується квартира площею 43,9 м², яка складається з двох кімнат, кухні, прихожої та санвузла. Особливість квартири – вона знаходиться на першому поверсі, що дозволяє розширити житловий простір: добудувати додаткову кімнату, балкон, кабінет або ж облаштувати затишну терасу для літніх вечорів. Інфраструктура поруч: • магазини, садочки, школа; • перукарні, відділення Нова пошта та Укрпошта; • зупинка громадського транспорту; • церква; • зручний асфальтований під’їзд. Ця квартира – чудовий варіант для тих, хто шукає комфортне житло з можливістю реалізувати власні ідеї щодо добудови та облаштування простору. Відеоогляд https://www.instagram.com/reel/DOWSAiWiFeu/?igsh=MWJnazk5c3E5cGs0Mg== Телефонуйте і ми обовʼязково домовимось . До зустрічі з GoldenKeyWithIrina.
      Бузова
      Продам 2-х кімнатну квартиру, 55 кв.м. Сосницькк 10, Дніповський р-н 16
      • Двухкомнатная
      • 55 м2
      • 7 / 14 эт.
      2 556 756 грн. Без комиссии
      БЕЗ КОМІСІЇ! Квартира, яку можна зробити під себе! Двокімнатна квартира. Сосницька 10 55 кв.м. 7 поверх. Лоджія 6 кв.м. Світла, простора. Будинок з цегли, новий ліфт, чисте парадне. Все поруч: Транспорт, метро, Велика Кишеня, школа, садок, Дарницький вокзал, Дарницька площа — зручно і комфортно! Це не просто квартира-це класне рішення втілити свої дизайнерські мрії. 58000$ +38**************01 – Юлія Треба обов’язково подивитися!
      Киев, Днепровский
      Продам 2-х кімнатну квартиру 89.1м2 + Паркомісце 20м2, Княжий затон 21 20
      • Двухкомнатная
      • 89.1 м2
      • 23 / 36 эт.
      6 524 136 грн.
      Продаж видової 2-кімнатної квартири 89,1 м² | вул. Княжий Затон, 21 Пропонується до продажу простора та функціональна квартира площею 89,1 м², розташована на 23 поверсі сучасного 36-поверхового будинку за адресою вул. Княжий Затон, 21. Локація поєднує динаміку міського життя та атмосферу відпочинку біля води. У пішій доступності знаходяться ТРЦ River Mall, ТРЦ Аркадія, ресторани, кав’ярні, супермаркети, фітнес-центри та мальовнича набережна Дніпра, яка ідеально підходить для прогулянок, спорту та вечірнього відпочинку. Функціональне планування квартири: • дві окремі кімнати • кухня • санвузол • простора прихожа • дві гардеробні кімнати На сьогодні квартира адаптована під офісний простір, що відкриває можливість отримувати стабільний дохід від оренди. Водночас планування дозволяє легко повернути її у формат комфортної житлової квартири. Додаткова перевага об’єкта — власне паркомісце площею 20 м² з окремими документами, що є особливо цінним для цієї локації. Ця квартира стане відмінною інвестицією, комфортним місцем для проживання або готовим рішенням для ведення бізнесу. Відеоогляд https://youtube.com/shorts/-sVdEtJMOXE?si=11K4iKNvl9EQCvJk https://vt.tiktok.com/ZSusW8DFv/ Запрошую вас на перегляд, щоб особисто відчути атмосферу та переваги цього об’єкта. До зустрічі з GoldenKeyWithIrina.
      Киев, Дарницкий
      Продам  2-х кімнатну квартиру- 96 м2   метро Житомирська(єОселя ) 20
      • Двухкомнатная
      • 96.3 м2
      • 4 / 16 эт.
      6 142 606 грн. Без комиссии
      Продаж 2-кімнатної квартири в ЖК “Eco Dream” — коли простір надихає) Шукаєш квартиру, де кожен метр продуманий до дрібниць, а життя наповнене затишком і зручністю? Лови ідеальний варіант Загальна площа — 96,3 м² Це не просто двокімнатна — це квартира, яка “дихає”. Тут вистачить місця і для сімейного затишку, і для творчих вечорів з друзями. Кухня-гостьова — 30,9 м² Справжнє серце квартири. Тут можна готувати, сміятись, пити каву під дощ — все в одному місці. Кімнати — 14,7 м² та 15,5м² Ідеальні для спальні, кабінету, дитячої або майстерні. Світлі, просторі, готові до нової історії. Санвузли — 4,2 м² та 2,4 м² Так, їх два. Бо комфорт — у деталях. Житловий комплекс “Eco Dream” — це: Зелена територія з дитячим та спорт майданчиками Магазини, кав’ярні, салони краси — все під боком Зручне транспортне сполучення Сучасне планування та якісне будівництво Ця квартира — наче білий аркуш для твого життя. Де кожна кімната — це нова глава. Готова написати її разом Дзвони, пиши — покажемо, закохаєшся з першого погляду! Для придбання за умов єОселя трема мати 60 000 тис власного внеску,але інформацію треба уточнювати у банка кредитора.
      Киев, Святошинский
      Продам 2-х кімнатну квартиру! Без комісії!!! 8
      • Двухкомнатная
      • 66.3 м2
      • 12 / 14 эт.
      3 361 032 грн. Без комиссии
      До вашої уваги!!! Продам 2кім.квартиру, 66,3кв.м., Вишневе, ЖК Атмосфера вул. Європейська, 32 БЕЗ КОМІСІЇ!!! Характеристики: - 66,3 кв.м - 12/14пов - червона цегла, утеплення - мінеральна вата - оздоблення - декоративна штукатурка - фундамент - монолітно-збірні - перекриття - плити залізобетонні Наповнення - Вхідні двері - Вікна металопластикові 2-камерний склопакет 5-камерний профіль - Квартира світла і простора - Планування роздільне - Якісна штукатурка, стяжка - Інтернет - Електроопалення ( введено 10 кВт ) - Встановлені лічильники для газу, світла та води Розвинена інфраструктура району - садочки, школи, ліцей, супермаркети Сільпо, Новус, АТБ, відділення банків, пошти - все поруч. Багато дитячих і спортивних майданчиків. Зручна транспортна розв'язка - до метро 15 хвилин. Телефонуйте в будь-який час, покажемо в зручний для вас час
      Вишневое
      Продам 2-х кімнатну квартиру, без комісії, ЖК Резиденція, Мартинова, С 20
      • Двухкомнатная
      • 66 м2
      • 5 / 10 эт.
      3 879 216 грн. Без комиссии
      Продам 2-х кімнатну квартиру, ЖК Резиденція від Мартинова, без комісії, 66 м2, п'ятий поверх 10- ти поверхового будинку по вул Сковороди, 10, газ, індивідуальне опалення, 2-х контурний котел, розведена електрика, на лоджії тепла підлога, стяжка штукатурка радіатори, м/п вікна, повністю розвинута інфраструктура, школа, дит сядок, охорона території, відеонагляд, магазини, ТРЦ, аптеки, транспортна розв'язка, маршрутки, 15 хв до метро, вартість квартири вклає оформлення
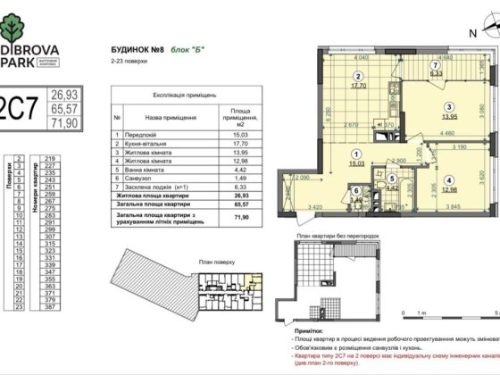
      Софиевская Борщаговка
      • Двухкомнатная
      • 72 м2
      • 5 / 23 эт.
      4 187 790 грн.
      ЖК Діброва Парк, Dibrova Park Будинок 8 Введення-2 квартал 2026р Планування 2с7 Поверх 5 Ціна 95000 Східна сторона . Вид у двір, Світла і тепла південно-східна сторона Багато варіантів , звертайтесь. також запрошую на перегляд -підберем Вам варіант .
      Киев, Подольский
      Продам 2-х кімнатну квартиру 6
      • Двухкомнатная
      • 52 м2
      • 4 / 9 эт.
      2 512 674 грн. Без комиссии
      Пропоную до продажу 2/4/9 на проспекті Незалежності/ стометрівка/. Загальна площа 52,5 м2 Кухня 9 м2. Кімнати окремі. Вікна металопластикові, Рівні стіни, замінена електрична проводка. Не кутова, не стикова.
      Белая Церковь
      Продам 2-х кімнатну квартиру 2
      • Двухкомнатная
      • 86 м2
      • 3 / 5 эт.
      3 350 232 грн.
      Продається 2-х кімнатна квартира в селі Чубинське. Квартира знаходиться по вул. Яблунева. Гарний ремонт. Загальна площа 86.4квадратних метрів, 1 кімната - 16.8 2 кімната 27 Квартира знаходиться на 3 поверсі 5 поверхівки. Індивідуальний газовий котел. Меблі залишаються. Ціна:76000у.о. Більше інформації та фото по номеру телефону. Агенція нерухомості NIKA.
      Чубинское
      Продам 2 х кімнатну квартиру 8
      • Двухкомнатная
      • 48 м2
      • 4 / 9 эт.
      1 860 260 грн.
      Пропонується для продажу 2 х кімнатна квартира. Квартира знаходиться на 4 тому поверсі в 9 ти поверховому житловому будинку. Тихий двір, поряд школа. В кроковій доступності базарчик, зупинка транспорту, та супермаркети. Ціна 42200 у.о торг при перегляді. Вільна продажа.
      Белая Церковь
      Все...