Київ
Київська
Искать объявления по всей области

Продаж квартир в Києві

Продам 2-х комнатную, ул. Данченко, 34-А, ЖК Новомостицко-Замковецкий Київ 17
  • Двокімнатна
  • 62.5 м2
  • 9 / 9 пов.
129 000 $
Продається цікава, з чудовим виглядом, не стандартна!!! 2-х кімнатна світла і дійсно тепла квартира з дизайнерським ремонтом. Квартира укомплектована усією необхідною європейською технікою, м'якими та корпусними меблями. На місці, де вже покладена плитка (ванна кімната, коридор, кухня), облаштовано електропідігрів підлоги норвезького виробника Нексонс з гарантією 25 років. Зроблено максимально зручне перепланування зі збільшенням світлового простору. У квартиру заходить 3 фази, що теж важливо. Квартира дійсно тепла, опалення увімкненого навіть наполовину буде більше, ніж достатньо. Є можливість приватизувати і зробити літню терасу повністю над своєю квартирою. Поряд будується станція метро. Неподалік ТЦ. В ЖК наявна інфраструктура та магазини. Актуальна 129000$. Чекаємо на перегляди в будь-який для вас зручний час.) Документам більше 3-х років.
Київ, Подільський
Продам 2-х Квартиру + Бонус Київ 9
  • Двокімнатна
  • 49 м2
  • 1 / 9 пов.
39 000 $
Продам 2-х кімнатну квартиру - 1й поверх 42м2 + бонус Власних Магазин 7м2. 20км до Бесарабки маршрутки транспорт садочок школа. Окремий вхід, ціна торг обмін Київ пригород Одеса Буковель Картати 42м2+7м2 = 49м2 - ціна 47000т.уе Меблі, техніка, зайшов і живи, можливо у кредит, перший поверх туалет без силуліфта. Живи і роби бізнес, є можливість розширити квадратуру на 60м2, ціна із розширенням 110м2- 100т.уе Великий массив, центр масиву, ідеальне місце під бізнес, свіжий ремонт, ще не було 1-ї оренди! Майже новий будинок. Пишіть вайбер Перший внесок у розстрочку. Готове під оренду вже сьогодні не завтра!) З ремонтом під ключ!) Ціна Акція
Київ, Святошинський
Продам 2-хкімнатну квартиру біля метро по вулиці Левка Лук'яненка. Київ 17
  • Двокімнатна
  • 50 м2
  • 9 / 9 пов.
57 000 $
Вулиця Левка Лук'яненка 1 (колишня Маршала Тимошенка ).Кімнати роздільні. . Квартира в хорошому стані,чиста,охайна,тепла ,не вуглова ,склопакети, лоджія засклена склопакетами, у с/в покраска+обої (с/в роздільний ),лінолеум на полу, вхідні двері броньовані. Робився косметичний ремонт. В квартирі є газова плита,витяжка ,бойлер,лічильники на воду та електроенергію,газ.Проведений інтернет, домофон. Меблі за домовленістю. Наземне паркування стихійне,поряд платна стоянка . Хороша транспортна розв'язка і розвинута інфраструктура.До метро Мінська,метро Оболонь ідти пішки 12-15 хвилин. Поруч зупинка транспорту ,школа, дитсадок, спортивні заклади, магазини ,супермаркети ,пошта ,банк ,в пішій доступності торговий центр і т.д.58000 торг
Київ, Оболонський
Продам 2 к 67,1 м+ 4 м балкон ЖК «Варшавский» вул. Олександра Олеся 6а Київ 20
  • Двокімнатна
  • 67.1 м2
  • 8 / 17 пов.
119 500 $
Вашій увазі чудова 2 кімнатна квартира з гарним плануванням 67,1 м. КВ. + 4 м кВ балкон засклений на всю висоту, зроблена сантехніка відомих брендів, замінено радіатори на якісний алюміній, що дає максимальну тепловіддачу навіть при мінімальній температурі, гіпсова штукатурка, та цементна в санвузлах, електрика, інтернет, закладні під кондиціонери у двох кімнатах та на кухні Власник! Не переуступка, у власності більше 3 років! Нові власники будуть задоволені! Усім вдалих продаж та мирного неба! Інвестор на ліфт, воду, опалення!
Київ, Шевченківський
Продам 2-к 76м2 Паньковская Жилянская Университет  центр ЖК Аурум Київ 10
  • Двокімнатна
  • 76 м2
  • 9 / 24 пов.
186 000 $
улица Паньковская, 20/82 (напротив Дипломат-Холла), ЖК Аурум, 76м2 - 186000 у.е. Дом сдан. Торг. Состояние от строителей. Вид в сторону пл. Победы. Главные преимущества ЖК Аурум : - бизнес класс в центре города , - большие панорамные окна, за счет чего квартира наполнена светом и теплом , - высота потолков Н=3 м , - в доме всего 120 квартир , - 6 квартир на этаже , - видеонаблюдение и приветливая охрана , - 2-х уровневый подземный паркинг по приемлемой цене . Инфраструктура : - в доме есть салон красоты , - рядом кофейни, рестораны, - для любителей прогулок - Ботанический сад Фомина 12 минут ходьбы , - если нужно метро, тут выбор большой: Олимпийская, Университет, Дворец Спорта, Льва Толстого, Вокзальная, и к каждой ровно 17 минут пешком или три остановки общественным транспортом, остановка рядом с домом, - супермаркет VARUS через дорогу от дома, - в близости есть школы, садики, ТРЦ Гулливер, Украина, бизнес центры и многое другое .
Київ, Голосіївський
Продам   2 к Бульвар Т.  Шевченко 2 .Хрещатик .В. Васильківська Київ 19
  • Двокімнатна
  • 42 м2
  • 6 / 9 пов.
130 000 $
Пропонується продаж двокімнатної квартири . Поруч з метро Театральна, Площа українських героїв (Льва Толстого) та станції метро Хрещатик.Квартира потребує реновації ,Але інфраструктура ідеальна : кавярні, ресторани, бари, магазини, освітні заклади.
Київ, Шевченківський
Продам 2 к.кв. вул. Самійла Кішки 5а, ЖК «Еврика» 85000 у.е. Київ 20
  • Двокімнатна
  • 65 м2
  • 1 / 24 пов.
85 000 $
Продам 2 к.кв. у введеному в експлуатацію будинку, вул. Самійла Кішки (Маршала Конєва) 5а, ЖК «Еврика», будинок №14, переуступка, будинок заселений з початку 2022р., 1/24 – пов. будинку, 65/31/7 м.кв., лічильники (вода, тепло, електроенергія), власна котельня, відео спостереження, система контролю доступу, двір без авто. В квартирі зроблений космітичний ремонт, меблевона сучасними меблями. Хороша інфраструктура (зони відпочинку, школи, садки, ресторани, салони краси, Новус, Сільпо, Метро, Епіцентр) та транспортна розвязка, м. Іподром, м. Виставковий центр 10 хв. пішки. Цина 85000 у.е. чи кращя пропозиція Номер оголошення на сайті компанії: SF-3-250-676-LX. Сагидаев Валентин Юрьевич, +38**************46, +38**************50.
Київ, Голосіївський
Продам 2 к.квартиру Дарницький Драгоманова Ахматової Ревуцького Київ 5
  • Двокімнатна
  • 54 м2
  • 8 / 10 пов.
76 000 $
Київ, Драгоманова, 5, ; Серія КП; цегла. Будинок 1993 року. Поруч озеро Сонячне з пляжем та набережною, ресторан на березі озера, магазини, салони краси, в пішій доступності супермаркет Білла, трамвай №8, 5-ти поверховий паркінг в 5 хв. від будинку, школа та дитячий садок, Слов'янська гімназія - 10 хв. пішки. Метро Харківська - 15 хв. Затишна квартира з комфортним плануванням — окремі кімнати, простора кухня, роздільний санвузол, великий коридор з вбудованими шафами-купе. Житло в гарному стані, мебльоване, є побутова техніка, газова плита, духова шафа, кондиціонер, бойлер, лічильники на воду. Балкон і лоджія засклені, на них є світло, на лоджії тепла підлога, вентиляція в с/у включається також примусово, централізоване опалення, газ, двоє вхідних дверей, загальний коридор закритий на дві квартири, порядні сусіди.
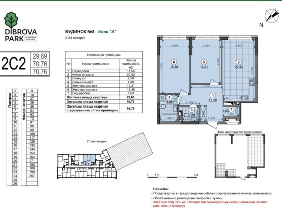
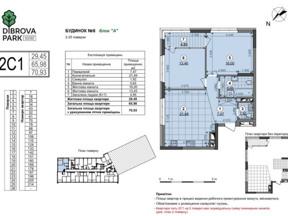
Київ, Дарницький
  • Двокімнатна
  • 71 м2
  • 11 / 23 пов.
88 000 $
ЖК Діброва Парк, Dibrova Park Будинок 8 ( на рік раніше ніж будинок 7 ) Планування 2с1 Поверх 11 Ціна 88000 Східна сторона . Вид у двір Багато варіантів , звертайтесь. також запрошую на перегляд -підберем Вам варіант .
Київ, Подільський
  • Двокімнатна
  • 71 м2
  • 2 / 26 пов.
88 000 $
ЖК Діброва Парк, Dibrova Park Будинок 8 Здача 2 квартал 2026 року( на рік раніше ніж будинок 7 ) Планування 2с2 Поверх 2 Ціна 88000 Східна сторона . Вид у двір Зручне, правильне планування в середині будинку Багато варіантів , звертайтесь. також запрошую на перегляд -підберем Вам варіант .
Київ, Подільський
Продам 2 к.квартиру Грушевського Центр Маріїнський парк Арсенальна Київ 6
  • Двокімнатна
  • 53 м2
  • 6 / 8 пов.
147 000 $
Київ, Грушевського Михайла, 34/1. Будинок 1956 р.- монументальна цегляна сталінка. Ліфт. Н=3м, під'їзди охайні, консьєрж, код.замок, охорона двору, парковка/безкошт., магазин, поруч Маріїнський парк та Адміністрація Президента. Продається квартира у серці Києва! БЕЗ РЕМОНТУ! Навпроти Маріїнський парк, поряд метро Арсенальна. Планування: Первинне, функціональне планування (S загальна =53 м, S житлова, =28,8 м) дає простір для фантазії. Ви можете як зберегти класичне зонування, так і реалізувати сучасний проєкт студійного типу. Є все для комфортного проживання.
Київ, Печерський
Продам 2-к квартиру на Борщагівці, вул. Академіка Корольова, 3-А Київ 20
  • Двокімнатна
  • 47 м2
  • 9 / 9 пов.
39 500 $
Продам 2-кімнатну квартиру на Борщагівці (вул. Академіка Корольова, 3-А, Святошинський район). Поверх 9/9, метраж 47/29/8. Квартира видова, тепла, кімнати та санвузол роздільні, стан житловий. Кухня з газовою плитою та духовкою, холодильник, кондиціонер, дивани, шафа, телевізор, кладовка, засклений балкон, домофон, лічильники на воду та електрику. В будинку є ліфт, поруч зелений двір та місця для паркування. Розвинена інфраструктура: школа, дитсадок, Фора, зупинка автобусу, маршруток та швидкісного трамваю, сквер та 2 парки. В пішій доступності ринок «Дніпро», «Колібрис» та «Квадрат», «Ашан», АТБ. Метро Святошин та центр - 15-20 хвилин на транспорті. Чистий продаж. Агентство. Запрошуємо на перегляд, телефонуйте!
Київ, Святошинський
Продам 2 к.квартиру Подол Межигірська Контрактова площа -3 хв Київ 14
  • Двокімнатна
  • 60 м2
  • 3 / 3 пов.
140 000 $
Київ. Поділ. Вулиця Межигірська 19а. Царський будинок розташований в одному з найатмосферніших районів Києва — історичний Поділ, у пішій доступності Контрактова площа, Андріївський узвіз, Житній ринок, Києво- Могилянська академія, магазини, салони, затишні та неймовірні кафе та ресторани. Будинок в гарному стані, під'їзд з ремонтом. Квартира вражає своїм стилем та функціональністю. Велика вітальня, що об’єднує хол, коридор - створює перше враження: Вау! Стеля - 3.45 м. Простір дихає. Вітальня- стильна, з каміном, з правильною ергономікою, світлом і зоною, де хочеться проводити час. Кухня з чудовим видом, з якісною побутовою технікою . Дві окремі спальні, робоча зона - місце, де спокійно і тихо. Вбиральня, великі шафи, приховані комірки - все продумано, щоб життя було легким. Ця квартира зона простору, де кожна деталь - продумана, кожен кут - естетичний, кожне рішення - про якість. Дизайн створювався для життя. Це - місце сили, створене для красивого, якісного життя. Для людей, які цінують естетику, комфорт, спокій і внутрішню гармонію. Ідеальний варіант для комфортного проживання або здачі в оренду.
Київ, Подільський
Продам 2 к квартиру Повітрофлотський пр 56б,  ЖК  Ok'Land Київ 10
  • Двокімнатна
  • 68 м2
  • 17 / 26 пов.
91 000 $
Пропонується чудова 2х кімнатна квартира у серці Соломянки м. Києва, пр.Повітряних Сил (Повітрофлотський пр), 56б, у новому сучасному ЖК Ok'Land. Ця затишна оселя вражає не лише сучасним плануванням , а й неймовірним видом , який відкривається з вікон. Ви зможете насолоджуватися красою міста та його величними пейзажами щодня. Квартира простора та світла, є місце для втілення ваших майбутніх фантазій. Тут є все для комфортного життя: розумне планування, зручне паркування та близькість до всіх необхідних інфраструктурних обєктів. Прекрасна локація, що поєднує комфорт та доступність транспорт міський транспорт та маршрутки в різні направлення по місту. ЖК "Ok'Land", 2 будинок, біля комплексу буде велика зелена територія, 4 спортивних майданчики та 3 просторі дитячі ігрові зони, для додаткової безпеки та комфорту мешканців буде реалізована концепція "подвір'я без авто". Чекаємо на перегляд. є варіанти 2к та 1к квартир.
Київ, Солом'янський
Продам 2 к.квартиру пр-т Берестейський ,ЖК Нивки Парк,3-17 поверх Київ 16
  • Двокімнатна
  • 49.6 м2
  • 3 / 17 пов.
125 000 $
Продається квартира Євродвушка проспект Берестейський (колишній проспект Перемоги), 65-Д, в ЖК Нивки Парк. Поруч є станція метро Нивки та Берестейська . В цьому закритому ЖК є абсолютно все що потрібне в повсякденному житті. Також одразу біля ЖК є Макдональдс. Квартира розташована на 3 поверсі 17 поверхового будинку,загальна площа 49, 6 м2.В квартирі - одна повноцінна спальня з балконом + велика кухня-вітальня. Було здійснене перепланування за рахунок чого в квартирі є велика гардеробна.. Санвузол сумисний. Встановлена вся необхідна техніка, практичні меблі, якісна побутова техніка. Підключений швидкісний інтернет. Закрита територія з обладнаними дитячими та спортивними майданчиками, зоною відпочинку та іншими зручностями. Все побудованому відповідно до європейських вимог. Ціна 125000$ ,без комісії для покупця.
Київ, Шевченківський
Продам 2-к квартиру, Сокальська 1, ідеально під комерцію! Київ 14
  • Двокімнатна
  • 53.5 м2
  • 1 / 4 пов.
52 000 $
Продам 2-кімнатну квартиру по вул. Сокальська 1. Площа 53.5кв.м., окремий вхід. Квартира в гарному стані, є опалення, світло, вода. В приміщенні є підвал, чистий, сухий. Дуже зручне місцерозташування, одразу навпроти будинку знаходиться зупинка громадського транспорту. Зручне транспортне сполучення із станціями метро за двома гілками: Мінська (Оболонь), Почайна, Контрактова пл. по синій та Лук'янівській по зеленій.
Київ, Оболонський
Продам 2 к.квартиру Солом`янська Протасів Яр Ратушного Амосова Головка Київ 14
  • Двокімнатна
  • 47 м2
  • 9 / 9 пов.
80 000 $
Київ. Вулиця Солом`янська 36. Солом`янський р-н. Пропонується для продажу 2-кімнатна квартира з якісним ремонтом та меблями, світла, тепла та простора. Кухня укомплектована технікою (холодильник, витяжка, газова плита, духова шафа, бойлер). Квартира має зручне функціональне планування , кімнати окремі, правильної форми, санвузол суміжний, засклена лоджія з вбудованими шафами, є кладова. З вікон відкривається чудовий панорамний вид на Протасів Яр і місто. В 2018 році зроблено кап.ремонт даху, нове перекриття . На воду встановлено систему очистки води, зроблена часткова заміна електропроводки з заміною лічильника, проведена повна заміна всіх комунікацій в ванній кімнаті, вирівняні стіни і підлога в кімнатах, встановлено кондиціонер, для безпеки підключено сигналізацію. Дуже гарне розташування будинку. Поруч є супермаркет, школи, дитячий садок, поліклініка, аптека, банк, кафе, зупинка транспорту, великий парк. Зручна транспортна розв’язка, швидкий виїзд до центру міста- 8хв.
Київ, Солом'янський
Продам 2 к квартиру у цегляному будинку  Анни Ахматової,  Григоренко Київ 20
  • Двокімнатна
  • 60 м2
  • 2 / 18 пов.
92 500 $
БЕЗ КОМІСІЇ. Ексклюзивна пропозиція! Квартира з новим класичним ремонтом на Ахматової, 3! Шукаєте житло, де краса та якість поєднані в ідеальній гармонії? Пропоную 2-кімнатну квартиру з витонченим, новим ремонтом, виконаним у кращих традиціях класичного стилю. Використані якісні, дорогі матеріали. Квартира, що не втратить своєї актуальності з роками. В квартирі якісний парект оновлений та оцокльований, плитка з підігрівом, є додаткове індивідуальне опалення з електричним котлом. Санвузол зі свіжим ремонтом з заміною труб та електрики. Душовою кабіною, біде та бойлером. Велика засклена лоджія на дві кімнати. У квартирі дерев»яні євровікна, підвіконні з дерева та оброблені корабельним лаком. Оптимальний 2-й поверх – ідеальне поєднання зручності та комфорту. Цегляний Будинок: Теплий, надійний будинок (1999-2003 року забудови) з товстими стінами Відмінна інфраструктура. Поруч станції метро «Позняки» та «Харківська», парки, школи, дитячі садки, супермаркети (наприклад, ПриватБанк, медичний центр у цьому ж будинку). Ідеальний варіант для сім'ї, що цінує елегантність та затишок! Телефонуйте, щоб домовитись про перегляд!
Київ, Дарницький
Продам 2 к квартиру   Велика Васильківська (Червоноармійська), 20 Київ 10
  • Двокімнатна
  • 56 м2
  • 4 / 5 пов.
150 000 $
Київ, Велика Васильківська (Червоноармійська), 20, ; Сталінка; стіни: цегла; перекриття: залізобетон; поверховість: 5; кількість виходів: 1; ліфт; транспорт: ст.М"Л.Толстого"; 1 поверх-нежилі приміщення, Н=3.1м, гарний стан, біля дороги, під'їзди охайні, охорона, код.замок, парковка безкоштовна • 2р, 4-й поверх, площа: 56,0\26,1\10,3; Квартира продається у самому сердці Києва! Вбудована кухня, вся необхідна техніка, меблі. санвузол: джакузі, душова кабіна ,сауна. Гостьова кімната, окремо спальня. Два кондиціонери. Шафа-купе. Тераса з видом на площу Українських Героїв. В будинку є ліфт. м.Хещатик-10 хв. м.Площа Українських Героїв-1 хв.;
Київ, Печерський
Продам 2-к. квартиру з ремонт. ЖК Русанівська Гавань,ст.м. Лівобережна Київ 3
  • Двокімнатна
  • 68 м2
  • 8 / 25 пов.
122 000 $
ЖК Русанівська гавань. будинок бізнес-класу, монолітно-каркасний та утеплений. Розташована на першій лінії від Дніпра! Квартира з ремонтом, частково укомплектована меблями і технікою. Має зручне і функціональне планування: дві спальні кімнати та простора кухня, санвузол суміжний.В квартирі виконано якісний ремонт, всі нові комунікації. Повністю закрита територія, цілодобова охорона та відеонагляд! Підземний паркінг! Прибудинкова територія -взірцева! Свій вихід на облаштовану набережну, пляж в 5-ти хв. Супермаркет, та багато кафе-ресторанів, різноманітних салонів на вибір в ЖК! Станція метро -1км В будинку центральне опалення, встановлено лічильники води, тепла, електроенергії на поверсі. Квартира світла, затишна і тепла!
Київ, Дніпровський
Перейти на сторінку