1  / 1
Продам 2-к квартиру , Діброва Парк - фото 1

Продам 2-к квартиру , Діброва Парк

Київ, Подільський

Поскаржитись
88 000 $
0 переглядів оголошення | 0 сьогодні
Додано: 17 грудня 2025, ID: 4596790
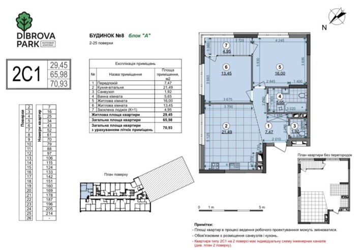
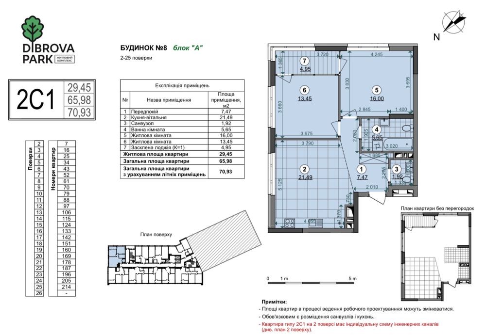
Характеристики
  • Без комісії Ні 
  • Кімнат
  • Загальна площа 71 м2
  • Площа кухні 22 м2
  • Поверх 11 
  • Поверховість 23 
Опис
ЖК Діброва Парк, Dibrova Park

Будинок 8 ( на рік раніше ніж будинок 7 )
Планування 2с1
Поверх 11
Ціна 88000
Східна сторона . Вид у двір

Багато варіантів , звертайтесь. також запрошую на перегляд -підберем Вам варіант .
Зворотній зв’язок
Ігор Діброва Парк
офлайн
Схожі оголошення
Продам 3х комн. квартиру на пос. Котовского Одеса 6
  • Трикімнатна
  • 70 м2
  • 7 / 9 пов.
25 000 $
Предлагается к продаже 3х комнатная квартира на пос. Котовского на 7ом этаже 9ти этажного кирпичного, газового дома. Общая площадь 70кв.м. Большие светлые комнаты, столовая 12кв.м. Установлены: Входная, Бронированная дверь; Метало-Пластиковые Окна. Раздельный Сан.Узел Т/Душ.-Кабина. Бойлер. Новый лифт. Хорошее месторасположение: Две Школы, Детский Садик, Торговые Центры, Рынок, Областная Поликлиника и Больница. Транспортная развязка во все районы города. Цена 25 000у.е.
Одеса, Пересипський
2х комн. квартира в Лузановке Одеса 5
  • Двокімнатна
  • 38 м2
  • 3 / 5 пов.
16 000 $
В продаже 2х комнатная квартира в непосредственной близости от Моря, на среднем этаже 5ти этажного крепкого дома. Отличное состояние. Возможна продажа с мебелью и бытовой техникой. Квартира дворовая. Удачное расположение дома, позволяет за считанные минуты дойти до ухоженного берега Моря. Рядом расположены: Школа, Детский Садик, Торговые Центры. 16 000у.е. Возможен торг!
Одеса, Лузановка
Продам 2х комн. квартиру в Исторической Части Города Одеса 3
  • Двокімнатна
  • 30 м2
  • 2 / 2 пов.
18 000 $
Предлагается к продаже 2х комнатная кв-ра в Исторической Части Города. Расположена на 2м этаже крепкого жилого дома. Две раздельные комнаты. Сан.Узел Т/Душ облицован, установлен бойлер. 2х Тарифный Электро Счетчик день-ночь. Тихий, уютный двор. Хорошее месторасположение. В шаговой доступности: Рынок; Школа; Детский Садик; Парковая Зона; Магазины, Торговые Центры Транспортная развязка во все р-ны города... Цена 18 000у.е.
Одеса, Пересипський
офлайн
Ігор Діброва Парк
На сайті з 16 квітня 2020