Киев
Киевская
Искать объявления по всей области

Недвижимость в Киеве

Видова 3х кімн. квартира ЖК Лебединий в м.Київ. Киев 20
  • Трехкомнатная
  • 97.9 м2
  • 21 / 21 эт.
8 344 325 грн. Без комиссии
Продаж видової квартири з дизайнерським ремонтом в ЖК Лебединий, вул.Ревуцького 40-В в м.Києві. Ідеальне місце для життя в ритмі великого міста, де все необхідне під рукою. У квартирі робилось все для себе, не на продаж, використовували якісні, дорогі матеріали, не економили. Все продумано до дрібниць. В квартирі ніхто не жив. - Є дизайнерський проєкт. - Стіни під покраску, в дитячій та на кухні зроблені стіни для малювання та магнітна стіна. - Підлога в кімнатах з безшумного та екологічно чистого кварцвінілу.. Розведена тепла єлектро підлога. Скриті плінтуса. - Двері скритого монтажа з магнитними замками. - Вікна Sun Protect. - В санвузлах іспанська плитка. - В кухні та санвузлах стоїть система Антипотоп. - В квартирі зроблені виходи під камери , кондиціонери та сигналізацію. - Ретельно продуманні розетки, вимикачі та зонування світла. - Встановленні вхідні броньовані двері з шумозаглушенням та термостами, смарт замок + замок з мультилок ключем. Кухня- вітальня 18.6 кв.м., розділена на зону відпочінку та зону приготування. Комплектація: якісна вбудована кухня з доводчіками Blum , варильна поверхня , духова шафа , мікрохвильова піч, посудомийна машина, вбудований холодильник, стіл . Три кімнати правельної форми 16.3кв.м, 15.6 кв.м.,18.0 кв.м. З кімнати 18.0 кв.м. вихід в санвузол 3.8 кв.м. з розсувними дверима. Комплектація: душова кабіна, підвісний унітаз з інсталяцією, умивальник з натурального камня ,дзеркало . Санвузол 1.8 кв.м.: повноціна ванна, підвісний унітаз з інсталяцією,дзеркало. Великий коридор с коморою. В коморі є виводи під пральну машину автомат та сушильну машину. У будинку встановлений генератор, при відключення світла ліфт працює. ЖК Лебединний комфорт-класу, свій дитячий садок, підземний та наземний паркінги, безпечна територія з відеоспостереженням. Поруч з будинком супермаркет VARUS, аптека, кафе, салон краси, Нова пошта, поруч із будинком у суботу проводиться ярмарок. Поруч велике озеро з облаштованою набережною, пішохідний бульвар для прогулянок, дитячі та спортивні майданчики, місця для пробіжок та занять спортом, затишні зони відпочинку. До станції метро "Харківська" - 350 м Умови покупки: Без комісії для покупця Ціна: 190 000 у.о. Можливий торг.
Киев, Дарницкий
‼️ Видова 3к 106м реальна! Звіринецька Edelweiss House Едельвейс центр Киев 20
  • Трехкомнатная
  • 106 м2
  • 16 / 24 эт.
9 134 840 грн.
Звіринецька 70А, ЖК “Edelweiss House” Пропонується на продаж 1-кімнатна квартира на 2-му поверсі сучасного ЖК “Edelweiss House”, який розташований на Печерських схилах поруч з Ботанічним садом. Квартира має загальну площу 56,0 м², з великими зонами: кімната — 26,7 м², кухня — 15,1 м². Особливості квартири: • Стан: 1-кімнатна квартира після будівельників з можливістю перепланування. • Вид: панорамні вікна з чудовим видом на Дніпро. • Технічне оснащення: система «розумний дім», автономна газова котельня, покращена шумоізоляція, датчики антизатоплення. Інфраструктура та зручності комплексу: • Будинок: новий ультрасучасний комплекс бізнес-класу, побудований із використанням сучасних інженерних технологій. • Комфорт: консьєрж-служба, багаторівневий паркінг, 4 швидкісні ліфти, система центральної вентиляції, енергоефективний фасад. • Безпека: датчики руху, система звукоізоляції, антизатоплення. Локація: • Комплекс знаходиться поруч з Національним ботанічним садом та має чудові краєвиди на місто. • Транспорт: зручний доступ до основних транспортних шляхів Києва. Це ідеальна пропозиція для тих, хто шукає комфортне та стильне житло в одному з найелітніших районів Києва з сучасними технологіями та першокласною інфраструктурою! Є відеоогляд! САМЕ В МЕНЕ ВСІ ПРОПОЗИЦІЇ В ЦОЬМУ ЖК.
Киев, Печерский
Видова 3к кв (91м²) у ЖК Great — Панорама Дніпра та затишок парку! Киев 7
  • Четырехкомнатная
  • 91 м2
  • 6 / 26 эт.
5 489 688 грн. Без комиссии
Продає власник. Ваш особистий острів спокою на березі Дніпра! Продається простора квартира площею 91 м² на «комфортному» 6-му поверсі. Це ідеальне планування для тих, хто цінує простір, світло та затишок. Вулиця Причальна, 8. • Панорама та Світло: Південно-західна орієнтація гарантує сонячне світло протягом усього дня та неймовірні краєвиди на Дніпро та правий берег. • Тиша та Затишок: Будинок розташований всередині комплексу («у дворі»), що захищає вас від пилу та шуму магістралі. Вікна виходять на ландшафтне зелене подвір'я — ідеальне місце для ранкової кави. • Простір для ідей: 91 м² дозволяють реалізувати формат великої кухні-вітальні та 3 окремих спальні. Панорамне скління візуально робить простір ще більшим. Є дизайнерський проект. Можна реалізувати власні фантазії)) • Локація: ЖК Great — це сучасна концепція з власним парком, підземним паркінгом та розвиненою інфраструктурою. До River Mall — 5 хвилин, до центру міста — 15 хвилин через Дарницький міст. • Поверх: 6/26 • Загальна площа: 91 м² • Стан: Після будівельників • Вид: Дніпро та внутрішній парк Є підземний паркінг, який використовується, як укриття. Охорона 24/7 Я власник. Узгоджена переуступка. Можемо продати по державній програмі.
Киев, Дарницкий
Видова 3к квартира 139 кв  з ремонтом У ЖК Панорама на Печерську Киев 20
  • Трехкомнатная
  • 139.4 м2
  • 19 / 26 эт.
11 638 138 грн.
Генератор на все.3 секція. Пропонується шикарна квартира з євроремонтом у ЖК Панорама на Печерську — житловому комплексі бізнес-класу в самому центрі Печерська. Квартира має зручне та продумане планування, двостороння та видова. Виконано стильний євроремонт, встановлені якісні меблі та техніка від провідних виробників. У квартирі 2 санвузли, встановлена сигналізація та домофон. Будинок закритого типу з власною інфраструктурою: • доглянуте парадне • консьєрж • наземна парковка для мешканців • підземний паркінг Додатково можлива купівля двох паркомісць у підземному паркінгу — по 16 м², об’єднані в єдиний блок як гараж. Аналогів немає. Ключі на руках. Є відео квартири.
Киев, Печерский
Видова 3к квартира з панорамною лоджією у ЖК Great Киев 6
  • Трехкомнатная
  • 90 м2
  • 21 / 24 эт.
4 944 144 грн.
Ваша можливість стати власником видової трьохкімнатної квартири з краєвидом на Дніпро у ЖК Great. Адреса: перетин Дніпровскої набережної та вул. Здолбунівська. Характеристики квартири: - Загальна площа — 90 м² - Житлова площа — 42 м² - 11 будинок - Панорамні вікна - Планування: просторий передпокій, 3 окремі спальні, санвузол, кухня-вітальня, засклена лоджія. Про ЖК Great: - Сучасний житловий комплекс комфорт-класу на лівому березі Дніпра. - Закрита територія з охороною та відеоспостереженням. - Продуманий благоустрій: зелені зони відпочинку, дитячі та спортивні майданчики. - Власна інфраструктура комплексу — магазини, кав’ярні, сервісні заклади. - Зручна транспортна розв’язка: поруч станція метро, швидкий виїзд до центру міста. Інфраструктура поруч: - ТРЦ, супермаркети, ресторани. - Дитячі садки та школи в пішій доступності. - Набережна Дніпра для прогулянок і відпочинку. Ціна: 106 270 $ Комісія — 5% (є відеоогляд квартири)
Киев, Дарницкий
Видова 3К квартира з ремонтом Шевченківський рн Молдавська 2 Шулявка Киев 20
  • Трехкомнатная
  • 150 м2
  • 9 / 16 эт.
10 320 613 грн.
Молдовська (Молдавська), 2. • 3р, 9-й поверх, площа: 161,0\97,0\26,4; Продається простора видова квартира з ремонтом в класичному стилі. Дві окремі спальні та кухня-вітальня. Квартира повністю укомплектована меблями та технікою для проживання. Побутова техніка від провідних виробників. Система кондиціонування у кожній кімнаті. В квартирі 2 санвузли. В кожній кімнаті власна гардеробна. Високі стелі надають особливого шарму приміщенню. Панорамний вид на парк імені Івана Багряного і центр Києва. Зручна інфраструктура всі магазини поруч.
Киев, Шевченковский
Видова! 47 м2 квартира Грейт Осокорки Позняки Дніпровська наб. 4й буд Киев 10
  • Однокомнатная
  • 47 м2
  • 19 / 24 эт.
6 104 533 грн.
Продаж однокімнатної квартири в сучасному ЖК Great. вул. Дніпровська набережна 15Ж 4й будинок, введено в експл. в 2кв. 2023 року Є генератори на ліфт, опалення Загальна площа квартири 47 м2. Знаходиться на 19-му поверсі 26-ти поверхового будинку. В квартирі виконаний сучасний дизайнерський ремонт, з меблів є: розкладний диван, ліжко, шафа, вбудована кухня, духова шафа, плита з витяжкою. Також в квартирі є бойлер. Велика, містка та зручна гардеробна кімната. Будинок сучасного типу, в під'їзді є гарна вхідна група, облаштована зоною відпочинку (кріслами, диванами, телевізором). Також в будинку є цілодобова охорона. Встановлено генератор! Є облаштована прибудинкова територія, дитичий майданчик та місця для заняття спортом. Дуже зручна транспортна розв'язка, неподалік метро Осокорки, зупинки громадського транспорту. Житловий комплекс розташований у неймовірному місці, прямо поруч з набережною Дніпра, що чудово підійде для вечірніх прогулянок.
Киев, Дарницкий
  • Пятикомнатная
  • 123.5 м2
  • 25 / 26 эт.
6 236 285 грн. Без комиссии
Продаж 2-рівневої видової квартири в ЖК «Святобор» 5 житлових кімнат • 123,5 м² • ціна: 142 000 $ Адреса: м. Київ, Святошинський район, вул. Львівська, 15 (будинок №2). Будинок введено в експлуатацію у 2020 році. Опис квартири: Два рівні, розташовані на 25 та 26 поверхах 26-поверхового будинку. Панорамні вікна з видом на місто. Санвузли на кожному рівні. Передбачені зони під гардероби. Мінімум несучих конструкцій — можливе зручне перепланування. Є готові 2-рівневі квартири з ремонтом, доступні для огляду, як приклад планувальних рішень. Стан від забудовника Стяжка під лазер. Чорнова штукатурка. Встановлені вікна з 2-камерним склопакетом. Розведено опалення, гаряча та холодна вода. Стальні радіатори з терморегуляторами. Лічильники на опалення, воду та електрику. Будинок з червоної цегли, монолітно-каркасний. Утеплення фасаду базальтовою ватою 15 см. Балкон утеплений базальтовою ватою 10 см зсередини. Інфраструктура та розташування До метро Святошино та Житомирська — 10 хвилин пішки. До метро Хрещатик — 15 хвилин на метро. 5 хвилин пішки до проспекту Перемоги. Будинок знаходиться на другій лінії від проспекту — спокійне місце без шуму. У пішій доступності: магазини, кав’ярні, Нова Пошта, лікарні, парки, дитячі садки та дві державні школи. Район розташований між двома парковими зонами. Територія комплексу: Закрита та охоронювана територія. Великий внутрішній двір без автомобілів площею 2,5 га. Підземний і гостьовий паркінг (підземний також використовується як укриття). Умови продажу Без комісії. Перегляди за домовленістю. Додаткові витрати: 2% податку та нотаріальні послуги.
Киев, Святошинский
ВИДОВА 69 м2 ЖК Metropole/ Метрополь, Предславинська 20-А Киев 11
  • Однокомнатная
  • 68.5 м2
  • 9 / 25 эт.
8 124 738 грн.
1 вежа, здана в експлуатацію, можна робити ремонти. ВИДОВА НА ВЕЛИКУ ВАСИЛЬКІВСЬКУ! Пропоную квартиру в ЖК преміум-класу Metropole, вул.Предславинська 20 Б Площа 68/22/33 м2, поверх 9/25 Гарна панорама з вікон Закрита територія. Презентабельна вхідна группа. Вентильовані фасади Euromax з цегляним оздобленням та утепленням мінеральною ватою. Фасадні системи Schüco. Ліфти Schindler. Власна котельня від бренду Viessmann. Цілодобова охорона та відеоспостереження. Підземний паркінг. Своя інфраструктура: Басейн розташований на стилобатній частині будинку. - Бізнес-центр класу А - Паркінг, велопарковка, автомийка, зарядна станція для електрокарів, внутрішній двір, парк на даху - кафе, ресторани, магазини і т.д. - Фітнес-центр, спа, салон краси - Школа раннього розвитку та багато іншого Проект міжнародної команди, результат співпраці французького архітектурного бюро Vasconi Architectes та корпорації Altis Holding. ПОКАЖУ ВСІ ВАРІАНТИ В ЦЬОМУ ЖК!
Киев, Печерский
Видова ділянка Мишоловка Киев 13
    1 405 360 грн.
    Голосіївській район, Мишоловка, вул. Академіка Кащенко, ділянка з шикарним видом на місто, 6.33 сотки, центральні комунікації по вулиці, водопровід, світло. Ділянка розташована на схилі, поруч забудовані сусіди, нові будинки, асфальтований підʼїзд. Ділянка приватизована, у власності. На ділянці старті деревʼяний будиночок.Поруч зупинка транспорту, великий парк, Монастир.
    Киев, Голосеевский
    Видова Дніпро 1 лінія Ік 55м Русанівська гавань Микільсько-слобідська Киев 18
    • Однокомнатная
    • 54.6 м2
    • 6 / 26 эт.
    4 084 328 грн.
    Перша лінія, видова, 1 кімнатна квартира в Зданому будинку Київ, вул. Микільсько-Слобідська , 28 (17) ЖК «Русанівська гавань», перша лінія, секція А 6 поверх - неймовірні краєвиди з вашого вікна. Панорамні вікна на Дніпро і весь правий берег, вільне планування під ваш авторський ремонт. Територія закрита, охорона. Супермаркет, кавярні, дитячі майданчики, школа, дитячий садочок, обладнана набережна для відпочинку та прогулянок, облаштований пляж. метро Лівобережна - 10 -15 хв. пішки.
    Киев, Днепровский
    Видова Дніпро 1к 51м ЖК Русанівська Гавань 13-17 Микільско-Слобідська Киев 20
    • Однокомнатная
    • 51.5 м2
    • 4 / 26 эт.
    3 732 988 грн. Без комиссии
    БЕЗ КОМІСІЇ ДЛЯ ПОКУПЦЯ З ВИДОМ В сторону Дніпра Простора 1-кімнатна квартира в ЖК “Русанівська Гавань” забудовника “Ковальська” Продаж по переуступці Будинок 12, будівельна адреса 13–17, здача — весна 2026 року Площа: 50.5 м² 4/26 поверх ВИД на ДНІПРО Власна котельня для кожного будинку — стабільне тепло й гаряча вода Висота стелі 2,7 м. В квартирі простора кухня, велика кімната та санвузел. Окрема гардеробна. Розведена електропроводка. Закрита територія комплексу з цілодобовою охороною та консьєрж сервісом, підземний паркінг, 2 швідкісні ліфти та вантажний ліфт. На території є гостьовий паркінг, кав’ярні, магазини, спорткомплекс, салони краси та заклади розвитку малечі. Мешканцям комплексу відкривається неймовірна панорама Дніпра та правого берегу Києва. Поруч є прогулянкова набережна, яка входить до довколишньої території комплексу. Також неподалік з комплексом є декілька державних дитячих садочків, ліцей №208 та технічний ліцей, поліклініка, аптеки та інша інфрастуктура. В пішій доступності метро "Лівобережна". Центр міста 15 хвилин . Є майже всі варіанти квартир Телефонуйте першмим для отримання знижки
    Киев, Днепровский
    ВИДОВА! ДОРОГА! 1к квартира 37м2 в ЖК "GREAT", Грейт м.Осокорки Киев 11
    • Однокомнатная
    • 36 м2
    • 10 / 26 эт.
    4 347 789 грн.
    Продаж 1-к квартири площею 36м2, розташована на 10-му з 26-ти поверхів, в ЖК "GREAT", Грейт на вул. Причальній 12,.м.Осокорки. Однокімнатна квартира з дизайнерським ремонтом. Поверх 10/25. Площа 36м2. Панорамні вікна. В квартирі є абсолютно все для комфортного проживання. Новий якісний ремонт — квартира повністю готова до заселення Повністю укомплектована меблями та побутовою технікою Світле та функціональне планування Панорамні вікна Новий будинок з охайними під’їздами та сучасними ліфтами Приємний ЖК з екопарком, дитсадком і школою. В ньому об'єднані види на мільон та ціни комфорт-класа Лівого Берега. Ексклюзивність і цінність ЖК дають змогу стверджувати, що даний комплекс має безграничні перспективи. Квартира з документами! Торг! Поруч розташовані ЖК Seven, Славутич, Зарічний, Русанівська Гавань, River Stone.
    Киев, Дарницкий
    ВИДОВА! ДОРОГА! 1к квартира 46м2 в ЖК "GREAT", Грейт м.Осокорки Киев 17
    • Однокомнатная
    • 46 м2
    • 16 / 25 эт.
    5 577 479 грн.
    ВИДОВА! Продаж 1-к квартири площею 46м2, розташована на 16-му з 26-ти поверхів, в ЖК "GREAT", Грейт на вул. Причальній 10,.м.Осокорки. Однокімнатна квартира з дизайнерським ремонтом. Поверх 16/25. Площа 46м2. Панорамні вікна. В квартирі є абсолютно все для комфортного проживання. Два інверторні кондиціонери , вбудована техніка (посудомийна машина, мікрохвильовка, духова шафа, вбудований холодильник, пральна машина, бойлер, телевізор. Багато місць зберігання. Приємний ЖК з екопарком, дитсадком і школою. В ньому об'єднані види на мільон та ціни комфорт-класа Лівого Берега. Ексклюзивність і цінність ЖК дають змогу стверджувати, що даний комплекс має безграничні перспективи. Квартира з документами! Торг! Поруч розташовані ЖК Seven, Славутич, Зарічний, Русанівська Гавань, River Stone.
    Киев, Дарницкий
    Видова двокімнатна квартира в бізнес-класі Туманяна, 15А. Без % Киев 8
    • Двухкомнатная
    • 85.4 м2
    • 22 / 26 эт.
    4 830 925 грн. Без комиссии
    Видова двокімнатна квартира в сучасному ЖК бізнес-класу «Лазурний Блюз» за адресою вул. Ованеса Туманяна, 15-А. Всі кімнати з видом на правий берег (дивіться фото) Без комісії. Особливості квартири: - Неймовірний вид: З вікон вашої квартири відкриватиметься захоплююча панорама на канал та мальовничий правий берег Дніпра. - Просторе планування: Загальна площа квартири становить 85.4 м², що дозволить вам втілити будь-які дизайнерські ідеї. - Функціональна кухня площею 12.2 м². - Два санвузли: Забезпечать комфорт та зручність для всієї родини. - Високий поверх: 22-й поверх з 26-ти відкриває чудові краєвиди. - Високі стелі: 2,82 м створюють додаткове відчуття простору. - При відключення світла працює ліфт та опалення. - Стан після будівельників: Це чудова можливість створити інтер'єр вашої мрії. Переваги ЖК бізнес-класу «Лазурний Блюз»: - Автономна котельня: Забезпечить незалежність від міських тепломереж та дозволить заощаджувати на комунальних послугах. - Закрита територія. - Дворівневий підземний паркінг: Розв'яже проблему з паркуванням вашого авто. - Цілодобова охорона та відеоспостереження: Забезпечать ваш спокій та безпеку. - Зручне розташування: Поруч Русанівська набережна, де ви зможете насолоджуватися прогулянками та активним відпочинком. - Розвинена інфраструктура: У кроковій доступності дитячі майданчики, магазини, кафе, дитячі садки, школи, спортивні клуби та інші необхідні об'єкти. - Транспортна доступність: До станції метро «Лівобережна» всього 10 хвилин пішки.
    Киев, Днепровский
    ВИДОВА! ДВОРІВНЕВА! 3к квартира 100м2 в ЖК "GREAT", Грейт м.Осокорки Киев 7
    • Трехкомнатная
    • 98 м2
    • 25 / 26 эт.
    7 246 388 грн.
    ДВОРІВНЕВА! ВИДОВА! Продаж дворівневої 3-к квартири площею 100м2, розташована на 25-му з 26-ти поверхів, в ЖК "GREAT", Грейт на вул. Дніпровська Набережна 15к.м.Осокорки. Поверх 25 Площа 98м2 Планування 2д4 Перша лінія - прямий вид на Дніпро. В паркінг спускаємось ліфтом. Зручне планування: дві спальні + велика кухня-вітальня І найпопулярніший комплекс на лівому березі. Приємний ЖК з екопарком, дитсадком і школою. В ньому об'єднані види на мільон та ціни комфорт-класа Лівого Берега. Ексклюзивність і цінність ЖК дають змогу стверджувати, що даний комплекс має безграничні перспективи. Квартира з документами! Поруч розташовані ЖК Seven, Славутич, Зарічний, Русанівська Гавань, River Stone.
    Киев, Дарницкий
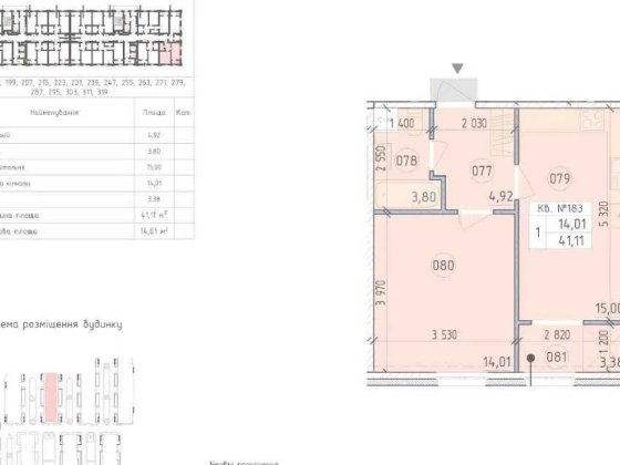
    ВИДОВА, КУТОВА 1к квартира 41м2 в ЗДАНОМУ будинку ЖК Нова Англія БЕЗ% Киев 17
    • Однокомнатная
    • 41.11 м2
    • 16 / 21 эт.
    3 074 225 грн. Без комиссии
    Продається простора квартира з панорамними видами у напрямку Києва, пропонуємо чудову можливість придбати житло в ЖК "Нова Англія". Розташування: Вулиця Максимовича, будинок "Віндзор". Основні характеристики: - Загальна площа: 41,11 м² - Поверх: 13 із 21 - Будинок зданий в експлуатацію, ведуться ремонтні роботи. Планування: - Житлова кімната: 14,02 м² - Кухня-вітальня: 15,42 м² - Лоджія: 3,62 м² - Санвузол: 3,93 м² - Передпокій: 4,16 м² Квартира підготовлена до ремонту і може бути перепланована відповідно до ваших побажань та дизайнерських рішень. Оснащення: - Інженерні мережі (гаряча і холодна вода) - Стяжка під ламінат - Сучасні радіатори з регуляторами температури - Проведена електрика - Встановлені лічильники для води, опалення та електроенергії - Панорамні металопластикові вікна Переваги комплексу: ЖК "Нова Англія" забезпечує всі умови для комфортного проживання: - Підземний паркінг із функцією укриття, а також наземний і гостьовий паркінг - Закрита територія з системою відеоспостереження - Дитячий садок, школа, дитячі майданчики та освітньо-розважальні заклади на території - Спортивні майданчики, прогулянкові алеї та місце для вигулу домашніх улюбленців - Магазини, аптеки, пошта, салони краси, розташовані на перших поверхах будинків - Зручна транспортна доступність – метро "Васильківська" усього за 10 хвилин ходьби Ключі доступні в нашому офісі, перегляд квартири – за домовленістю. Обирайте серед різноманітних варіантів квартир у ЖК "Нова Англія". Вказана ціна без комісії та додаткових витрат. Телефонуйте!
    Киев, Голосеевский
    Видова кв-ра з ремонтом ЖК Львівський квартал, Глибочицька, 13 корп. 6 Киев 19
    • Однокомнатная
    • 50 м2
    • 16 / 22 эт.
    5 270 100 грн.
    Квартира з якісним ремонтом в якому майже не жили, укомплектована меблями та технікою провідних світових брендів (меблі зі спальної кімнати забиратимуть, і телевізор з обіднім столом та стільцями). Великі панорамні вікна, вікна на Пд.-Сх. сторони. Техніка: Siemens - холодильник, Franke - мікрохвильова піч, духова шафа, варочна поверхня, раковина змішувач, Hotpoint Ariston - посудомийна машина, Atlantic - бойлер. Комплекс з закритою територією від сторонніх машин, є підземний паркінг, відеонагляд на території та на поверхах. Зручне розташування 10 хв. до ст. М Лук'янівська, 15 хв. до ст. М Контрактової площі. Пропонуємо переглянути відеоролик квартири: https://youtube.com/shorts/NJKHMnkfSm8?si=A5l2_djPh-y6NoCN
    Киев, Шевченковский
    Видова кварира з ремонтом в ЖК Svitlo Park‼️ Киев 10
    • Трехкомнатная
    • 78 м2
    • 21 / 25 эт.
    8 563 913 грн.
    Код: 15097 Пропонуємо шикарну квартиру 78 м.кВ. в ЖК SvitloPark; 2 окремі кімнати та кухня-студія; 2 санвузли; виконано якісний ремонт з використанням натуральних матеріалів; повністю укомплектована меблями та побутовою технікою світових виробників; встановлено 2 бойлера на 100 та 50 л. Тепла підлога. Комплекс з власною інфраструктурою та закритою територією, охороною, до метро Видубичі 800 метрів. Панорамні вікна на Лису гору та Печерськ. Зателефонуйте вже сьогодні для організації перегляду.
    Киев, Голосеевский
    Видова квартира 105 м.кв.,з дизайнерским ремонтом, в ЖК Time! Киев 20
    • Двухкомнатная
    • 105.5 м2
    • 19 / 25 эт.
    13 175 206 грн.
    Пропонується до продажу видова квартира з дизайнерським ремонтом, в житловому комплексі бізнес-класу «Time», по вул.Липківського 38, в Солом’янському районі. Плануваня: простора кухня –вітальня 32.8 м.кв., дві спальні кімнати 18 та 14.5 м.кв., два санвузла, окрема та вбудована гардеробна , побутова (пральня) кімната, розкішна утеплена лоджа з вікнами в підлогу. Ремонт: якісний дизайнерський ремонт у витриманих благородних тонах. Преміальні будівельні та декоруючі матеріали. Облаштована звукоізоляція.Тепла підлога. Професійно змонтовані підсвітлювальні пристрої та світильники. Меблі та техніка: вбудовані кухонні меблі , ліжко , якісне наповнення гардеробної кімнати, вбудована коридорна шафа. Кліматична техніка (кондиціонери) в кожному житловому приміщені та кухні-вітальні, бойлер на 120 літрів, посудомийна машина BOSCH, духова шафа та мікрохвильова печі BOSCH, пральна та сушильна машини BOSCH, варочна поверхня та витяжка ,холодильник. Житловий комплекс закритого типу з охороною та відео наглядом. Підземний паркінг. Зручна центральна локація. До метро Вокзальна 10-12 хвилин пішки. Поруч магазини та супермаркети, парки та сквери.
    Киев, Соломенский