Київська
Київська
Искать объявления по всей области

Продаж квартир у Київській області

Продам 1к квартиру в ЖК Варшавський 3 Виноградар Київ 5
  • Однокімнатна
  • 43 м2
  • 7 / 18 пов.
67 000 $
Пропоную на продаж 1-к квартиру в ЖК «Варшавський 3», Будинок 10.5, планування 1С6 Площа квартири - 43 м2, Поверх 7/18 Продаж по перепоступці. Здача будинку запланована на 2 квартал 2026 року. Житловий комплекс Варшавський 3 входить до складу сучасного та добре розвиненого району — Варшавського масиву. Проєкт реалізується надійним девелопером Stolitsa Group (SG, Столиця Груп). Розвинена інфраструктура масиву забезпечує комфортне життя для кожного: численні магазини, кав’ярні, аптеки, дитячі й спортивні майданчики, а також великий торгово-розважальний центр Retroville. Поруч розташовані зелені зони, сквери, озера та парки. Активно триває будівництво нових станцій метро — Мостицька та Варшавська, що ще більше підвищить зручність пересування. У наявності — всі варіанти однокімнатних квартир у комплексах Варшавський 1, 2, 3 та Варшавський+. Не втрачайте можливість стати власником квартири у Варшавському - телефонуйте!
Київ, Подільський
Продам 1к квартиру в ЖК Варшавський плюс ТОП ціна Київ 5
  • Однокімнатна
  • 46 м2
  • 12 / 26 пов.
75 000 $
Пропоную на продаж 1-к квартиру в ЖК «Варшавський плюс», вул. Олександра Олеся, 8/17 Загальна площа квартири - 46 м2, Будинок 13.5, планування 1С6, вікна у двір. Поверх 12/26 Будинок зданий, право власності оформлено. ЖК Варшавський плюс є частиною Варшавського масиву, одного з найрозвиненіших в Києві. Проект від надійного забудовника Stolitsa Group (Столиця груп, SG). Інфраструктура масиву задовольнить потребу кожного мешканця: магазини, кавярні, аптеки, дитячі та спортивні майданчики, величезний торговий центр Ретровіль ( Retroville ). Велика кількість скверів, поряд озера та парки. Наразі активно проходить будівництво нових станцій метро Мостицька та Варшавська. В наявності є усі варіанти квартир в ЖК Варшавський 1, 2, 3 і Варшавський + Не втрачайте можливість стати власником квартири у Варшавському - телефонуйте!
Київ, Подільський
Продам 1к квартиру в ЖК Welcome Home вул. Вишняківська 2 Київ 14
  • Однокімнатна
  • 40 м2
  • 15 / 27 пов.
64 990 $
Продам 1к квартиру в ЖК Welcome Home вул. Вишняківська 2, 38,5кв.м. 15/27поверхового будинку. Функціональний Євроремонт! Всі меблі і техніка! 65000у.о. У будинку є генератор
Київ, Дарницький
  • Однокімнатна
  • 40 м2
  • 19 / 23 пов.
67 500 $
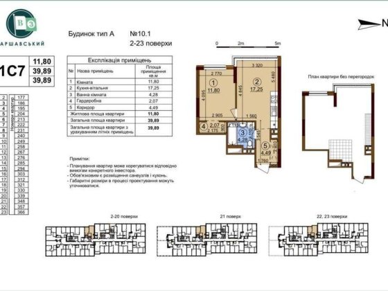
Продам 1 к квартиру в зданому будинку 10.1 Варшавський 3 Власник Перепоступка 19 поверх з 23 40 кв.м.
Київ, Подільський
Продам 1к квартиру вул Братиславська Київ 19
  • Однокімнатна
  • 30 м2
  • 1 / 9 пов.
31 000 $
Продам 1-кімнатну квартиру 30м2, без ремонту у Києві, Дніпровський район, вул. Братиславська 13, 1-повір 9-поверхового будинку 1993 р . Будинок утеплень, із зеленим двором, та з гарною інфраструктурою. Поруч у радіусі 150м знаходиться супермаркет продуктовий НОВУС та гіпермаркет будівельних матеріалів ЕПІЦЕНТР. Будинок цегляний, 1 поверх найбезпечніший і немає залежності від ліфта та електрики. На фото будинок та вхід у під'їзд, вікна квартири праворуч від входу у під'їзд на 1 поверсі, а також план квартири, візуалізація квартири. Квартира 30м2, вартість 31000дол. Квартира поділена, є свій опломбований лічильник з електрики та води. Квартира без ремонту. по факту це 5 к квартира перепланокана на три 1 к квартири Комісійні АН сплачує покупець. За додатковою інформацією звертайтеся за вказаним номером телефона. Надаємо повний спектр послуг з купівлі та продажу квартир та будинків. Великий досвід допомоги в купівлі квартир за державними програмами: 1) єОселя 2) Житло для ВПО та військових (постанова 280) 3) Сертификат за зруйноване житло (єВідновлення) Юридична консультація щодо придбання нерухомості, попередній прорахунок витрат при купівлі житла, для наших клієнтів безкоштовно! З повагою АН Ideal Home! Номер оголошення на сайті компанії: SF-3-194-603-LX. Святослав Васильович, +38**************75.
Київ, Дніпровський
Продам 1к квартиру вул. Міста Шалетт, 3 метро Дарниця. Київ 11
  • Однокімнатна
  • 35 м2
  • 5 / 9 пов.
45 000 $
Загальна площа - 34, 4м². 5 поверх 9 поверхового будинку. Кімната 17 м² після ремонту, світла, тепла та простора. Великі вікна, подвійний якісний склопакет. Балкон повністю оновлений якісними матеріалами. Квартира укомплектована меблями та необхідною технікою. Поруч з будинком 3 школи та садочок, льодова арена, ринок Юність, парк Перемога, до метро 15 хв пішки. В підʼїзді замінено ліфт, виконано косметичний ремонт. Ціна 45 000 $ торг. Перегляди за домовленістю .
Київ, Дніпровський
Продам  1к. квартиру вул. Райдужна, 35 Дніпровський р-н  . Київ 2
  • Однокімнатна
  • 39 м2
  • 7 / 16 пов.
48 000 $
Квартира дуже світла, простора, стан гарний жилий. Квартира на 7 поверсі 16 поверхового будинку, серія БПС . Вдале планування 38,9/18/8,5, з 2 балконами . Нові пластикові вікна та двері,натяжна стеля у кімнаті,новий радіатор,нові шпалери, кахель у санвузлі та ванній кімнаті,лінолеум у коридорі та на кухні,новий кухонний гарнітур. Великі 2 балкони дерев'яні вікна на балконах,вихід з кухні та кімнати. Чудова локація,навпроти будинку велике озеро Радунка з зонами для відпочинку та прогулянок з дитячими майданчиками,багато магазинів аптек поруч,зупинки транспорту,ТЦ Квадрат по неділях овочевий базарчик біля будинку. Продаж без меблів,але по домовленості з покупцями обговорюється. Поруч є дитячі садочки, школи, аптеки, супермаркети, парк, зони відпочинку тощо . Перегляди за домовленістю. 05******50 Олексій.
Київ, Дніпровський
Продам 1к. квартиру  вул. Закревського ,63-А Троєщина Київ 6
  • Однокімнатна
  • 37 м2
  • 9 / 10 пов.
40 000 $
Продам 1к. квартиру з газовою плитою на Троєщині вул.Закревського ,63-А Деснянський р-н . Квартира дуже світла, простора, стан гарний жилий. Квартира на 9 поверсі 10 поверхового будинку. Вдале планування у 37 кв. метрів загальної площі, кухнею 7,4 кв.м, балконом та роздільним санвузлом. Зручне місце розташування, поруч є дитячі садочки, школи, аптеки, супермаркети, парк, зони відпочинку тощо . Загалом локація дуже вдала та обіцяє зробити кожний ваш вихідний яскравим та насиченим. Перегляди за домовленістю. можливий торг на місці. 05******50 Олексій.
Київ, Деснянський
Продам 1к квартиру, вулиця Вірменська ( Харківський масив) Київ 10
  • Однокімнатна
  • 46.1 м2
  • 9 / 25 пов.
79 000 $
Продаж 1-кімнатної квартири на вул. Вірменська, 6 — Дарницький район, КиївПростора, світла та стильна квартира, повністю готова до проживання — ідеальний варіант для комфортного життя чи вигідної інвестиції.Загальна площа — 46,1 м² Кімната — 18,7 м² Кухня — 10,7 м² Якісний євроремонт у сучасних світлих відтінках Велика гардеробна для зручного зберігання речей Переваги комплексу: Новий будинок спецпроєкту з чистими, охайними під’їздами Консьєрж, доступ по перепустках, охоронювана територія Затишне подвір’я з дитячим майданчиком та зоною відпочинку Дворівневий підземний паркінг Розвинена інфраструктура — поруч магазини, школи, садочки, аптеки, зелена зона та озеро для прогулянок. Зручна транспортна розв’язка забезпечує швидкий доступ до центру міста.Ціна: 79000 у.о. Код об'єкта: #27645
Київ, Дарницький
Продам 1к квартиру з частковим ремонтом! Класний тихий район! Буча 7
  • Однокімнатна
  • 31 м2
  • 1 / 3 пов.
27 000 $
Продам 1к з частковим ремонтом! Не шумний район! Поруч супермаркет, магазини, та все необхідне для комфортного життя! До зупинки громадського транспорту 5 хвилин В квартирі вже зроблено розведення електрики, штукатурка стін, лазерна стяжка підлоги, вже встановлений газовий котел. Для деталей телефонуйте!
Буча
Продам 1к квартиру з коморою, Озерний Гай Гатне Гатне 10
  • Однокімнатна
  • 46.1 м2
  • 4 / 6 пов.
60 000 $
Продається 1-кімнатна квартира з чудовим видом та зручним плануванням в сучасному житловому комплексі «Озерний Гай», у селі Гатне, Київська область, Фастівський район. Квартира знаходиться на 4 поверсі. Загальна площа – 46,1 м². Опалення – ГАЗ - індивідуальний газовий котел в квартирі. Досить розвинута інфраструктура комплексу, водночас тиха та спокійна атмосфера серед зелені біля озера. На території багато зон для відпочинку, облаштовані сучасні дитячі та спортивні майданчики, є пляж. До Києва, метро Теремки - 15 хвилин.
Гатне
Продам 1к-квартиру з новим ремонтом! ЖК Щасливий Софіївська Борщагівка 10
  • Однокімнатна
  • 37 м2
  • 11 / 11 пов.
62 500 $
Продаж однокімнатної квартири з ремонтом та меблями в ЖК Щасливий (поруч ЖК Софія Резіденс) Квартира дуже мила та затишна. Зроблений сучасний ремонт. Площа 37м2 Залишається все! Є лоджія Індивідуальне газове опалення Є можливість додатково поруч придбати кладову всього за 1000$ Закрита територія. На території та поруч є все: Фора, Сільпо, кавʼярні, магазин та кавʼярні, Добробут, зупинки , державний садочок у дворі. Мінімальне оформлення та без додаткових комісій. Пишіть або телефонуйте для перегляду, Євгенія
Софіївська Борщагівка
‼️Продам 1к квартиру з новим ремонтом ЖК Софія Резиденс  Резиденція Софіївська Борщагівка 16
  • Однокімнатна
  • 39 м2
  • 5 / 10 пов.
86 000 $
‼️Продається чудова 1к квартира ЖК Софія Резиденс проспект Мартинова 36. ‼️Зручний п'ятий поверх! ‼️Документи готові до угоди, в квартирі ніхто не прописаний! ‼️Гарний вигляд з вікон у двір! ‼️Повністю укомплектована новою технікою і меблями: -вбудована кухня -посудомийна машина -варильна поверхня -духова шафа -вбудований холодильник -пральна машина -гардероб з автоматичною підсвіткою -двоспальне ліжко -диван на лоджії -велика шафа в передпокої -вхідні броньовані двері -тепла підлога на кухні, лоджії і санвузлі Розвинута інфраструктура, дитячі та спортивні майданчики, басейн, спорт клуби, салони краси, супермаркети, аптеки, банки, цілодобове відео спостереження, закрита територія. Тут Ви знайдете все для Вашого комфорту. Перегляд в зручний для Вас час по домовленості! Дзвоніть (06*********57, (06*********90
Софіївська Борщагівка
Продам 1к квартиру з Ремонтом і меблями Баришівка 15
  • Однокімнатна
  • 35.4 м2
  • 5 / 5 пов.
29 999 $
Електро опалення Продажа від Власника без комісії Чиста своя квартира, Стан Відміний Зайшов і живеш, все для цього є Газ, вода, бойлер, кондиціонер, кухня,частково мебель Шафа-купе, шафа і тумба під взуття в коридорі ,вся мебель в ванній кімнаті залишаються!!! Квартира знаходиться по Вул Софіівська Ціна розумна, і справедлива
Баришівка
Продам 1к квартиру з ремонтом Ірпінь жк Ібіс Ірпінь 20
  • Однокімнатна
  • 37 м2
  • 2 / 3 пов.
42 800 $
Продам однокімнатну квартиру 37 кв.м. в Ірпені жк ібіс, з документами і ремонтом. Будинок повністю підключений, газ, електрика по тарифу як для населення, вода і каналізація міські. Будинок 5. Поверх 2 із 3. Кімната 16 кв.м., кухня 12 кв.м. с лоджією і панорамним вікном. Двоконтурний газовий котел, індивідуальне опалення. У ванної кімнаті тепла підлога. Прибудинкова в процесі. Договір куплі-продажу. Можливо під Є-оселю чи сертифікат. На території комплексу магазин, салон. Не далеко транспорт. Район з невисокими будинками, тихо, свіже повітря, в оточенні лісу і річки. До Київа 7 км. Все готово к заселенню. Дзвоніт відразу у відділ продажу. Пергляд в любий зручний час.
Ірпінь
Продам 1к квартиру з ремонтом в ЖК Атріум Ірпінь 15
  • Однокімнатна
  • 42 м2
  • 6 / 10 пов.
75 000 $
Продам 1-кімнатну квартиру в ЖК Атріум!Центр міста, вся інфраструктура в пішому доступі, школа, садочок в 200 метрах від будинку.Квартира розташована на комфортному 6 поверсі 10ти поверхового монолітно каркасного будинку.Фактична площа квартири 42 м2.Квартира світла, з великими панорамними вікнами.Укомплектована меблями та технікою.Індивідуальне ГАЗОВЕ опалення, тепла підлога в коридорі, кухні та санвузлі.Оформлення мінімальне, мито лише 2%.Розглянемо продаж за державними програмами.Телефонуйте, домовимось про перегляд в зручний для вас час!
Ірпінь
Продам 1к-квартиру з ремонтом ЖК Сакура Крюківщина Крюківщина 13
  • Однокімнатна
  • 38 м2
  • 8 / 9 пов.
57 900 $
Продаж однокімнатної квартири в ЖК Сакура в Крюківщині (Вишневе) Загальна площа 38.6м2 Поверх 8/9 Квартира з готовим ремонтом, меблями та технікою. Перепланована в студію, є окремо зона кухні, зона вітальні та зона спальні з двоспальним ліжком. Вбудована кухня з усією необхідною технікою: - холодильник - посудомийна машина - мікрохвильова піч - духова шафа - газова варильня поверхня В квартирі розведена тепла підлога, на стелі підсвітка Є кондиціонер Зона лоджії та балкон з якого відкривається гарний вид на дубову рощу. Поруч є все необхідне для комфортного життя: Сільпо, магазини, парк, зупинки транспорту та швидкий виїзд у Київ. Для перегляду пишіть або телефонуйте, Євгенія
Крюківщина
Продам 1к Квартиру з видом на Ліс Гостомель 7
  • Однокімнатна
  • 39 м2
  • 3 / 10 пов.
23 200 $
Класний варіант як для себе так і під інвестицію Продам квартиру Біля парку Щасливий Загальна площа 39 м2 Поверх комфортний 3\10 Будинок з ліфтом В квартирі всі комунікації центральні Опалення Індивідуальне Газове В квартирі зроблена чорнова штукатурка стін Кімнат з балконом Кухня з великою лоджією і панорамним вікном Вид з вікна на Ліс Комплекс знаходиться в класній локації поруч вся інфраструктура + швидкий виїзд на Київ Територія закрита + Охорона! За детальними питаннями по квартирі телефонуйте !! Без комісії для покупця. Ціна вказана з першим внеском 80%
Гостомель
Продам 1к квартиру з якісним ремоном в ЖК One House, без комісії! Вишневе 8
  • Однокімнатна
  • 44 м2
  • 8 / 17 пов.
72 000 $
Продам красиву 1к квартиру з якісним ремонтом в ЖК One House, м. Вишневе, вул. Ломоносова, 40. Документам (право власності) більше 3-ох років. Площа квартири 44 м2, площа кухні 16 м2. Поверх 8/17. Ціна 72 000$ без комісії для покупця. Квартира з євроремонтом, виконаним з якісних матеріалів. Є велика гардеробна кімната. В ванній кімнаті тепла підлога. Виведений кабель під інвертор. Дорогі міжкімнатні двері. Якісна кухня та сучасна фурнітура. Індивідуальне газове опалення (двухконтурний газовий котел). Лічильники на світло, газ, воду. ЖК бізнес класу. В будинку цілодобова охорона та відеоспостереження, рецепція. Підземний паркінг, два ліфти – пасажирський та вантажний. Поруч є все необхідне для комфортного життя:торговий комплекс «Cherry Mall», Sport Life, басейн, кінотеатр, ЖК Акварелі, ЖК Мофія, ресторани, магазини, аптеки, парк та багато іншого. Гарна транспортна розвʼязка. Можна єОселю, сертифікат. 09*********26 Юлія
Вишневе
Продам 1к квартиру ЖК Атлант академгородок ТЦ Лавина Коцюбинське 14
  • Однокімнатна
  • 44 м2
  • 10 / 23 пов.
70 000 $
Продам 2 комнатную квартиру ( євродвушка) по улице Доковская 10. Новый ЖК Атлант 44м2 10/23 этаж В квартире выполнен качественный ремонт. Жили сами. Все делали для собственного проживания. Кухня укомплектована всем необходимым. Подогревы полов. Балкон застеклен, интернет подключен. В доме при отключении света все работает. Просторный подъезд, два лифта. Инфраструктура: Прекрасное расположение дома, отличный двор, рядом автобусные остановки, торговый центр "Фора", парк, детская площадка, аптеки, салоны красоты. Близость к метро Академгородок ( машиной 5мин., маршруткой 745, 393 7мин., электричка до Святошино 7мин.). Также в пешей доступности (15мин.) самый большой торгово-развлекательный центр "Лавина Мол" Эпицентр, Ашан ( ездит бесплатная маршрутка). Рядом школа, садик как государственный так и частные, магазины, почта, парк, фитнесс зал и т.д. Одним словом вы получаете все необходимое для современной жизни, но при этом живёте в спокойном , уютном , чистом месте. Преимущество данного места проживания в том, что дом находится в окружении экологически чистого леса с озером, что даёт Вам возможность дышать чистым воздухом Вам и Вашим деткам. На все вопросы с удовольствием отвечу!
Коцюбинське
Перейти на сторінку
Все...