Софіївська Борщагівка
Київська
Искать объявления по всей области

Продаж приміщень в Софіївській Борщагівці

Фасадна ділянка 7,5 соток з будинком, світло та газ, Велика кільцева Софіївська Борщагівка 8
    370 000 $
    Унікальна пропозиція! Продаж фасадної ділянки 7,5 соток з будівлею на Великій кільцевій , Софіївська Борщагівка . Шукаєте вигідне місце для бізнесу? Цей об’єкт саме для вас! - Локація: фасад Великої кільцевої дороги – потужний автомобільний трафік та відмінна видимість. -Комунікації: світло та газ підведені. - Площа ділянки: 7,5 соток. -На території є будівля, яку можна використовувати під офіси, або легко перебудувати під будь-який комерційний проєкт. Ідеально підходить для: • автосервісу (СТО) • складу чи виробництва • магазину / салону • офісного центру чи іншого бізнесу -Вигідне інвестування - Широкі можливості для розвитку -Перспективне місце з високою ліквідністю
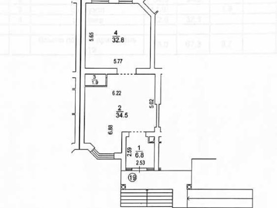
    Софіївська Борщагівка
      152 000 $
      Продаж комерційного фасадного приміщення у м. Вишневе (Софіївська Борщагівка), вул. Сонячна, 3. ЖК «Софія». Перший поверх, окремий вхід, великі панорамні вікна. Приміщення добре проглядається з вулиці, активний пішохідний трафік. Розташоване у сформованому торговому ряду. Будинок 2019 року. Ціна: 152 000 $ Площа — 76 м² Стеля — 3,3 м Потужність — 15 кВт Опалення — централізоване Є санвузол та витяжка Планування: два великі зали (34,5 м² та 32,8 м²), вхідна група, підсобне приміщення. Поруч школа, щільна житлова забудова, активні сусіди (салон краси, житлові під’їзди). Стабільний клієнтський потік. Підійде під: магазин, аптеку, кав’ярню, салон, шоурум, сервісний бізнес. По всім питанням вайбер/тг/whatsApp
      Софіївська Борщагівка
      Продажа Офиса СОФИЕВСКАЯ БОРЩАГОВКА ЖК Софиевская сфера инвестиция Софіївська Борщагівка 20
        195 000 $
        Пропонується на продаж ЦОКОЛЬНИЙ офіс в Софіївській Борщагівці у ЖК "Софіївська сфера", концепція затишного та безпечного місця для роботи з зоною для відпочинку, санвузлам та душем. Два офіси поруч, двері в двері по 150 м2, цокольний поверх, висота стелі 3,6 м - Водяний підігрів підлоги по всьому офісу - Тепловий насос - Заведено 15 кВт - Бойлер - Є розетка під дизельгенератор - Також є запасний вихід) Планування: кабінет директора, 2 дуже просторі Open Space, санвузол із душем, кухня загалом 25 робочих місць може комфортно розміститись Віддаленість від центру Києва- півгодини. Площа офісу 150 квадратних метрів. Розташований на цокольному поверсі. Офіс здається з меблями як на фото Встановлено систему вентиляції з контролем якості повітря, також присутній нагрів офісу завдяки повітрю, що забезечує оптимізацію витрат на опалення. Є оптоволокно Провайдери: LuxLite, EUROLINE Доступ 24/7 Є наземний паркінг Важливо! Офіс може працювати повністю автономно завдяки акумуляторним батареям з мережевим інвентором!! Код: A27003
        Софіївська Борщагівка
        Продажа коммерческого помещения, Софиевская Борщаговка, Без % Софіївська Борщагівка 20
          3 300 000 $
          Продажа коммерческого помещения, Софиевская Борщаговка, Без %Продаж комерційного приміщення, Софіївська Борщагівка, Без %Продаж 3-х поверхів загальна площа 3000 м² у діючому ТРЦ Софія City, Софіївська БорщагівкаНа першому поверсі вже працює оновлений супермаркет Фора, що створює стабільний потік відвідувачів. До продажу пропонується:— 2-й поверх — 1000 м²— 3-й поверх — 1000 м²— 4-й поверх — 1000 м²Можна придбати окремо або відразу всі три поверхи — загальна площа 3000 м².Ідеально підходить для:магазину, шоуруму, офісу, медичного центру, фітнес-клубу, салону краси, коворкінгу, навчального простору тощо.Основні переваги:— Високий трафік завдяки якорному орендарю (супермаркет Фора)— Престижна локація у діючому ТРЦ— Ліфт зручні сходи— Система пожежогасіння— Підземний паркінг— Приміщення готові до роботиПродаж без комісії#A18886
          Софіївська Борщагівка
          Продаж / Офіс / вул. Свободи, Софіївська Борщагівка Софіївська Борщагівка 20
            195 000 $
            Пропонується на продаж ЦОКОЛЬНИЙ офіс в Софіївській Борщагівці у ЖК "Софіївська сфера", концепція затишного та безпечного місця для роботи з зоною для відпочинку, санвузлам та душем. Два офіси поруч, двері в двері по 150 м2, цокольний поверх, висота стелі 3,6 м - Водяний підігрів підлоги по всьому офісу - Тепловий насос - Заведено 15 кВт - Бойлер - Є розетка під дизельгенератор - Також є запасний вихід) Планування: кабінет директора, 2 дуже просторі Open Space, санвузол із душем, кухня загалом 25 робочих місць може комфортно розміститись Віддаленість від центру Києва- півгодини. Площа офісу 150 квадратних метрів. Розташований на цокольному поверсі. Офіс здається з меблями як на фото Встановлено систему вентиляції з контролем якості повітря, також присутній нагрів офісу завдяки повітрю, що забезечує оптимізацію витрат на опалення. Є оптоволокно Провайдери: LuxLite, EUROLINE Доступ 24/7 Є наземний паркінг Важливо! Офіс може працювати повністю автономно завдяки акумуляторним батареям з мережевим інвентором!! Код: A27003
            Софіївська Борщагівка
            Перейти на сторінку