Київська
Київська
Искать объявления по всей области

Продаж квартир у Київській області

Продам 2хккв в зданому будинку ЖК Скандія! Бровари 8
  • Двокімнатна
  • 52 м2
  • 8 / 8 пов.
35 000 $
Продам 2хкімнатну квартиру в зданому будинку ЖК Скандії 5/6 поверхи 52 метрів, будинок заселено. Закрита охороняєма територія.
Бровари
Продам 2к 54,5м2 с документ тихая сторона ЖК Family2 Гатное Голосеево Гатне 13
  • Двокімнатна
  • 54.5 м2
  • 2 / 4 пов.
68 125 $
Продаю квартиру 54,5м2 с ЛУЧШЕЙ планировкой в тихом месте. ЖК комфорт-класса Family-2.! Если любите тишину и комфорт - это квартира для вас! В этом доме осталась последняя квартира такой планировки. Преимущества: • этаж 2/4 — комфортно и удобно • двусторонняя планировка – светлая и просторная • два балкона: панорамный с витражными окнами и открытый для уютных вечеров • индивидуальное отопление – полный контроль тепла и экономия • все коммуникации уже подведены • документы готовы к сделке Локация: ЖК Family-2 расположен в тихом и зелёном месте, но при этом рядом есть всё необходимое для комфортной жизни: магазины, школа, детский сад, транспортная развязка и всего 15 минут до Киева. Ремонт можно завершить за 2–3 месяца и заехать в абсолютно новое жильё. Звоните! Будем рады)
Гатне
Продам 2к 56м ЖК Грейт Great Дніпровська набережна Причальна ТОП ціна Київ 13
  • Однокімнатна
  • 56 м2
  • 21 / 26 пов.
73 000 $
Продається велика 1-к квартира, легко переплановується 2к в ЖК "Great", Позняки, вул. Причальна, Дарницкий район, метро Осокорки. 

 Краща ціна за м2 До вашої уваги 1 кімнатна видова квартира чудового планування, площею 55, 4 м.кв. житлова 17, 02 м.кв. кухня 18, 97 м.кв. на 21 поверсі 26 поверхового будинку Nº11 (здача в експлуатацію 4 квартал 2025 року).

 Будинок класу комфорт, монолітно-каркасна технологія будівництва, стіни цегляні утеплення мінеральною ватою.
Великі панорамні вікна з видом на місто.
У комплексі передбачено все для комфортного життя: автономне опалення, ліфти в підземний паркінг, гостьовий паркінг, (також присутні електрозарядки для автомобілів), велодоріжки, мебльовані вхідні групи з дизайнерським оформленням та консьєрж-сервісом, система контролю доступу і цілодобова
охорона.

ЖК розташований на березі Дніпра, в 2 хвилинах пішки від сучасного парку, пляжу та яхт-клубу. В самому житловому комплексі заплановано будівництво школи, садочка, торгового та бізнес центрів. Також в ЖК планується відкриття Сільпо (у бізнес центрі).

 Поруч з комплексом розвинута транспортна розв'язка, що надає можливість швидко дістатись до центру міста (10-15 хвилин на авто). За 15 хвилин ходи розташоване метро Осокорки.

У близькості від ЖК розташовані:

- Великий ТРЦ River Mall з магазинами, супермаркетом Сільпо, ресторанами, зонами відпочинку (15 хв пішки)
- Дитячі садки (8 хв на авто) та школи (5 хв на авто);
- Мегамаркети (5 хвилин пішки) та гіпермаркет (10 хвилин на авто);
- Ресторани (5-8 хвилин на авто);
- Медичні установи (5 хвилин на авто).

 Телефонуйте
Київ, Дарницький
Продам 2к 59,18м2 документами ЖК Family2 Гатное Крюковщина Теремки Гатне 9
  • Двокімнатна
  • 59.18 м2
  • 4 / 7 пов.
53 262 $
Продаю 2-к квартиру 59,18м2 с панорамным застеклённым балконом в тихом месте. Преимущества планировки: • место под гардероб • просторные комнаты и санузел • свободная планировка • индивидуальное отопление • все коммуникации подведены Закрытая охраняемая территория формата «город в городе». Документы готовы к сделке. Ремонт сделаем за 2-3 мес под Вас. Есть варианты как в уже заселённом доме, так и в доме на этапе строительства - можно рассматривать для инвестиций или для себя.
Гатне
Продам 2к 62м2 ЖК family 2 Гатне Магемаркет Теремки Голосеево Ремонт Гатне 10
  • Двокімнатна
  • 62.66 м2
  • 4 / 7 пов.
53 261 $
Продам просторную 2-комнатную квартиру 62,6 м² - $850/м². ЖК комфорт-класса «Family-2» — современный комплекс клубного формата всего в 7 минутах от метро Теремки. От застройщика. Вы получаете надежный кирпичный дом с утеплением, просторную квартиру с балконом и лоджией, свободную планировку, индивидуальное отопление и все необходимые коммуникации. Это комфорт и удобство в одном месте: закрытая охраняемая территория, видеонаблюдение, спокойный двор без лишнего шума. Рядом всё для жизни — школа, садик, рынок, кафе, магазины и удобная транспортная развязка. ЖК «Family-2» — это сочетание уюта, безопасности и выгодной цены. Отличный вариант для комфортного проживания или выгодной инвестиции.
Гатне
Продам 2К 63м  Можна Є-ОСЕЛЯ, Сертифікат ЖК Львівський Затишок Софіївська Борщагівка 15
  • Двокімнатна
  • 63 м2
  • 2 / 4 пов.
62 000 $
Велика двокімнатна квартира Будинок з документами, повністю зданий і підключений Квартира знаходиться в зданому будинку і виходить на зелену алею Кращий варіант для великої сім'ї ПОВНЕ ОФОРМЛЕННЯ квартири 10500ГРН з усіма витратами Квартира знаходиться на першому, другому, третьому і четвертому поверхах - різні вигляд з вікна В квартирі зроблено максимальне наповнення по роботам При Вашому заселенні в квартиру будуть: - Броньовані вхідні металеві двері 1.5 МДФ накладками ззовні; - Стяжка на підлозі лазерна і штукатурка на стінах з маяками повністю по всій квартирі з кутиками; - Всі стіни квартири з сусідами і з вулицею – ЦЕГЛА 380см і утеплення пінопласт/мінвата 130см; - Перекриття між поверхами залізо-бетонний моноліт товщиною 200см + лазерна стяжка 7см; - Висота потолка зі стяжкою в готовому вигляді 2.76см; - Панорамні пластикові вікна ( 2 камери склопакет, 5 камер профіль); - ЕЛЕКТРИКА ПОВНІСТЮ РОЗВЕДЕНА ПО КВАРТИРІ; - ЛІЧИЛЬНИКИ газ/світло/вода встановлені і опломбовані; - Котел “Hi therm” Optimus 2- контурний і радіатори металеві стальні; - ТЕПЛА ПІДЛОГА ВИВЕДЕНА , гаряча та холодна вода в санвузлі і на кухні; - Інтернет, кабельне телебачення та домофон – заведені в квартиру. ТЕТЯНА Супер пропозиція Без додаткових оплат
Софіївська Борщагівка
Продам 2к 63м2 Данченка Сергія Новомостицько-Замковецький Ліпінка Київ 10
  • Двокімнатна
  • 63 м2
  • 6 / 17 пов.
72 000 $
Двохкімнатна 63кв.м, розташована по вул. Данченка 34, на 6 поверсі, чудовий вид з вікна, зроблена стяжка підлоги, штукатурка на стінах, проводка. Транспортна роз'язка розвинена: курсують маршрутки, автобуси, тролейбуси до метро "Почайна", "Мінська", "Лук'янівська", "Нивки". В комплексі є магазини, аптеки, кафе, фітнес-клуб, медична лабораторія, салони краси, перукарні. В пішій доступності супермаркет Novus, ТРЦ Ретровіль. В найближчій перспективі - станція метро в пішій доступності.
Київ, Подільський
Продам 2к 64 м2 Олеся Гончара 74А Золотые Ворота Шевченковский Центр Київ 20
  • Двокімнатна
  • 64 м2
  • 3 / 7 пов.
250 000 $
#30258 ПРОПОНУЄМО ДО ПРОДАЖУ КВАРТИРУ НА ВУЛИЦІ, ЯКУ НАЗИВАЮТЬ “АРХІТЕКТУРНИМ МУЗЕЄМ ПІД ВІДКРИТИМ НЕБОМ” — НА ВУЛИЦІ ОЛЕСЯ ГОНЧАРА, У САМОМУ СЕРЦІ ІСТОРИЧНОГО КИЄВА Будинок у стилі модерн розташований за адресою вул. Олеся Гончара, 74-А, у Шевченківському районі столиці. Це пам’ятка архітектури, зведена у 1909 році за проєктом Павла Федотовича Альошина — видатного українського архітектора. Будівля розташована в центрі міста, поруч із метро «Золоті Ворота». Величний фасад, у парадному збережено ліпнину, старовинний ліфтовий хол, висота стелі — 4 м. Будинок цегляний, із залізобетонними перекриттями. Квартира площею 64 м² розташована на 3 поверсі. Абсолютно нова всередині, але з великою історією ззовні. Планування: • простора вітальня, поєднана з кухнею; • окрема спальня з балконом і робочим кабінетом; • ванна кімната з душем. Подаруйте собі можливість жити в серці Києва й щодня відчувати себе мандрівником. Поруч — десятки кав’ярень і ресторанів, книгарні, музеї, затишні подвір’я та вся міська атмосфера в кількох кроках від дому. Щоденне натхнення історичним Києвом. Запрошуємо на перегляд.
Київ, Шевченківський
Продам 2к 70м2 по 565$/м2 в ЖК Гостомель Резиденс! Біля озера Гостомель 20
  • Двокімнатна
  • 70 м2
  • 7 / 8 пов.
39 500 $
Продам 2-кімнатну квартиру з терасою біля озера, Гостомель — 70 м², всього - $39 500! Ціна за м2 - 565$)) Сертифікат та державні програми - Так! Квартира з документами, оформлення через нотаріуса! Простора світла квартира в новому будинку з гарним плануванням та великою терасою. Площа — 70 м², поверх 7 із чудовим видом! Зроблена розводка опалення, встановленні металеві радіатори, стяжка підлоги та інше. * Закрита територія * Охорона та відеоспостереження * Тиха зелена зона, поруч озеро * Зручний доїзд до Києва Ідеально для комфортного життя або під здачу в оренду. Телефонуйте — відповім на всі запитання та домовимось про перегляд та купівлю квартири! Є відеоогляд квартири.
Гостомель
Продам 2к 86 м2 ЖК TARYAN TOWERS Иоанна Павла II Лумумбы Печерск Центр Київ 20
  • Двокімнатна
  • 86 м2
  • 7 / 34 пов.
470 000 $
3к квартира вул. Іоанна Павла ІІ, 12, Жк Taryan Towers 86м2 У квартирі виконаний високоякісний дизайнерський ремонт Планування квартири : - Велика кухня вітальня - Окрема майстер спальня із власним санвузлом та гардеробною - Кабінет - Тераса - Гостьовий санвузол Комплекс складається із трьох Веж, кожна має свою концепцію на даху. У першій вежі буде розташований панорамний ресторан з краєвидами на Київ, на даху другої вежі - парк просто неба, а на даху третьої - кінотеатр, планетарій та музей майбутнього із зоною інновацій та розваг. Всі Вежі з'єднано скляними мостами, для прогулянок на висоті пташиного польоту. У стілобатній частині - розміститься галерея бутиків, супермаркет преміум-класу, кафе, центр дитячого розвитку, лайф-стайл курорт Tsarsky: спортивна зала, зона спа і відпочинку, 2 басейни, з відкритою зоною шезлонгів та інші об'єкти інфраструктури. Taryan Towers — це житловий комплекс бізнес-класу, друга вежа якого вже в експлуатації. Всього в комплексі передбачено три багатоповерхівки. Комплекс задовольнить навіть найвибагливіших мешканців, завдяки власній інфраструктурі та розкішному дизайну. Територію навколо комплексу прикрашатиме стильний ландшафтний дизайн та невеликі басейни. Для автомобілів мешканців буде обладнано підземний паркінг на 670 машиномісць. Навколо житлового комплексу Taryan Towers розташована розвинута інфраструктура, яка забезпечить мешканцям всі необхідні сервіси для комфортного та якісного життя. У найближчому оточенні мешканцям будуть доступні магазини, ресторани, банки, освітні установи, парки, зелені зони і т.д. #25018
Київ, Печерський
Продам 2к, Діброва . Єоселя Київ 2
  • Двокімнатна
  • 63 м2
  • 21 / 26 пов.
78 000 $
ЖК Діброва Парк, Dibrova Park Введений ,ключі на руках , право власності Будинок 4 Секція А Планування 2с3 Метраж 63 Поверх 21 Ціна 78000+ податки від оцінки . Єоселя готові розглянути . Вибір квартир в різних будинках . —Візьму Вашу квартиру в Діброва Парк на реалізацію , можливий продаж як по переуступці так і з правом власності .
Київ, Подільський
  • Двокімнатна
  • 72 м2
  • 19 / 23 пов.
85 000 $
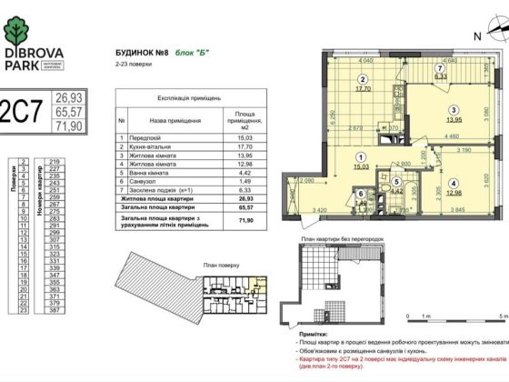
ЖК Діброва Парк, Dibrova Park Будинок 9 введено . Планування 2с7 Поверх 19 Ціна 85000 Південно-східна сторона . Вид у двір на алеї Зручне планування з просторими кімнатами, функціональний коридор під шафи. Багато варіантів , звертайтесь. також запрошую на перегляд -підберем Вам варіант .
Київ, Подільський
Продам 2к дизайнерська квартира ЖК Файна Таун вул Салютна 2/24 Нивки Київ 19
  • Двокімнатна
  • 62 м2
  • 2 / 8 пов.
220 000 $
Продаж чудової двокімнатної квартири в престижному комплексі Файна Таун, надійного забудовника КАН Девелопмент, квартира з якісним ремонтом, повністю укомплектована меблями та побутовою технікою. ЖК побудований за принципом місто в місті. На території : дитячий садок, школа , фітнес клуб, футбольне поле, тенісний корт, спортивні майданчики з тренажерами, барбекю зони, басейн Закрита територія комплексу, цілодобова охорона.
Київ, Шевченківський
Продам 2к дизайнерський ремонт ЖК Місто квітів вул Тираспольська 60 Київ 10
  • Двокімнатна
  • 55 м2
  • 16 / 16 пов.
109 999 $
ЖК Місто квітів вул.Тираспольська,58 ЖК розташований у Подільському районі Києва, поруч із Сирецьким дендропарком та парком "Дубки". Квартира після ремонту. В ремонті використано якісні матеріали. Повністю мебльована, світла. Дизайнерський ремонт, меблі, техніка провідних європейських брендів. Дві (окремі) кімнати, простора вітальня з кухнею-studio, з побутовою технікою з меблями.Все продумано для комфортного життя. Вікна у двір на південь/південний захід. Найближча ст. м. Сирець о 10 хв. ходьби. Зручна транспортна розв'язка. Тихий, доглянутий, зачинений двір. Охорона комплексу 24/7, консьєрж 24/7. Добропорядні сусіди. Документам понад 3 роки.
Київ, Подільський
Продам 2к Коноплянська 22а Navigator 2 Оболонь Навігатор Караван Київ 10
  • Двокімнатна
  • 72.4 м2
  • 22 / 25 пов.
77 500 $
Ремонт від забудовника, шпалери, розведена електрика, двері та якісні вікна. Санвузол без оздоблення з сантехнікою. Вдале планування, кімнати та санвузол роздільні, велика лоджія. Поблизу станція метро Оболонь, вся потрібна інфраструктура. Чудова пропозиція як для життя так і під оренду. Житловий комплекс ЖК «NAVIGATOR 2» розташований у безпосередній близькості від метро та ТЦ Караван. Є інші варіанти та поверхи
Київ, Оболонський
Продам 2к.кв. 56 м2, БЕЗ КОМІСІЇ, ЖК Welcome Home  Стеценка 75-К Київ 20
  • Двокімнатна
  • 56 м2
  • 2 / 6 пов.
82 000 $
БЕЗ КОМІСІЇ рієлтору ПРОДАМ гарну, ДВОКІМНАТНУ квартиру, в м.Києві, в новому ЖК "Welcome Home" (комплекс закритого типу), в Святошинскому р-ні, вул. Стеценка 75-К (8 будинок). Один власник, документам більше 3 років (Договір купівлі-продажу). Причина продажу - обмін на більшу площу. ПРО ЖК: Забудовник з нормальною репутацією (будівництво законне). На території ЖК вже є 12 будинків + садочок, які повністю побудовані і здані в експлуатацію (ніяких будівництв на цій території більше небуде). П'ять діючих шлагбаумів (в'їзд по мітці або з пульта), цілодобова охорона, відеоспостереження, контроль дисципліни. Вхід на територію лише по магнітним ключам або через охорону. В ЖК встановлено автономну котельню та дизельний генератор (навіть при повному блекауті вода та опалення не зникають). Доглянуті та озеленені прилеглі до будинків території, всюди гарні клумби, освітлення, ліхтарики, лавки, гойдалки для романтичного відпочинку, пішохідні доріжки, дитячі та спортивні майданчики, футбольне поле, зона BBQ, салони краси, кофейні, продуктові магазини, магазин квітів, ательє, поштомати, відділення пошти. Є пандуси і зручні спуски для крісел колесних, колясок та велосипедів. Є гостьова парковка та зарядки для електрокарів. Це дійсно зручний комплекс для проживання. Тут чудове розташування, через дорогу є абсолютно все: ТРЦ "Лавіна", "Новус", "Ашан", "Епіцентр", "Egersund Seafood", СТО, готелі, сауни, басейни і багато іншого. До метро "Академ", "Сирець" їхати 15 хвилин, багато автобусів, маршруток, в т.ч. є безкоштовні автобуси. ПРО БУДИНОК: Саме цей будинок заселений на 100%, то ж ніхто вже не турбуватиме вас ремонтами (збудований в 2019 і зданий в експлуатацію в 2020 році). Будинок розташований в самому центрі ЖК. Вікна виходять у тихий двір (шумна дорога в 200 метрах). У кожному підїзді є грузовий ліфт. На поверсі всього 4 квартири, що є розкішшю в наш час. Стіни - з/б панелі, з утепленням пінополістіролом та мінватою. Перекриття - з/б. Підвал - моноліт. В будинках цього ЖК є підвальні приміщення, які використовуються, як укриття. В підвалі також є безліч комірок (їх можна отримати по Договору купівлі-продажу або Договору оренди). ПРО КВАРТИРУ: Квартира в ідеальному стані, з капітальним ремонтом, який робили для себе, а не для продажу. Дуже тепла, бо утеплена і ззовні і всередині (при вимкненому опаленні взимку менше 19 градусів не бувало). 2 поверх, з 6-ти можливих. Висота стель h= 2,65 м.. Загальна площа= 56,4 м2; кімнати роздільні= 17,4 м2 (спальня з залом) + 11,5 м2 (дитяча); кухня= 10,2 м2; коридор= 8,4 м2; санвузол= 4,1 м2; лоджія засклена (підлога утеплена)= 4,8 м2. Квартира двостороння (в середині будинку). Зовнішня стіна будинку утеплена з підвалу і по останній поверх. Мідна проводка, протипожежні кабеля, виведений кабель для відеоспостереження (в коридорі квартири) та охоронної сигналізації, розподільчий щиток на електрику, зроблені виводи під резервне живлення (що врятує вас від блекаутів). Будинок новий, то ж і сантехнічні труби, центральні
Київ, Святошинський
Продам 2к кв, 75м2,  с. Чубинське вул. Яблунева Чубинське 20
  • Двокімнатна
  • 75 м2
  • 7 / 7 пов.
65 000 $
Продам 2к квартиру с. Чубинське вул. Яблунева, з ремонтом, простора вітальня, є ще в антресолі 2й поверх ігрова Кімната. Встановлено 2ва кондиціонери ( спліт система), Індивідуальне опалення свій електро котел. Підлога ламінат, просторий с/в - кафель. Поряд з будинком супермаркет Фора, дитячий садок, зупинка транспорта на м. Київ, гарні паркові місця для прогулянок. Ціна 65000дол. + комісія Агентства
Чубинське
Продам 2к кв біля озера на вул Червоної калини 3 ( Маяковського) Київ 7
  • Двокімнатна
  • 56 м2
  • 6 / 16 пов.
54 000 $
Пропонується до продажу затишна та світла 2-кімнатна квартира (56 м², кухня 8 м²) з вікнами, що виходять на зелену зону, за адресою: Проспект Червоної Калини (колишній Маяковського), 3. Квартира розташована на комфортному 6-му поверсі 16-поверхового будинку. Будинок знаходиться на самому початку району Троєщина, що забезпечує швидший виїзд та кращу транспортну логістику. Вікна квартири виходять на парк з озером, гарантуючи тишу та затишок. Це ідеальне місце для щоденних прогулянок та відпочинку. У будинку функціонують два ліфти, під'їзд доглянутий. Локація має все необхідне для комфортного сімейного життя: Поруч розташовані дитячий садок, школа, поліклініка та аптека. У пішій доступності безліч магазинів, кіосків, супермаркети, ТРЦ, ринок, відділення банку та пошти. Окрім парку з озером, є ресторани, кафе, дитячі майданчики та бювет. Поруч знаходиться зупинка громадського транспорту. Це ідеальний вибір для тих, хто мріє про тихе життя біля парку, не відмовляючись від переваг розвиненої міської інфраструктури. Бажаєте насолоджуватися видом на парк? Телефонуйте, щоб домовитись про перегляд!
Київ, Деснянський
Продам  2к кв на вул Княжий Затон 2/30 біля Позняки Держпрограми-так Київ 20
  • Двокімнатна
  • 75 м2
  • 16 / 16 пов.
96 000 $
Пропонується до продажу простора та функціональна 2-кімнатна квартира (75 м², кухня-вітальня 19 м²) у надійному цегляному будинку монолітно-каркасної технології будівництва. Квартира розташована на 16-му поверсі 16-поверхового будинку, що гарантує відсутність шуму зверху та чудові краєвиди. Вікна виходять на дві сторони. Велика кухня-вітальня (19 м²), яка легко перетворюється на окрему кухню з обідньою зоною та спальню за допомогою функціональної перегородки. В квартирі два санвузли: гостьовий (туалет + душова кабіна) та приватний, розташований в окремій кімнаті (наразі там ванна). На підлозі — дубовий паркет та плитка. Балкон, на який є вихід з кухні, обшитий дерев'яною вагонкою. Посудомийна машина, варильна панель, духова шафа, мікрохвильова піч. Встановлено 2 шафи-купе та 2 кондиціонери. Взимку дуже тепло та економно завдяки встановленому лічильнику тепла. Розташування та Інфраструктура: До станції метро «Позняки» лише 6 хвилин пішки! Поруч зручна транспортна розв'язка — два мости: Північний та Дарницький. Охайне парадне з консьєржем, нові ліфти. Тихе, зелене подвір'я. Перед будинком розташований великий, охоронюваний паркінг. Поруч вся необхідна інфраструктура — школи, садочки, безліч магазинів, а також парки та озера для відпочинку. Ця квартира — ідеальний вибір для тих, хто шукає великий, якісний та повністю укомплектований простір у цегляному будинку біля метро. Бажаєте побачити цю ексклюзивну пропозицію? Телефонуйте для організації перегляду!
Київ, Дарницький
Продам 2к кв.  Після  ремонту!  68м2 Бориспіль 20
  • Двокімнатна
  • 68 м2
  • 7 / 20 пов.
68 000 $
Продам 2к квартиру вул. Київський Шлях 95, 68м2, квартира після ремонту, робили для себе, ніхто ще не проживав, якісні матеріали,- плитка, електрика, сантехніка, двері. Стеля- зроблено шумо ізоляція( мінвата). Підігрів підлоги в с/в з ванною та в душевій. Виводи під 2ва кондиціонери, балкон засклений. 7й поверх, 20ти поверхівки. Будинок цегляний, утеплений 10см мінвати. 3ри ліфти. У дворі гарний дитячий майданчик. Центр міста. Поряд 4та школа, дитячий садок, супермаркет, зупинка транспорта на м. Київ. Ціна 68000дол торг, + комісія Агентства
Бориспіль
Перейти на сторінку
Все...