Київ
Київська
Искать объявления по всей области

Продаж квартир в Києві

Продаж 2к квартири | 65.70 м²| ЖК Володимирський Київ 15
  • Двокімнатна
  • 65.7 м2
  • 24 / 25 пов.
213 500 $
ЖК Володимирський будинок бізнес-класу!Повністю нова панорамна квартира в центрі Київа площею 65,7 квадратних метрів, з балкону вигляд на Палац України.Сучасний ремонт з якісними меблями та преміальною технікою..Столешня та робоча зона з натурального каменю, корпусні меблі з італійського матеріалу Cleaf, німецька фурнітура Jung, німецька вологостійка підлога Classen, сантехніка теж німецькі бренди Grohe та Geberit, вся кухонна техніка Siemens(духовка, мікрохвильова, посудомийка, індукція), холодильник Libher, 2 телевізори Samsung, хозблок Bosch(пральна, сушильна, бойлер).В квартирі є велика гардеробна кімната.#2320На будинок встановлено генератор.
Київ, Голосіївський
Продаж 2к квартири | 66м² | ЖК Nordicа Residence 3 черга Київ 5
  • Двокімнатна
  • 66 м2
  • 14 / 14 пов.
108 530 $
ЖК Nordicа Residence, 3 черга — комфорт бізнес-класу в самому преміальному районі Києва.Квартири в третій черзі Nordicа Residence — це поєднання сучасної архітектури, продуманих планувань і спокійного життя в самому центрі міста. Комплекс створений у скандинавському стилі з акцентом на комфорт, функціональність та естетику.Переваги комплексу:- закрита територія з цілодобовою охороною та відеоспостереженням- концепція двору без авто — безпечно для дітей і зручно для відпочинку- сучасні дитячі та спортивні майданчики- ландшафтний дизайн, зони для прогулянок і релаксу- підземний та гостьовий паркінгКвартири:- різноманітні планування: від компактних 1-кімнатних до просторих сімейних варіантів- великі панорамні вікна, багато природного світла- високі стелі- можливість вільного планування- якісні будівельні матеріали та сучасні інженерні рішенняЛокація:- Поруч школи, дитячі садки, магазини, кафе та вся необхідна інфраструктура для комфортного життя.Nordicа Residence, 3 черга — ідеальний вибір як для власного проживання, так і для інвестиції.- Сусіди ЖК Новопечерські Липки- Метро ЗвіринецькаПродаж від офіційного представника забудовника БЕЗ КОМІСІЇ#2560
Київ, Печерський
Продаж 2к квартири 67.68м2 ЖК Great Київ 4
  • Двокімнатна
  • 67.68 м2
  • 23 / 26 пов.
84 600 $
Продається 2-х кімнатна квартира в ЖК "Great" на Дніпровській Набережній. Загальна площа 67.68м2, є дві спальні кімнати, велика кухня-вітальня, два санвузла та засклена лоджія. Квартира на 23 поверсі. Знаходиться в 11 будинку, який вже збудований і вводиться в експлуатацію в 2025 році. Концепція ЖК Great це «місто в місті» – всередині комплексу буде все необхідне для комфортного життя: торговий і офісний комплекси, магазини і кафе на перших поверхах, два дитсадки і початкова школа, міні-стадіон і паркова зона з ландшафтним дизайном і численними зонами відпочинку. Також поруч є яхт-клуб і пляж Березняки. У 3 хвилинах на авто від комплексу знаходиться ТРЦ River Mall. Купити продукти поблизу можна пройшовши 5 хвилин до NOVUS, проїхавши 4 хвилини до «Сільпо» або 5 хвилин до «Білли». Для великих закупівель в 10-15 хвилинах їзди на авто гіпермаркет Metro CashCarry. Переуступка Перегляд за домовленістю
Київ, Печерський
Продаж 2к квартири|68.60 м²| Білицька, Поділ Київ 12
  • Двокімнатна
  • 68.6 м2
  • 13 / 20 пов.
100 000 $
2 кімнатна квартира з ремонтом по вул. Білицька, 18. Вся техніка (посудомийна, пральна машини, бойлер, холодильник, плита та духовка) та меблі лишаються. 2 оздоблені балкони із шафами та меблями. Поверх закритий. Будинок із закритою територією , цілодобово працює охоронець, є відеонагляд території та генератор. У найближчий час поряд буде метро. Бонусом надається комора. З вікон відкривається гарний краєвид, інших забудов не буде. #2401
Київ, Подільський
Продаж 2к квартири |69 м²| ЖК Варшавський 3 Київ 5
  • Двокімнатна
  • 69 м2
  • 19 / 23 пов.
91 500 $
Продаж двокімнатної квартири в ЖК Варшавський 3.Площа 68,5Поверх 19Будинок 10.3Будинок Повністю збудований, запланована здача в експлуатацію 1 квартал 2026У будинку є генераторПродаж з переуступки.#2461
Київ, Подільський
Продаж 2к квартири 69м2, ЖК Rybalsky, Подільський район Київ 16
  • Двокімнатна
  • 69 м2
  • 4 / 9 пов.
110 000 $
Продаж 2-кімнатної квартири в ЖК бізнес класу Rybalsky Подільський район, вул. Набережно-Рибальська Продажа 2к квартиры 69м2, ЖК Rybalsky, Подольский район S = 69,46 м2 4/9 поверх Планування: - передпокій - 2 лоджіі - кухня-їдальня з видом на зелений внутрішній двір. - спальня - ванна кімната Продаж по перепоступці, здача будинку в 2024 році. RybalSky" - це сучасний житловий район з цікавим ландшафтним дизайном, і за задумом творців, втілює ідею комфортного життя біля води. У процесі створення водний канал довжиною 330 м, з виходом у Дніпро. На території ЖК є: кавярні, салони краси, аптека, продуктові магазини, школа, дитячий садок, спортивні та освітні студії, у пішій доступності фітнес-центр "5 елемент". Завдяки низькій поверховості будинків, вид на місто та річку буде доступний усім. Внутрішні дворики обладнані майданчиками для дітей та спортивними секціями. Завдяки охоронній системі та самій концепції безпеки ЖК, можна спокійно відпускати дітей на прогулянку самостійно. Концепція - двори без автомобілів. Консьєрж-сервіс 24/7 та технічний нагляд Система "розумний дім". Мобільний додаток "SFERA living system" (це по суті онлайн ЖЕК плюс додаткові послуги). Безпека: цілодобове відеоспостереження, система електронних перепусток, картковий доступ до ліфтів. Зручна дорожня розв'язка. 10 хвилин до станції метро Поштова площа, Контрактова площа. #3 1 5 9 1 7 3 5 2 5 8 9
Київ, Подільський
Продаж 2к квартири 70,6 м² з готовим ремонтом у Файна Таун Київ 20
  • Двокімнатна
  • 70.6 м2
  • 2 / 7 пов.
249 924 $
Пропонується сучасна, абсолютно нова та повністю готова до заселення квартира — заїжджайте та живіть із першого дня! Це простір, створений із любов’ю до комфорту та сучасної естетики. Продуманий дизайн-проєкт та ергономічне планування включають простору кухню-вітальню для затишних вечорів у колі сім’ї чи друзів, майстер-спальню з власним санвузлом, дитячу кімнату, гардероб та гостьовий санвузол із пральною зоною. Квартира розташована у центральній частині комплексу та має чудовий краєвид на променадну алею. Ремонт виконаний за професійним дизайн-проєктом із використанням високоякісних преміальних матеріалів. Усі меблеві конструкції виконані по індивідуальному замовленню, встановлена керамічна плитка Porcelanosa, тепла підлога у санвузлах, тепла стіна для сушіння рушників, система сушіння взуття та продумані сценарії освітлення, що легко створюють потрібну атмосферу. Квартира обладнана всім необхідним для комфортного проживання, якісною сантехнікою провідних світових брендів - Volle та Geberit, та технікою Siemens, Whirpool, Bosch, Liebherr — щоб ваше життя було максимально комфортним з першого дня. Додатковою перевагою є встановлена енергонезалежна система на 2400 Wh, яка забезпечує безперебійне світлопостачання у будь-якій ситуації. Це простір, де кожна деталь продумана, а стиль поєднується з практичністю, красою та функціональністю! Запрошуємо Вас на перегляд! KAN Market Загальна площа: 70,6 м² Кухня - вітальня: 25 м² Спальні: 11,4 м² та 11,1 м² Квартира розташована на 2 поверсі Стан: з ремонтом Ціна – 3 540 $/м² Загальна вартість - $ 249 924 Концепція Живого Кварталу Файна Таун - це місто в місті, цілодобова охорона, відеонагляд, закрита територія комплексу та концепція "двір без машин". На території чудово розвинена інфраструктура: різні спортивні зони, зона BBQ, Гімназія А + та торговий центр. Вже відкрито два літні басейни для дорослих та дітей. Серце комплексу – це наш Променад – повністю безавтомобільна, пішохідна алея протяжністю три кілометри з велодоріжкою, різноманітними дитячими зонами, площею з озером, арт-об’єктами та навіть пішохідним мостиком. До найближчих станцій метро Нивки їхати 5 хв на машині і громадському транспорті, а до центру 15 хв. З любов‘ю, Ваш KANMarket
Київ, Шевченківський
Продаж 2к квартири 70.7 м в зданому будинку ЖК Лакі Ленд Київ 7
  • Двокімнатна
  • 70.7 м2
  • 8 / 13 пов.
77 000 $
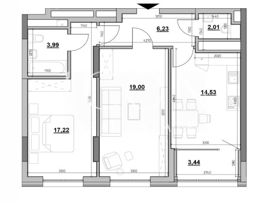
Пропонується на продаж 2к квартира на 8 поверсі (краєвид на місто) площею 70.7 м в ЖК Лакі Ленд Lucky Land. Будинок 3 Секція 1 Простора кухня-вітальня 20.17 м та засклена лоджія 2.76 м 1 Спальня кімната 18.62 м 2 Спальня кімната 14.80 м Передпокій 4.65 м Ванна кімната 4.26 м Санвузол 3.10 м Монолітно-каркасна технологія будівництва Утеплений будинок Комплекс із закритою територією та охороною Поряд ТРЦ Лавіна, Сільпо та ін. Зупинка наземного транспорту м.Академмістечко 7 хв Перегляди можливі за попередньою домовленністю
Київ, Святошинський
Продаж 2к квартири 70 м2 вул Академіка Булаховського 5г Академмістечко Київ 20
  • Двокімнатна
  • 70 м2
  • 13 / 15 пов.
87 000 $
Продаж 2-кімнатної квартири в цегляному будинку в Святошинському р-н Новобіличі за адресою вул. Академіка Булаховського 5г (15 хвилин пішки до метро Академмістечко). Ціна: 87 000 $ Загальна площа: 70 м² Житлова : 37.9 м² Кухня: 11.7 м² Висота стелі : 2.75 м Поверх: 13/15 Тип стін: цегляний (монолітно-каркасний від Київміськбуду) Клас житла: комфорт Планування: роздільне Санвузол: роздільний Ремонт: капітальний ремонт Опис квартири: Світла, простора, дуже тепла Найкраще планування з оптимальною площею Висока стеля 2.75 м Дві засклені лоджії Повністю мебльована та обладнана технікою (холодильник, варильна панель, духова шафа, пральна машина, 3 кондиціонери) Є окрема кладовка (2 м²) біля квартири. Додаткове утеплення стін (10 см пінопласту) Вид з вікон на південь, захід сонця, озеро та ліс Чемні сусіди Комфорт та комунікації: Кондиціонер, ванна Консьєрж, ліфт (у тому числі вантажний) Централізоване опалення Асфальтований під’їзд, вивіз відходів Завжди достатньо місця для паркування біля будинку Інфраструктура: Будинок у центрі району, поруч уся необхідна інфраструктура У сусідньому будинку – бомбосховище Поруч супермаркети, ярмарок, пошта, зупинки маршруток У пішій доступності: школи, дитячі садки, аптеки, лікарня, поліклініка, ТРЦ, відділення банку, парк і зелена зона Неподалік – ліс та озеро Не втратьте нагоду придбати простору квартиру з ремонтом у зручному районі Києва – телефонуйте вже сьогодні, щоб домовитися про перегляд!
Київ, Святошинський
продаж 2к квартири, 70 м2, вул.О.Мишуги 2, метро Позняки Київ 6
  • Двокімнатна
  • 70.6 м2
  • 7 / 23 пов.
105 000 $
АН Roomy Продається простора квартира у Києві вул. Олександра Мишуги, 2 (метро Позняки) Квартира площею 70 м² розташована на 7 поверсі будинку 2009 року побудови. • Виконаний базовий ремонт • Без меблів — можливість облаштувати простір під власний стиль Будинок розташований у зручному районі: поруч супермаркет «Піраміда», Епіцентр, метро та громадський транспорт у пішій доступності. Ідеальний варіант як для особистого проживання, так і під орендний бізнес
Київ, Дарницький
Продаж 2к квартири 70м2 з ремонтом в ЖК 'Причал 8' Київ 20
  • Двокімнатна
  • 70 м2
  • 6 / 25 пов.
110 000 $
Пропонується простора 2-кімнатна квартира у сучасному житловому комплексі “Причал 8”. Будинок введено в експлуатацію у 2021 році. Можливе придбання за державними програмами (єОселя, єВідновлення). Параметри квартири: • Поверх: 6/25 • Загальна площа — 70 м² • Кухня — 15 м² • Панорамні вікна • Якісний ремонт • Продумане функціональне планування • Світла, затишна, готова до проживання Переваги ЖК “Причал 8”: • Закрита територія під охороною • Консьєрж-сервіс, відеоспостереження, швидкісні ліфти • Зелена зона з фонтанами, клумбами та зонами відпочинку • Власний вихід до озера Корольок — сучасний пляж, лежаки, BBQ-зони • Підземний паркінг • Дитячі майданчики, футбольне поле, тенісний корт Зручне сполучення — до метро Осокорки, Позняки або Лівобережна лише 8–10 хв на авто, а до міської електрички «Лівий Берег» — 10 хв пішки. Допоможемо з оформленням і супроводом угоди. Повний спектр послуг із купівлі та продажу нерухомості.
Київ, Дарницький
Продаж 2к квартири 70м2 з ремонтом ЖК Місто Квітів Тираспільська Київ 20
  • Двокімнатна
  • 70 м2
  • 7 / 18 пов.
134 000 $
Продаж 2-к квартири ЖК «Місто квітів» Тираспольська 58 Квартира з якісним ремонтом зробленим у 2024р. 2 спальні та простора кухня-вітальня, сумісний санвузол, гардеробна. Квартира укомплектована всіма меблями і технікою. Закрита територія ЖК, неподалік від Сирецького парку. До метро Сирецької-15 хвл.пішки Ніхто не жив в квартирі!
Київ, Подільський
Продаж 2к квартири 72 кв м Верховної Ради 21а Соцмістечко Київ 20
  • Двокімнатна
  • 72 м2
  • 14 / 16 пов.
95 000 $
Простора та світла 2-кімнатна квартира у сучасному будинку з підземним паркінгом. Планування: дві окремі кімнати, кухня з виходом на засклений балкон, роздільний санвузол, два балкони, гардеробна. Квартира у доглянутому стані з якісним ремонтом: натяжні стелі, дерев’яна підлога, кондиціонер, сучасне освітлення. З вікон панорамний краєвид на місто. Зручна локація — поруч парк Перемоги, метро Дарниця та Лівобережна, магазини, школи,садки. Додатково є можливість придбати місце в підземному паркінгу. Будинок 2001 року, паркування/безкоштовне, підземний паркінг, гарний стан, біля дороги, магазин, під'їзди охайні.
Київ, Дніпровський
Продаж 2к квартири |72 м²| ЖК Ok`Land Київ 4
  • Двокімнатна
  • 72 м2
  • 18 / 25 пов.
105 000 $
Продам 2к квартиру, 72 кв.м., 18 поверх, будинок 1, секція 1, не кутова, всі вікна виходять у двір на аеропорт. ЖК Ok`Land новий сучасний комплекс комфорт класу в Солом'янському районі на проспекті Повітряних сил (Повітрофлотському), в 5-ти хвилинах пішки від Севастопольської площі. Поблизу кілька супермаркетів великих торгових мереж, дитячі садки, школи, відмінна транспортна розв'язка.#1838
Київ, Солом'янський
Продаж 2к квартири 73 м2 Єлизавети Чавдар 14 Осокорки Київ 18
  • Двокімнатна
  • 73 м2
  • 1 / 20 пов.
88 000 $
Пропоную на продаж 2-кімнатну квартиру в однопід'їзному ЖК Єлизавети Чавдар 14. Площа квартири 73 м2, 1 поверх, стан після будівельників.
Київ, Дарницький
Продаж 2к квартири 75 кв.м на просп.Володимира Івасюка 43Г Оболонський Київ 18
  • Двокімнатна
  • 75 м2
  • 3 / 14 пов.
158 000 $
Пропонується до продажу простора двокімнатна квартира площею 75 м² у будинку комфорт-класу, зведеному у 2002 році. Перший власник. Будинок з цегли із залізобетонними перекриттями. Розташування одна з головних переваг. Будинок знаходиться на березі мальовничого Білого озера з піщаними пляжами, зоною для барбекю та чистою водою, дозволеною для купання. Навколо облаштована набережна для прогулянок, є тенісний корт, кілька спортивних майданчиків та стадіон «Єдність». Інфраструктура району дуже зручна та розвинена. До станцій метро Мінська та Героїв Дніпра 10 хвилин пішки. Поруч розташовані господарчий ринок, супермаркети Сільпо, АТБ, Варус, Фора. У десятихвилинній пішій доступності знаходяться ТРЦ Dream Town, Spt Life з басейнами. До Оболонської набережної та парку Наталка можна дійти за 15 хвилин. Також поблизу є кілька шкіл і дитячих садочків. Квартира розташована на третьому поверсі. У плануванні передбачено дві окремі спальні, простору кухню, велику ванну кімнату, гардеробну та кілька містких шаф. Замінені вікна з покращеною тепло- та шумоізоляцією: у спальні встановлено деревяний шумозахисний двокамерний склопакет, на балконі також двокамерні. Виконано зовнішнє утеплення квартири разом із балконом. Є електропідігрів підлоги на кухні та у ванній. Вікна виходять на затінену сторону, завдяки чому у квартирі комфортно навіть у спеку. Квартира тепла, суха, охайна та в гарному житловому стані, але потребує невеликого косметичного ремонту. Якщо ви шукаєте житло з ідеальним новим та сучасним ремонтом прохання не турбувати. За бажанням можна залишити всі меблі та техніку. Перегляди можливі у вечірній час після 18:00. Продаж від власника, без посередників.
Київ, Оболонський
Продаж 2к квартири 78м2 ремонт Файна Таун Салютна Нивки Шевченківський Київ 20
  • Трикімнатна
  • 78 м2
  • 5 / 12 пов.
290 000 $
Новий будинок ЖК «Файна Таун» Продається простора, світла квартира з реалізованими сучасними тенденціями в ремонті. Роздільне планування, простора гардеробна, встановлені нові радіатори, кондиціонер, бойлер, стіни вирівняні, на підлозі плитка/паркет, 2 санвузла оздоблені кахлем, окрема пральня кімната. Тепла підлога з віддаленим керуванням, натяжна тканинна матова стеля, технічні переваги дають автономності цій квартирі. Сантехніка і техніка від провідних виробників, всі вікна на променад і на зелений двір. Презентабельний під’їзд, цілодобова охорона та закрита територія, благоустрій прибудинкової території, є паркінг з ліфтом, розвинена інфраструктура, поруч школа, дитячий садок, супермаркет, ст. м. "Нивки" - 18 хвилин.
Київ, Шевченківський
Продаж 2к.квартири, 80м2  Бусловська 12, ЖК Busov Hill Київ 13
  • Двокімнатна
  • 80 м2
  • 6 / 23 пов.
310 000 $
Пропонується на продаж 2-кімнатна квартира в ЖК "Busov Hill", вул. Бусловська ,12.Будинок преміум класу, розташований на найвищій точці Києва поряд із Національним ботанічним садом. ЖК має просторий хол 150 кв. із двома зонами відпочинку; захоплюючі види на місто, Дніпро, Києво-Печерську Лавру, Ботанічний сад. Бездоганна система контролю доступу в будинок і територія, що охороняється. Будинок оснащений потужним генератором для безперебійної роботи ліфтів та котельні. 24-годинний консьєрж сервіс. Безпечний дитячий майданчик із системою відеоспостереження всередині будинку та у внутрішньому дворі комплексу, паркінг на 285 авто, ліфти "Schindler". Комфортна інфраструктура з рестораном, кафе, салоном краси, стоматологією та ін.Квартира з якісним ремонтом, повністю укомплектована меблями та технікою; має функціональне планування: -кухня-вітальня -спальня -санвузол з ванною -просторий гардероб -хоз. приміщення Запрошуємо на перегляди!!! В квартирі додатково встановлені інвертори та акумулятори на 10 000дол.
Київ, Печерський
Продаж 2к квартири 82 кв м вул. Сімʼї Стешенків Леся Курбаса Київ 14
  • Двокімнатна
  • 82.7 м2
  • 14 / 24 пов.
128 000 $
До продажу пропонується велика та затишна двокімнатна квартира, що розташована за адресою вул. Сімʼї Стешенків 7 • Виконано якісний ремонт • Все що є на фото залишається покупцям! Можна відразу заїхати та жити • Зручне планування – дві окремі кімнати, кухня-вітальня, балкон, два санвузли • Тепла підлога • Будинок 2007 року Зручна локація, декілька хв пішки до зупинки швидкісного трамваю, що їде в центр міста до м. Вокзальна, багато іншого громадського транспорту, швидка розвʼязка по місту. Поруч є вся необхідна інфраструктура для комфортного проживання Перегляди за домовленістю. Телефонуйте або пишіть для запису! Комісія 3%, АН «Big Street» – допомагаємо кожному
Київ, Святошинський
Продаж 2к квартири 82 кв.м ЖК Введенський, Закрита територія, БЕЗ%%% Київ 20
  • Двокімнатна
  • 82 м2
  • 5 / 10 пов.
215 000 $
БЕЗ %%% Продаж 2 кімнатної квартири у серці Печерська Адреса: вул. Панаса Мирного, 14, ЖК Введенський Площа: 82 м², поверх 5 із 10, є ліфт і підземний паркінг. Атмосфера дому Серед зелених алеїв і спокою старого Печерська височіє сучасний дім — ЖК Введенський. На п’ятому поверсі цього будинку на вас чекає світла, проста двокімнатна квартира площею 82 м² — оселя для тих, хто цінує комфорт, спокій і витонченість деталей. Планування та простір Інтер’єр продумано до дрібниць, щоб кожен метр дихав зручністю та гармонією. Кухня-вітальня 40 м² — відкрита, залита світлом, із виходом на лоджію. Спальня — затишна, з ліжком і виходом на ту ж лоджію. Гардеробна кімната в коридорі — акуратне рішення для порядку. Два санвузли — гостьовий та основний із ванною. Лоджія на всю довжину квартири — ідеальне місце для ранкової кави, роботи чи натхнення. Деталі та стан Підлога — натуральний паркет, що додає інтер’єру шляхетності. Вікна — склопакети під дерево, з відмінною шумоізоляцією. Є ліфт, домофон, квартира у доглянутому стані — чиста, охайна, з теплом дому, де все зроблено зі смаком. Будинок і територія ЖК Введенський — сучасна цегляна будівля з доглянутою інфраструктурою. Є підземний паркінг, який також може слугувати укриттям. Територія закрита, з охороною та відеоспостереженням. Зелений, затишний двір, де можна перепочити від метушні й насолодитись тишею. Локація Печерськ — серце Києва, де престиж поєднується з камерністю і затишком. Поруч — Ботанічний сад, Маріїнський парк, ресторани, магазини, школи, садочки, спортклуби. До метро Печерська або Кловська — 7–10 хвилин пішки. Зручна транспортна розв’язка — ви завжди поруч із центром подій. Переваги Площа 82 м² — простір і світло. Два санвузли та гардеробна кімната. Лоджія на всю квартиру. Підземний паркінг. Цегляний будинок у серці Печерська. Закрита територія та престижна адреса. Ця квартира не просто житло. Це дім із душею, де відчувається ритм старого Києва, спокій зелених вулиць і тепло, що не втрачає своєї щирості з часом. Допоможемо з купівлею, продаж та орендою нерухомості | Повний супровід угод | Державні програми: Є-Оселя, Є-Відновлення, Житло для ВПО та військових (Постанова 280) Гарантія безпеки, якості та вигоди! Вас зацікавила ця квартира? Тоді швидше зателефонуйте або пишіть нам! Ваші дбайливі "One Realty". #213-211-696
Київ, Печерський
Перейти на сторінку