Київ
Київська
Искать объявления по всей области

Продаж квартир в Києві

Продаж 2х квартири на ЖК Варшавський3, 63м2 Київ 4
  • Двокімнатна
  • 63.05 м2
  • 6 / 16 пов.
83 500 $
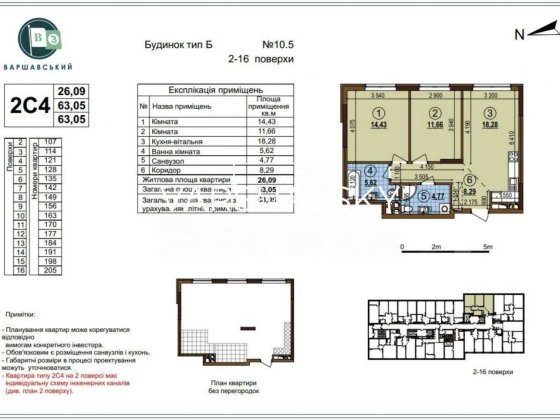
#2002 Продаж 2K Переуступка Продається 2к квартира 63 кв м ЖК Варшавський 3 Будинок 10.5 Поверх 6 Резервне живлення Вікна у двір Перепоступка у офісі забудовника В ціну входять усі витрати на оформлення.
Київ, Подільський
Продаж 2х-тної Квартири б.Дарницький 8! 73кВ. Спецпроект Є-Відновлення Київ 20
  • Двокімнатна
  • 73 м2
  • 11 / 20 пов.
113 000 $
Продаж великої двокімнатної квартири з хорошим плануванням ! Квартира з ремонтом , кімнати окремі, велика кухня Квартира пропонується з усією технікою та меблями Закритий коридор на 3 квартири. Консьєрж та домофон. Поруч парк Перемога, школа, садки, метро Дарниця. Поруч парк Перемога, школа, садки, метро Дарниця. У будинку внизу закритий паркінг і відкритий паркінг безкоштовний. Торговий центр із магазинами, аптекою. Спецпроект 2006-2010 рр, будинок у дворі, гарний стан, під'їзди охайні, 3 ліфти, кодовий замок, консьєрж, магазин, парковка/безкоштовна. Біля будинку спортивний та дитячий майданчики, школа №258, парк Перемога, каток "Льдинка", прокат велосипедів, супер-маркет "Сільпо". Поряд безліч дитячих садків, шкіл, медичний центр "Братислава", супермаркет "Billa", кафе ресторани, Макдональдс. Запрошуємо на перегляд
Київ, Дарницький
Продаж 2х-тної квартири Борщагівська 209 ! Спецпроект ! ТРЦ "Мармелад" Київ 14
  • Двокімнатна
  • 54 м2
  • 16 / 19 пов.
83 000 $
Продаж двокімнатної квартири , дві окремі кімнати студія + кухня 25 кв. І спальня 16 кв., вбиральня 8 кв. , роздільний санвузол. Також є комора за межами квартири на поверсі. Меблі та побутова техніка (посудомийна машина, пральна машина, холодильник, кондиціонер, духовка, варильна поверхня, бойлер), залишиться. Розвинена інфраструктура та розв'язка, наявність шкіл, садків, вишів, а також громадський транспорт, лічильники Спецпроект 2011-2015 рр; стіни: цегла; перекриття: залізобетон; поверховість: 19, 3 ліфта, парковка/безкошт., код.замок, консьєрж, біля дороги, дитячий майданчик, доглянута прибудинкова теріторія, 1 поверх- нежелі приміщення, поруч розважальні центри "Мармелад", "Аркадія", "Більшовик", скоростний трамвай. Запрошуємо на перегляди
Київ, Солом'янський
Продаж 2х-тної квартири Оболонський пр. 23а! поруч Дрім Таун,м.Мінська Київ 10
  • Двокімнатна
  • 55 м2
  • 3 / 9 пов.
64 000 $
Продаж 2-х кімнатної квартири на Оболонському проспекті , чудове розташування , розвинена інфраструктура . Квартира з окремими кімнатами повністю під капітальний ремонт . Квартира на 3 поверсі 9-поверхового будинку. Загальна площа 52м.кв, жила 32м.кв, кухня 8м.кв. Лоджія 6,5м.кв. 5хв. до метро Мінська, затишний зелений двір, магазини, школи, дитсадки - все поруч. Будинок 96 серія; стіни: керамзито-бетон; перекриття: залізобетон; поверховість: 9; кількість виходів: 4; ліфт; транспорт: ст.м "Мінська"; гарний стан , у дворі, H=2.65, під'їзди охайні., кодовий замок , паркування/безкошт., Поруч Дрім Таун, Приватбанк, Кредобанк, Аптека Доброго Дня, ресторан MAFIA, Оболонський РАЦС, Спеціалізована школа №194 "Перспектива", Спеціалізована школа №252. Чудова інвестиція. Запрошуємо на перегляди.
Київ, Оболонський
Продаж 2х-тної квартири Покотило 5! Ідеально під Комерцію Фасад Київ 5
  • Двокімнатна
  • 52 м2
  • 1 / 9 пов.
50 000 $
Продаж 2х-тної квартири на першому поверсі фасадного будинку дві кімнати окремі загальна площа: 52 кВ.м. два вікна на фасад будинку квартира в житловому стані , підійде під комерцію , та житло . Поруч хороший трафік зупинка міського транспорту . Комісія АН-5% Запрошуємо на перегляд
Київ, Святошинський
Продаж 2х-тної квартири Салютна 4-А ! Спецпроект ! метро Нивки ! Київ 10
  • Двокімнатна
  • 53 м2
  • 7 / 9 пов.
65 000 $
Продаж двокімнатної квартири в теплому, цегяному будинку. Квартира в житловому стані, на підлозі паркет, стіни шпалери під фарбування. потрібен ремонт . Вбудована кухня з необхідною технікою, частково меблі. Санвузол окремий. Поміняні труби та електрика. Лоджія засклена. Вікна виходять в сторону парку на південний схід. гарний стан будинку , під'їзди охайні, консьєрж, магазин, парковка безкоштовна, магазин, поруч "Сільпо" і ринок "Нивки", кінотеатр "Нивки", через дорогу дитяча поліклініка №5 . Чудова інфраструктура: поряд метро Нивки та Сирець, велика кількість супермаркетів, декілька шкіл та дитячих садочків Запрошуємо на перегляди , торг до побєди
Київ, Шевченківський
Продаж 2х-тної квартири ЖК "Міністерський"! Є-Відновлення ! 80 кВ.м Київ 12
  • Двокімнатна
  • 80 м2
  • 7 / 26 пов.
85 000 $
Продаж великої двокімнатної квартири , світла , простора з вдалим плануванням з окремими кімнатами. Розглядаємо всі державні програми! Квартира в новому будинку поблизу лісу. Поруч діагностичний центр, супермаркет, паркова зона, відмінна транспортна розв'язка, школа, дитячий садок. Навпроти хвойний ліс Пуща-Водицького лісового господарства, заповідна зона, яка не підлягає забудові. Біля будинку безпосередньо 4 дитячі садочки, дві школи і дві поліклінніки, парки, сквери. Прекрасна транспортна розв’язка навіть якщо жити без авто, автобус 99 курсує кожні 5 хвилин до метро Мінська, автобус 32 до метро Нивки. Запрошуємо на перегляди! Вигідно
Київ, Оболонський
Продаж 2к 46 м2 Центр Печерськ метро Звіринецька Ботанічний Сад Київ 12
  • Двокімнатна
  • 47 м2
  • 3 / 5 пов.
82 000 $
Пропонується до продажу 2-кімнатна квартира в Печерському районі. Чудовий варіант як для життя та к для бізнесу. Гарне розташування. Планування : кухня суміжна з віталнею, та окрема спальня, ванна, передпокій. Квартира повністю укомплектована меблями та технікою, є все необхідне доля комфортного проживання. Гарні сусіди. Є можливість парковки в дворі. Один власник. Розрахунок готівка. Перегляди по домовленості. Поруч чудово розвинена інфратруктура та транспортне сполучення, ст.м Звіринецька 5 хв пішки, Ботанічний Сад 10 хв.
Київ, Печерський
Продаж 2К 54м2 Лаврухіна Троєщина Київ 9
  • Двокімнатна
  • 54 м2
  • 2 / 12 пов.
55 000 $
Простора, світла двокімнатна квартира на вул. Лаврухіна, 11. Неймовірно зручний другий поверх в 12 поверховому будинку, що був зведений в 1996 році. Перевагами даної квартири є: - роздільне планування кімнат - встановлено металопластикові вікна - простора засклена лоджія - встановлено бойлер - встановлено лічильники на воду - наявність побутової техніки (пральна машина, холодильник, бойлер, плита з духовою шафою, витяжка) - меблі на кухні дозволяють одразу в'їхати і жити. Чудова локація, все необхідне для життя поруч: дитячі садочки, школи, спортзал, бювет, ТРЦ Район, Сільпо, АТБ, зоомагазини, аптеки, відділення банку, ресторан, декілька приватних клінік VIVA зокрема, продуктовий ярмарок по вихідних днях. Зручне транспортне сполучення (маршрутні таксі, автобуси, трамвай, тролейбус) в усіх можливих напрямках! Комісія АН 5%.
Київ, Деснянський
Продаж 2к ( 66,7 м2) в ЖК Варшавському 3, Подільський, Виноградарь Київ 6
  • Двокімнатна
  • 66.7 м2
  • 16 / 18 пов.
86 000 $
Продається 2 - кімнатна квартира в ЖК Варшавський 3, Будинок 10.5 Площею 66,7 м2 , плануванням 2С3, 16 поверх. Автономний будинок, закрита прибудинкова територія, монолітно - каркасна технологія будівництва. Поруч розташовані медичні центри та амбулаторії, усе для активних занять спортом, багатофункціональний ТРЦ Ретровіль, навчальні / дитячі заклади для дітей різного віку. Будується станція метро. Найближчі ЖК: Сирецькі Сади; Місто Квітів; Крістер Град; Ліпінка; Діброва Парк. АН: Level Group Об'єкт № 213-248-839
Київ, Подільський
Продаж, 2к, 67м2, квартира, Центр! Саксаганського Київ 7
  • Двокімнатна
  • 67 м2
  • 4 / 4 пов.
128 000 $
Під ремонт, висока стеля 4,5, царський будинок. Квартира має 5 вікон, 1 виходить у двір, 4 на вулицю Саксаганського, це дозволяє створити затишну квартиру з двома спальнями 12кв.м та 17кв.м, кухнею студією 35 кв.м, санвузлом 3,6 кв.м або з іншими площами в залежності від ваших побажань. Квартира у центрі міста, поруч школа, дитячий садок, розвинена інфраструктура, станція метро в 10 хвилинах. Саксаганського 89а
Київ, Шевченківський
Продаж 2к (75м2) Григоренка 22/20 Позняки Осокорки Дарницький Київ 10
  • Двокімнатна
  • 75 м2
  • 20 / 24 пов.
110 000 $
Київ, Григоренка Петра просп., 22/20 Спецпроект 2006-2010 рр; стіни: цегла; перекриття: залізобетон; поверховість: 24 будинок 2008р., доглянутий під'їзд з консьєржем та домофоном, 3 ліфта в кожній секції (OTIS), підземний паркінг, дитячий майданчик, власне подвір'я, у будинку салони краси "MediSpa Harmony" та "Dolce Bella", магази "Незнайка", поруч "Велика Кишеня", "Novus", кафе "Бум", "СушиЯ", cтоматологічна клініка "Віва Дент", дитяча поліклініка, фітнес-центри "MyFit" та "СпортЛенд" 20-й поверх, площа: 75,0\37,2\12,8 В квартирі дві окремі кімнати, два великі окремі санвузли, простора кухня, лоджія, якісний ремонт, оснащена необхідними меблями та побутовою технікою, вбудована шафа «Braun», кухонний гарнітур система «Blum», встановлені два бойлери, тепла підлога без зайвих витрат за рахунок горизонтальної системи опалення , лічильник на тепло. Зачинений поверх з власною системою відео нагляду, якісний свіжий ремонт. Консьєрж, мінімальні комунальні витрати
Київ, Дарницький
Продаж 2к 77м2 18 поверх Європейського Союзу Виноградар Варшавський Київ 19
  • Двокімнатна
  • 76.5 м2
  • 18 / 22 пов.
94 500 $
Пропонуєтся двокімнатна квартира площею 76 м² за адресою проспект Європейського Союзу, 31а, розташована на 18-му поверсі 22-поверхового будинку серії КТ 2008 року побудови. У квартирі виконано ремонт, є дві окремі кімнати, велика кухня-вітальня площею 14 м², два санвузли з вікном та гардеробна. Усі лічильники встановлено на воду, опалення та електрику. У під'їзді є консьєрж, працюють два ліфти, а також є підземний паркінг. Інфраструктура району добре розвинена: поруч з будинком зупинки громадського транспорту, що забезпечує зручний доступ до різних частин міста. У дворі є місце для паркування, а в безпосередній близькості знаходяться дитячі садки, школи, супермаркети АТБ та Сільпо, торговий центр 'Орнамент', лікарня та поліклініка.
Київ, Подільський
Продаж 2к Берестейський (Перемоги 131а ЖК Аквамарин Житомирська безгот Київ 20
  • Двокімнатна
  • 82 м2
  • 17 / 25 пов.
105 000 $
Продається велика квартира за адресою Берестейський просп. (Перемоги просп.), 131а, ЖК Аквамарин. Будинок 2015 року, ЖК комфорт класу. Загальна площа квартири 81 м.кв., на 17 поверху. Має гарне планування, велику кімнату з кухнею, окрему кімнату спальню, з виходом на великий засклену лоджию. Кухня-вітальня розділена на відпочинкову зону. В квартирі зроблений ремонт з якісних матеріалів, повністю укомлектована всією необхідною технікою та меблями. Встановлені лічильники на світло, воду та теплопостачання. У будинку підключено генератор, який забезпечує безперервну роботу ліфта, надходження у квартиру води та тепла. Територія під відеонаглядом, є закріплене паркомісце. Гарна інфраструктура, зручна транспортна розв'язка. Поруч знаходиться паркова зона відмінно розвинена інфраструктура: магазини, аптеки, ресторани і кафе, школи і дит.садки. До ст.м Житомирська чи ст.м Академмістечко 15 хвилин пішки. При відключенні світла ліфт працює. Власник в Україні. Можливий безготівковий розрахунок.
Київ, Святошинський
Продаж 2к Кадетський Гай 10 ЖК Медовий Севастопольської площа Київ 20
  • Двокімнатна
  • 63 м2
  • 7 / 26 пов.
91 000 $
Продається видова 2х кімнатна сучасна квартира за адресою вул.Кадетський Гай, 10, ЖК Медовий. Будинок 2021р. 7 секція. Загальна площа квартири 63 м.кв. 7 поверх. Має гарне планування, велику кухню, дві окремі кімнати, панорамні вікна, балкон, гардероб. В квартирі зроблений новий сучасний ремонт. Повністю укомплектована меблями та технікою. Квартира тепла, в середені будинку. Встановлені лічильники на світло, воду та теплопостачання. Вікна виходять на приватний сектор та на дитячий майданчик В будинку встановлений генератор. Територія закрита, під відеонаглядом. Право власності на руках, будинок введений в експлуатацію. Гарна інфраструктура, зручна транспортна розв'язка до метро Вокзальна - 15 хв, до Севастопольської площі - 5 хв, до проспекту Лобановського - 5 хв. Право власності менше 3х років. Податки сплачує покупець.
Київ, Солом'янський
продаж 2к.кв, 70м2, Феодосійська, Науки, м. Деміївська, ремонт, меблі Київ 14
  • Двокімнатна
  • 68 м2
  • 21 / 23 пов.
129 000 $
Продається двокімнатна квартира в новому будинку з якісним ремонтом, меблями та технікою, за адресою Феодосійський провулок 14 а! Захоплюючий краєвид міста, охайний під'їзд, кос'єрж, парковка у дворі. Характеристика квартири: 21 поверх 23 поверхового будинку; Загальна площа 68 м2; 2 кімнати, одна з лоджією, житлова площа 35 м2; Кухня 12 м2; Просторий хол. В квартирі зроблений якісний ремонт і вона надзвичайно охайна. На підлозі паркет, якісна столярка, кахель, засклена лоджія.Квартира укомплектована меблями та техніко. Взагалі не потрібні вкладення. Завезли особисті речі і живіть.
Київ, Печерський
Продаж 2к кв Бойчука Звіринецька Печерськ Київ 10
  • Двокімнатна
  • 46 м2
  • 2 / 5 пов.
82 000 $
Продаж 2к квартири на Печерську. Розташована на 2 поверсі теплого цегляного будинку. Низький поверх, газ - все це привабливо для покупців. Планування: простора кухня-вітальня та окрема спальня. Сумісний санвузол. Балкон. Зроблений якісний коштовний ремонт з заміною комунікацій. У квартирі встановлено все необхідне для комфортного проживання: • вбудована пральна машина • вбудований холодильник • посудомийна машина • кондиціонер Чудове розташування будинку на другій лінії, в 10 хвилинах пішки від станції метро Звіринецька. Поруч ЖК Новопечерські Липки, Перлина 52, Новопечерська Вежа. В дворі є паркувальні місця. В пішому доступі Ботанічний сад. Квартира чудово підійде як для проживання, так і для орендного бізнесу. Власники в Україні. Перегляди за домовленістю.
Київ, Печерський
Продаж 2к.кв.вул Зодчих 6-А Київ 14
  • Двокімнатна
  • 50.6 м2
  • 3 / 5 пов.
55 000 $
2к.квартира двостороння загальною площею 50.6м.кв.Розташована на 3 поверсі 5 поверхового цегляного будинку. Має роздільне планування,квартира з частковим ремонтом. Опалення централізоване,при вимкнені світла є опалення і гаряча вода.Також є інтернет оптоволокно. За більш детальною інформацією дзвоніть 09******91 06******40
Київ, Святошинський
Продаж 2к кв ЖК Crystal Park Tower Шевченківський рн Шулявка Київ 15
  • Двокімнатна
  • 82 м2
  • 7 / 23 пов.
170 000 $
1-кімнатна квартира, 82 м², ЖК Crystal Park Tower, Київ Простора 2-кімнатна квартира в ЖК бізнес-класу Crystal Park Tower, просп. Берестейський, 42а (м. "Шулявська"). 7 поверх із 23. Площа: 82 м² (житлова — 30,2 м², кухня-вітальня — 31,3 м²). Планування: 2 спальні, велика кухня-вітальня, два санвузли, пральна. Панорамні вікна з шумоізоляцією. Будинок з червоної цегли, монолітно-каркасна технологія, підземний паркінг, охорона 24/7, генератор, закрита територія. Сучасне лобі, працює керуюча компанія. Розташування — у парковій зоні поруч із метро.
Київ, Шевченківський
Продаж 2к кв ЖК Dibrova Park Подільський рн Нивки Мостицька Некрасова Київ 4
  • Двокімнатна
  • 65 м2
  • 20 / 26 пов.
88 000 $
Видова 2-кімнатна квартира в ЖК Dibrova Park, вул. Некрасова, 8 Будинок зданий Про квартиру: Простора 2-кімнатна квартира з правильним плануванням та чудовими панорамними видами. Стан — після будівельників, можна одразу розпочинати ремонт під себе. Переваги комплексу: • Сучасний ЖК Dibrova Park, будинок №4 • Продумана інфраструктура, доглянута територія • Поруч будується метро “Мостицька” та супермаркет Novus • Зручне транспортне сполучення — до ст. м. Нивки, Сирець, Дорогожичі — 10 хвилин на авто
Київ, Подільський
Перейти на сторінку