Киев
Киевская
Искать объявления по всей области

Продажа 2 комнатных квартир в Киеве

Оболонь, ЖК Smart plaza, з ремонтом, м. Мінська Киев 20
  • Двухкомнатная
  • 66 м2
  • 24 / 25 эт.
170 000 $
Продаж 2к(66м2) Тимошенка 21/19 ЖК Смарт Плаза Левка Лук'яненка Ст.М. Мінська Планування: -окрема спальня, -кухня-вітальня, -санвузол, -хол Квартира пропонується з усіма меблями та побутовою технікою. Зручне місце розташування, сучасний ЖК з власною інфраструктурою, поруч набережна Дніпра.
Киев, Оболонский
Оболонська наб 3 Набережна Дніпра Івасюка Оболонь Киев 11
  • Двухкомнатная
  • 90 м2
  • 3 / 16 эт.
185 000 $
Оболонська набережна, 3, Продаж 2к квартири 90кв.м із ремонтом. Просторе планування, простора кухня з обідньою зоною, спальня, вітальна, два с\в, стеля 3м. Ремонт з якісних натуральних матеріалів, підлога- паркетна дошка червоного дерева, кухня Scavolini, місткі шафи-купе. Вся необхідна техніка, бойлер, пральна та посудомийна машини, холодильник, духова шафа та мікрохвильовка.; Ціна: 185 000 USD
Киев, Оболонский
Оболонська набережна, 19. Продаж Видова 2к квартира Парк наталка Киев 20
  • Двухкомнатная
  • 95 м2
  • 2 / 5 эт.
335 000 $ Без комиссии
АКТУАЛЬНА ЭКСКЛЮЗИВНА ВИДОВА. Продаж 2к квартири в елітному клубному будинку, котеджного типу на набережній Оболоні, перша лінія парк Наталка Вид на гольф клуб та Дніпро. Опалення: Автономне (енергоефективність і комфорт). Планування: Простора кухня. Вітальня. Спальня. Санвузол (суміщений). 2 балкони. Гардероб Оснащення: Якісний ремонт, виконаний для себе. Меблі та вся необхідна побутова техніка Управління будинком через ОСББ. Будинок 2005р. Дружні та уважні сусіди. Інфраструктура: Супермаркет, кав’ярні, ресторани. Гольф-клуб, дитячі та спортивні майданчики. Зона відпочинку, набережна Дніпра, парк Наталка — ідеальні місця для прогулянок і релаксу. Ця квартира — чудовий вибір для тих, хто цінує комфорт, якість та престиж. Звертайтесь для організації перегляду!
Киев, Оболонский
Оболонський пр.28. Метро «Мінська» двокімнатна квартира. Киев 8
  • Двухкомнатная
  • 51 м2
  • 6 / 9 эт.
75 000 $
Оболонський проспект 28, 6/9, 51/30/8, 96-серия, гарний житловий стан, кімнати і санвузол окремо, кахель. Вбудована кухня, кондиціонер, подвійна лоджія засклена і обшита, вікна на південь у двір. Метро «Мінська» 2 швилини, ринок, «Сільпо», «Дрим Таун», відмінна локація для Оболоні.
Киев, Оболонский
Оболонський! Велика 2к! Роздільні кімнати! Киев 20
  • Двухкомнатная
  • 59 м2
  • 5 / 9 эт.
93 500 $
Світла простора квартира з ремонтом, меблями та технікою на Пріорці у Оболонському районі. Кімнати - роздільні, великі. На підлозі у кімнатах - ламінат, у коридорі та на кухні - плитка. На кухні - підігрів підлоги. Є 2 кондиціонери. Балкон засклений металопластиковими вікнами, довжина балкона - 25 метрів. Сонячна сторона - тепло, світло; вид з вікон - на схід, південь та захід. До квартири додається залізний гараж, що знаходиться поряд з будинком. Добре розвинута інфраструктура. Зручна транспортна розв'язка
Киев, Подольский
Однокімнатна квартира 35 м2 м. Теремки Киев 6
  • Двухкомнатная
  • 35 м2
  • 2 / 5 эт.
24 100 $ Без комиссии
Продається однокімнатна квартира 35 м.кв. Будинок будується, заселення на 2027. 35 м.кв. є на стандартному 2му поверсі або на останньому з високою стелею. В будинку є ліфт. Поруч розташоване все необхідне для життя, чудова транспортна доступність, через дорогу великий оптовий ринок Столичний, в пішій доступності парк, зони відпочинку, кафе, ТРЦ Республіка В ЖК є вже збудовані будинки. Детальна інформація за тел. 0 *******81
Киев, Голосеевский
Однокімнатна квартира на Троєщині Киев 7
  • Двухкомнатная
  • 39 м2
  • 5 / 9 эт.
47 192 $
В продажу однокімнатна квартира за адресою вул. Данькевича, 7А, Троєщина. Квартира розташована на 5-му поверсі, загальна площа — 39 м². Дуже тепла, доглянута і повністю готова до проживання. Переваги квартири: • Всі меблі та техніка залишаються — можна заїжджати одразу після угоди. • Встановлені кондиціонер та бойлер • Проведені й повірені всі лічильники. • Охайний стан, теплий будинок, зручне планування. Район має чудову інфраструктуру — все необхідне знаходиться поруч: • зупинка громадського транспорту в кількох хвилинах ходьби; • супермаркети та магазини на будь-який смак; • школа та дитячий садок неподалік; • у дворі є бювет з чистою водою; • зелені зони та облаштовані двори для відпочинку. Квартира підходить як для комфортного життя, так і під орендний бізнес. Документам більше 3х років, одна власниця. Телефонуйте — з радістю організую перегляд у зручний час! Об'єкт: 213-230-461
Киев, Деснянский
Охайна 2 ккв Без комісіі, Київ Киев 11
  • Двухкомнатная
  • 47.3 м2
  • 5 / 5 эт.
59 000 $ Без комиссии
Продаж охайної 2 кімнатної квартири ( кухня обʼєднана з кімнатою) Будинок цегляний. Вул. Пирогівський шлях 44 Площа 47.3 м2 Опалення централізоване В будинку є продуктовий магазин. Поруч супермаркет Фора, зупинка громадського транспорту, міні базарчик, платна парковка, Нова пошта та інше.Через дорогу набережна. 5/5 поверх Оформлення мінімальне Телефонуйте!
Киев, Печерский
OkLand продаж 2к Повітрофлотський Соломянський Киев 17
  • Двухкомнатная
  • 72 м2
  • 24 / 24 эт.
130 000 $
Київ, Повітряних Сил пр. (Повітрофлотський пр), 56, Ok'Land; Спецпроект 2021-2025 рр; стіни: газоблок; перекриття: залізобетон; поверховість: 26; транспорт: ст.М. Вокзальна; ЖК "Ok'Land", 3 будинок, біля комплексу буде велика зелена територія, 4 спортивних майданчики та 3 просторі дитячі ігрові зони, для додаткової безпеки та комфорту мешканців буде реалізована концепція "подвір'я без авто" • 2р, площа: 72,0\32,2\18,1; Продається затишна квартра з якісним ремонтом у світлих тонах. Укомплектована меблями та побутовою технікою. Загальна площа - 72 кв.м. Дві кімнати, сан.вузол, підсобне приміщення та кухня-вітальня. Панорамний від із вікон.
Киев, Соломенский
Олександрівська cлобідка, вул. Преображенська, буд.37. Киев 8
  • Двухкомнатная
  • 43.5 м2
  • 3 / 5 эт.
46 000 $
Продаж 2-кімнатної квартири, Солом’янський район, Олександрівська слобідка, вул. Преображенська, буд.37, цегляна «хрущовка». Квартира двостороння. Гарне планування, 43,5 кв.м.загальна площа, окремі повноцінні кімнати 16,4 та 12,5 кв.м., немаленька кухня-6.7 кв.м., балкон. Комфортний 3-й поверх, газ. Гарна локація і інфраструктура, невелика зелена вулиця без суперактивного трафіку, поруч маркети, ринок, побутові послуги, лікарня. Транспорт у різні частини Києва: з вул. Солом’янської транспорт в бік м.Вокзальна та м. Олімпійська, з пр. Лобановського в бік м.Шулявська, Деміївська, Харківська. Потребує ремонту. Ціна 46000 у.о. Комісія 3%.
Киев, Соломенский
Олени Пчілки 2а, квартира 74 м2 з видом на Батьківщину Мати Киев 20
  • Двухкомнатная
  • 74 м2
  • 15 / 23 эт.
115 000 $ Без комиссии
Олени Пчілки 2а, квартира 74 м2 з видом на Батьківщину Мати 2-кімнатна з видом на Дніпро, Лавру та Батьківщину-Мати! Олени Пчілки, 2а | 74 м² Продається простора та світла квартира в теплому керамзитобетонному будинку (2007 рік). Встановлені лічильники на опалення. Житлова площа – 35 м², кімнати 20 м² та 15 м², кухня 14 м² з еркером та балконом. Стан – дуже гарний, заходь і живи! * Побутова техніка: кондиціонери Haier, пральна машина Whirlpool, посудомийна Bosch — все залишається! * Меблі — також залишаються новим власникам. * Без комісії! * З вікон відкривається вражаючий панорамний краєвид на Дніпро, Печерську Лавру та Батьківщину-Мати. * Є гарне облаштоване бомбосховище. * Телефонуйте, щоб домовитись про перегляд!
Киев, Дарницкий
Омеляновича-Павленка, 14/12 (Суворова) без комісії Киев 17
  • Двухкомнатная
  • 58 м2
  • 4 / 4 эт.
110 000 $ Без комиссии
Продається світла та затишна двокімнатна квартира 58кв.м в самому серці Києва, Печерський район. Є парко місце. Можно зробити індивідуальне опалення. Будинок — пам’ятка архітектури з особливою атмосферою старого міста. Високі стелі 3.8м., простора, та зручне планування. Чудове розташування — поруч метро, парки, магазини та культурні об’єкти. Ідеальний варіант для життя або інвестиції.
Киев, Печерский
Орандж сіті Голосіївська Лисогірський пров Науки Єпрограми Киев 3
  • Двухкомнатная
  • 58 м2
  • 24 / 27 эт.
96 000 $
Простора і світла квартира з дизайнерським ремонтом. В квартирі є всі необхідні меблі та техніка. В кожній кімнаті кондиціонер, також є тепла підлога. Планування продумане до дрібниць, дві океремі кімнати, кухня-вітальня, гардероб та с/в. Доступ в будинок по ключ картам, по ним у кожного доступ на свій поверх. В будинку є свої магазини та кафе, закрита дитяча площадка, поруч парк. Біля будинку зупинка транспорту, до метро 3 зупинки. Розглядаєо Держ програми.
Киев, Голосеевский
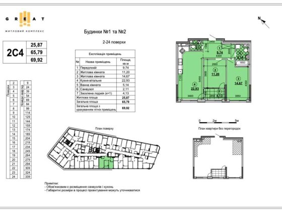
‼️Єоселя‼️ 2 к квартира Грейт Great Буд 4 Дніпровська наб Видова Без % Киев 9
  • Двухкомнатная
  • 70 м2
  • 21 / 25 эт.
120 990 $ Без комиссии
ЖК Great ГЕНЕРАТОР Дніпровська Набережна 15Ж Будинок 4 Поверх: 21 / 25 Право власності. Можна розпочинати ремонт Пропонуємо Вам квартиру з функціональним плануванням. Квартира розташована у новобудові та знаходиться у стані після будівельників, що дозволить вам самостійно облаштувати її за своїми потребами та вподобаннями. В квартирі встановлені лічильники на опалення та воду, На території житлового комплексу розташовані різноманітні інфраструктурні об'єкти, які зроблять ваше життя більш комфортним та зручним. Все готово до угоди! Великий вибір квартир по ЖК! Допоможемо придбати і продати нерухомість. По додатковим питанням телефонуйте.
Киев, Дарницкий
  • Двухкомнатная
  • 67 м2
  • 7 / 20 эт.
92 990 $
ЖК Варшавський 3 буд 10.4 поверх 8 / 23 площа 67 м2 Пропонуємо Вам квартиру з функціональним плануванням, яка складається з кухні-вітальні , окремих двох кімнат та два санвузла. Це ідеальний варіант для тих, хто шукає комфортне та просторе житло з можливістю організувати простір за власним смаком. Квартира розташована у новобудові та знаходиться у стані після будівельників, що дозволить вам самостійно облаштувати її за своїми потребами та вподобаннями. В квартирі встановлені лічильники на електроенергію та воду, На території житлового комплексу розташовані різноманітні інфраструктурні об'єкти, які зроблять ваше життя більш комфортним та зручним. Все готово до угоди! Допоможемо придбати і продати нерухомість. По додатковим питанням телефонуйте.
Киев, Подольский
  • Двухкомнатная
  • 67 м2
  • 9 / 20 эт.
92 990 $
ЖК Варшавський 3 буд 10.4 поверх 10 / 23 площа 67 м2 Пропонуємо Вам квартиру з функціональним плануванням, яка складається з кухні-вітальні , окремих двох кімнат та два санвузла. Це ідеальний варіант для тих, хто шукає комфортне та просторе житло з можливістю організувати простір за власним смаком. Квартира розташована у новобудові та знаходиться у стані після будівельників, що дозволить вам самостійно облаштувати її за своїми потребами та вподобаннями. В квартирі встановлені лічильники на електроенергію та воду, На території житлового комплексу розташовані різноманітні інфраструктурні об'єкти, які зроблять ваше життя більш комфортним та зручним. Все готово до угоди! Допоможемо придбати і продати нерухомість. По додатковим питанням телефонуйте.
Киев, Подольский
єОселя! 2-кімнатна квартира ЖК Навігатор-2 Киев 10
  • Двухкомнатная
  • 72.39 м2
  • 20 / 25 эт.
82 000 $
ЖК NAVIGATOR 2 — квартира, в яку можна заходити одразу після угоди. У продажу 2-кімнатна квартира у введеному в експлуатацію будинку Київ, вул. Коноплянська, 22 (будинок 2) Площа — 72,39 м² 20 поверх із 25 — світло, простір, панорама Сучасний житловий комплекс із новою інфраструктурою Документи готові — жодних очікувань Формат, який добре підходить як для життя, так і для інвестиції — у нових комплексах такі квартири швидко зростають у ціні. 82 000 $ Підходить під єОселю
Киев, Оболонский
єОселя!2к.квартира ЖК Одеський бульвар метро Теремки Киев 20
  • Двухкомнатная
  • 48 м2
  • 21 / 25 эт.
48 000 $
Продаж Квартири 48м2 в новому ЖК Одеський / Одеський бульвар, Новосілки, Приміська вул. 22б. - 1 секція - Поверх 21. - Будинок №5. - 2 мокрі точки. - Будинок введений в експлуатацію - Фасад будинку утеплений мінеральною ватою. - Протипожежна система. - Сучасні пасажирські та вантажні ліфти. - Три ліфти на секцію. - Лічильник опалення на кожну секцію. – Є можливість встановити індивідуальний лічильник на тепло. У квартирі: - Цементне стягування підлоги. - Чорнова штукатурка стін. - Сучасні віконні системи з енергозберігаючим склопакетом. - Засклена та утеплена лоджія. - ДВА санвузли. - Панорамне скління. - Протипожежні вхідні двері. - Мідна ел. розведення по квартирі. - Сталеві Радіатори. - Лічильники води та електрики. - Вид із вікон на Схід, на Київ та ліс. – Будується власний багаторівневий паркінг, паркомісця вже у продажу. - Поруч Ліс, Сади, Липова алея, дитячі та спортивні майданчики, футбольне та баскетбольне поле. - У пішій доступності Ринок, Супермаркети, Нова пошта, Спорт Лайф, салони краси, кафе, школи та дитячий садок. - зупинки маршрутного транспорту біля комплексу. - До метро Теремки пішки 10-15 хвилин, на авто - 2 хв. Телефонуйте в зручний для вас час! Можливе придбання в кредит за програмою єОселя 3%, 7% Код об'єкта: k54`359985`34. АН "Атланта". Більше інформації та світлин за посиланням: https://www.atlanta.ua/kiev/object/2komnatnye/359985
Киев, Голосеевский
єОСЕЛЯ! 2к.квартира ЖК Вудлайн метро Теремки 15 хв Киев 20
  • Двухкомнатная
  • 49.7 м2
  • 9 / 25 эт.
83 000 $
Двокімнатна квартира в ЖК «Вудлайн". Адреса: Лісова 3 ДО МЕТРО ТЕРЕМКИ П'ЯТЬ ХВИЛИН НА МАРШРУТНОМУ ТАКСІ. Загальна площа – 49/29/11,2 кв.м. Поверховість 8/25 Доступна ЄОселя! Квартира з якісно виконаним новим ремонтом. Будинок моноліт+ утеплений (мінеральною ватою). Доглянута прибудинкова територія. В ЖК є гостьовий та в подальшому наземний паркінг. Квартира обладнана усією необхідною для життя технікою та меблями. Ремонт зроблений в 2023 Додатково встановлені лічильники, що безумовно зменшує витрати на комунальні платежі (близько 2000 грн). Лоджія засклена, обшита та утеплена з середини. Є можливість покупки в Іпотеку. Інфраструктура: ТРЦ "МегаМаркет", ТРЦ «Магелан», ТРЦ «Республіка», Одеський ринок, «Спортлайф», Дитячий садок, Парк, зелена зона, Дитячий майданчик, Відділення пошти, Школа, Магазин, ресторан, кав'ярня, Фора, Зупинка транспорту, метро. Поряд: Проспект Академіка Глушкова Метро: "Теремки" (30 хв) пішки. ТЕЛЕФОНУЙТЕ В ЗРУЧНИЙ ДЛЯ ВАС ЧАС! Можливе придбання в кредит за програмою ДМЖ, єОселя 3%, 7% Код об'єкта: k54`282469`34. АН "Атланта". Більше інформації та світлин за посиланням: https://www.atlanta.ua/kiev/object/2komnatnye/282469
Киев, Голосеевский
Єоселя/Без комісії/Продаж 2к квартири ЖК Файна Таун/Без ремонту/Балкон Киев 16
  • Двухкомнатная
  • 54 м2
  • 3 / 15 эт.
126 000 $ Без комиссии
Єоселя/Євідновлення/Постанови/ Продається сучасна двокімнатна квартира в одному з найкомфортніших житлових комплексів міста — Файна Таун від Kan Development. Квартира розташована в будинку №18, який знаходиться безпосередньо на пішохідній прогулянковій зоні та мальовничій алеї — тихе, безпечне та зручне місце для життя. Будинок оснащений двома швидкісними ліфтами, а також має мінус перший поверх, де передбачено укриття на випадок тривоги — ви завжди почуватиметеся в безпеці. Квартира розташована на 3-му поверсі, загальна площа становить 54 м². Планування продумане до дрібниць: • простора кухня-вітальня площею 19,6 м², ідеальне місце для сімейних вечерь або прийому гостей; • дві окремі кімнати, що забезпечують комфортне зонування простору; • великий коридор, де зручно розмістити шафи або гардеробну систему; • суміщений санвузол з можливістю встановлення всього необхідного обладнання; • балкон-тераса, де можна облаштувати зону відпочинку або міні-сад. Квартира не кутова, тому взимку тепла, а влітку зберігає приємну прохолоду. Продаж здійснюється за договором купівлі-продажу без комісії для покупця. Це чудовий варіант для тих, хто цінує якість, комфорт і сучасну архітектуру від надійного забудовника.
Киев, Шевченковский
Перейти на страницу