Киев
Киевская
Искать объявления по всей области

Продажа квартир в Киеве

Продам 3 к квартиру з ремонтом Коновальця 27а, Метро Печерська, Центр! Киев 20
  • Трехкомнатная
  • 72 м2
  • 5 / 5 эт.
135 500 $ Без комиссии
Без %. Коновальця 27а Пропонується до продажу трикімнатна квартира з гарним ремонтом. Загальна площа 72 м.2. Добротний цегляний "сталінський " будинок. Чистий підїзд - квіти на кожному поверсі! Чудове розташуваня - будинок знаходиться в 2 лінії від дороги. Дуже тихо і багато зелені. У дворі є і дитяча і спортивна площадки. Доглянутий під'їзд, консьєрж! Стан квартири - сучасний дизайнерський ремонт з цікавими ексклюзивними елементами. Простора вітальня об'єднана з кухнею - зручне місце зустрічі усією сім'єю! Основна спальня має власну гардеробну кімнату, друга спальня має вбудовану шафу та вихід на засклений і утеплений балкон. Санвузол з душовою системою та ванною. Зручна локація та добре розвинена інфраструктура. В пішій доступності метро Печерська.
Киев, Печерский
Продам 3-к Троещина ул.Сержа Лифаря Закревского Оноре де Бальзака Киев 17
  • Трехкомнатная
  • 65 м2
  • 5 / 9 эт.
70 000 $
Терміново!Простора, світла, затишна 3-кімнатна квартира з окремими кімнатами.Комфортний 5 поверх! У квартирі виконаний якісний ремонт,2 великі лоджії з вмісткими шафами для зберігання,кухня обладнана меблями та побутовою технікою для комфортного проживання.Дуже гарно розвинена інфраструктура та транспортне сполучення.В пішій доступності школи,дитячі садки,cупермаркет,Metro,аптеки,полікліника.
Киев, Деснянский
Продам 3-к  ЖК Кришталеві Джерела ул.Заболотного Метрологическая Киев 16
  • Трехкомнатная
  • 95 м2
  • 5 / 10 эт.
129 000 $
ЖК Кришталеві Джерела. Закрита територія з охороною власним ЖЕКом та великою кількістю паркувальних місць. Всередині ЖК власний парк, дитячі садки, школи,спортмайданчики, кафе, ресторани, магазини. Повністю вся інфраструктура розвинена всередині. Квартира продається з меблями та технікою,все як є.
Киев, Голосеевский
Продам 3 кім. квартиру 114 м2 Шептицького 10 метро Лівобережна Киев 20
  • Трехкомнатная
  • 114 м2
  • 12 / 24 эт.
150 000 $
Продається простора 3-кімнатна квартира з ремонтом. Вул. Митрополита Андрія Шептицького, 10, Лівобережна, Дніпровський район Поверх: 12 Загальна площа: 114 м² Функціональне планування: 2 спальні кімнати Простора кухня-вітальня 2 сучасні санвузли 2 лоджії Квартира розташована в сучасному будинку з ліфтами, охороною та шлагбаумом при в'їзді на територію, що забезпечує максимальний комфорт і безпеку. Ідеальний варіант для родини, яка цінує простір, комфорт і високу якість житла. Зручний доступ до метро (Лівобережна в пішій доступності), розвинена інфраструктура: магазини, школи, кафе — все необхідне для зручного життя поряд.
Киев, Днепровский
Продам 3 кім. квартиру, Олександра Мишуги 3, Позняки Киев 19
  • Трехкомнатная
  • 75.7 м2
  • 15 / 16 эт.
105 000 $
Продам 3 кім. квартиру, Олександра Мишуги 3, Позняки - 7 хвилин пішки 15/16 пов. будинку, 75.7/41.6/8.4м², кімнати окремі, два балкони, сан. вузол окремий. Гарний ремонт , частково залишається побутова техніка та меблі . 105 000 доларів США
Киев, Дарницкий
Продам 3 кім Урлівська Киев 9
  • Трехкомнатная
  • 98 м2
  • 11 / 24 эт.
112 000 $
Продаж теплої та затишної, 3-кімнатної квартири, Дарницький район, за 18 хвилин від двох станцій метро Осокорки та Позняки. Квартира з хорошим ремонтом, вся необхідна побутова техніка, два санвузли, великий тамбур на вході, доглянутий двір, дитячі майданчики, магазини. Встановлено лічильники. Квартира дуже тепла та економна за рахунок індивідуального лічильника на опалення. У квартирі ремонт із дорогих матеріалів та сантехніка, техніка провідних виробників. Продаж з меблями та технікою.; Q-5127
Киев, Дарницкий
Продам 3 кімнатну квартиру в ЦЕНТРІ КИЄВА , закритий двір Киев 19
  • Трехкомнатная
  • 90 м2
  • 5 / 16 эт.
199 900 $
Продам 3 кімнатну квартиру в ЦЕНТРІ КИЄВА , закритий двір Повністью мебльована , вся техніка , все залишається . Вулиця тарасівська Рядом антоновича і Васильківська Закритий двір, крутий ОСББ , працює Все роблять вчасно Генератор на будинок Два ліфти , грузовий та пасажир Сусіди всі адекватні , приємно жити , без якихось моментів Готовий до переглядів
Киев, Печерский
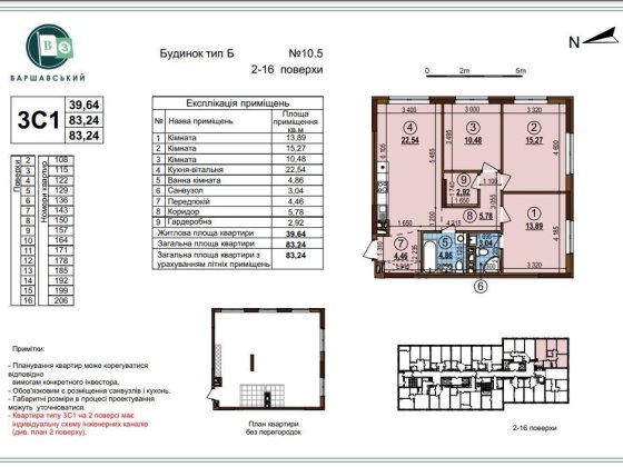
Продам 3-кімнатну квартиру в ЖК Варшавський 3 - буд.10.5 Киев 12
  • Трехкомнатная
  • 83 м2
  • 10 / 16 эт.
102 000 $
Продам 3-кімнатну квартиру в ЖК Варшавський 3. Будинок 10.5 (будівельний номер). Площа 83/40/23м2. План 3С1. Поверх 10/16(18). Квартира після будівельників, готова для ваших дизайнерських рішень. Видова, світла, не межує з ліфтом та сходами. Три окремі кімнати, кухня-вітальня, два санвузли, окрема гардеробна. На підлозі лазерна стяжка, проведено канали під електропроводку, пожежна сигналізація, лічильники на холодну, гарячу воду, електроенергію, вхідні металеві, протипожежні двері, металопластикові вікна Rehau із двокамерним склопакетом. У будинку автономне опалення. Генератор. Закрита територія. Оформлення перепоступки у відділі продажу Столиця груп. Дивіться усі мої оголошення. Великий вибір квартир. Номер оголошення на сайті компанії: SF-3-214-037-LX.
Киев, Подольский
Продам 3-кімнатну квартиру з ремонтом, вул. Ахматової, 13д Киев 20
  • Трехкомнатная
  • 116 м2
  • 21 / 26 эт.
120 000 $
Продається простора 3-кімнатна квартира на Позняках за адресою: вул. Анни Ахматової, 13д. 21 поверх із 26, чудовий краєвид з вікон! Площа: 116,4 м² (житлова — 65,0 м², кухня — 16,8 м²) Ремонт: якісний, робили для себе — можна одразу заїжджати Кімнати: роздільні, світлі та просторі Велика кухня вітальня має дві засклені лоджії. Квартира тристороння, Два санвузли один із яких з вікном. Бойлер на 80л. В передпокої розташована велика шафа купе, лишається вбудована кухня з усією необхідною технікою. При відсутності світла стоїть генератор на один ліфт. Ліфт: є пасажирський і вантажний Будинок: цегляний, теплий Інфраструктура добре розвинута: поряд метро Позняки та Осокорки, ТРЦ, супермаркети, школи, дитсадки, зручна транспортна розв’язка, поряд зона для відпочинку озеро, парк. Телефонуйте для перегляду та додаткової інформації.
Киев, Дарницкий
Продам 3 кімнатну квартиру ЖКGreenville на Печерську Фортечний тупик7в Киев 20
  • Трехкомнатная
  • 138 м2
  • 13 / 23 эт.
525 000 $
Продаж елітної квартири з терасою в ЖК “Greenville на Печерську” Київ, Фортечний (Тверський) тупик, 7в ЖК “Greenville на Печерську”, будинок бізнес-класу (2021–2025 рр) Характеристики квартири: • Площа: 138 м² • Поверх: 13-й з 23 • Кількість кімнат: 3 (дві окремі спальні + кухня-вітальня) • Тераса: 30 м² з обідньою зоною, грилем і шезлонгами • Санвузли: 3 • Додатково: гардеробна, пральня, балкон • Планування: сучасне, функціональне, простора кухня-вітальня — 45 м² Переваги: • Панорамний вид на Київ • Тераса для відпочинку та зустрічей з друзями • Ідеальне планування для сім’ї або пари • Сучасний авторський дизайн від Studio • Високоякісне оздоблення: • паркет «французька ялинка» • італійський керамограніт • освітлення Aromas del Campo (Іспанія) • сходи з натурального дерева Технічне оснащення: • Побутова техніка Siemens • Холодильник Liebherr • Пральна та сушильна машини Про комплекс: • Будинок бізнес-класу, вентильовані навісні фасади • Стіни з цегли, утеплені мінеральною ватою • Залізобетонні перекриття • 3-рівневий підземний паркінг • Закрита територія, охорона, відеоспостереження • Вхід за магнітними картками • Власний парк зі ставком, супермаркет, кафе, дитячий кампус • Ліфти німецького виробництва
Киев, Печерский
Продам  3 комнатную квартиру  по  ул. Верховинца. Медгородок, НАУ Киев 12
  • Трехкомнатная
  • 87 м2
  • 12 / 14 эт.
128 990 $
Продам 3 комнатную квартиру по ул. Верховинца,10 ,12/14 эт., 87/58/14. На Борщаговке ( ориентир станция Семьи Сосниных ) Квартира двухстороняя с евроремонтом и очень комфортная - заходи и живи : видео-домофон, кондиционеры, встроенная мебель, бойлер, 2-а санузла , ванная, душевая кабина , итальянская сантехника, стиральная и посудомоечная машинки, балкон затеклен - с подогревом пола и т.п.. Парадное - бронедверь, магнитный ключ, консьерж, два лифта. Хорошо развитая инфраструктура : магазины, аптека, кафе, стадион, спорт.и детск. площадки , парковка. Удобная транспортная развязка : трамвай , электричка, маршрутные такси и соц.транспорт в разностороннем направлении,
Киев, Святошинский
Продам 3-ох кімнатну квартиру на борщагівці з паркувальним місцем. Киев 9
  • Трехкомнатная
  • 72.5 м2
  • 14 / 16 эт.
78 000 $ Без комиссии
Пропоную 3- кімнатну затишну квартиру по вул. Булгакова 3 ( кікабідзе) розташовану на 14-му поверсі 16-поверхівки. Загальна площа квартири 72 кв.м. Кімнати роздільні .Санвузол роздільний. Квартира з балконом, поміняні радіатори і система опалення. бойлер для гарячої води.У спокійному районі борщагівки з гарною інфраструктурою: поруч школи, дит садочки і супермаркети АТБ, НОВУС, Ашан .В ПОДАРУНОК ПАРКУВАЛЬНЕ МІСЦЕ В ДВОРІ. Торг.
Киев, Святошинский
ПРОДАМ 3х-комнатную квартиру ул. АНТОНОВИЧА 140 м. Палац Україна Киев 20
  • Трехкомнатная
  • 140 м2
  • 3 / 7 эт.
240 000 $ Без комиссии
ПРОДАМ 3х-комнатную квартиру ул. АНТОНОВИЧА 140.год постройки 2011. 140м2 кухня 25м2.3/7 этажного. Две спальни. Большая гостинная. Кухня оборудована мебелью и техникой включая посудомоечную машину.Элитный дом возле дороги. Отличное состояние квартиры. ремонт. новая мебель. телевизор плазма . три кондиционера .стиральная машина. бойлер 100л. на полу натуральный паркет и плитка. пол с подогревом.Встроенная кухня/посудомоечная. варочная поверхность. духовой шкаф. вытяжка. двухкамерный холодильник. Вся мебель и техника остаются. Состояние-заходи и живи.Рядом ТЦ оушен плаза . супермаркеты. Владимирский рынок. СТ. метро ДВОРЕЦ УКРАИНА и метро ЛИБИДСКАЯ. Концертный зал Дворец Украина 240000 дол сша. Сотрудничаю с коллегами.
Киев, Голосеевский
Продам 3к Деснянський р-н Троєщина вул Цвєтаєвої буд 12 Киев 13
  • Трехкомнатная
  • 82.8 м2
  • 1 / 16 эт.
61 000 $
Продам 3к Деснянський р-н Троєщини вул Цвєтаєвої буд 12, 1-16п 82-41-8, с\у окремий кафель,балкон засклан.Квартира двохстороння.Квартира тепла,затишна,комфортна для життя.У кроковій доступності – супермаркети Novus, Сільпо, Варус, продуктовий ринок і ТРЦ «РайON», Fitness-клуб SportLife і мережа кафе/фастфуд (KFC, «Євразія» тощо). На проспекті – зупинки громадського транспорту (маршрутки, автобуси, тролейбуси) з прямим сполученням до метро Лісова/Чернігівська, Почайна. 61000уе Рієлтор Світлана 09******27,09******33 комісія 5%
Киев, Деснянский
Продам 3к кв 85м (3 окремі кімнати) Варшавський 2 Варшавский 2 Власник Киев 20
  • Трехкомнатная
  • 85 м2
  • 19 / 25 эт.
177 777 $ Без комиссии
Продам видову 3к кв Варшавський 2 Варшавский 2 Крістерів 14б 19пов Власник Техніка Bosch ,тепла підлога= кухня, дитяча,сан вузол, гардероб,душова, Кондиціонери 4шт в кожній кімнаті і кухні 《Також є 2к квартири 》 Зв більш детальною інформацією Пишіть звоніть торг
Киев, Подольский
Продам 3к квартира ЖК Manhattan City Берестейський проспект 11 центр Киев 20
  • Трехкомнатная
  • 116 м2
  • 11 / 36 эт.
260 000 $
Виконаний дизайнерський ремонт у 2024 року. Квартира має дивовижний краєвид як на захід сонця вздовж проспекту, так і на центральну частину міста. Автономне електропостачання забезпечує безперебійну роботу ліфту, постачання води та освітлення всього комплексу. Квартира повністю укомплектована технікою від преміальних європейських виробників та дизайнерськими італійськими меблями. кахель з підігрівом на підлозі та підвіконнях, Кондиціонер охолодження та обігрів.
Киев, Шевченковский
Продам 3к. квартиру просп. Г. Гонгадзе 18Д. Без комісії! Киев 17
  • Трехкомнатная
  • 96 м2
  • 21 / 22 эт.
93 000 $ Без комиссии
Продам видову трикімнатну квартиру на Виноградарі, Подільський район, проспект Г. Гонгадзе, будинок 18Д, з видом на ліс та Київське море. Будинок 2004 року. Поверх 21 з 22. Стан квартири житловий. -загальна площа квартири: 96м2 -житлова: 47м2 -кухня: 14 м2 -засклена, утеплена лоджія: 5 м2 -2 санвузли: 5 м2 та 2 м2 -комора(гардеробна): 3 м2 Будинок побудовано в 2005 році. Два ліфта. Під будинком велика платне паркування, під цілодобовою охороною. Супермаркет. Школа. Садочок. В ста метрах лісопаркова зона, та озеро. В пішій 15 хв. доступності добудовують станцію метро. Квартира продається з меблями та технікою. Документи готові на продажу. Дзвоніть домовимось на перегляд.
Киев, Подольский
Продам 3к Сталінка,  м.Шулявська,  КПІ вул. Машинобудівна, 32/22, без% Киев 20
  • Трехкомнатная
  • 67 м2
  • 3 / 5 эт.
79 997 $ Без комиссии
Продам простору , 3 кімн квартиру, Сталінка, 67 м.кв, висота стелі - 3 м. Розглядаємо продаж по державних програмах. Квартира тепла в зимку та прохолодна влітку, має зручне планування та створює відчуття простору. Квартира в житловому стані, мебльована , вбудована кухня, газова плита, холодильник, газова колонка, металопластикові вікна, паркет, балкон засклений і утеплений, лічильники води, газу, лічильник електроенергіі день-ніч, Тихий та затишний двір. Охайний підїзд. Гарні сусіди. Будинок знаходиться у районі з розвиненою інфраструктурою: поруч ВУЗи, школи, садочок, магазини, кінотеатр, ультрамаркет, бізнес центр, парк, зона відпочинку та зручна транспортна развязка: маршрутки, метро Шулявська, КПІ, Берестейська. В будинку є бомбосховище! Документи готові до угоди.
Киев, Соломенский
Продам 3к Верховинця 10 Сім'ї Стешенків Строкача Святошинський Киев 19
  • Трехкомнатная
  • 120 м2
  • 10 / 16 эт.
129 000 $
Розглядаємо безготівковий розрахунок! Верховинця Василя, 10, якісний цегляний будинок, функціональне планування — кухня-студія і три окремі кімнати, два с/в, євроремонт, вбудована кухня з побутовою технікою, шафи-купе, кондиціонери в кожній кімнаті, міжкімнатні двері із натурального дерева, паркетна дошка, єврорадіатори, броньовані двері, ремонт на поверсі, просторе і затишне подвір’я, поруч швидкісний трамвай. Оптимальне співвідношення ціна — якість! Телефонуйте! Квартира заслуговує на Вашу увагу! Святошинський Святошинский Борщагівка Борщаговка Верховинця Василя 10 Верховинца Василия 10 Сім'ї Стешенків Семьи Стешенков Строкача Тимофія Строкача Тимофея
Киев, Святошинский
Продам 3к з ремонтом вул Введенська 5 Поділ СтМ Контрактова Площа-7хв Киев 17
  • Трехкомнатная
  • 95 м2
  • 4 / 6 эт.
210 000 $
Продам квартиру на Подолі біля кінотеатру "Жовтень" вул. Введенська 5. Клубний будинок, в будинку 10 квартир, дві квартири на поверсі. Невисокий четвертий поверх, в будинку газ. Квартира з ремонтом, облаштована дорогими дизайнерськими меблями та найкращою побутовою технікою. Планування: три окремі кімнати, кухня 18м2, роздільний санвузол, два засклених балкона. На підлозі дубовий паркет, столярка теж з дуба, 4 кондиціонера, бойлер. Встановлена охоронна сігналізація. Чисте парадне, парковка біля будинку та закрита парковка під охороною навпроти, відмінно розвинена інфраструктура, велика кількість ресторанів, кафе, офісів та ін. До метро "Контрактова площа" - 7 хв. пішки.
Киев, Подольский
Перейти на страницу