Продажа квартир в Украине

Видова 1-к від васника, Гатне, ЖК Рідний Гатное 15
  • Однокомнатная
  • 42.1 м2
  • 9 / 9 эт.
34 900 $ Без комиссии
Пропонується для продажу однокімнатна квартира, загальна площа 42.1 м.кв, в Гатне ЖК Рідний, вулиця Покровська 2а ,9/9-ти поверхового цегляного будинку. Панорамний краєвид на озера і містечка. Закритий затишний двір, будинок зданий в експлуатацію, В квартиру заведені усі комунікації, чорнова стяжка та штукатурка, встановлений газовий котел, лічильники. Чудова інфраструктура, усе поруч - зупинка маршрутного таксі, озера та ліс. В структурі ЖК є супермаркет «THRASH!» аптека, хімчистка, кавярня, поштомат НОВА ПОШТА. Вартість 34.900.у.о.
Гатное
ВИДОВА! 1-кім дизайнерска квартира Соф Борщагівка,Петрівський квартал Софиевская Борщаговка 12
  • Однокомнатная
  • 40 м2
  • 8 / 11 эт.
60 000 $
Софіївська Борщагівка, вул. Соборна, 105 Поверх: 9/11 | Площа: 37 м² + лоджія засклена 4 м. кв. Будинок цегляний, повністю заселений. Переваги квартири: • Індивідуальне газове опалення (2-контурний котел) • Простора спальня 14 м² • Кухня 10 м² з виходом на засклену лоджію (4 м²) • Гардеробна кімната 4 м² • Панорамні енергозберігаючі вікна • Броньовані двері Продаж з усім: меблі та техніка (духова шафа, варильна поверхня, витяжка, бойлер, пральна машина, Wi-Fi, дрібна техніка) Інфраструктура: • 5 км від Києва • 15 хв до м. Академмістечко, 20 хв до м. Теремки • Поруч школа, садочки, «Сільпо», аптеки, салони, спортмайданчики Перегляд у зручний для вас час.
Софиевская Борщаговка
Видова 1-кім. квартира у новому цегляному будинку! Луцк 16
  • Однокомнатная
  • 44 м2
  • 10 / 10 эт.
43 500 $ Без комиссии
Продам простору й видову однокімнатну квартиру в житловому комплексі "Оберіг" (Привокзальний р-н, вул. Зоряна). Новий цегляний будинок від місцевого луцького забудовника, зданий в експлуатацію у 2021 році і вже заселений мешканцями. Індивідуальне опалення (двоконтурний газовий котел "Bosch", тепла підлога у кухні/коридорі/санвузлі), усі лічильники. Зручне планування з можливістю зонування внутрішнього простору (квадтратної форми кухня у майже 15 кв.м., спальна кімната з двома вікнами, місткий санвузол), наявний відкритий балкон. Перший власник, без прописаних осіб, недороге переоформлення. Чудовий варіант квартири у "готовій" і "вистояній" новобудові, де належним чином функціонують усі комунікації і більшість сусідів вже завершили ремонти. Вигідна пропозиція в якості особистого житла або інвестиційного об'єкту, задля подальшої здачі в оренду. Телефонуйте - квартира дійсно гідна Вашої уваги
Луцк
Видова 1-кімнатна квартира у ЖК Медовий! Киев 13
  • Однокомнатная
  • 42 м2
  • 22 / 25 эт.
45 500 $
Пропонується чудова можливість придбати сучасну однокімнатну квартиру в ЖК "Медовий", де поєднуються комфорт, якість і сучасні рішення. Квартира знаходиться на 22-му поверсі новозбудованого цегляного будинку (секція 5), її вільне планування дозволяє втілити будь-які дизайнерські ідеї. Загальна площа складає 42 м², зокрема простора кухня — 12 м², що стане ідеальним місцем для кулінарних експериментів. Суміжний санвузол додає практичності, а висота поверху відкриває захоплюючі краєвиди міста, особливо на заході сонця. Балкон і лоджія створюють затишну атмосферу для ранкової кави або вечірнього відпочинку. Будинок обладнаний усім необхідним для комфорту: сучасні ліфти, зокрема вантажний, система відеоспостереження та охорона, а також конс'єрж-сервіс для вирішення повсякденних питань. Підземний і гостьовий паркінги знімають проблему з пошуком місця для авто. ЖК "Медовий" — це зразок комфорт-класу, де продумана кожна деталь. Усі комунікації підключені: центральне водопостачання, каналізація, електрика, асфальтовані дороги, а швидкісний інтернет забезпечить постійний доступ до мережі. Локація комплексу теж є перевагою: за 10 хвилин пішої прогулянки можна дістатися до зупинки Кадетський Гай, звідки легко потрапити в будь-який район міста. Пропозиція термінова, пряма угода робить її ще вигіднішою. Ціна: 45500 $ + 5% комісії. Податки сплачує продавець!! Для отримання додаткової інформації та організації перегляду звертайтесь за вказаними контактами.
Киев, Соломенский
Видова 1-кімнатна квартира в Бучі! Терміново! Буча 16
  • Однокомнатная
  • 36 м2
  • 7 / 9 эт.
27 000 $ Без комиссии
Продам видову 1-кімнатну квартиру в Бучі. В квартиру дуже коасний вид на сквер. Красивй, розвинений мікрорайон, поряд є все, необхідне для комфортного проживання: супермкаркети, магазини, поряд зупинка маршрутки до метро, до електрички пішки 5 хвилин. Класне планування: кухня-студія+ простора кімната.
Буча
Видова 1 кімнатна квартира в ЖК Паркова Алея Угорники 4
  • Однокомнатная
  • 42 м2
  • 6 / 14 эт.
39 900 $ Без комиссии
Продається видова 1 кімнатна квартира в ЖК Паркова Алея. Видова квартира на річку та місто . середній 6 поверх, функціональне планування. ЖК Паркова алея – простір, де народжуються мрії, де щоденний комфорт стає нормою життя. Все створено з турботою про ваш побут: зелений затишний двір, сучасний дитячий майданчик, доглянута територія з ландшафтним дизайном, власні гаражні бокси та сучасна система безпеки. Спокійна атмосфера, тиша й свіже повітря – усе це завдяки вдалому розташуванню, подалі від міського шуму, у місці, де панує затишок і гармонія. Хороша локація з розвинутою інфраструктурою : Поруч – набережна , відпочинкові зони, магазини, кавʼярні, аптеки, дитсадок та школа, жодної критичної інфраструктури. Тут є все, щоб жити комфортно і насолоджуватися кожним днем. Дана квартира чудовий вибір для молодої пари, студента чи як інвестиція під оренду. Будинок на етапі здачі. Зацікавило, телефонуйте, щоб дізнатися більше та домовитися про перегляд.
Угорники
Видова 1-кімнатна квартира, вул. Скоропадського, 14      є відеоогляд Трускавец 20
  • Однокомнатная
  • 61 м2
  • 9 / 9 эт.
51 500 $
Продається мансардна видова квартира в новобудові від забудовника «Галицький Двір» м. Трускавець, вул. Скоропадського, 14 Загальна площа: 62 м² Житлова площа: 18 м² Кухня: 26 м² Ванна: 6 м² Коридор: 11 м. Особливості: Мансардна квартира житлового стану з газовим опаленням Захоплюючий вид з вікон для любителів чогось незвичайного Ліфт у будинку Новобудова від надійного забудовника Зручне розташування: Поруч школа, дитячий садок, лікарня, супермаркет, зупинки громадського транспорту. Цей комплекс відзначається сучасною архітектурою та розташуванням у центрі міста, що робить його привабливим для мешканців та інвесторів. Дзвоніть для перегляду та деталей!Є відео.
Трускавец
Видова 1к квартира  в Гостомелі. Газ. Гостомель 6
  • Однокомнатная
  • 40 м2
  • 8 / 10 эт.
39 000 $ Без комиссии
Видова 1к квартира 40 кВ.м в зданому та заселеному будинку в Гостомелі. 8 поверх Зроблена розводка електрики, стяжка та штукатурка. Великий санвузол. В коридорі класна ніша під гардеробну. Квартира світла та тепла. Будинок цегляний. Опалення газове. Мінімальне оформлення. Телефонуйте, домовимося про перегляд
Гостомель
Видова 1к квартира вул Закревського 35 початок Троєщини Киев 20
  • Однокомнатная
  • 43 м2
  • 15 / 16 эт.
36 000 $
Адреса: вул. Миколи Закревського 35, Деснянський район Площа: 43,2 / 17,9 / 8,4 м2 Поверх: 15-й/16 Квартира з чудовим плануванням, 2 великі лоджії, гарний вид з вікон! Санвузол роздільний. Закритий тамбур під ключ від ліфтів. Квартира потребує ремонту Панельний будинок, збудований в 1983 році (керамзитобетонна панель). У будинку 1 чисте парадне з домофоном. Затишний тихий двір, багато місця для паркування авто. Поруч з будинком чудовий парк, недалеко озеро і ліс. Поруч супермаркети АТБ, Метро, ТЦ Фестивальний, "Троєщинський" ринок, поліклініка та інша інфраструктура. Хороша транспортна розв'язка - трамваї, автобус №101. До метро Петрівка 20 хв їзди на маршрутці, до м. Чернігівська 15-20 хв. Квартира вільна, чистий продаж, власники в Києві. З питань перегляду будь ласка телефонуйте!
Киев, Деснянский
Видова 1к квартира з дизайнерським ремонтом ЖК Лісовий квартал Бровары 20
  • Однокомнатная
  • 42.7 м2
  • 22 / 26 эт.
63 000 $
В продажу видова квартира з дизайнерським ремонтом оснащена меблями та технікою на 22 поверсі в ЖК лісовий квартал. В центрі міста, поряд ТЦ, Сільпо, зупинка транспорту, KFC, ринок, басейн, школи, садочки і тп + податки+ комісія агенства нерухомості Перегляди за домовленністю
Бровары
Видова 1к квартира з відкритим балконом у зданому ЖК/Є розтермінування Дымер 11
  • Однокомнатная
  • 38 м2
  • 5 / 5 эт.
22 100 $ Без комиссии
Продаж без посередників та без комісії! Офіційний відділ продажу! Є можливість отримати розтермінування БЕЗ здорожчання і одразу зайти на ремонті роботи при першому внеску 50%! *Газове опалення від двуконтурного котла. *Сучасне планування, кухня-вітальня 14м2. *Балкон ( є можливість обрати відкрити або засклений). *Вже виконане чистове оздоблення стін. *Всі комунікації підключені. єОселя - так! Дане планування також є вільне на сердніх поверхах. Телефонуйте, записуйтеся на перегляд та встигніть придбати своє найкраще планування по вигідній ціні!
Дымер
Видова 1к квартира з відкритим балконом зданий,заселений ЖК "Сімейний" Дымер 10
  • Однокомнатная
  • 38 м2
  • 5 / 5 эт.
22 113 $ Без комиссии
Продаж від офіційного забудовника без комісії без посередників! Є можливість отримати розтермінування без переплат. Якщо Ви полюбляєте проводити час на балконі з гарним виглядом, то ця квартира саме для Вас! У квартирі зручне планування. Кухня-вітальня 14м2. Відкритий балкон. (також є можливіть обрати засклений балкон на середніх поверхах). Всі комунікації підключені, можна заходити на ремонт та проживати. Газове опалення, що збереже Ваші витрати на комунальних платіжках. У квартирі вже виконане чистове оздоблення стін. Поруч у пішій доступності розвинена інфраструктура міста, а також зупинка громадського транспорту по місту та до Києва. За більш детальною інформацією телефонуйте та записуйтеся на перегляд!
Дымер
‼️ Видова 1к квартира ‼️ ЖК Софія Резиденс є розстрочка Софиевская Борщаговка 13
  • Однокомнатная
  • 38 м2
  • 5 / 10 эт.
45 799 $ Без комиссии
Комплектація квартири: - Двоконтурний газовий котел індивідуального опалення. Ви самі опалюєте квартиру та грієте воду. - Розведене опалення та радіатори. - Тепла підлога на кухні та лоджії (від двоконтурного котла). - Металопластикові вікна. 6-ти камерний профіль та 2-х камерний склопакет (3 скла). - Панорамне вікно на кухні на лоджії. - Броньовані двері із МДФ накладкою. - Стяжка рівна (можна вже укладати покриття для підлоги). - Чорнова машинна штукатурка стін. - Розведена електрика по всій квартирі (основні точки). - Лічильники: газ, світло, вода. - Висота стель від стяжки 2,75м. ЖК Софія Резиденс: - Закрита територія (в'їзд/виїзд відео фіксація номерів, шлагбаум, вхід/вихід по магнітах). - Своя охорона (пропускний режим, патруль, камери відеоспостереження). - 2 дитячі садки. - Гімназія. - Безліч дитячих, спортивних та ігрових майданчиків, сквер, озеро, фонтан. - Поліклініка зі стаціонаром. - Ландшафтний дизайн. Дороги та тротуари – бруківка. Підземні сміттєві баки (вздовж центрального проспекту) - Арка в'їзду – оригінальна "вхідна група". - Окремий виїзд на Окружну дорогу. - Багаторівневий паркінг. - 600 м до Окружної дороги. - Маршрутне таксі (904) до метро ВДНГ, (717) до метро Академмістечко
Софиевская Борщаговка
‼️ Видова 1к квартира ‼️ ЖК Софія Резиденс є розстрочка Софиевская Борщаговка 10
  • Однокомнатная
  • 39 м2
  • 5 / 10 эт.
47 076 $ Без комиссии
Комплектація квартири: - Двоконтурний газовий котел індивідуального опалення. Ви самі опалюєте квартиру та грієте воду. - Розведене опалення та радіатори. - Тепла підлога на кухні та лоджії (від двоконтурного котла). - Металопластикові вікна. 6-ти камерний профіль та 2-х камерний склопакет (3 скла). - Панорамне вікно на кухні на лоджії. - Броньовані двері із МДФ накладкою. - Стяжка рівна (можна вже укладати покриття для підлоги). - Чорнова машинна штукатурка стін. - Розведена електрика по всій квартирі (основні точки). - Лічильники: газ, світло, вода. - Висота стель від стяжки 2,75м. ЖК Софія Резиденс: - Закрита територія (в'їзд/виїзд відео фіксація номерів, шлагбаум, вхід/вихід по магнітах). - Своя охорона (пропускний режим, патруль, камери відеоспостереження). - 2 дитячі садки. - Гімназія. - Безліч дитячих, спортивних та ігрових майданчиків, сквер, озеро, фонтан. - Поліклініка зі стаціонаром. - Ландшафтний дизайн. Дороги та тротуари – бруківка. Підземні сміттєві баки (вздовж центрального проспекту) - Арка в'їзду – оригінальна "вхідна група". - Окремий виїзд на Окружну дорогу. - Багаторівневий паркінг. - 600 м до Окружної дороги. - Маршрутне таксі (904) до метро ВДНГ, (717) до метро Академмістечко
Софиевская Борщаговка
‼️ Видова 1к квартира ‼️ ЖК Софія Резиденс є розстрочка Софиевская Борщаговка 16
  • Однокомнатная
  • 43 м2
  • 5 / 10 эт.
52 570 $ Без комиссии
Комплектація квартири: - Двоконтурний газовий котел індивідуального опалення. Ви самі опалюєте квартиру та грієте воду. - Розведене опалення та радіатори. - Тепла підлога на кухні та лоджії (від двоконтурного котла). - Металопластикові вікна. 6-ти камерний профіль та 2-х камерний склопакет (3 скла). - Панорамне вікно на кухні на лоджії. - Броньовані двері із МДФ накладкою. - Стяжка рівна (можна вже укладати покриття для підлоги). - Чорнова машинна штукатурка стін. - Розведена електрика по всій квартирі (основні точки). - Лічильники: газ, світло, вода. - Висота стель від стяжки 2,75м. ЖК Софія Резиденс: - Закрита територія (в'їзд/виїзд відео фіксація номерів, шлагбаум, вхід/вихід по магнітах). - Своя охорона (пропускний режим, патруль, камери відеоспостереження). - 2 дитячі садки. - Гімназія. - Безліч дитячих, спортивних та ігрових майданчиків, сквер, озеро, фонтан. - Поліклініка зі стаціонаром. - Ландшафтний дизайн. Дороги та тротуари – бруківка. Підземні сміттєві баки (вздовж центрального проспекту) - Арка в'їзду – оригінальна "вхідна група". - Окремий виїзд на Окружну дорогу. - Багаторівневий паркінг. - 600 м до Окружної дороги. - Маршрутне таксі (904) до метро ВДНГ, (717) до метро Академмістечко
Софиевская Борщаговка
Видова 1к в ЖК Навігатор-2 з ремонтом на Оболоні. Без комісії! Киев 16
  • Однокомнатная
  • 45 м2
  • 18 / 25 эт.
55 700 $ Без комиссии
Шикарна квартира з ремонтом у ЖК Navigator-2 – вул. Коноплянська, 22 (Оболонський район) . Без комісії та додаткових витрат! Квартира знаходиться в будинку №3, видача ключів у вересні 2025 року. Площа: 45,40/ кімната 19 метрів/ кухня 12 метрів. Квартира з внутрішнім оздобленням і всім необхідним для життя: -металеві вхідні двері, металопластикові вікна Rehau; -міжкімнатні двері з сучасною фурнітурою -Повний комплект сантехнічного обладнання; -радіатори, розетки та вимикачі; -Шпалери під покраску та багети на стелі; -лінолеум та пластикові плінтуси; -лічильники води та електроенергії та тепла. Будинок з нової покращеої панелі: високі стелі та великі вікна, також є можливість робити перепланування. Зовнішнє утеплення: вентильований фасад HOSTROCK із мінеральної вати+ керамічна плитка для облицюваня. Обслуговуванням будинку займається компанія "Комфорт-майстер" (ЖЕК від ДБК). У парадному є консьєрж. Комплекс розташований в безпосередній близькості від метро: до станцій Мінська та Оболонь можна швидко дістатися за допомогою транспорту за 7 хвилин. Поблизу нових будинків ви знайдете всю необхідну інфраструктуру. Згодом на перших поверхах новобудов відкриються магазини, кафе, салони краси, офіси. Дзвоніть, щоб домовитися на перегляд та уточнити актуальні ціну та поверх. З повагою, Марина
Киев, Оболонский
ВИДОВА 1к з ремонтом від власника! ЖК Park lake city Подгорцы 10
  • Однокомнатная
  • 48 м2
  • 4 / 4 эт.
147 000 $ Без комиссии
Тільки телеграм та вайбер ! Додатковий номер: 09********08. Продам свою видову однокімнатну квартиру в зданому будинку 1.1 з дизайнерським ремонтом. Повністю укомплектована. Спальня та кухня-вітальня виходять вікнами на озеро! Парк Лейк сіті 48 м2 краси на 4 поверсі зданого будинку 1.1. Дизайнерський якісний ремонт з повною комплектацію. Стіни під фарбування Caparol преміум лінійка. На підлозі паркет з ясеня в натуральному кольорі. Натяжна матова стеля в чорному профілі та антиплінтус на підлозі. Двері прихованого монтажу Папа Карло з чорною фурнітурою AGB Italy. Сантехніката Villeroy and Boch, Grohe, Devit. Два чорні Кондиціонери Cooper Hunter Тепла підлога із датчиком з функцією Wi-Fi. Техніка марок Bosch та Samsung, прально-сушильна машина Haier. Телевізор Самсунг. Всі корпусні меблі власного виробництва на індивідуальне замовлення на найкращій фурнітурі Blum з австрійських матеріалів. Величезна містка шафа завдяки переплануванню Мʼякі меблі італійського бренду Carvellі, Frankoff у тканинах високого класу зносостійкості. І головне - топова тераса на озеро з прямим видом для ваших затишних сніданків та вечорів. Park lake city - це найкращий заміський комплекс в 10 хвилинах від Києва, з власним озером та пляжем, риболовлею, зоною bbq, community club, дитячими та спорт майданчиками в Підгірцях. Також в наявності така ж квартира, але в світлих тонах. З ідентичним видом з вікна та площею Є відеоогляд за потреби. Перегляди в будь-який час
Подгорцы
Видова 2кімнатна квартира в центрі!Без комісії!Закрита Територія!Газ! Ирпень 9
  • Однокомнатная
  • 44 м2
  • 10 / 10 эт.
46 000 $ Без комиссии
Видова квартира в центрі міста. Закрита територія. Індивідуальне газове опалення. Всі програми-так ! Квартира актуальна Телефонуйте Продаж без комісії.
Ирпень
Видова! акційна ! готова квартира 49м2! Без комісії Софиевская Борщаговка 8
  • Однокомнатная
  • 49 м2
  • 10 / 10 эт.
33 600 $ Без комиссии
Продаж квартири від забудовника! Акційна видова квартира! Будинок Заселено! Будинок введено в експлуатацію в Листопаді 2023 року! Підходить під програму єОселя або єВідновлення. Комунікації під’єднані! Газ є! Право власності при купівлі! Розтермінування на рік! Всі черги будівництва введенні в експлуатацію! Планування квартири: Загальна площа: 47,7м2 Спальня: 22, 9м2 Кухня: 11,2м2 Передпокій: 6,8м2 Лоджія:3м2 Сан вузол 3.8
Софиевская Борщаговка
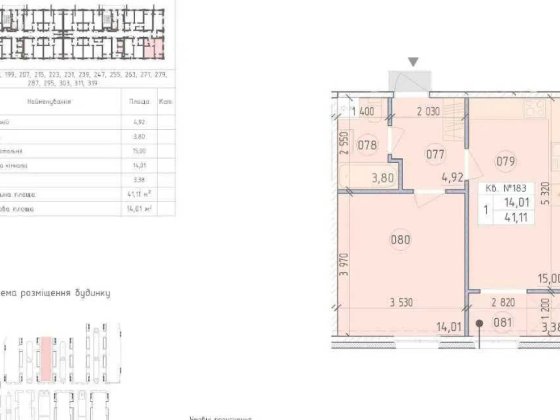
ВИДОВА кутова 1к квартира 41м2 буд. Віндзор ЖК Нова Англія БЕЗ КОМІСІЇ Киев 6
  • Однокомнатная
  • 41.11 м2
  • 16 / 21 эт.
70 000 $ Без комиссии
Пропонуємо на продаж ВИДОВУ квартира на 4 вікна, вид в сторону Києва ЖК Нова Англія Вул. Максимовича Будинок Віндзор Загальна площа 41,11 м2 13 поверх з 21 Зручне і популярне планування: - Житлова кімната 14,02 м²; - Кухня-вітальня 15,42 м²; - Лоджія 3,62 м²; - Санвузол 3,93 м²; - Передпокій 4,16 м². Квартиру можна легко перепланувати за вашими побажаннями, реалізуючи найкращі дизайнерські рішення! Оздоблення під ремонт: - Заведена гаряча та холодна вода; - Стяжка під ламінат; - Радіатори з регуляторами тепла; - Електрика; - Лічильники для опалення, електрики, холодної та гарячої води; - Панорамні металопластикові вікна. У ЖК Нова Англія є все для комфортного проживання: - Підземний паркінг, що може використовуватися як укриття, також є наземний і гостьовий паркінг на території комплексу; - Закрита територія з відеоспостереженням; - Дитячий садок, школа та дитячі ігрові майданчики, розважальні та розвивальні заклади на перших поверхах; - Спортивні майданчики та алеї для прогулянок; - Магазини, аптеки, пошта, салони краси та багато інших закладів на перших поверхах; - Облаштоване місце для вигулу домашніх тварин; До метро Васильківська 10 хв пішки! Є вибір квартир в ЖК "Нова Англія"! Ціна вказана БЕЗ КОМІСІЇ та ДОДАТКОВИХ ВИТРАТ ! Подивитись квартиру можливо по домовленності КЛЮЧІ В НАШОМУ ОФІСІ Телефонуйте!
Киев, Голосеевский
Перейти на страницу