Без комиссии
1  / 7
ЖК Аристократ 1-к квартира Підходить під Є-Оселя Спецкошти - фото 1
ЖК Аристократ 1-к квартира Підходить під Є-Оселя Спецкошти - фото 2
ЖК Аристократ 1-к квартира Підходить під Є-Оселя Спецкошти - фото 3
ЖК Аристократ 1-к квартира Підходить під Є-Оселя Спецкошти - фото 4
ЖК Аристократ 1-к квартира Підходить під Є-Оселя Спецкошти - фото 5
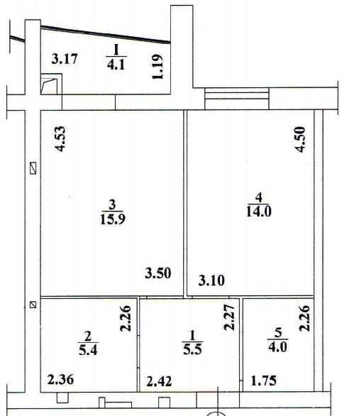
ЖК Аристократ 1-к квартира Підходить під Є-Оселя Спецкошти - фото 6
ЖК Аристократ 1-к квартира Підходить під Є-Оселя Спецкошти - фото 7

ЖК Аристократ 1-к квартира Підходить під Є-Оселя Спецкошти

Житомир, Музыкальная фабрика

Пожаловаться
59 800 $
1 223 $ за м²
1 просмотр объявления | 0 сегодня Показать статистику
Добавлено: 2 апреля 2026, ID: 4894231
Характеристики
  • Без комиссии Да 
  • Комнат
  • Общая площадь 48.9 м2
  • Площадь кухни 15.9 м2
  • Этаж
  • Этажность 10 
  • Ремонт После строителей 
  • Тип стен Кирпичный 
  • Коммуникации Газ, Центральный водопровод, Электричество, Центральная канализация 
Описание
Центральна частина міста.
1 кімнатна квартира в ЖК "Аристократ", секція № 2.
Вже введена в експлуатацію.
Зручний 6-й поверх. Вікна - на захід.
Опалення автономне газове.
Стан - після будівельників.
Підходить під є-оселя, спецкошти, є-відновлення чи кредит. Умови такого придбання - до обговорення.
ВЛАСНИК. Без комісії за послуги агенції з покупця (економія покупцю біля 4 %).
Агенціям власник НЕ платить. Своїм клієнтам можете пропонувати. Агентам - щодо інших умов співпраці прошу не турбувати.
Обратная связь
Григорій
офлайн
Похожие объявления
Терміново!Продам 3-кімнатну квартиру Євгена Танцюри/Івана та Юрія Лип під програму Одесса 13
  • Трехкомнатная
  • 93 м2
  • 4 / 10 эт.
92 999 евр.
Коли люди шукають квартиру — вони думають про майбутнє. А коли бачать цей варіант — розуміють, що майбутнє вже готове. 93 м² безпеки, простору та стабільності у будинку, який давно введений в експлуатацію. Поки хтось вкладає кошти в квадратні метри з очікуванням на 2026 рік, ви вже сьогодні можете отримати готову сімейну квартиру з усім, що важливо саме зараз: ✔ газ ✔ автономне живлення до 7 діб ✔ укриття ✔ ремонт ✔ меблі та техніка ✔ три окремі спальні + кабінет ✔ 2 лоджії ✔ 4 поверх із 10 Для порівняння: у ЖК Аврора новобудова в цьому ж сегменті коштує дорожче, але без ремонту, без меблів і з відкладеним комфортом. Тут ви не купуєте “перспективу”. Ви купуєте результат. Не бетон. Не обіцянки. Не рендер. А готовий простір для життя, де все вже працює на вас і вашу родину. Квартира для тих, хто обирає не квадратні метри — а рівень життя. Телефонуйте. Бо такі об’єкти ринок довго не тримає.
Одесса, Хаджибейский
БЕЗ % Продажа 2к квартиры, ул. Максима Кривоноса 10, Севастопольская площадь Киев 16
  • Двухкомнатная
  • 54 м2
  • 4 / 4 эт.
56 000 $ Без комиссии
БЕЗ % Продажа 2к квартиры, ул. Максима Кривоноса 10, Севастопольская площадь Продам 2к квартиру в Соломенском районе, Севастопольская площадь • Квартира на 4 /4 этажа, сталинка, кирпичный дом, газ • Общая площадь 54 м2, жилая 26 м2, кухня 7 м2 • Квартира в жилом состоянии, требуется ремонт • Балкон застеклен, своя комора под продукты, холл • Тихое место, рядом парковка, • Развитая инфраструктура, АТБ, ФОРА, магазины, кафе, • Ближайшее метро: Шулявская, Лыбедская, Вокзальная, Лукьяновская • Отличная транспортная развязка, Севастопольская площадь. . Ціна 56 000 $ БЕЗ КОМИСИИ! Ключи на сделке! Тел. 067-445-68-04
Киев, Соломенский
Продаж 1 кімнатної квартири Проспект Романа Шухевича, 28а Киев 5
  • Однокомнатная
  • 34 м2
  • 4 / 16 эт.
39 000 $
Продається однокімнатна квартира на проспекті Романа Шухевича, 28а. Будинок серії БПС 1980 року, 4 поверх 16 поверхового будинку. Технологія будівництва - Утеплена панель, Тип будинку - Чеський проект. Немає газу, кухонна плита електрична. Загальна площа 34 кв.м, житлова кімната 17 кв.м, кухня 8,3 з виходом на балкон. Квартира має дуже зручне та популярне планування, стан житловий, але - після квартирантів. Із плюсів: встановлені метало-пластикові вікна, броньована дверь, мінялися труби. Під’їзд закривається на магнітний ключ. Будинок знаходиться у затишному дворі. Квартира дуже тепла і світла. Вікна виходять на парковку. Є балкон. Будинок розташований у мікрорайоні з розвинутою інфраструктурою: дитячий садочок у дворі, школа неподалік, невеличкий ринок, Сільпо, пошта, кав’ярні, крамнички. Поряд зупинка громадського транспорту у напрямку М.Чернігівська, М.Лівобережна та М.Почайна. Через дорогу маємо канал с пішохідною зоною для прогулянок. Ніхто не прописаний, первинні документи, за необхідністю готові до якомога швидкого оформлення, Ціна 39000 у.о. тел 050 355 37 45 Катерина
Киев, Днепровский
офлайн
Григорій
На сайте с 16 апреля 2020