Без комиссии
1  / 5
Таун в закритому котеджному містечку по гарячій ціні ‼️ - фото 1
Таун в закритому котеджному містечку по гарячій ціні ‼️ - фото 2
Таун в закритому котеджному містечку по гарячій ціні ‼️ - фото 3
Таун в закритому котеджному містечку по гарячій ціні ‼️ - фото 4
Таун в закритому котеджному містечку по гарячій ціні ‼️ - фото 5

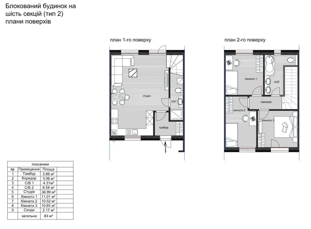
Таун в закритому котеджному містечку по гарячій ціні ‼️

Петропавловская Борщаговка

Пожаловаться
105 600 $
1 173 $ за м²
0 просмотров объявления | 0 сегодня
Добавлено: 22 марта 2026, ID: 4863240
Характеристики
  • Без комиссии Да 
  • Тип дома Таунхаус 
  • Комнат
  • Общая площадь 90 м2
  • Этажность
  • Площадь участка 1 сот.
Описание
Таунхаус в закритому котеджному містечку під охороною , класна локація - ліцей в пішій доступності .
Тиха не проіздна , асфальтована вулиця

90 м2 - своя парковка на 2 авто , свій дворик

Комунікації :
-центральне водопостачання
-центральна каналізація
-газ
-електрика

Для деталей - телефонуйте
Обратная связь
Анастасія . Відділ продажу забудовника
офлайн
Похожие объявления
4-к будинок Дніпро, Ювілейне, 210000 $ Днепр 20
  • Четырехкомнатная
  • 360 м2
  • 12.5 соток
210 000 $
тел. 095 528 1117 Продам дом (под чистовую отделку)в смт Слобожанском, ул. Калиновая - идеальное место для жизни большой семьи или развития бизнеса! Общая площадь дома 360кв.м, что обеспечивает максимальный комфорт и пространство для всех членов семьи. Дом имеет 2 полноценных этажа и мансарду, а также систему отопления и водоснабжения, разведённую электрику и установленную разводку кондиционеров. Все коммуникации газ, свет 380v 10квт, а также стены отшпаклёваны, установлены инсталляции и разводка холодной и горячей воды. Практически каждая комната имеет свой гардероб и собственный санузел. Дом выполнен из красного кирпича,крыша из мягкой кровли на металокаркасе, что гарантирует долговечность и защиту от внешних факторов. Участок земли 12,5 с приватизирован, полностью огорожен. Мы готовы выслушать предложения и организовать показ в удобное для вас время. будинок, стіни: керамічна цегла; житлових повірхів: 2; ділянка: 12.5 сот.
Днепр
7-к будинок Дніпро, Індустріальний, 215000 $ Днепр 20
  • 7 комнатная
  • 322 м2
  • 5 соток
215 000 $
Продам просторий будинок в Індустріальном районі, на вулиці Кривоноса. Будинок побудований з ракушняку і обкладений цеглою. Загальна площа 322 кв.м, два повноцінних поверхи та мансарда. У будинку 7 кімнат, 4 санвузли, камін на дровах та кондиціонери. Автономне газове опалення, вигребна яма, вся меблі та техніка залишаються. На мансардному поверсі обладнано ще одну міні-кухню. На задньому дворику є господарська будівля та парковка на 5 автомобілів під навісом з автоматичними воротами і сигналізацією. Ділянка приватизована, 5 соток. Торг можливий. будинок, стіни: черепашник; житлових повірхів: 2; ділянка: 5 сот.
Днепр
4-к котедж Новомосковський, Піщанка, 199000 $ Песчанка 14
  • Четырехкомнатная
  • 166 м2
  • 1.5 сотка
199 000 $
Пропонуємо у продаж двоповерховий будинок площею 166 кв.м, розташований у зеленій зоні закритого клубного містечка Goodwill residence, с.Піщанка Дніпропетровська обл. Будинок збудований з дотриманням високих стандартів якості: Монолітний каркас, енергоефективні стіни з утепленням Система опалення DAIKIN Фільтрація води Енергоощадні вікна та двері SCHUCO Димохід під камін інтегровано в проєкт Зовнішнє оздоблення клінкером та фасадною дошкою Перший поверх це простір для життя та відпочинку: кухня, їдальня і вітальня з каміном створюють єдину атмосферну зону, що виходить на затишну терасу. На другому рівні три спальні з виходом на балкон Житлове містечко розташоване серед вікових сосен поблизу річки, біля готельного комплексу GOOD ZONE. До ваших послуг власний пляж, спа-комплекс, відкриті басейни, ресторан, дитячі майданчики, зони активного відпочинку та інфраструктура готельного рівня. Будинок введено в експлуатацію. Документи готові до продажу. котедж, стіни: моноліт; житлових повірхів: 2; ділянка: 1.5 сот.
Песчанка
офлайн
Анастасія . Відділ продажу забудовника
На сайте с 16 апреля 2020