1  / 5
Стоматологія iDent, Петрівський квартал - фото 1
Стоматологія iDent, Петрівський квартал - фото 2
Стоматологія iDent, Петрівський квартал - фото 3
Стоматологія iDent, Петрівський квартал - фото 4
Стоматологія iDent, Петрівський квартал - фото 5

Стоматологія iDent, Петрівський квартал

Святопетровское

Пожаловаться
135 000 $
1 875 $ за м²
2 просмотра объявления | 0 сегодня Показать статистику
Добавлено: 6 марта 2026, ID: 4825686
Характеристики
  • Расположение Фасадное помещение 
  • Тип объекта Нежилое помещение в жилом фонде 
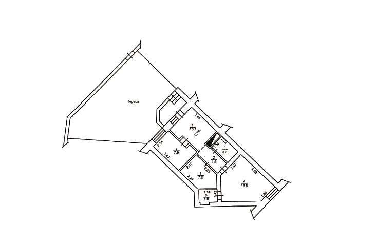
  • Общая площадь 72 м2
  • Этаж
  • Этажность
  • Ремонт Да 
  • Санузел Да 
  • Отопление Комбинированное 
Описание
Продаж.
Стоматологія iDent.
Жк Петрівський квартал,
Святопетрівське, вул. Богдана Хмельницького 1-Б.
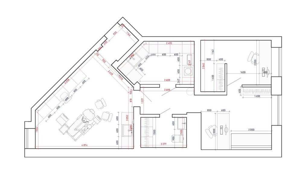
Готовий бізнес з ремонтом та обладнанням для повного спектру стоматологічних послуг.
Площа 71,8м
Вартість 135000$

Стоматологічна установка Galit, Gallant Omnipatique Eco Next
Мікроскоп Scaner Calipso МД-500
Безтіньовий світильник D-Tec Brite
Аспіраційна система Durr Dental VS250S (мокра помпа)
Компресор DK50-10Z/M з осушувачем
Апарат інгаляційної аналгезії D-MDM, цифровий, MATRX
Автоклав Granum 18B CLASSIC
Камера для зберігання стерильних виробів Панмед-5М...
Обратная связь
Леонид
офлайн
Похожие объявления
Продаж Склад/Клас-А/25 км від метро Нивки Киев 9
  • 10000 м2
  • 1 / 1 эт.
940 $
Продаж логістичного хабу класу А (25 км від метро "Нивки" по Житомирській трасі) Пропонується до продажу сучасний логістичний хаб класу А, розташований у с. Копилів, за 25 км від станції метро "Нивки" по Житомирській трасі. Характеристики комплексу: Загальна площа території: 2,6 Га. Електропостачання: Власна трансформаторна підстанція потужністю 1 МВт. Склади: Робоча висота: 12 м. Навантаження на підлогу: 7 т/м². Загальна висота стелі: 15,83 м. Тип підлоги: топпінг. Конструктив: колони з кроком 12х24 м та 12х12 м (змішаний тип). Зовнішні стіни: сендвіч-панелі товщиною 150 мм з мінеральною ватою. Докові ворота: 11 одиниць (8 з вбудованими доклевелерами та 3 висувні коридорного типу). Інфраструктура та сервіси: Цілодобова охорона. Надійне укриття. Регулярне прибирання та благоустрій території. Обслуговування інженерних мереж. Незалежне енергопостачання. Високошвидкісний інтернет. Паркінг. Безкоштовний сервіс для персоналу та водіїв вантажівок: два побутові блоки, обладнані душовими кабінами, туалетами, переодягальнями та кухонними кімнатами. Умови продажу: Введення в експлуатацію: 2 квартал 2026 року. Доступні площі для продажу: Окремі юніти: 4200 м², 3782 м², 2233 м². Цілий склад: 11541 м². Офісні приміщення: 1000 м² (доступні додатково). Можливість розстрочки платежів.
Киев
Продається приміщення в центрі Здолбунова Здолбунов 17
  • 241 м2
  • 2 / 2 эт.
49 000 $
Продається комерційна нерухомість — майновий комплекс у м. Здолбунів, вул. Богдана Хмельницького, 10 Також є заїзд та вхід з вулиці Ясна. До продажу пропонується частина функціонального майнового комплексу, що включає адміністративний будинок, цегляний гараж та прибудинкову територію. Об’єкт ідеально підходить для розміщення офісів, торгово-складського приміщення, сервісного центру чи іншого виду комерційної діяльності. Характеристики адміністративного будинку Матеріал стін: червона цегла Перекриття: залізобетонні плити Дах: шифер Рік побудови: 1967 Загальна площа будівлі: 193,7 м², у тому числі: Підвал: Підвальне приміщення – 81,4 м² Коридор (½ частина) – 6,4 м² 1-й поверх: Коридор (½ частина) – 8,15 м² Сходова клітка (½ частина) – 6,6 м² Санвузол – 1,25 м² 2-й поверх: Сходова клітка (½ частина) – 6,45 м² Кабінет – 13,9 м² Кабінет – 14,0 м² Кабінет – 26,7 м² Кабінет – 25,5 м² Додаткові будівлі Цегляний гараж з оглядовою ямою — площа 48 м² Комунікації Централізоване опалення Електропостачання Центральний водопровід Центральна каналізація Земельна ділянка Кадастровий номер: 5622610100:00:007:0234 Цільове призначення: для будівництва та обслуговування будівель торгівлі Переваги розташування Об’єкт знаходиться у місці з активним трафіком. Поряд розташовані: кафе «Манго», супермаркет АТБ, магазин меблів «Ясен», Автовокзал, інші комерційні об’єкти. Ціна: 49 000 $
Здолбунов
Продам магазин 48 квадратів на Таращанському. Белая Церковь 8
  • 48 м2
  • 1 / 1 эт.
11 000 $
Продам павільйон на Таращанському масиві. Площа 48 квадратних метрів. Утеплений ззовні. Залишається все обладнання та меблі. Встановлено кондиціонер. Підключена електроенергія, вода та санвузол поруч на території ринку. В даний момент діючий магазин солодощів, що працює вже 20 років. Вартість 11.000 у.е. з невеликим торгом, без комісії та додаткових платежів. Також можливий варіант оренди. Агенція нерухомості "ІмперіЯ" надає повний перелік послуг з питань пов'язаних з нерухомістю: -безкоштовна консультація; -оцінка нерухомості; -послуги БТІ; -консультація з питань іпотеки; -оформлення спадщини; -кредит під заставу нерухомості; -купівля-продаж житлової нерухомості; -купівля-продаж комерційної нерухомості; -оренда житла; -оренда комерційних об'єктів; -купівля-продаж землі. Безкоштовно приймаємо заявки від продавців і орендодавців. Гарантуємо об'єктивну оцінку, якісну рекламну компанію і юридичну підтримку. Юридичний супровід угоди до моменту вручення право встановлюючих документів, перевірка нерухомості на наявність арештів, обтяжень, и.т.п. Надаємо послуги з супроводу у виготовленні документації: -на прибудову, перепланування, реконструкцію і тому подібне; -на приватизацію землі, присвоєння кадастрового номера; -на перевід під нежитлове, зміна цільового призначення; -на початок будівництва, введення в експлуатацію; -на узаконення самочинного будівництва; -терміновий викуп нерухомого майна. Офіційно зареєстроване підприємство з постійною адресою, кваліфікованою персоналом і досвідом роботи. Тел:(097)-800-17-32 (063)-647-15-24 (099)-760-74-79
Белая Церковь
офлайн
Леонид
На сайте с 16 апреля 2020