1  / 2
ЖК Таировские сады ‼️ кирпич ‼️  2 ком ‼️ - фото 1
ЖК Таировские сады ‼️ кирпич ‼️  2 ком ‼️ - фото 2

ЖК Таировские сады ‼️ кирпич ‼️ 2 ком ‼️

Лиманка

Пожаловаться
45 000 $
809 $ за м²
0 просмотров объявления | 0 сегодня
Добавлено: 4 января 2026, ID: 4631947
Характеристики
  • Без комиссии Нет 
  • Комнат
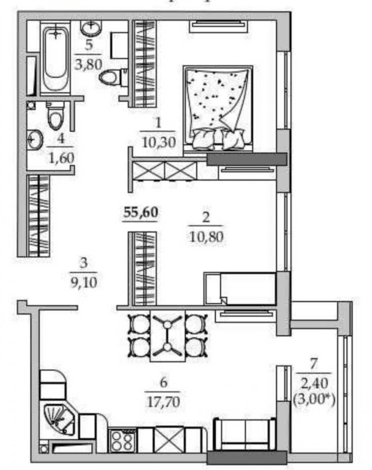
  • Общая площадь 55.6 м2
  • Площадь кухни 17.7 м2
  • Этаж
  • Этажность
  • Ремонт После строителей 
  • Планировка Раздельная 
  • Тип стен Кирпичный 
  • Отопление Собственная котельная 
  • Коммуникации Центральный водопровод, Электричество, Центральная канализация, Вывоз отходов, Асфальтированная дорога 
Описание
ЖК «Таировские Сады», ул. Академика Вильямса, Одесса
Малоэтажный кирпичный дом, 5 этаж из 6
Площадь квартиры: 55,6 м²
Состояние: от строителей — отличный старт для вашего ремонта
Переуступка включена в стоимость

Правильная и продуманная планировка: 2 раздельные комнаты, просторная кухня-гостиная 18 м² и 2 санузла — один из которых можно переоборудовать под гардероб или удобное хранилище.

- Закрытый двор без машин, современная детская площадка и благоустроенная территория — безопасность и комфорт для всей семьи
- Сдача дома — уже в 2026 году! Строительство идет, объект не заморожен
- Панорамный застеклённый балкон — дополнительное пространство и много света
- Индивидуальное газовое отопление — тепло и экономия круглый год
- Работающие генераторы во время отключений электроэнергии — комфорт и безопасность всегда обеспечены
- Паркинг в доме — не только для машины, но и надежное укрытие во время тревог
- В шаговой доступности оптовый рынок, Эпицентр, Метро и новый торговый и бизнес центр Маяк
Обратная связь
Максим
офлайн
Похожие объявления
Продаж 1к квартири під ремонт по вул. Петлюри,22 Шевченкывський район Киев 9
  • Однокомнатная
  • 49.1 м2
  • 3 / 4 эт.
83 500 $
Продаж 1к квартири під ремонт по вул. Петлюри(Комінтерна),22 Шевченкывський район Площа квартири 49,1м2, 3/4 поверхового цегляного будинку 1917 року, Сталнка. Висота стелі 4м. Поруч ботанічний сад імені Фоміна, до м. Вокзальна 5 хв пішки, до м Університет 15 хв пішки. Ця квартира — ідеальний варіант як для оренди, так і для життя у самому серці Києва. Зробити під себе ремонт, заходь і живи! Великий досвід допомоги з купівлі квартир за державними програмами, безготівковий розрахунок: 1) Є-оселя (єОселя), єВідновлення, Сертифікат, 2) Житло для ВПО та військових (постанова 280 та інші), Молодіжний кредит. Ціна 83 500 у.о 0968144949 Едуард
Киев, Шевченковский
Продаж 3-кімнатної квартири по вул.Хоткевича Гната (Червоногвардійська), 8 Киев 16
  • Трехкомнатная
  • 92 м2
  • 18 / 22 эт.
179 000 $
Продаж просторої 3-кімнатної квартирина 18-му поверсі 22-поверхового будинку комфорт-класу на вул.Хоткевича Гната (Червоногвардійська), 8 Загальна площа 92 м². Висота стель 3,15 м, панорамні вікна з видом на Батьківщину-Мати та Лавру, багато повітря й світла. Дизайнерський ремонт, меблі та техніка преміум-класу — квартира створена для тих, хто цінує комфорт і стиль. В будиноку створено ОСББ, є генератор на воду, інвертори для автономнії ліфтів та укриття з ремонтом. Метро Чернігівська 200 метрів.
Киев, Днепровский
Продаж 1 кім. квартири ЖК Варшавський 3 буд. 10.5 (1C2) 7 поверх Киев 5
  • Однокомнатная
  • 43.5 м2
  • 7 / 18 эт.
69 500 $
Продаж однокімнатної квартири по переуступці в ЖК «Варшавський 3», будинок 10.5 Пропонується простора 1-кімнатна квартира планування 1С2 у сучасному житловому комплексі Варшавський 3 від надійного забудовника Stolitsa Group. 7 поверх із 16, вікна виходять у тихий двір — не кутова. Площа квартири: • загальна — 43,50 м² • житлова — 13,57 м² • кухня — 16,75 м² Квартира після будівельників — ідеальна для реалізації власного дизайну. • На підлозі лазерна стяжка, пожежна сигналізація, лічильники на холодну, гарячу воду, електроенергію, вхідні металеві, протипожежні двері, металопластикові вікна Rehau з двокамерним склопакетом. • підключений генератор у будинку — ліфти, вода та опалення працюватимуть стабільно Про комплекс та будинок ЖК Варшавський 3 — новий масштабний комплекс комфорт-класу біля проспекту Виговського. Переваги: • закрита прибудинкова територія • дитячі та спортивні майданчики • гостьовий паркінг та поруч наземний паркінг • розвинена інфраструктура всередині комплексу (магазини, сервіси, кав’ярні) • поруч ТРЦ «Ретровіль» • у майбутньому — нова станція метро, яка значно підвищить вартість житла • здача в експлуатацію та видача ключів — 2 квартал 2026 року • Продаж по переуступці, оформлення в офісі забудовника Stolitsa Group Цена: 69500у.o. Максим 067 908 11 00
Киев, Подольский
офлайн
Максим
На сайте с 16 апреля 2020