Без комиссии
1  / 3
Теплий, добротний будинок 162 м² + 15 сотих землі - фото 1
Теплий, добротний будинок 162 м² + 15 сотих землі - фото 2
Теплий, добротний будинок 162 м² + 15 сотих землі - фото 3

Теплий, добротний будинок 162 м² + 15 сотих землі

Луцк

Пожаловаться
105 000 $
648 $ за м²
0 просмотров объявления | 0 сегодня
Добавлено: 25 октября 2025, ID: 4426942
Характеристики
  • Без комиссии Да 
  • Комнат
  • Общая площадь 162 м2
  • Этажность
  • Площадь участка 15 сот.
Описание
Продається просторий та затишний будинок всього 13 км від Луцька.
Ідеальне місце для життя родини: тиша, чисте повітря, доглянута територія та зручна інфраструктура поруч.

Характеристики:
• Площа будинку: 162 м²
• Земельна ділянка: 15 сотих
• Асфальтований доїзд, зупинка маршрутки поруч
• Школа і дитячий садок – 200 метрів від будинку

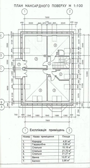
Планування:
• Просторий коридор
• Кухня-вітальня з виходом під камін
• Два санвузли
• Три спальні з мансардними вікнами і балконом
• Гараж

Переваги:
Будинок дуже теплий і сухий, побудований з газоблоку (40 см), утеплений «теплою» штукатуркою. Залізобетонне перекриття, якісні матеріали, надійне будівництво.
Тиха, обжита місцевість, хороші сусіди, зручний під’їзд.

Бонус:
Даруємо знижку на будівельні матеріали та надаємо перевірених майстрів для ремонту або оздоблення під ключ.
Обратная связь
Юлія
офлайн
Похожие объявления
Продам будинок Стиль фьюжн Меблі Техніка Ландшафтний дизайн Перемога-6 Днепр 20
  • Четырехкомнатная
  • 257 м2
  • 18 соток
310 000 $
Продам будинок на березі р. Дніпро, в межах міста (р-н ж/м Перемога- 6, яхт-клуб). Будинок збудований у романтичному стилі фьюжн, на ділянці з чудовим ландшафтним дизайном, з рідкісними рослинами, ділянка 18 с. приватизована. Будинок повністю облаштований якісними меблями та технікою відомих європейських брендів. Всі меблі, техніка, предмети інтер'єру залишаються. Будинок спланований для комфортного проживання та затишку. Велика вітальня складається і обідньої, камінної та вхідної групи. Із вітальні є два виходи на вуличну терасу. На території також є басейн з розсувною алюмінієвою системою закривання, літня альтанка, сауна, що окремо стоїть, критий навіс на три авто, господарські споруди. 2 види опалення : електричне і газове. Електрика 380V, Газ, інтернет
Днепр, Соборный
Продам часть дома центр города Луганска р-н м-на "Старт Луганск 8
  • Двухкомнатная
  • 30 м2
  • 2 сотки
15 000 $
Продам часть дома центр города Луганска р-н м-на "Старт", мергель/кирп. пл. 30 кв.м., 2 комнаты, под ремонт, участок 2 сот. ( не приват) Цена 1 500 000 руб. тел. +79591424483 Елена Наш сайт: lider-lg.ru
Луганск, Ленинский
Продаж будинку. Центр міста. Вулиця Хібінська. 60 школа. Кривой Рог 18
  • Трехкомнатная
  • 117 м2
  • 6.5 соток
57 000 $ Без комиссии
Центр міста. Вулиця Хібінська, перехрестя з вулицею Українська. Напроти 60 школа. Продаж 2-х поверхового будинку. Цегляний будинок. Оздобленний сайдингом. Центральна каналізація. Двухконтурний газовий котел. 2 кондиціонери. 3 кімнати, гардеробна, кухня, санвузол, коридор. ( планування додам до фото ). Металопластикові вікна і труби. Стан жилий, можлива косметика під себе. Лічильники на все. 6.5 сотих приватизованої землі. Капітальний гараж. Велика кладова. Гарні сусіди. Документи готові. Без боргів і проблем. Історичний, культурний і Гастрономічний центр міста Кривий Ріг. Поруч парк, річка, громадський транспорт, школи, дитячі садочки, кафе, ресторани, магазини... Телефонуйте розповім детальніше. Ваш рієлтор Роман.
Кривой Рог, Центрально-Городской
офлайн
Юлія
На сайте с 16 апреля 2020