Без комиссии
1  / 7
‼️СВОЯ 3к квартира ЖК Варшавський 3 Буд.10.10 - фото 1
‼️СВОЯ 3к квартира ЖК Варшавський 3 Буд.10.10 - фото 2
‼️СВОЯ 3к квартира ЖК Варшавський 3 Буд.10.10 - фото 3
‼️СВОЯ 3к квартира ЖК Варшавський 3 Буд.10.10 - фото 4
‼️СВОЯ 3к квартира ЖК Варшавський 3 Буд.10.10 - фото 5
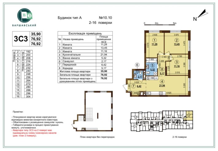
‼️СВОЯ 3к квартира ЖК Варшавський 3 Буд.10.10 - фото 6
‼️СВОЯ 3к квартира ЖК Варшавський 3 Буд.10.10 - фото 7

‼️СВОЯ 3к квартира ЖК Варшавський 3 Буд.10.10

Киев, Подольский

Пожаловаться
98 000 $
1 274 $ за м²
0 просмотров объявления | 0 сегодня
Добавлено: 16 ноября 2025, ID: 4497597
Характеристики
  • Без комиссии Да 
  • Комнат
  • Общая площадь 76.92 м2
  • Площадь кухни 21.94 м2
  • Этаж 15 
  • Этажность 16 
  • Ремонт После строителей 
Описание
Продаж 3-к квартира ЖК «Варшавський 3» від власника.
Буд. 10.10
Площа 76,92 м.кв
Поверх 15
Планування 3С3
Вікна у двір
Є резервне живлення та генератор
Охорона 24/7 та відеоспостереження

Введення в експлуатацію 4 квартал 2026 року
Продаж по ПЕРЕПОСТУПЦІ у відділі продажу.
Вартість перепоступки 20000 грн.

КОМПЛЕКС
Комфорт клас
Закрита територія з дитячими майданчиками

КВАРТИРА
Площа: 76,92 м² - ідеальний простір для сім'ї
Планування: 3 окремі кімнати + кухня-вітальня
2 окремі санвузли
Висота стель: 2.7 м
Вікна: панорамні
Стан: від забудовника

Через дорогу від ЖК знаходиться ТРЦ Retroville, де є абсолютно все: магазини, фітнес-центр Sport Life, кінотеатр з 8 екранами, дитячі розважальні центри, боулінг, салони краси та Food-court зони, тощо.
Дитячі садки, школи, медичні заклади вже функціонують.
Сквери, озера, парки – чудове середовище для прогулянок і активного дозвілля.
Уже триває активне будівництво нових станцій метро – Мостицька та Варшавська.

РІЕЛТОРАМ ПРОХАННЯ НЕ ТУРБУВАТИ!
Обратная связь
Юлія
офлайн
Похожие объявления
БЕЗ КОМИССИИ! Квартира с видом на море в Ж/К «Морская симфония» Одесса 13
  • Трехкомнатная
  • 72 м2
  • 10 / 20 эт.
127 000 $
Код: 1574. Квартира с видом на море на Фонтане, Ж/К «Морская симфония», переулок Мореходный, 2/2 (8я станция Фонтана), 10/20 эт. дома, общая площадь 72 кв. м. Квартира находится в новом доме прямо на берегу моря, со своим выходом на пляж. Сделан эксклюзивный ремонт: кухня-студия и 2 отдельные спальни, в санузле душевая кабина. В квартире есть все, для того, чтобы сделать Ваше проживание максимально комфортным: необходимая мебель и бытовая техника. Наличие объекта, актуальную стоимость, условия продажи, а также важные для вас детали интерьера (либо экстерьера) уточняйте непосредственно перед просмотром по Viber/WhatsApp/Telegram или E-mail. КОМИССИЯ ЗА УСЛУГИ РИЭЛТОРА – 0% ОТ СТОИМОСТИ ОБЪЕКТА.
Одесса, Киевский, Фонтан
3-к квартира з видом на озеро, з паркомісцем! Вул. Березняківська 30 Киев 17
  • Трехкомнатная
  • 69.5 м2
  • 8 / 16 эт.
87 000 $
Продається світла 3-кімнатна квартира 69,5 м² на Березняках - з шикарним видом на озеро Тельбін. Дніпровський район, вул. Березняківська, 30 8 поверх 16-поверхового будинку Площа: 69,5 м², житлова 45,3 м², кухня 9,7 м² Окремі кімнати, простора кухня Хороший стан, меблі та техніка залишаються Великий балкон із панорамним видом Є вода і газ навіть при відключеннях Паркомісце під навісом - у ціні Поруч озеро, парк, школи, садки, магазини Квартира без підводних каменів, документи готові. Гарний варіант для сім’ї або оренди. Дзвоніть - покажемо у зручний час! Ціна 87000 у.о. Олег 0934991618,
Киев, Днепровский
Продаж однокімнатної квартири ЖК Медовий, Кадетський Гай 12 Киев 3
  • Однокомнатная
  • 40 м2
  • 19 / 25 эт.
90 000 $
Квартира 1к. ЖК Медовий, Кадетський Гай 12. Продаж однокімнатної квартири 40м. з ремонтом. Видовий 19 поверх. Окрема спальня , кухня-вітальня , ванна кімната. Також передбачені місця для зберігання речей - гардеробна кімната у передпокої. Квартира повністю обладнана меблями та якісною побутовою технікою. В будинку є генератор, окрема дахова котельня та підземний паркінг. 044 200 10 80
Киев, Соломенский
офлайн
Юлія
На сайте с 16 апреля 2020