1  / 3
Продаж підвалу/комірки , 2.78 м2 , ЖК на Трускавецькій _Без комісії - фото 1
Продаж підвалу/комірки , 2.78 м2 , ЖК на Трускавецькій _Без комісії - фото 2
Продаж підвалу/комірки , 2.78 м2 , ЖК на Трускавецькій _Без комісії - фото 3

Продаж підвалу/комірки , 2.78 м2 , ЖК на Трускавецькій _Без комісії

Львов, Франковский

Пожаловаться
1 250 $
450 $ за м²
0 просмотров объявления | 0 сегодня
Добавлено: 10 октября 2025, ID: 4373009
Характеристики
  • Общая площадь 2.78 м2
Описание
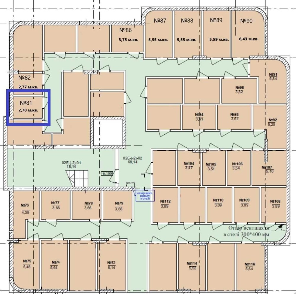
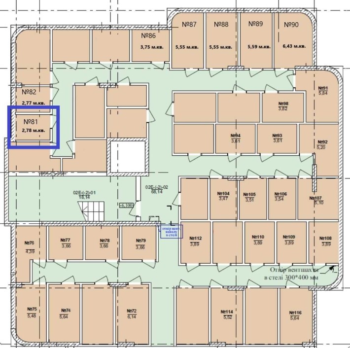
Продаж підвалу/комірки .
ЖК на Трускавецькій , вул.Трускавецька . Секція Ж-2 (є перехід з Ж-1) .

Без комісії для покупця . З витрат , лише послуги нотаріуса .

Є у продажу й інші підвалу/комірки у цьому та інших ЖК .
Є у продажу паркомісця в даному ЖК .
Є у продажу квартири в даному ЖК .
Дивіться всі мої оголошення .
Можливий огляд .
Обратная связь
Богдан_Novobud IN
офлайн
Похожие объявления
Без% продам паркомісце вул. Лейпцизька 13, Печерськ, Царське село, центр Києва Киев 4
    42 000 $
    Без% продам паркомісце вул. Лейпцизька 13, Печерськ, Царське село, центр Києва Київ Печерський район Лейпцизька 13 вулиця Пропонується паркомісце в підземному паркінгу в ЖК по вулиці Лейпцизька 13. Вдале місце розташування, вентиляція, охорона, освітлення. Ширина 2.68м, довжина 5м Площа: 13.40 м2
    Киев, Печерский
    Продам паркоместо в Днепре Бартоломео Днепр 7
      21 500 $
      Продаж паркомісця в Бартоломео Башня 1, площа 18 кв.м
      Днепр, Соборный, Победа
      Продаж двоповерхового гаража в м.Дубно Дубно 6
        8 000 $
        Продам двоповерховий, цегляний гараж з додатковою достройкою в м.Дубно, ГК «Політ» +380 (93) 874 60 87 — Михайло +380 (50) 655 38 68 — Максим
        Дубно
        офлайн
        Богдан_Novobud IN
        На сайте с 16 апреля 2020