Без комиссии
1  / 4
Продаж Надійного Дуплексу Газ Вигідна Ціна Білогородка - фото 1
Продаж Надійного Дуплексу Газ Вигідна Ціна Білогородка - фото 2
Продаж Надійного Дуплексу Газ Вигідна Ціна Білогородка - фото 3
Продаж Надійного Дуплексу Газ Вигідна Ціна Білогородка - фото 4

Продаж Надійного Дуплексу Газ Вигідна Ціна Білогородка

Гнатовка

Пожаловаться
76 000 $
661 $ за м²
0 просмотров объявления | 0 сегодня
Добавлено: 13 декабря 2025, ID: 4583043
Характеристики
  • Без комиссии Да 
  • Тип дома Дуплекс 
  • Комнат
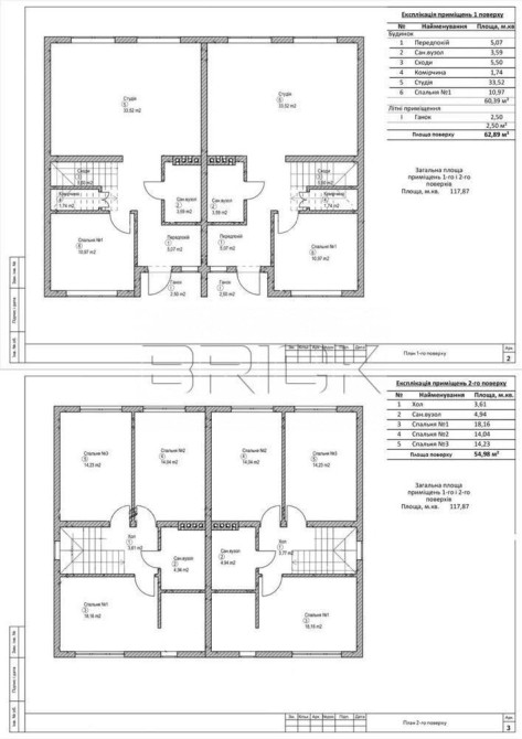
  • Общая площадь 115 м2
  • Этажность
  • Площадь участка 2.5 сот.
  • Ремонт После строителей 
  • Коммуникации Газ, Скважина, Электричество, Канализация септик, Асфальтированная дорога 
Описание
Комплекс надійних дуплексів з якісних матеріалів, практичним плануванням та гарним розміщенням. Вигідна ціна серед конкурентів, сучасний дизайн та продуманий проєкт.

Площа - 115м2
Ділянка - 2,5/3 сотки

Фундамент - монолітно-стрічковий з армованою плитою В25
Стіни - керамоблок 250мм Кератерм
Перестінки - керамоблок 100мм Кератерм
Перекриття комбіноване - плити перекриття + монолітна плитта 200мм
Покрівля - покрівельний металопрофіль 0.5мм Словаччина
Утепплення покрівлі - МінВата 200мм + гідробарєр (мембрана)\паробарєр (мембрана)
Утеплення стін - пінопласт 100мм
Сходинковий марш - монолітний армований
Вікна - WDS 7-ї серії 2-х камерні склопакети з енергозбереженням

Комунікаціі:
Cвітло - 16кВт
Септик - переливний 10 м3
Індивідуальна свердловина - 70м
Додаткові комуніуації Газ + 3000$

Огорожа - паркан із профнастилу, відкатні ворота без автоматики
Територія - під'їзд до ділянок - бетон;
На ділянці - відмостка та парковка на 1 авто (бруківка)

Ціна - 76000$ (2,5 сот)/ 79000$ (3 сот) + 3000$ газ

Телефонуйте для уточнення деталей та запису на перегляд.
Фахівець з нерухомості компанії
«BRICK» Олег.
Обратная связь
Oleg
офлайн
Похожие объявления
Продаю новый дом в Корабельном в Балабановке Николаев 7
  • Двухкомнатная
  • 65.1 м2
  • 12 соток
85 000 $
Продаю прекрасный дом новой постройки в Корабельном районе в Балабановке в отличном жилом состоянии, строился с 2011 по 2015 год для себя, сохранена съемка самого процесса строительства, очень прочный фундамент. Две жилые комнаты, кухня, санузел, летняя кухня, всё с дорогой мебелью. Дом утеплен минеральной ватой, сделан красивый фасад, решетки на окнах, крыша накрыта металлочерепицей. Недалеко магазины и остановка транспорта, хорошие соседи. Приглашаю на просмотр, не упустите свой шанс приобрести очень хороший дом для комфортного счастливого проживания, звоните !
Николаев, Корабельный
Продаётся загородный дом в Галициново Николаев 8
  • Четырехкомнатная
  • 280 м2
  • 50 соток
324 800 $ Торг
К продаже представлен прекрасный загородный дом в Галициново (3 дома), который состоит из основного двухэтажного особняка (новострой, 180м2 жилая, без отделочных работ) , гостевой дом с евроремонтом 3 жилых комнаты, сауна, камин, с/у совмещён; второй двухэтажный гостевой домик (2 этаж жилой, на 1 этаже бокс); и основной особняк. в котором есть возможность спланировать на втором этаже большой просторный зал или 2 спальных комнаты с панорамными окнами с шикарным видом на ухоженный декоративный двор и реку. Также 2 этаж вмещает ещё 2 раздельные комнаты.На первом этаже 2 комнаты и кухня-студия. Предусмотрено 2 с/у на первом и втором этаже. На территории есть летний бассейн на 26 кубов, лавочки, большой плодоносный молодой сад : черешни, груши, яблоки, виноградники. На территории есть возможность поставить теннисный корт и баскетбольную площадку. Высокий красивый забор по всей территории, входные ворота и ворота в гараж, бокс на дистанционном управлении. Гараж рассчитан на две большие машины , а бокс вмещает в себя катер. Есть запас дров для барбекю и шашлыков. Со второго входа в 10 метрах свой причал для катера или небольшой яхты; место для пляжного отдыха. Охрана и видеонаблюдение. Соседи хорошие, приличные! Участок 50 соток приватизирован! Красивый ландшафтный дизайн перед домом и внутри владений привлечет ваше внимание и понравится самому требовательному покупателю. Жду ваших звонков и приглашаю на просмотр!
Николаев, Корабельный
Продаётся дом вместе с базой отдыха в Лупарево Николаев 12
  • 9 комнатная
  • 60 м2
  • 20 соток
58 000 $ Без комиссии
К вашему вниманию на продажу представлен дом в Лупарево у реки вместе с базой отдыха. В доме 3 смежно-раздельные комнаты, + 3 отдельных домика для отдыхающих. В основном доме есть своя сауна - сделано всё для себя, из экологически чистых материалов. Перед домом организована зона отдыхом с камином, мангалом, барбекю. В каждом из трёх домиков есть 2 раздельных комнаты с подводом коммуникаций на два санузла. 3 домика предполагают комфортное размещение 6 семей со своими удобствами. Большая просторная территория 20 соток. Есть также начатое строение для банкетного зала и вырыта яма под бассейн. 3 домика - новострои, крыша - металлочерепица, стены - газобетон, окна -м/п. В каждом домике - 2 отдельных входа. Рядом прекрасный водоём. Своя скважина на участке. Двор устелен тротуарной плиткой, есть паркоместа для нескольких авто. Приглашаем к просмотру предпринимателей или ценителей загородного отдыха. Здесь вы сможете отдыхать с комфортом большой компанией.Приходите на просмотр!
Николаев, Корабельный