1  / 3
Продаж квартири, ЖК Новопечерські Липки, Верхогляда, 6 черга - фото 1
Продаж квартири, ЖК Новопечерські Липки, Верхогляда, 6 черга - фото 2
Продаж квартири, ЖК Новопечерські Липки, Верхогляда, 6 черга - фото 3

Продаж квартири, ЖК Новопечерські Липки, Верхогляда, 6 черга

Киев, Печерский

Пожаловаться
460 800 $
3 200 $ за м²
0 просмотров объявления | 0 сегодня
Добавлено: 12 января 2026, ID: 4657993
Характеристики
  • Без комиссии Нет 
  • Комнат
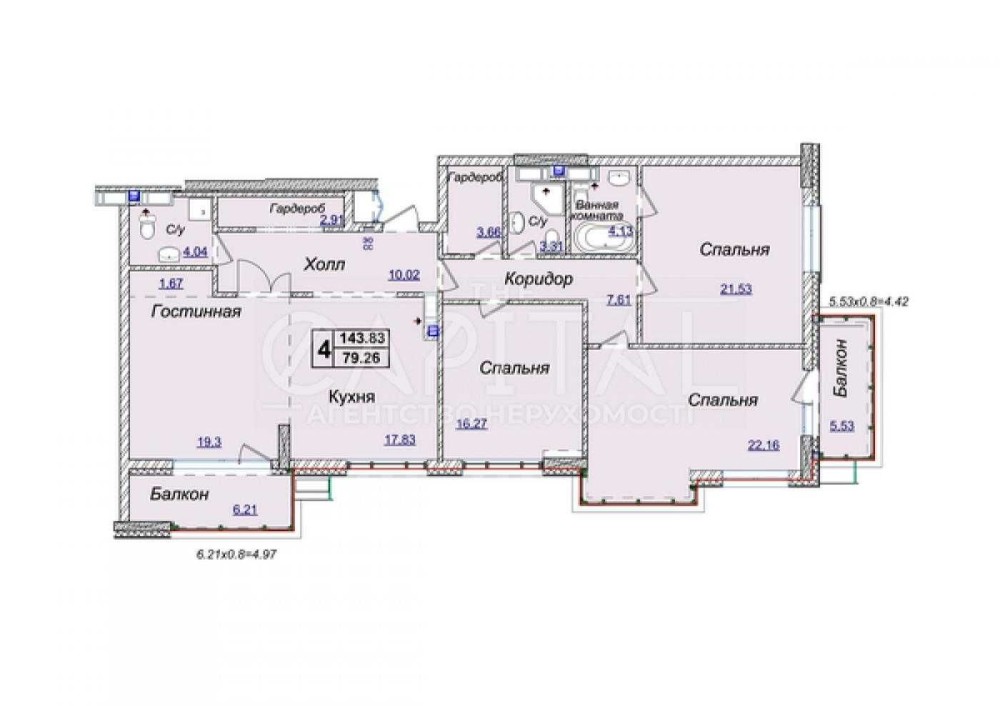
  • Общая площадь 144 м2
  • Площадь кухни 20.5 м2
  • Этаж 18 
  • Этажность 22 
  • Ремонт После строителей 
  • Планировка Раздельная 
Описание
Продаж квартири, ЖК Новопечерські Липки, Верхогляда, 6 черга
Продажа квартиры, ЖК Новопечерские Липки, Верхогляда, 6 очередь

Апартаменти в Ж «Новопечерські Липки» 6-а черга, 17б будинок.

Квартира з просторим плануванням, великі кімнати, два санвузли. Панорамні вікна.
Відмінна можливість розподілити простір квартири на свій розсуд.

У кварталі Новопечерські Липки є все для комфортного проживання.
Територія, що охороняється;
Підземний паркінг;
Власні відділення банків і нової пошти;
Фітнес-клуб преміум-класу - GYMMAXX, Тенісна академія UTA, спортивні ігрові майданчики, клініки, поліклініки та аптеки для вашого фізичного здоров'я;
Ландшафтний парк, SPA-салон, кафе і ресторани, кондитерські, салони краси і бутіки для вашого емоційного здоров'я;
Дитячий садок - LEAPKIDS, Новопечерська школа, Міжнародна школа Study Academy, STUDY.UA, Британська міжнародна школа, Майстерні позашкільної освіти Fun, центр дитячого розвитку - SWEET KIDS для вашої прекрасної спадщини.
# 3 1 5 9 1 7 3 5 4 0 1 3
Обратная связь
The Capital LIPKI
офлайн
Похожие объявления
Продаж 1-кімнатної квартири по вул. Ревуцького, 40в ЖК Лебединий Киев 5
  • Однокомнатная
  • 40 м2
  • 17 / 25 эт.
85 000 $
Продаж 1-кімнатної квартири в ЖК комфорт класу Лебединий, вул. Ревуцького 40-В, Дарницький район. 2 будинок 3 секція, 17/25 пов. 40 кв.м. Вікна у двір. Територія, що охороняється, відеоспостереження, консьєрж. Розвинена інфраструктура до м. Харківська-5 хв. Все необхідне для комфортного життя – прекрасна набережна для прогулянок, дитячі садки та майданчики, школа, спорт. зал та басейн, поліклініка, супермаркети, ринок та кафе. т.044 200 10 80
Киев, Дарницкий
Продаж 4-к квартири вул. Прилужна 14 Киев 3
  • Четырехкомнатная
  • 82 м2
  • 10 / 10 эт.
82 000 $
Продаж 4-к квартири вул. Прилужна 14. Квартира має 4 окремі кімнати, окрему кухню та роздільний санвузол. Потребує ремонту. Розташована за 15 хвилин пішки від метро Академмістечко. Поблизу є вся необхідна інфраструктура: школи, станція швидкої допомоги, базар, магазини. 044 200 10 80
Киев, Святошинский
Продаж 1 кім. квартири в житловому стані, 2 поверх, вул. Межова, 19б. Виноградар Киев 11
  • Однокомнатная
  • 29.3 м2
  • 2 / 5 эт.
43 000 $
Продаж однокімнатної квартири в житловому стані на Виноградарі, правий берег, подільський район. Загальна площа 29.3 кв.м, житлова - 14.1 кв.м, кухня - 7.5 кв.м, поверх 2 з 5. Квартира в жилому стані, готова до заселення, з однією окремою кімнатою, частково потребує ремонту, є не заселений балкон. Кухня обладнана газовою плитою, духовою шафою та пральною машинкою та холодильником. Санвузол – суміжний, стандартних розмірів для цього формату квартир. Коридор достатньо просторий для шафи чи вбудованої системи зберігання. Будинок цегляний, 5-поверховий, під’їзд чистий та охайний, тихі та спокійні сусіди. Розвинена інфраструктура: Поруч декілька шкіл та дитячіх садків, ТЦ «Орнамент», Сільпо, АТБ, ринок, аптеки, кавʼярні, Поліклініка, багато зелених зон, парків, 20 хвилин пішки до ТРЦ « Ретровіль » Транспортна розвʼязка: Біля будинку є зупинка громадського транспорту, 20 хвилин до метро Мінська та Оболонь В 5 хвилинах пішки будується майбутня станція метро, відкриття планується в 2026 році
Киев, Подольский
офлайн
The Capital LIPKI
На сайте с 16 апреля 2020