1  / 4
Продаж 2к квартири |71 м²| ЖК Rybalsky - фото 1
Продаж 2к квартири |71 м²| ЖК Rybalsky - фото 2
Продаж 2к квартири |71 м²| ЖК Rybalsky - фото 3
Продаж 2к квартири |71 м²| ЖК Rybalsky - фото 4

Продаж 2к квартири |71 м²| ЖК Rybalsky

Киев, Оболонский

Пожаловаться
175 000 $
2 465 $ за м²
0 просмотров объявления | 0 сегодня
Добавлено: 3 ноября 2025, ID: 4452770
Характеристики
  • Без комиссии Нет 
  • Комнат
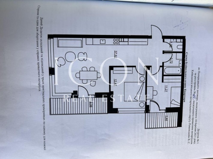
  • Общая площадь 71 м2
  • Площадь кухни 37.6 м2
  • Этаж
  • Этажность
  • Ремонт После строителей 
  • Тип стен Монолитный 
  • Отопление Централизованное 
Описание
Квартира видова, всі три кімнати з видом на Дніпро, вдале планування, 4 поверх, сдача 2 квартал 2026, продається по переуступці. Комплекс розташований в історичному центрі міста, на Подолі, підземний паркінг, кафе, дитячі садки, майданчики.#1877
Обратная связь
Комарніцький Костянтин
офлайн
Похожие объявления
Продам 3-кімн. чешку 5/5 на вул. Каштанова Кривой Рог 4
  • Трехкомнатная
  • 64 м2
  • 5 / 5 эт.
13 500 $ Без комиссии
Продамо 3-кімнатну квартиру (чешка) 5/5-пов. на вул. Каштановій, будинок 42. Зручне місцерозташування - недалеко від зупинки "8 міська лікарня", поруч магазини, школа, дитячий садочок. Стан квартири - розпочатий, але не закінчений ремонт. Вікна замінені на м/пл, всередині білі, ззовні коричневого кольору. Лоджія засклена м/пл та повністю оздоблена та утеплена. Замінена електропроводка, труби, система опалення, міжкімнатні двері. В двох кімнатах: стіни - гіпсокартон, можна фарбувати або клеїти шпалери, підлога - ламінат. Ванна та вбиральня роздільні, кахель на стінах та підлозі. Комунікації відключені, дуже великий борг за комунальні послуги, входить у вартість квартири. Документи в порядку, один власник. Торг. Ваші пропозиції розглянемо
Кривой Рог, Терновский
Продам 2-х комнатную квартиру в центре города. СОБСТВЕННИК ! Запорожье 7
  • Двухкомнатная
  • 45 м2
  • 2 / 5 эт.
15 000 $
Продаётся уютная 2-комнатная квартира в Вознесеновском районе! Идеальный вариант для жизни — квартира общей площадью 44,78 кв.м расположена на 2-м этаже 5-этажного дома по ул. Каменногорская. Светлая и тёплая квартира Выполнена замена электропроводки и установлены евроокна. Новая газовая плита, заменены пластиковые трубы, установленный нагревательный бойлер на 80 л. (новый) (горячая /холодная вода). Установлены счётчики на воду, новый электрический счётчик. Проведённый интернет Новые входные двери — фирменные и надёжные. Балкон застеклён, внешняя стена квартиры утеплена. Дом относится к ОСББ — чистый подъезд, входный двери металические с домафоном, и ещё промежуточные двери (пластиковые) и весь подьезд поменянные пластиковые окна, ухоженная территория. Без долгов. Косметический ремонт не делался — вы сможете оформить квартиру на свой вкус! Отличное месторасположение: В шаговой доступности детский сад, школа, магазины До центральной дороги — всего 5 минут пешком Рядом — удобная транспортная развязка По всем вопросам обращайтесь: (обьявление от собственника) Максим, Наталья — +380502447549 если не можете дозвониться пишите - (Telegram, WhatsApp)
Запорожье, Вознесеновский
Продаж 3-к квартири під ремонт, вул. Спаська Кривой Рог 7
  • Трехкомнатная
  • 64 м2
  • 1 / 9 эт.
15 500 $ Без комиссии
Продається простора 3к квартира у Саксаганському районі – один із найзручніших та перспективних районів міста. Поруч магазини, аптеки, школа, дитячий садок, ринок «Ювілейний»; чудова транспортна розв’язка — зупинки поруч, зручний виїзд у центр; Квартира розташована на першому поверсі девятиповерхового будинку. Це зручно для літніх людей та родин з маленькими дітьми. Загальна площа — 64 кв.м, житлова — 44 кв.м, кухня — 8 кв.м, висота стелі — 2,5 м. Будинок ОСББ, зелений, доглянутий двір, достатньо місця для паркування. – Стан квартири — під ремонт, що дає можливість облаштувати простір повністю під себе. – Зручне планування, суміжно-роздільні кімнати, – Встановлений бойлер, усі комунікації підключені. – Санвузол роздільний. – Квартира суха та тепла, без сирості. – Засклена лоджія (є льох). – Високий цоколь. Ідеальний варіант для тих, хто шукає доступну трикімнатну квартиру під ремонт. Перший поверх зручно для сімей із дітьми. ???? Телефонуйте для перегляду
Кривой Рог, Саксаганский
офлайн
Комарніцький Костянтин
На сайте с 16 апреля 2020