1  / 8
Продаж 1к квартира 44  ЖК Варшавський 3 Олександра Олеся 27А - фото 1
Продаж 1к квартира 44  ЖК Варшавський 3 Олександра Олеся 27А - фото 2
Продаж 1к квартира 44  ЖК Варшавський 3 Олександра Олеся 27А - фото 3
Продаж 1к квартира 44  ЖК Варшавський 3 Олександра Олеся 27А - фото 4
Продаж 1к квартира 44  ЖК Варшавський 3 Олександра Олеся 27А - фото 5
Продаж 1к квартира 44  ЖК Варшавський 3 Олександра Олеся 27А - фото 6
Продаж 1к квартира 44  ЖК Варшавський 3 Олександра Олеся 27А - фото 7
Продаж 1к квартира 44  ЖК Варшавський 3 Олександра Олеся 27А - фото 8

Продаж 1к квартира 44 ЖК Варшавський 3 Олександра Олеся 27А

Киев, Подольский

Пожаловаться
70 560 $
1 600 $ за м²
0 просмотров объявления | 0 сегодня
Добавлено: 7 января 2026, ID: 4640709
Характеристики
  • Без комиссии Нет 
  • Комнат
  • Общая площадь 44.1 м2
  • Площадь кухни 16 м2
  • Этаж
  • Этажность 14 
  • Ремонт После строителей 
  • Планировка Раздельная 
  • Тип стен Монолитный 
  • Отопление Централизованное 
  • Комфорт Пожарная сигнализация, Консъерж, Лифт, Грузовой лифт 
  • Коммуникации Центральный водопровод, Электричество, Центральная канализация, Вывоз отходов, Асфальтированная дорога 
Описание
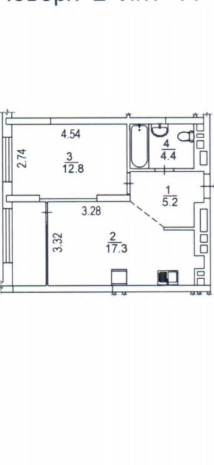
Продаж 1 кімнатної квартири вул. Олександра Олеся буд. 27А ЖК Варшавський 3. Квартира з роздільним плануванням загальною площею 67/39.6/19,6 кв.м. на 2/14 поверсі.
Сучасна новобудова з власною котельнею та високим рівнем автономності. Під час блекаутів працює ліфт, опалення та водопостачання . У будинку є вантажний і пасажирський ліфти, консʼєрж, система відеоспостереження та пожежна сигналізація.
Комплекс розташований у зручній і розвиненій локації. До ТРЦ Retroville 3 хвилини пішки. Поруч супермаркети, спортклуби, пошта, кафе, дитячі майданчики, зупинки транспорту та вся міська інфраструктура.
Обратная связь
Ольга
офлайн
Похожие объявления
Продаж 3-к квартири вул. М.Омеляновича-Павленка 13 Киев 4
  • Трехкомнатная
  • 80.6 м2
  • 9 / 13 эт.
195 000 $
Продаж 3-к квартири вул. М.Омеляновича-Павленка 13. Окремі кімнати та роздільний санвузол, велика широка лоджія, хол, функціональне планування. Квартира простора та світла, біля будинку великий зелений двір. Є консьєрж, два ліфти (є вантажний). У дворі парк з тенісним кортом, є парковка для машин, що охороняється, тихий двір. Дуже розвинена інфраструктура, все поруч. 044 200 10 80
Киев, Печерский
Продаж 1-к квартири просп. Нарбута Георгія 1а Киев 3
  • Однокомнатная
  • 41 м2
  • 5 / 25 эт.
100 000 $
Продаж 1-к квартири просп. Нарбута Георгія 1а. ЖК «Фрідом». Будинок біля парку. Квартира з видом на парк. перетин проспектів Броварського та Визволителів. Рівень технологій та обслуговування: комфорт-класу. Підземний паркінг, наявність інфраструктури навколо. 044 200 10 80
Киев, Днепровский
Пропонується до продажу 2 кімнатна квартира в ЖК «Голосієво», вул. Голосіївська,13 Киев 9
  • Двухкомнатная
  • 84 м2
  • 2 / 23 эт.
180 000 $
Пропонується до продажу простора 2 кімнатна квартира в престижному житловому комплексі «Голосієво» за адресою вул. Голосіївська 13. Загальна площа квартири становить 83,7 кв.м, житлова площа 32 кв.м, кухня 12 кв.м. Зручне та продумане планування, світлі просторі кімнати, сучасний якісний ремонт, тепла підлога, інвертор. Квартира повністю готова до заселення та не потребує додаткових вкладень. Житловий комплекс має розвинену інфраструктуру та закриту територію з підземним, наземним, гостьовим і багаторівневим паркінгами. Поруч розташовані школи, дитячі садки, магазини, кав’ярні, фітнес центри та салони краси, супермаркет Novus, алеї для прогулянок і сучасні дитячі майданчики. До станцій метро Деміївська та Голосіївська можна дійти пішки за 10 хвилин, Поруч Голосіївський парк з озерами є ідеальним місцем для прогулянок, занять спортом та відпочинку. Це чудова пропозиція для тих, хто цінує комфорт, безпеку та життя серед природи у межах міста. Ціна 180000 у.о. (067)130-68-88 Олена Valion.ua/ 1145448
Киев, Голосеевский
офлайн
Ольга
На сайте с 16 апреля 2020