1  / 2
Продам Діброва Парк, 1к з терасами - фото 1
Продам Діброва Парк, 1к з терасами - фото 2

Продам Діброва Парк, 1к з терасами

Киев, Подольский

Пожаловаться
73 000 $
1 352 $ за м²
0 просмотров объявления | 0 сегодня
Добавлено: 17 декабря 2025, ID: 4597017
Характеристики
  • Без комиссии Нет 
  • Комнат
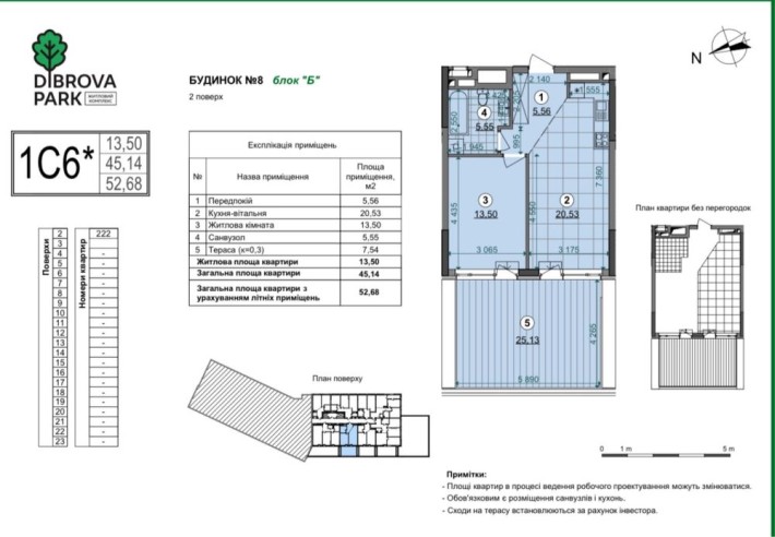
  • Общая площадь 54 м2
  • Площадь кухни 21 м2
  • Этаж
  • Этажность 26 
Описание
ЖК Діброва Парк, Dibrova Park

Будинок 8
Здача 2кв 2026р
Планування 1с6 та 1с7 з терасою
Поверх 2
Західна сторона .
Зручне планування, євродвушка
Ціна 73000 за 1с7
Ціну 74000 за 1с6
Підійде як для життя так і комерцію.фасадне
Дві квартири поруч , можна зробити салон, офіси,агентство .

Багато варіантів , звертайтесь. також запрошую на перегляд -підберем Вам варіант .
Обратная связь
Ігор Діброва Парк
офлайн
Похожие объявления
Продам 3-х.ком.кв. с дизайнерским ремонтом пр. Науки95 А. Днепр 13
  • Трехкомнатная
  • 110 м2
  • 3 / 14 эт.
165 000 $
Продам 3-комнатную квартиру на пр.Науки 95 А. район «ТРЦ NEO PLAZA» Общая площадь 110 м2,высота потолков 3 м.,расположена на 3 этаже (13). Качественный, авторский ремонт, дизайн проект. Своя котельная. Теплые полы,кухня,с/у,ванная. Много места для хранения вещей. Комплектация дорогой мебелью и техникой Siemens. Вся мебель, двери и сантехника Итальянская. Множество сценариев освещения, медная электро проводка. Есть своё парко место под навесом, двор закрыт,видео наблюдение,охрана. Рядом супермаркеты,парк,транспорт.
Днепр, Шевченковский, Нагорный
1-к квартира Бучанський, Ірпінь, 50000 $ Ирпень 9
  • Однокомнатная
  • 31 м2
  • 2 / 5 эт.
50 000 $
Квартира на середньому поверсі ! З ремонтом і ключами заходь і живи вже завтра. Не хочете чекати новобудову? Ця квартира вже повністю готова: з ремонтом, меблями та технікою просто занось валізи! Підходить під готівку або інвестування під оренду. Площа 31 кв.м, формат 1+ (кухня-вітальня + спальня). Повністю укомплектована: Whirlpool, Samsung, Indesit, тепла підлога, плитка по всій квартирі. Балкон із видом, фактично 2-й поверх (під квартирою комерція). Локація ЖК Молодість, Ірпінь: закрита територія, поруч ліс, набережна, транспорт до Києва 10 хвилин. Ідеально під здачу в оренду або комфортне проживання без зайвих витрат на ремонт. Уже кілька сімей переглянули схожі варіанти ця залишилася єдина з повним ремонтом. Ціна актуальна лише до найближчого зростання. Після вартість зросте. Телефонуйте поїдемо переглядати цю гарну студійну в Ірпені.
Ирпень
Продаам 2х.комн.квартиру 4 мкрн Каменское 8
  • Двухкомнатная
  • 53 м2
  • 8 / 10 эт.
27 444 $
Предлагаем вашему вниманию 2 комн.квартиру с ремонтом, Левый берег пр.Металлургов 4 мкрн. расположенную на 8-м этаже десятиэтажного дома, общей площадью 54 кв.м. Комнаты раздельные, не угловая. Металлопластиковые окна, новые межкомнатные двери, пол линолеум. Большим преимуществом квартиры является большая и просторная лоджия на 2 комнаты, которая утеплена и застеклена. Счетчики есть на все, что поможет контролировать ваш семейный бюджет. С/ у раздельный в кафеле, заменены трубы водопровода. Установлен водонагреватель. Отопление централизованное. Новому хозяину остается встроенная кухня, стиральная машина, водонагреватель, мягкая мебель. Долгов по квартире нет! Квартира достойна вашего внимания. Рядом с домом (супермаркет, ресторан, автостоянка, садик, остановка транспорта в шаговой доступности школа, рынок). 4 микрорайон, можно описать как спальный, через дорогу лесополоса, за ней канал. Чистый воздух, прекрасные места для отдыха. Звоните! Приезжайте, смотрите, предлагайте свой вариант цены. Каждое предложение будет рассматриваться индивидуально. Записывайтесь на просмотр прямо сейчас!!! Цена 27 500$ + %АН тел. 098 335 63 71 Наталья
Каменское, 4 мкрн
офлайн
Ігор Діброва Парк
На сайте с 16 апреля 2020