Без комиссии
1  / 3
Продам 2к квартиру ЖК СВЯТОТРОЇЦЬКИЙ | бул. Шевченка, 202 | - фото 1
Продам 2к квартиру ЖК СВЯТОТРОЇЦЬКИЙ | бул. Шевченка, 202 | - фото 2
Продам 2к квартиру ЖК СВЯТОТРОЇЦЬКИЙ | бул. Шевченка, 202 | - фото 3

Продам 2к квартиру ЖК СВЯТОТРОЇЦЬКИЙ | бул. Шевченка, 202 |

Черкассы

Пожаловаться
2 899 050 грн.
33 000 грн. за м²
0 просмотров объявления | 0 сегодня
Добавлено: 7 января 2026, ID: 4643266
Характеристики
  • Без комиссии Да 
  • Комнат
  • Общая площадь 87.85 м2
  • Площадь кухни 17 м2
  • Этаж 14 
  • Этажность 25 
  • Ремонт После строителей 
  • Планировка Раздельная 
  • Тип стен Монолитный 
  • Комфорт Пожарная сигнализация, Видеонаблюдение, Лифт, Грузовой лифт 
  • Коммуникации Центральный водопровод, Электричество, Центральная канализация, Вывоз отходов, Асфальтированная дорога 
Описание
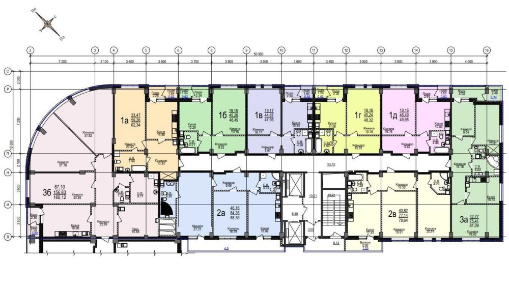
Пропонуємо до продажу 2к квартиру в центрі міста по бул. Шевченка, 202 в ЖК СВЯТОТРОЇЦЬКИЙ.

Квартира:
- загальна площа 87,85 кв.м.
- тип квартири - 2А
-кухня 17,05 кв.м. з виходом на балкон
- кімната 25,58 кв.м. з виходом на балкон
- вітальня 20,02 кв.м.
- с/в роздільний 6,80 та 4,71 кв.м.
- стан квартири після будівельників
- висота стелі 2,75 м.
- 14 поверх

Краєвид у двір.

Будинок:
- утеплений 10 см. мін.ватою
- 2 грузових ліфти
- оглядовий майданчик на даху для жителів будинку

Місцерозташування:
- центр міста
- кафе
- ресторани
- школа
- парк
- ТРЦ

Варіанти оплати:
- розтермінування від забудовника: 30% перший внесок, решта на 6 місяців.

Маєте питання або хочете переглянути квартиру вживу - телефонуйте!

Відділ продажу: м. Черкаси, бул. Шевченка, 352.
Графік роботи: ПН-ПТ з 10:00 до 17:00 (також можливий запис у зручний для Вас час за попередньою домовленістю).
Обратная связь
Добробуд
офлайн
Похожие объявления
Терміново!Продам квартиру біля моря на 10-й Фонтана Приморський Одесса 17
  • Двухкомнатная
  • 88 м2
  • 2 / 4 эт.
94 400 $
Терміново! Продаж квартири біля моря в надійному будинку на безпечному 2 поверсі!! Поспішайте - Ваш вибір, ваша безпека! Ваша квартира з турбованим газовим котлом у новому будинку з червоної цеглини біля моря на Фонтані Приморський Одеса! Квартира зі своїм каміном і висотою 4 метри - квартира твоєї мрії: Дві кімнати та кухня, є можливість зробити кухню вітальню та окрему спальню. У квартирі великі панорамні вікна. Характеристики: •Будинок з клінкерної червоної цегли •Висота стелі 4м. •Свій газовий котел, індивідуальне опалення. • Розташування: 10ст. Великого Фонтану, Одеса • Відстань до моря: 300 метрів, 7 хвилин пішки до найчистішого пляжу • Площа квартири 60 метрів • Можливість облаштування 2 рівнів завдяки висоти стелі 4м+ 30 метрів Вам у подарунок • Квартира зі своїм автономним газовим казаном Особливості: • Утеплення 150 мм Австротерм для комфортного проживання. • Цегляний клубний будинок з преміум якістю будівництва • Панорамні арочні вікна від REHAU Пляж «Чайка» розташований на 10-й станції Великого Фонтану, біля готелю Maristella. • Він муніципальний, просторий, із звичною інфраструктурою (шезлонги, парасольки, кафе, торгові точки). • Поруч пляжі: • Рів’єра (12-та станція Великого Фонтану) • Курортний (13-та станція Великого Фонтану) • Золотий берег (16-та станція Великого Фонтану) — також у цьому ж районі Великого Фонтану. Як дістатися — трамваї та маршрутки • Трамвай № 18 прямує до Чайки, зупинка — «10-та станція Великого Фонтану». (!) • Маршрутки, що обслуговують Чайку: № 127, 185, 191, 215, 223. -Ідеальний варіант для родини або під інвестицію — квартира готова до заселення вже сьогодні! Клубний малоквартирний будинок Вже побудований!! Можливе розтермінування! Дзвоніть терміново! Ціна при 100% розрахунку — це супер інвестиція, без додаткових витрат та очікування- будинок введений в експлуатацію!
Одесса, Приморский
Продам 3-кімнатну квартиру Ільфа та Петрова, Київський р-н Таїрова, Одеса Одесса 14
  • Трехкомнатная
  • 68 м2
  • 8 / 9 эт.
43 999 $
Продам 3-кімнатну квартиру Ільфа та Петрова на Таїрова, м. Одеса! вул. Ільфа та Петрова, буд. 6 (Сімʼї Глодан), біля ресторану «Вечірній Баку» Переваги квартири: • Загальна площа — 68 м² • Поверх 8 із 9 поверхового будинку • Три окремі кімнати, простора кухня 10 м² • Окремий санвузол Зручна локація: • Київський ринок — 5 хв пішки • Пляж (найчистіший) — 10 хв • Площа Незалежності — 15 хв • Усе поруч: АТБ, Сільпо, МакДональдс, аптеки, кафе, ресторани, салони краси Навчальні заклади: • Школи №72, №80 • Дитячі садки: №138, №228, «Пружинка», Happy Time, «Наследіє», №283 Транспорт: • Маршрутки: №185, 121, 149, 191, 220 • Тролейбус №12 Телефонуйте для перегляду! Квартира в зручному районі для комфортного життя вашої родини https://ah-era.rem.ua/ua
Одесса, Киевский
Продам 1-кімнатну квартиру біля моря на 9-й Фонтані, Одеса - ремонт, розстрочка Одесса 11
  • Однокомнатная
  • 38 м2
  • 3 / 3 эт.
39 999 $
ТЕРМІНОВО ‼️ ПРОДАЖ ПРИМОРСЬКИЙ РАЙОН 10 СТАНЦІЯ ВЕЛИКОГО ФОНТАНУ Провулок Кордонний, будинок 25 ЦІНА СТАРТУ — 39 999 $ Запис на перегляд ВЖЕ ВІДКРИТИЙ! 1-кімнатна квартира 38м² загальна 30 м² житлова ОКРЕМА кухня-вітальня + окрема спальня НОВИЙ дизайнерський ремонт ВІП-сантехніка Вбудована кухня Заїхав — живеш або здаєш БУДИНОК: ЧЕРВОНА ЦЕГЛА Клубний формат Висота стелі 3 м СВІЙ газовий турбований котел Низькі комунальні Тепло взимку, прохолодно влітку! Автономне джерело живлення в квартирі! ЛОКАЦІЯ: 5 хв пішки — пляж Чайка 10 хв — 10 Фонтан 15 хв — Аркадія Парк Юність, Траса Здоров’я — поруч. БОНУС: При 100% розрахунку — ПАРКОМІСЦЕ В ПОДАРУНОК. ФАКТ: Квартири з ремонтом біля моря за такою ціною — РІДКІСТЬ Ціна на старті. Далі буде вище. Телефонуйте зараз. Хто перший — той забрав! https://ah-era.rem.ua/ua
Одесса, Приморский
офлайн
Добробуд
На сайте с 16 апреля 2020