Без комиссии
1  / 2
Продам 1.5 кімнатну квартиру в ЖК Б4 - фото 1
Продам 1.5 кімнатну квартиру в ЖК Б4 - фото 2

Продам 1.5 кімнатну квартиру в ЖК Б4

Ужгород

Пожаловаться
61 628 $
1 150 $ за м²
0 просмотров объявления | 0 сегодня
Добавлено: 3 ноября 2025, ID: 4450870
Характеристики
  • Без комиссии Да 
  • Комнат
  • Общая площадь 53.59 м2
  • Площадь кухни 18 м2
  • Этаж
  • Этажность
  • Ремонт После строителей 
  • Коммуникации Газ, Центральная канализация, Асфальтированная дорога 
Описание
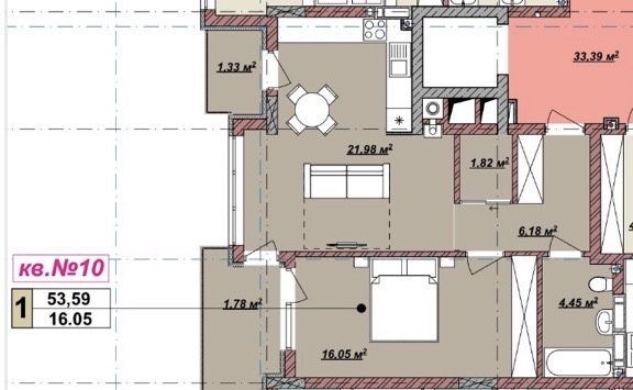
Продам 1,5-кімнатну квартиру в житловому комплексі B4, м. Ужгород.
Адреса: вул. Баб’яка, 8, будинок №4. Здача – кінець 2025 року.
Поверх 3, площа 53,59 м². Квартира після будівельників, формат 1,5 кімнати.

Топове розташування: поруч Епіцентр, торговий центр «Токіо», супермаркети, кафе, ресторани, школи, садочки, відділення Нової пошти. Індивідуальне газове опалення. Закрита територія з дитячими та спортивними майданчиками. Підземний паркінг з ліфтом. Утеплений міневатою будинок. Балкон і лоджія, вікна виходять у двір.

Комплектація від забудовника: газовий котел і радіатори, розведена електрика та сантехніка, вхідні двері та металопластикові вікна, чорнова штукатурка і стяжка підлоги, просторий ніш для гардеробної.

Планування: спальня з виходом на балкон, кухня-вітальня з лоджією, коридор з місцем для гардеробної. Квартира не кутова, тепла, з гарним внутрішнім двором.
Обратная связь
Наталія
офлайн
Похожие объявления
Продаж 1-к.кв-ри під комерцію або житло по вул. Одеській. Привокзальна Львов 16
  • Однокомнатная
  • 20 м2
  • 1 / 3 эт.
33 000 $
Продаж 1-кім.кв-ри під комерцію або житло по вул. Одеській (Привокзальна). Дуже хороша локація, неподалік залізничний вокзал, Привокзальний ринок, недалеко до центру. Зараз по документах житловий фонд. Загальна площа 20 кв.м + під кухньою є підвал 7 м.кв, який можна об'єднати. Вхід в квартиру є із фасаду будинку, тому добре підійде для магазину, офісу, салону та іншого. У підвалі є виведена каналізація та підведена вода. Ціна 33000$, без торгу! Тел: ⓿❻❼❸❼⓿❼❺❸❸ або ⓿❾❺❻❼❾❾❺❷❸
Львов, Железнодорожный
Продаж 1К квартири в ЖК Welcome Home вулиця Стеценка 75 Киев 5
  • Однокомнатная
  • 54 м2
  • 1 / 1 эт.
51 000 $
Продаж 1К квартири в ЖК Welcome Home вулиця Стеценка 75 Будинок 11 Площа 48.54 м2 Висота стелі 2.7м Поверх 1/6 Просторі кімнати, не межує з ліфтом Лічильники на опалення, воду, електроенергію, встановлені опалювальні прилади (радіатори), влаштована гідроізоляція підлоги в санвузлах Будинок Введено в експлуатацію - Газоблок, в квартирі 1 кімната. Планування кімнат Роздільне. Загальний стан квартири - Від будівельників вільне планування. Працює без світла - опалення 044 200 10 80
Киев, Святошинский
Продаж 1-к квартири вул. Загорівська (Багговутівська) 25 Шевченківський район Киев 5
  • Однокомнатная
  • 47 м2
  • 19 / 25 эт.
70 000 $
Продаж однокімнатної квартири. Простора 1-кімнатна квартира в сучасному житловому комплексі ЖК Багговутівський, побудованому за монолітно-каркасною технологією. Будинок введений в експлуатацію у 2021 році, клас комфорт. Основні характеристики: Стан від забудовника: чистове стягування підлоги, встановлені радіатори, лічильники на воду, електроенергію та опалення, вхідні металеві двері; Висота стелі 2, 7 м; Засклений балкон; Панорамні металопластикові вікна з енергозберігаючими склопакетами; Автономне опалення (власна котельня); Централізоване водопостачання та електроенергія. З квартирою (ціна окремо) продається комора 4м2 на цьому поверсі. Вона також у приватній власності. 044 200 10 80
Киев, Шевченковский
офлайн
Наталія
На сайте с 16 апреля 2020