Без комиссии
1  / 5
Продається 2-к. квартира без ремонту, Шевченківський р-н. БЕЗ КОМІСІЇ - фото 1
Продається 2-к. квартира без ремонту, Шевченківський р-н. БЕЗ КОМІСІЇ - фото 2
Продається 2-к. квартира без ремонту, Шевченківський р-н. БЕЗ КОМІСІЇ - фото 3
Продається 2-к. квартира без ремонту, Шевченківський р-н. БЕЗ КОМІСІЇ - фото 4
Продається 2-к. квартира без ремонту, Шевченківський р-н. БЕЗ КОМІСІЇ - фото 5

Продається 2-к. квартира без ремонту, Шевченківський р-н. БЕЗ КОМІСІЇ

Львов, Франковский

Пожаловаться
95 000 $
1 284 $ за м²
0 просмотров объявления | 0 сегодня
Добавлено: 7 декабря 2025, ID: 4555185
Характеристики
  • Без комиссии Да 
  • Комнат
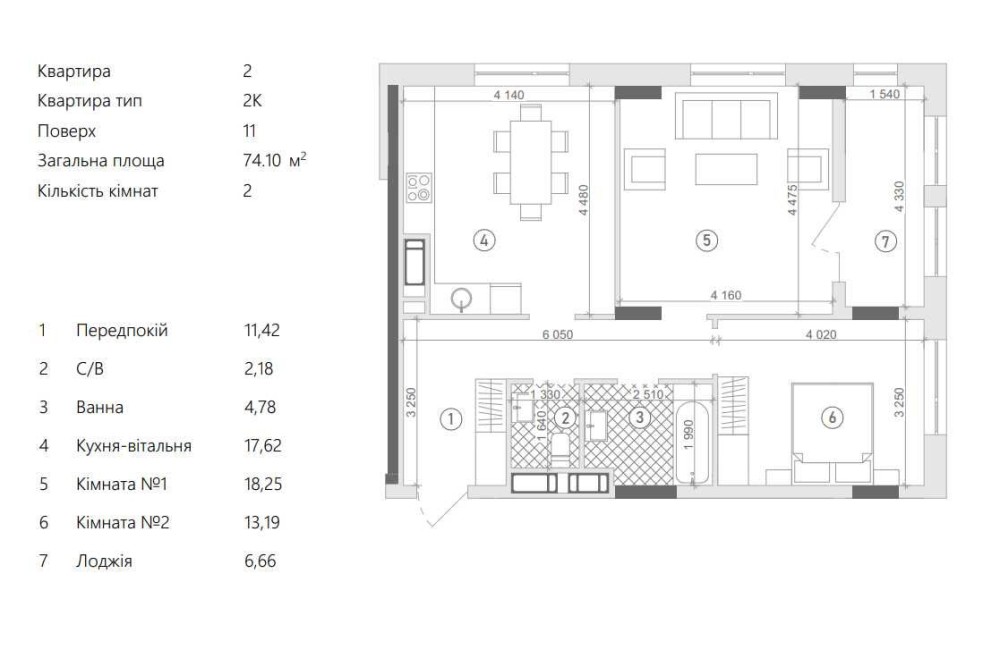
  • Общая площадь 74 м2
  • Площадь кухни 17.62 м2
  • Этаж 11 
  • Этажность 16 
  • Ремонт После строителей 
  • Планировка Раздельная 
  • Тип стен Кирпичный 
  • Отопление Собственная котельная 
  • Комфорт Гостевой паркинг, Подземный паркинг, Лифт 
  • Коммуникации Центральный водопровод, Электричество, Центральная канализация, Вывоз отходов, Асфальтированная дорога 
Описание
Продається 2-кімнатна квартира без ремонту ЖК Фруктова Алея, вулиця Під Голоском 4, Шевченківський район.
Секція 2А
Здача на кінець року.

Код об'єкту: #29374839

Характеристики:
- Зальна площа 74.1 м2; кухня- студія 17.62м2;
- Розташування квартири на 11-му поверсі 16- поверхового будинку (ліфт);
- Стан квартири: після забудовника, всі комунікації заведені, встановлюються лічильники на тепло, воду та електрику;
- Автомне опалення (котельня в будинку);
- Вихід з кімнати на лоджію.

Ключові переваги:
-Панорамні вікна з виглядом на ліс;
- 6-камерні енергозберігаючі вікна;
- Броньовані вхідні двері;
- Висота стелі — 2.8 м;
- Передбачені стоянки для велосипедів та кімната для візочків.

Інфраструктура:
Житловий комплекс «Фруктова алея» розташований у зручному районі Львова з розвиненою інфраструктурою: поруч є магазини, кафе, ресторани, дитячі садки, школи та фітнес-клуби. До найближчих супермаркетів, кінотеатру та закладів харчування можна дістатись за кілька хвилин пішки чи на авто. Для відпочинку неподалік розташований Брюховицький ліс та спортивні майданчики просто неба. На території ЖК буде: місце для пікніку, 3 дитячі зони, тенісний стіл та на даху будинку буде облаштована зона для відпочинку та кіно.

Умови продажу: Будинок на етапі здачі, продаж по переуступці. Без комісії для покупця.

Ідеальний варіант для проживання або під орендний бізнес.
Звертайтесь для перегляду та детальної інформації!
Обратная связь
Тетяна
офлайн
Похожие объявления
Продаж 3к "чешки" з автономним опаленням в Металургійному районі Кривой Рог 16
  • Трехкомнатная
  • 75 м2
  • 5 / 5 эт.
33 600 $ Без комиссии
Пропонуємо Вам простору та затишну трикімнатну квартиру по вул. Віталія Власова . Розташована на п'ятому поверсі п'ятиповерхового будинку. Квартира загальною площею - 75кв м, житлова площа - 40кв м, кухня - 14 кв м. Зроблений якісний ремонт, є тепла підлога та встановлено автономне опалення! Меблі та техніка залишаються, можна одразу заїжджати та жити. Також є комора - додаткове місце для зберігання речей. Квартира була на чотири кімнати, з однієї зроблена гардеробна. Ванна кімната збільшеної площі - 12кв м, світла та простора, створена для максимального комфорту. Ззовні повністю утеплена квартира. Вікна, сантехніка, проводка - все нове! Дах повністю перекритий новим покриттям, що забезпечує надійний захист від опадів. Біля будинку розвинута Інфраструктура та хороша транспортна розв'язка. Телефонуйте та домовляйтесь про перегляд!
Кривой Рог, Метталургический
Продаж затишної 3к квартири мкр. Гірницький Кривой Рог 19
  • Трехкомнатная
  • 62.8 м2
  • 6 / 9 эт.
21 000 $
Потрібен середній поверх? Бажаєте житло для себе чи своїх близьких? Хочете затишне місце, тихе подвір’я і щоб у кроковій доступності була школа, садок для Ваших дітей? Тоді пропонуєм Вам чудовий варіант) Чудова трикімнатна квартира на шостому поверсі дев’ятиповерхового будинку. У центрі перспективного районі нашого міста, за адресою мкр. Гірницький, на якому створено чудові умови та є вся потрібна інфраструктура для комфортного життя. Також у кроковій доступності АТБ, школи, садки, торгівельний центр Сонячна галерея. Загальна площа: 62.8 кв.м. Житлова площа: 37.2 кв.м. Кухня: 8.7 кв.м. Що стосується самої квартири, вона в гарному житловому стані, але Ви зможете зробити ремонт на Ваш дизайнерський смак. Є дві лоджиї, окремий санвузол та гарна простора кухня. Боргів немає. Лічильники на воду, світло, газ. Телефонуйте, приходьте та купуйте!
Кривой Рог, Саксаганский
Продаж 2-к квартири вул. Гетьмана Вадима 1В ЖК "Місце мрії" Киев 4
  • Двухкомнатная
  • 96 м2
  • 11 / 21 эт.
134 000 $
Продаж двокімнатної квартири вул. Гетьмана Вадима 1В ЖК "Місце мрії" Будинок 2010 року, Житловий комплекс «Місце Мрії» має закриту територію та дворівневий підземний паркінг. Стан від забудовника Метро Шулявська 044 200 10 80
Киев, Соломенский
офлайн
Тетяна
На сайте с 16 апреля 2020