1  / 1
НОВЕ Продаж 1К квартира Оболонь ЖК Оазис Оболонські Липки Парк Наталка - фото 1

НОВЕ Продаж 1К квартира Оболонь ЖК Оазис Оболонські Липки Парк Наталка

Киев, Оболонский

Пожаловаться
130 000 $
2 167 $ за м²
0 просмотров объявления | 0 сегодня
Добавлено: 15 ноября 2025, ID: 4494053
Характеристики
  • Без комиссии Нет 
  • Комнат
  • Общая площадь 60 м2
  • Площадь кухни 24 м2
  • Этаж 12 
  • Этажность 13 
  • Планировка Раздельная 
  • Тип стен Кирпичный 
  • Отопление Централизованное 
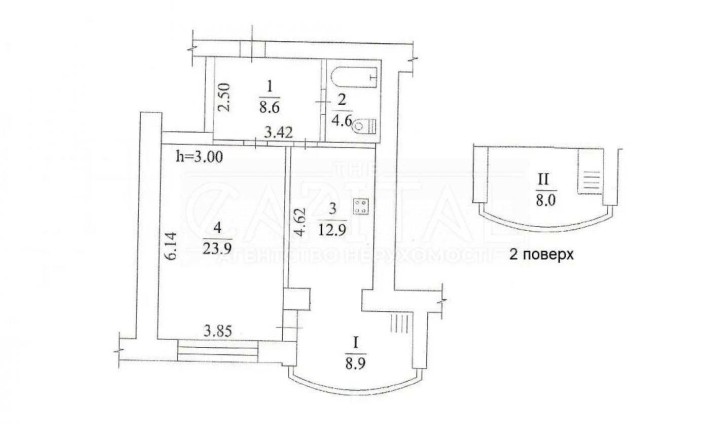
Описание
Терміновий продаж! Простора квартира біля парку Наталка — ЖК «Оазис»

Продається стильна 1-кімнатна квартира з додатковою кімнатою вільного призначення у престижному житловому комплексі «Оазис», що розташований на проспекті Івасюка (Героїв Сталінграда), 6 — в самому серці Оболонської набережної.

Переваги розташування:
Жити біля Дніпра — це насолода кожного дня. У пішій доступності парк Наталка, набережна, ТРЦ, ресторани, магазини, фітнес-клуби. Район із розвиненою інфраструктурою та зручною транспортною розв’язкою — все необхідне поруч!

Про квартиру:

* Площа — 60 кв.м + 8 кв.м
* Поверх — 2/12, гарний вид з вікон
* Кімната — 24 кв.м, кухня — 22 кв.м
* Висота стелі — 3 метри, що додає відчуття простору
* Якісний ремонт: паркет, натуральне дерево, рідкі шпалери
* Повністю мебльована, оснащена технікою — посудомийна машина, бойлер, кондиціонер
* Встановлені всі лічильники

ЖК «Оазис» — цегляний будинок бізнес-класу з підземним паркінгом, охороною, дитячими та спортивними майданчиками. Тиша, комфорт і безпека — все, що потрібно для життя.

Ціна повністю відповідає ринковій вартості, пропозиція вигідна як для проживання, так і для інвестиції.

Покази за домовленістю. Дзвоніть — квартира варта вашої уваги!

# A 2 30 06
Обратная связь
Корабель Вадим
офлайн
Похожие объявления
3-к квартира Київ, Шевченківський, 228000 $ Киев 9
  • Трехкомнатная
  • 117 м2
  • 18 / 23 эт.
228 000 $
ЖК КАМЕРТОН, вул.Річкова (Річна), 4. Будинок бізнес рівня, розташований у Шевченківському районі, на перетині двох вулиць - Дмитрівська та Річкова, в тихому центрі міста. ЗАГАЛЬНА площа - 117кв.м. Н -3м Передпокій - 10.9кв.м. Комора -2.4кв.м. ЖИТЛОВА - 65кв.м. ТРИ окремі кімнати - 23.5кв.м., 14.1кв.м., 27.4кв.м. КУХНЯ - 26.5кв.м. Три санвузли - 4.8кв.м. + 4.4кв.м. + 3.0кв.м. Монол.-каркасний будинок, утеплений фасад. Затишний хол першого поверху з каміном, - висока стеля, та оздоблення з якісних матеріалів. Територія розділена на активну та тиху зону. Будинок має внутрішній сквер. Цілодобова охорона, система відеонагляду. З поверху на ліфті можна потрапити в паркінг, - станція зарядки для автомобілів, велопарковка Сучасні безшумні три ліфти *Kone* Розвинена інфраструктура. Поруч розташовані супермаркет, кафе, банки, дитячий садок, гімназія. Найближчі ст.метро - Лукянівська, Вокзальна, Політехнічний інститут . Будинок введено в експлуатацію, можливість відразу зайти на ремонт квартири... В наявності паркомісце для автомобіля. (У вартість не входить) ПРОПОЗИЦІЯ АКТУАЛЬНА. Вартість - 1.950у.о/кв.м. / 063/356-8985 Перегляд по домовленості, телефонуйте у будь який час.
Киев
Продаж 2к.квартири Лікоград Перфект Таун, вул. Максимовича, 32а м. Васильківська Киев 9
  • Двухкомнатная
  • 52.5 м2
  • 9 / 23 эт.
130 000 $
Продається 2 кімнатна квартира 52,5 кв. у ЖК Perfect Town із сучасним ремонтом на 9-му поверсі. Квартира повністю мебльована сучасною технікою для комфортного проживання. Ремонт виконаний із високоякісних матеріалів від європейських виробників, що гарантує довговічність та стильний інтер'єр. Просторі світлі кімнати з теплою підлогою створюють затишну атмосферу для вашого відпочинку та комфорту. Встановлено лічильники води, тепла та електрики, що дозволить вам більш ефективно контролювати свої витрати. Велика гардеробна забезпечить зручне зберігання ваших речей. Розвинена інфраструктура Голосіївського району із широким вибором супермаркетів, магазинів, аптек, ресторанів та парків. Метро "Васильківська" знаходиться неподалік, що забезпечує зручне транспортне сполучення з іншими районами Києва. т.044 200 10 80
Киев, Голосеевский
Продаж 2к квартири Шевченківський район вул. Дегтярівської, 15 Киев 5
  • Двухкомнатная
  • 45 м2
  • 2 / 5 эт.
68 000 $
Продаж 2к квартири в Шевченківському районі по вулиці Дегтярівській, 15, метро Лук’янівська Квартира знаходиться на 2 поверсі 5 поверхового цегляного будинку. Квартира не кутова, в житловому стані, площа 45/30/6.8 м2. Квартира складається з двох просторих кімнат (по 15 м2), роздільного санвузла, кухні та балкону. У кімнатах на підлозі паркет, у кухні та санвузлі – кахель, всі вікна змінено на металопластикові. У будинку центральне опалення, гаряче та холоне водопостачання, є газ. Балкон 2.2 м2, обшитий вагонкою, вбудовано шафу для зберігання речей. Зручна транспортна розв’язка, 5 хвилин до станції метро Лукʼянівська, 20 хвилин пішки до метро Політехнічний університет, поруч трамвайна та автобусна зупинки, 10 хвилин на авто до центру міста. У пішій доступності знаходяться школа, дитячі садочки, супермаркети, ТЦ «Квадрат», нова пошта, сквери для відпочинку. 044 200 10 80
Киев, Шевченковский
офлайн
Корабель Вадим
На сайте с 16 апреля 2020