Без комиссии
1  / 5
Двокімнатна квартира з видом на ліс. ЖК Крона Парк 2 - фото 1
Двокімнатна квартира з видом на ліс. ЖК Крона Парк 2 - фото 2
Двокімнатна квартира з видом на ліс. ЖК Крона Парк 2 - фото 3
Двокімнатна квартира з видом на ліс. ЖК Крона Парк 2 - фото 4
Двокімнатна квартира з видом на ліс. ЖК Крона Парк 2 - фото 5

Двокімнатна квартира з видом на ліс. ЖК Крона Парк 2

Бровары

Пожаловаться
2 926 620 грн.
46 278 грн. за м²
0 просмотров объявления | 0 сегодня
Добавлено: 2 ноября 2025, ID: 4446249
Характеристики
  • Без комиссии Да 
  • Комнат
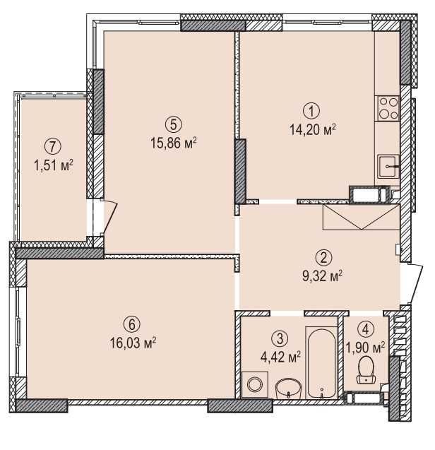
  • Общая площадь 63.24 м2
  • Площадь кухни 14 м2
  • Этаж 11 
  • Этажность 11 
  • Ремонт После строителей 
  • Планировка Раздельная 
  • Тип стен Кирпичный 
  • Отопление Централизованное 
Описание
Продається двокімнатна квартира в комплексі бізнес класу в центрі міста Бровари. Житловий комплекс розташований в пішій доступності від основних інфраструктурних об'єктів міста, і в 5-ти хвилинах ходьби від лісу, відмінна транспортна розв'язка. На озелененій території комплексу передбачений наземний паркінг, дитячі майданчики та зони відпочинку, автономне опалення, будинок монолітно-каркасний, утеплення мінеральною ватою, квартира розташована в 14-ти поверховому будинку, функціональне планування площею 63,24 м2 з просторою кухнею-вітальнею з виходом на лоджію, світлими кімнатами та роздільними санвузлами. У парадному передбачена охорона та відеоспостереження. Девелопер «Альянс Новобуд» понад 18 років працює на будівельному ринку Києва та області. Ми проєктуємо та будуємо осмислені житлові простори для життя, відпочинку та самореалізації. Без комісії для клієнта.
Обратная связь
Відділ продажу
офлайн
Похожие объявления
Продажа квартиры от собственника Каменец-Подольский 12
  • Двухкомнатная
  • 53 м2
  • 5 / 5 эт.
30 000 $ Без комиссии
пластиковые окна, бойлер, металлическая входная дверь (красный декор), 15минут пешком до центра,есть рядом супермаркет,остановки с регулярным автобусами в разные стороны города, тихий район,рядом школа .
Каменец-Подольский, Жовтневый
Продажа квартиры, Васильева 13а Каменец-Подольский 11
  • Двухкомнатная
  • 53 м2
  • 5 / 5 эт.
30 000 $
Пластиковые окна, бойлер,входная дверь металлическая,по близости супермаркет, остановки с регулярным автобусами в разные стороны города, тихий район,15минут до центра города пешком,рядом школа .
Каменец-Подольский, Жовтневый
Продам 1 ком акварель 8 Одесса 8
  • Однокомнатная
  • 34 м2
  • 3 / 17 эт.
44 800 $
Продам 1-комнатную квартиру Акварель 8 44 800 $ | 3/17 эт. | 34 м² тел 0933464401 Продам 1 комнатную квартиру ЖК Акарель-8 ( Таирова ул Вильямса 93/1) - 3/17 этаж - площадь 34 м2 - кухня гостиная - отдельная спальня - смежный санузел - выполнен качественный евроремонт - частично укомплектована мебелью и техникой - продажа по переуступке - развитая инфраструктура - удобная транспортная развязка Звоните 0933464401
Одесса, Киевский, Таирова
офлайн
Відділ продажу
На сайте с 16 апреля 2020