Без комиссии
1  / 2
Двокімнатна квартира в зданому будинку - фото 1
Двокімнатна квартира в зданому будинку - фото 2

Двокімнатна квартира в зданому будинку

Луцк

Пожаловаться
73 699 $
1 000 $ за м²
0 просмотров объявления | 0 сегодня
Добавлено: 2 февраля 2026, ID: 4715353
Характеристики
  • Без комиссии Да 
  • Комнат
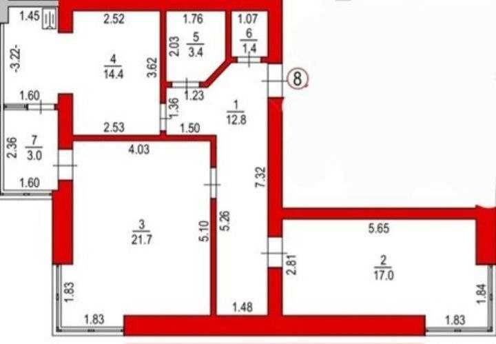
  • Общая площадь 73.7 м2
  • Площадь кухни 14 м2
  • Этаж
  • Этажность
  • Планировка Раздельная 
  • Тип стен Кирпичный 
  • Комфорт Панорамные окна, Лифт 
  • Коммуникации Газ, Центральный водопровод, Электричество, Центральная канализация, Вывоз отходов, Асфальтированная дорога 
Описание
Продаж 2 тної квартири або ж (обмін на 1-тну квартиру, комерцію, будинок) в зданому будинку для сім'ї в спокійному, затишному районі поблизу центру міста. Квартира знаходиться на 2 поверсі,сх-зх стороні будинку. Має окремі дві кімнати та кухню із балконом, що є продовженням кухні. Також в квартирі є гардеробна, що дозволяє використати простір кімнат без встановлення шаф. В квартирі виконані чорнові роботи від забудовника: стяжка, штукатурка, прокладена тепла підлога від котла в кухні, коридорі та санвузлі. Розведена сантехніка та електрика по квартирі, встановлений газовий котел, для опалення квартири та подачу гарячої води. Встановлені вхідні двері та засклені балкони. Будинок має діюче ОСББ, яке відповідально виконує свої обовязки. Будинок має 5 поверхів, оснащений ліфтом, діючим. В підвалі є укриття, де встановлений окремий санвузол. Вся територія комплексу закритого типу із відеонаглядом. Квартира цікава для сімї з дітьми або ж для власного задоволення, використання площі з користю.
Обміняю на 1 тну квартиру або ж будинок з доплатою. Огляд квартири по телефону 09******35
Обратная связь
ЖК Світло
офлайн
Похожие объявления
СВІТЛА 2 кім. квартира Черкассы 4
  • Двухкомнатная
  • 49 м2
  • 5 / 5 эт.
52 000 $
Продаж 2-кімнатної квартири по вул. Нарбутівській ???? ????Торг присутній???? Світла, доглянута та дуже затишна 2-кімнатна квартира загальною площею 49 м² на 5 поверсі 5-поверхового панельного будинку — чудовий варіант для комфортного життя або вигідної інвестиції. ✨ Основні переваги: • Зручне та функціональне планування • Кухня — 6,1 м² • Косметичний ремонт — можна одразу заїжджати без додаткових вкладень • Містка гардеробна шафа — максимум порядку без зайвих меблів • Утеплений балкон • Встановлені лічильники на газ, гарячу та холодну воду • Проведено оптоволокно — швидкісний інтернет для роботи та навчання • Окрема кладова в підвалі — додатковий простір для зберігання • Біля будинку закріплене окреме паркомісце для двох автомобілів • До зупинки громадського транспорту — лише 5 хвилин пішки • Будинок обслуговує ОСББ — чистий, доглянутий під’їзд та прибудинкова територія ???? Поруч розташована Черкаська загальноосвітня школа №22 — зручно для сімей із дітьми. Квартира тепла, акуратна, із приємною атмосферою. Тут відчувається доглянутість і порядок — і це саме той варіант, куди хочеться зайти та залишитися. Ідеально підійде як для власного проживання, так і під орендний бізнес із стабільним попитом. ???? Телефонуйте для перегляду: 063 360 01 06 068 360 01 06 Організую показ у зручний для вас час.
Черкассы
Продаж 1-к квартири Балтійський пров.3а ЖК «Навігатор» Киев 4
  • Трехкомнатная
  • 103.7 м2
  • 15 / 25 эт.
150 000 $
ЖК «Навігатор», Оболонський район, Балтійський провулок, 3А Продається унікальний об'єкт – одразу три 1-кімнатні квартири, з ремонтом та меблями, розташовані поряд в одному тамбурі на 15 поверсі 25-поверхового монолітно-каркасного будинку. Кожна квартира – окремий об'єкт із правом власності. • 35,1 кв. м - 1-кімнатна квартира з прекрасним плануванням (євродійка), просторий засклений балкон з окремою зоною на свіжому повітрі, панорамний вид на місто; • 33,6 кв. м - комфортна студія з панорамним видом на місто; • 30,2 кв. м – затишна студія з видом на двір; • 4,8 кв. м – загальний тамбур лише на ці три квартири. ЖК "Навігатор" знаходиться в Оболонському районі, всього за 10 хвилин їзди від метро Почайна та Оболонь. Легка доступність до центру – близько 20 хвилин на авто. Поруч із будинком – зупинки громадського транспорту. 044 200 10 80
Киев, Оболонский
Продаж 3-кімнатної квартири Набережно-Хрещатицька вул.21 Киев 8
  • Трехкомнатная
  • 96 м2
  • 4 / 8 эт.
445 000 $
Продам квартиру на Подолі ЖК Illinsky House з шикарним видом на Дніпро. Будинок бізнес - класу з підземним паркінгом, гарна транспортна розв'язка, поряд м. Поштова Площа, м. Контрактова площа, Фунікулер, вул.Набережно Хрещатицька 21. Загальна площа: 93.68 кв.м. Будинок 1, секція 2, 4-й поверх. Є підземний паркінг. У пішій доступності готель Fairmont, ресторан Vero Vero, бізнес-центри, супермаркет Le Silpo, річковий порт, Іллінський монастир, Анреївський узвіз, Києво-Могилянська Академія. 044 200 10 80
Киев, Подольский
офлайн
ЖК Світло
На сайте с 16 апреля 2020