1  / 3
Дуплекс Парк Правика БЕЗ КОМІСІЇ центральні комунікації Газ - фото 1
Дуплекс Парк Правика БЕЗ КОМІСІЇ центральні комунікації Газ - фото 2
Дуплекс Парк Правика БЕЗ КОМІСІЇ центральні комунікації Газ - фото 3

Дуплекс Парк Правика БЕЗ КОМІСІЇ центральні комунікації Газ

Ирпень

Пожаловаться
100 000 $
1 000 $ за м²
0 просмотров объявления | 0 сегодня
Добавлено: 26 октября 2025, ID: 4428663
Характеристики
  • Без комиссии Нет 
  • Тип дома Дуплекс 
  • Комнат
  • Общая площадь 100 м2
  • Этажность
  • Площадь участка 2 сот.
Описание
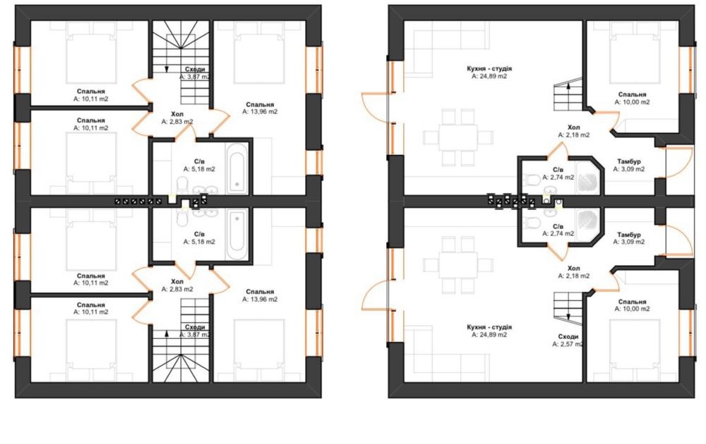
В наявності таунхауси, дуплекс та будинок.

Площа таунхаусів: 90,3 м2
Земельна ділянка: від 1,3 до 1,5 сотки

Площа дуплексів: 90 м2
Земельна ділянка: 1,9 сотки

Площа будинку: 103,88 м2
Земельна ділянка: 3,28 сотки

Будівництво:
- Керамоблок
- Утеплення пінопласт
- Бетонні сходи між 1 і 2 поверхом
Комунікації:
- Вода, каналізація – централізовані
- Опалення газове
- Електроенергія 7 квт., 3 фази.
Готовність об’єкту – вересень 2025 року.

Також є можливість придбати додаткове паркомісце. Вартість – 3000$.

Чекаємо на перегляди. Всім легких клієнтів та угод!
Обратная связь
Михальчук Денис
офлайн
Похожие объявления
Продаж будинку. Центр міста. Вулиця Хібінська. 60 школа. Кривой Рог 18
  • Трехкомнатная
  • 117 м2
  • 6.5 соток
55 000 $ Без комиссии
Центр міста. Вулиця Хібінська, перехрестя з вулицею Українська. Напроти 60 школа. Продаж 2-х поверхового будинку. Цегляний будинок. Оздобленний сайдингом. Центральна каналізація. Двухконтурний газовий котел. 2 кондиціонери. 3 кімнати, гардеробна, кухня, санвузол, коридор. ( планування додам до фото ). Металопластикові вікна і труби. Стан жилий, можлива косметика під себе. Лічильники на все. 6.5 сотих приватизованої землі. Капітальний гараж. Велика кладова. Гарні сусіди. Документи готові. Без боргів і проблем. Історичний, культурний і Гастрономічний центр міста Кривий Ріг. Поруч парк, річка, громадський транспорт, школи, дитячі садочки, кафе, ресторани, магазини... Телефонуйте розповім детальніше. Ваш рієлтор Роман.
Кривой Рог, Центрально-Городской
Продаю капітальний будинок-дачу на березі Хаджибейського лиману Одесса 20
  • Пятикомнатная
  • 194 м2
  • 12 соток
40 000 $ Без комиссии
Продам капитальный дом-дачу в 4 этажа размерами 6,4 х 8,8 м расположенном в спокойном районе на живописном берегу Хаджибейского лимана Раздельнянского района Одесской обл. в 45 км от Одессы по Киевской трассе с участком. Торг возможен. Дом предназначен для постоянного комфортного проживания и отдыха в любое время года, построен для себя с любовью и теплом общей площадью – 193.5 кв.м, из них жилая – 77.3 кв.м., другие – 116.2 кв.м. Рядом село Бурдовка, где есть несколько магазинов, детский сад, школа и постоянно ходят маршрутки. Дом расположен на приватизированном участке площадью 12 соток з посаженными различными плодовыми и декоративными деревьями, виноградом разных сортов, (площадь участка фактически больше и есть возможность расширения). Акт приватизации - серия ПЛ №519264, кадастровый №5123981700:01:004:0608. На участке растет все что посадишь при надлежащем уходе, деревья на участке старые и требуют омоложения. К дому подведено электричество, водоснабжение и рядом на столбах электроснабжения смонтирована линия кабельного интернета и телевидения – возможно подключение к дому. Во дворе расположен колодец-чаша на 7 куб. м, который может заполняться от системы водоснабжения массива. Дом построен з ракушняка и обложен селикатным кирпичом с тепловым зазором для лучшего сохранения тепла. Потолки утеплены пенопластом. Все входные двери дома металлические и обшитые деревом. Окна з двойным остеклением и установленными защитными металлическими решётками. Крыша з керамической черепицы. Установлена автономная солнечная электростанция мощностью 2.4 квт с автоматическим переходом на сетевое напряжение в случае повышенной нагрузки на сеть дома. Установлена система охраной сигнализации оборудованная датчиками движения и видеокамерами по периметру дома. Извещения от сигнализации приходят на смартфон. С него также возможно управление самой сигнализацией, освещением комнат дома, включение электрокотла отопления, полив участка и т.д. Телевизоры в доме работают от обычной и спутниковой антенн. Дом оборудован системой канализации для отвода сточных вод и системой водоснабжения от напорного бака расположенного на крыше дома и заполняемого насосом из колодца или непосредственно от системы водоснабжения кооператива. Вода в системе дома греется электробойлером. Дом отапливается системой водяного отопления с автоматизированным электрокотлом поддерживающим температуру в доме на автомате и также работающего на твердом топливе и обычной печкой на твердом топливе з духовкой. Система водяного отопления имеет принудительную циркуляцию насосом для быстрого прогрева дома и заполнена антифризом. Первый уровень дома расположен практически в земле, где находятся: 1) - гараж пл. 23,7 кв. м с местом для автомобиля и хранения различного оборудования, стройматериалов, комбинированного деревообрабатывающего станка (строгание, фрезерование, циркулярка, наждак) и т.д.; 2) - электросауна пл. 3,8 кв. м с регулируемой мощностью 5 квт и с помещением душа пл. 3,3 кв. м; 3) - подвал пл. 11,0 кв. м для хранения урожая и консервации, дубовых бочек для вина и различных ёмкостей; 4) лестница и вход на второй уровень; 5) - на входе в гараж слева и справа расположены 2 подсобных помещения для хранения угля, дров и сельхозинвентаря площадью по 3,45 кв. м каждое. На втором уровне расположены: 1) - коридор пл. 5,6 кв. м с шкафами для одежды и обуви; 2) -помещение умывальника пл. 1,2 кв. м; 3) - кухня пл. 11,0 кв. м с обычной печкой и духовкой, газовой плитой(+2 баллона), мойкой и котлом водяного отопления дома работающего на твердом топливе и встроенными автоматизированными по отдельности включаемыми электронагревателями мощностью 2+3 квт; 4) - зал пл. 22,7 кв. м украшенный потолочной лепкой и установленным регулируемым потолочным вентилятором с лампами освещения. В зале камин, бильярд, вход в спальни и выход на просторную веранду пл. 14,0 кв. м с видом на лиман, где расположен гриль для приготовления мяса и т.д.; С этого этажа внутри есть лестница на третий уровень, где расп
Одесса
Академгородок Таунхаус Киев 20
  • Четырехкомнатная
  • 137 м2
  • 2 сотки
245 000 $ Без комиссии
Продаж або оренда. Таунхаус 137 кв.м. метро Академмістечко 10 хв. пішки, вул. Осіння. Гараж, паркомісце, огорожа - бетонна, автоматичні ворота. 4 поверхи. 1-й гараж, санвузол, душкабіна, хозблок. 2-й поверх кухня-студія 35 кв., камін. 3-й поверх спальня 24 кв., гардеробна, велика ванна+санвузол. 4-й поверх 2 спальні по 15 кв., санвузол. Газ - 2-х контурний котел вайланд, світло 15 кВт, камін на дровах, міська каналізація, вода міська+своя свердловина. Ремонт, мебльовано. Техніка - кондиціонери, пральна машина, посудомийна машина, 2 телевізори, холодильник, плита газова. Власник. Ірина 0966288118. Оренда 30000.00 грн продаж 245000 $
Киев, Святошинский
офлайн
Михальчук Денис
На сайте с 16 апреля 2020