Без комиссии
1  / 3
Продам 1к Варшавський 3, будинок 10.2 Власник - фото 1
Продам 1к Варшавський 3, будинок 10.2 Власник - фото 2
Продам 1к Варшавський 3, будинок 10.2 Власник - фото 3

Продам 1к Варшавський 3, будинок 10.2 Власник

Киев, Подольский

Пожаловаться
75 000 $
1 667 $ за м²
0 просмотров объявления | 0 сегодня
Добавлено: 18 февраля 2026, ID: 4762682
Характеристики
  • Без комиссии Да 
  • Комнат
  • Общая площадь 45 м2
  • Площадь кухни 15 м2
  • Этаж
  • Этажность 18 
  • Ремонт После строителей 
  • Планировка Раздельная 
  • Тип стен Монолитный 
  • Отопление Собственная котельная 
  • Комфорт Пожарная сигнализация, Охраняемая территория, Парковочное место, Гостевой паркинг, Подземный паркинг, Лифт, Грузовой лифт 
  • Коммуникации Центральный водопровод, Электричество, Центральная канализация, Вывоз отходов, Асфальтированная дорога 
Описание
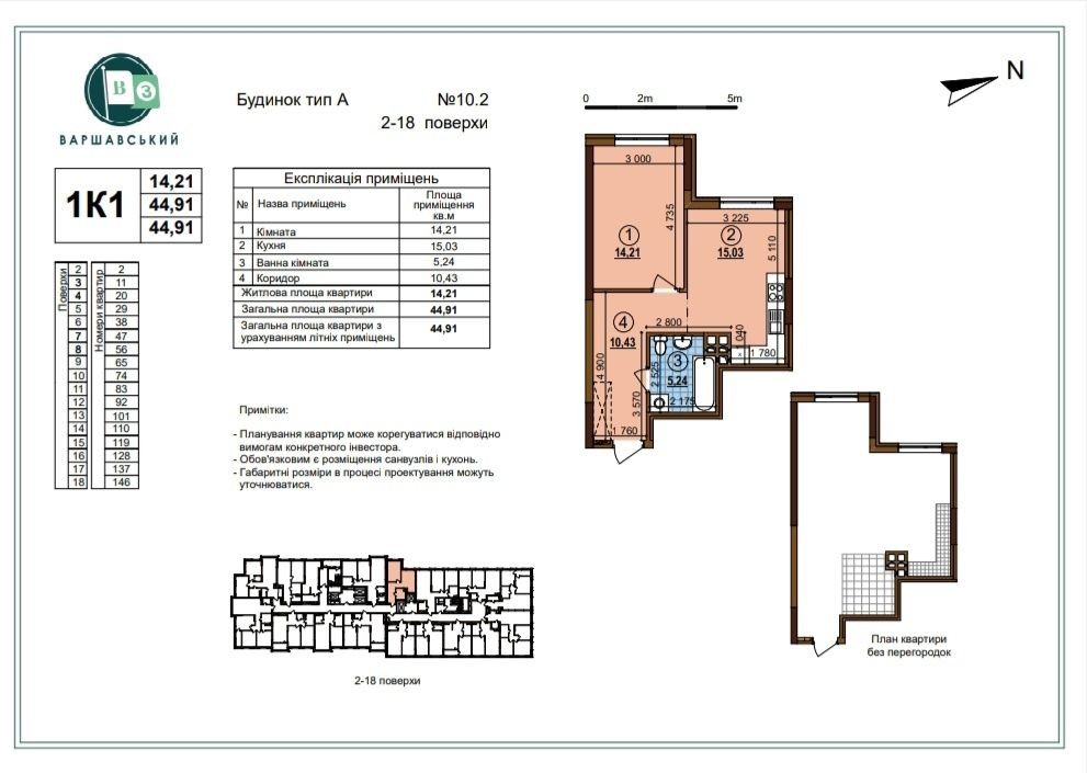
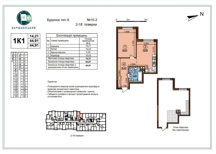
Продам однокімнатну квартиру в ЖК Варшавський 3.

Будинок 10.2, введений в експлуатацію, ключі приблизно через місяць.
Площа 44.9 кв.м, планування 1К1, поверх 6.
Вікна на захід, у двір.

Закрита прибудинкова територія, дитячі та спортивні майданчики, гостьовий паркінг. Поруч є наземний паркінг, ТРЦ Ретровіль, зупинка транспорту, лісо-паркова зона відпочинку.

Продаж по переуступці.
Ціна 75 000 $. Власник.
Обратная связь
Светлана
офлайн
Похожие объявления
Продаж 2-к квартири вул. Авіаконструктора Антонова 2б Киев 4
  • Двухкомнатная
  • 102 м2
  • 5 / 24 эт.
313 000 $
Продаж 2-к квартири вул. Авіаконструктора Антонова 2б. ЖК Sherwood. Планування: кухня-студія з лоджією, 2 спальні, 2 санвузли, гардероб. Панорамні вікна, високі стелі, сучасний євроремонт. Квартира повністю мебльована, з технікою. Комплекс бізнес-класу з генератором, укриттям, закритою територією та охороною. Є дитячі майданчики, зелені зони для відпочинку, підземний. 044 200 10 80
Киев, Соломенский
Продаж 3-к квартири вул. Бориса Гмирі 10/40 Киев 18
  • Трехкомнатная
  • 77 м2
  • 24 / 25 эт.
120 000 $
Продаж 3-к квартири вул. Бориса Гмирі 10/40. Світла, затишна квартира з панорамним видом у Дарницькому районі між станціями метро Осокорки та Позняки. У квартирі зроблений якісний ремонт, є всі необхідні меблі та техніка. Встановлено лічильники на воду та опалення, регулюються батареї. У квартирі влітку прохолодно та тепло взимку. У будинку встановлено генератор на випадок блекауту. Є пандус біля парадного входу. Під'їзд чистий та доглянутий. У пішій доступності є все, що потрібно для життя: магазини, банки, дитячі садки та школи, спортзали, амбулаторії, перукарні тощо. Зручна транспортна розв'язка: метро Осокорки та Позняки за 10 хвилин ходьби; у 3 хвилинах зупиняються маршрутки; до автобусної зупинки 7 хвилин ходьби; поряд із метро Позняки зупинка трамвая. Озера та зелена зона для відпочинку та прогулянок за 10-15 хвилин пішої доступності. 044 200 10 80
Киев, Дарницкий
Продаж 1кімнатної квартири вул. Січових Стрільців 12 (Артема), центр, метро Майдан Незалежності, Зал Киев 9
  • Однокомнатная
  • 51 м2
  • 3 / 6 эт.
100 000 $
Продаж великої 1кімнатної квартири вул. Січових Стрільців 12 ( Артема) . Простора та світла квартира в історичному центрі міста.Розташована в царському будинку з ліфтом на 3/6 поверсі. Загальна площа 51 кв.м, площа кімнати 21 кв.м, кухня 12 кв.м. С/в роздільний, є кладовка. Стан квртири житловий - повністю замінено систему каналізаційних труб, а також проведено додаткову лінію електропроводки для освітлення та розеток. Є газ. Під час відключення електроенергії в будинку є водо- та теплопостачання. Є інтернет (а відсутності світла інтернет працює понад 6 годин від резервного живлення). У дворі будинку є бомбосховище. Чудово розвинена інфраструктура для комфортної життя: дитячі садочки, школи, магазини, супермаркети, аптеки, кавярні, зупинки громадського транспорту. До станцій метро "Золоті ворота" або "Контрактова площа" приблизно 15 хвилин пішки, до "Майдану Незалежності" приблизно 20 хвилин. Ціна 100.000 у.о., 067-781-47-77, 095-124-58-84, Ольга,
Киев, Шевченковский
офлайн
Светлана
На сайте с 16 апреля 2020