Без комиссии
1  / 3
Новий таунхаус у центрі Білогородки (район Сільпо, АТБ) - фото 1
Новий таунхаус у центрі Білогородки (район Сільпо, АТБ) - фото 2
Новий таунхаус у центрі Білогородки (район Сільпо, АТБ) - фото 3

Новий таунхаус у центрі Білогородки (район Сільпо, АТБ)

Святопетровское

Пожаловаться
47 000 $
627 $ за м²
0 просмотров объявления | 0 сегодня
Добавлено: 20 марта 2026, ID: 4852228
Характеристики
  • Без комиссии Да 
  • Тип дома Таунхаус 
  • Комнат
  • Общая площадь 75 м2
  • Этажность
  • Площадь участка 1 сот.
  • Комфорт Терраса, Автоматические ворота 
  • Коммуникации Скважина, Электричество, Канализация септик, Вывоз отходов, Асфальтированная дорога 
Описание
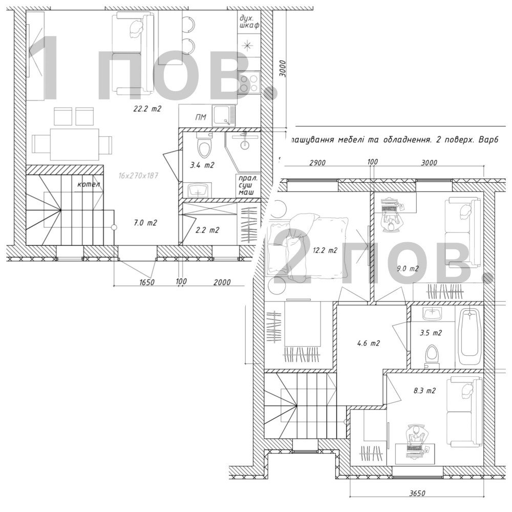
Стильний сучасний проєкт з продуманим плануванням для комфортного життя!
Площа: 75 м²
Вартість: лише 47 000 $!
Перший поверх:
Просторий передпокій
• Велика кухня-вітальня
• Гардеробна кімната
• Гостьовий санвузол
Другий поверх:
• Батьківська спальня з гардеробом
• Окрема спальня
• Дитяча кімната
• Повноцінна ванна кімната
Власне внутрішнє подвір’я
2 паркомісця на фасадній стороні
Закрита територія з автоматичними воротами та хвірткою
Інфраструктура:
У пішій доступності — супермаркет, магазини, школа, дитячий садок та інше.
Зручна транспортна розв’язка!
Запрошуємо на перегляд!
Не втрачайте можливість придбати якісний будинок за вигідною ціною!
Обратная связь
Сергій Олександрович
офлайн
Похожие объявления
Продаж будинку. Гданцівка. Вулиця Бориса Мозолевського. Кривой Рог 20
  • 6 комнатная
  • 95 м2
  • 8 соток
58 000 $ Без комиссии
Гданцівка. Вулиця Бориса Мозолевського ( Чередниченко . Гарне місце, 300 метрів АТБ, магазини, зупинка громадського транспорту, "золотий кубок ", 500 метрів парк " Гданцівський ". Продаж цегляного будинку, 95 метрів квадратних + мансарда + літня кухня з переходом. Будинок 1980-х років побудови. В будинку 8 кімнат, 3 окремих і 3 прохідних, 2 кухні і два санвузли. Гарний жилий стан, металопластикові вікна і труби, зроблена косметика ( багато що з меблів і техніки залишится новим власникам). Будинок використовували на дві родини ( брат і сестра), але зараз продаж цілого будинку ( обидві половинки). Дуже зручно для великої родини, або для спільного проживання, наприклад батьки і діти. Гарна широка ділянка 8 сотих. На ділянці присутній гараж, технічні споруди. Частково новий забор. Лічильники на все. Без боргів і проблем. Телефонуйте розповім детальніше. Ваш рієлтор Роман.
Кривой Рог, Центрально-Городской
БЕЗ % два нові будинки, 120м2 та 260м2 Проців, Бориспільський район, 30 хв до Києва, сосновий ліс Борисполь 14
  • Пятикомнатная
  • 380 м2
  • 20 соток
450 000 $ Без комиссии
БЕЗ % продам 2 нові будинки Проців, Бориспільський р-н, ремонт, 30 хв на авто м. Осокорки Київська область Бориспільський район Проців село Продам 2 нові будинки загальною площею 380 м2, на ділянці 20 соток, центральна частина Процева. Будинки 2017 року будівництва. Побудовані з пустотного блоку виробництва Columbia (товщина стін 40см) Утеплені базальтовою мінеральною ватою (товщина 100 мм) Монолітний залізобетонний (м400) фундамент (товщиною 500 мм, глибиною 1300 мм) на монолітній подушці. Покрівля будинків виконана з багатошарової бітумної черепиці. Опалення - електро та газовий котли. Електро потужність 15 кВт (три фази), мідна електропроводка. Водопостачання- скважина 70м, питна вода - осмос, побутова-три фільтри грубої очистки Каналізація- 2 септика по 3.5 м3 - 1ий будинок площею 120м2, 2 спальні, вітальня, велика кухня, санвузол з римською банею та сауною, тераса, барбекю. Повністю мебльований, обладнаний побутовою технікою (холодильник, пральна машина, посудомийна машина і т.д.), підігрів підлоги, сигналізація. - 2ий будинок площею 260м2, після будівельників, критий покрівлею, засклений, заведені та розведені комунікації по будинку, готовий до виконання ремонтних робіт. -земельна ділянка 20 соток, озеленена (95 туй та фруктові дерева), облаштована ліхтарями, виконано ландшафтний дизайн, на території є басейн (викладений з каміння), газонна трава, ділянка обладнана автополивом, сигналізацією, цілодобовим відео спостереженням. На території розташований гараж на 2 автомобіля та гостьова стоянка на 3 авто. Будинки розташовані у зразковому населеному пункті Проців, з власною чудовою атмосферою та інфраструктурою: новий дитячий садок «Лісова казка», будується школа, функціонує відділення «Нової Пошти», аптека, ресторан «Околиця», Заміський клуб, конюшня Бутенко, все це знаходиться в оточенні чистого та дорослого соснового лісу!!! (без %)
Борисполь
Терміновий продаж будинку на березі р. Десни в с. Пухівка, Бровари Пуховка 20
  • Пятикомнатная
  • 176 м2
  • 14 соток
218 000 $ Без комиссии
Терміновий продаж 2-о поверхового просторого і якісно-збудованого за індивідуальним архітектурним проектом, будинку площею 176 м² в с. Пухівка в Броварському р-ні. Будинок розташований в престижному закритому товаристві з охороною. Будинок побудований з червоної цегли, утеплений мінеральною ватою ватой ROCKWOLL 80 мм, фасад з цегли Фагот, кровля - фінська бітумна черепиця "katepal", двокамерні вікна "Века" з автоматичними захисними ролетами кольору золотий дуб, декоративна штукатурка, іспанская плитка, дуб паркет-дошка, імпортна сантехніка. Ділянка розміром 14 соток має правильну прямокутну форму, за проектом розміщено індивідуальний житловий 2-о поверховий будинок та гараж на 2 авто (53м2). Планування будинку забезпечує комфортне проживання великої родини. Планування: 5 спален, кухня, вітальня, 2 с/в. Якісний ремонт, дерев'яні меблі, кухонний гарнітур з натурального дубу. Під’їзд до будинка асфальтованою освітленою дорогою, глухий кут вулиці з виходом на піщаний пляж р. Десна, поруч ліс, озера, ресторан, магазин, зупинка громадського транспорту та бази відпочинку. Живописне, красиве місце, чисте повітря, для постійного проживання, все навколо забудовано. Інженерія та комунікації: Електрика — Виділена лінія електроенергії на 20кВт. • Газовый двоконтурний котел • Електрокотел • Діючий камін • Бойлер • Система очищення води • Кондиціонери • Підключено інтернет • Автоматичні ролети на вікнах. • Скважина • Каналізація — два переливні дренажні септики • Автополив • Сигналізація та відеоспостереження • Автоматичні ворота. Будинок продається з меблями та технікою. 218000 у. о. Можливий торг!
Пуховка
офлайн
Сергій Олександрович
На сайте с 16 апреля 2020