Без комиссии
1  / 6
Білогородка 3к Таунхаус 75квм біля Сільпо - фото 1
Білогородка 3к Таунхаус 75квм біля Сільпо - фото 2
Білогородка 3к Таунхаус 75квм біля Сільпо - фото 3
Білогородка 3к Таунхаус 75квм біля Сільпо - фото 4
Білогородка 3к Таунхаус 75квм біля Сільпо - фото 5
Білогородка 3к Таунхаус 75квм біля Сільпо - фото 6

Білогородка 3к Таунхаус 75квм біля Сільпо

Белогородка

Пожаловаться
53 000 $
707 $ за м²
0 просмотров объявления | 0 сегодня
Добавлено: 24 февраля 2026, ID: 4782967
Характеристики
  • Без комиссии Да 
  • Тип дома Таунхаус 
  • Комнат
  • Общая площадь 75 м2
  • Этажность
  • Площадь участка 1.5 сот.
  • Комфорт Автоматические ворота 
  • Коммуникации Скважина, Электричество, Канализация септик, Вывоз отходов, Асфальтированная дорога 
Описание
Продаж 3 черги Таунхаусів у класній локації напроти Сільпо, біля ЖК Амстердам. Поряд ЖК Білий Шоколад, Школа, центр Білогородки, зупинка маршрутки, мед Амбулаторія і зручний виїзд на Житомирську трасу.
Кожен таунхаус має 2 паркомісця і задній вихід у власний дворик.
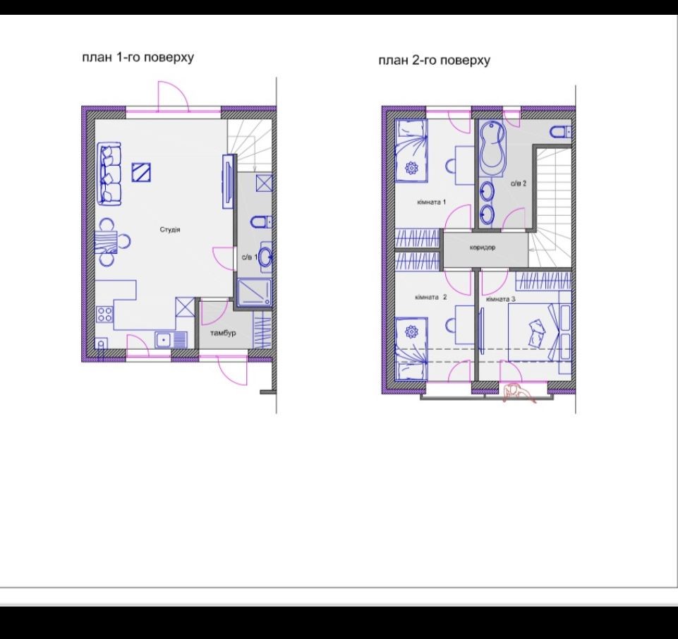
Планування:
Перший поверх:
Вхідна зона, кухня студія з виходом на терасу, санвузол
Другий поверх:
3 кімнати , санвузол.
Ціна з ремонтом 99000$
Продаж без комісії %
Відділ продажу
05******36
Обратная связь
Анна
офлайн
Похожие объявления
ПРОСТОРЕ домоволодіння з ВЕЛИЧЕЗНОЮ ділянкою 20сот Черкассы 5
  • Однокомнатная
  • 20 м2
  • 20 соток
32 000 $ Без комиссии
Готові продавати за безготівковими розрахунками по Державним програмам Продаж домоволодіння на 20 сотках з будинком та великим потенціалом для будівництва в м.Корсунь-Шевченківський Пропонується до продажу просторе домоволодіння з земельною ділянкою 20 соток у затишному та зеленому місці. На ділянці розташований цегляний будинок у житловому стані, а також гараж і господарські споруди. Будинок має зручне планування та підійде як для проживання, так і для оновлення під сучасні потреби. На території є власна криниця — постійне джерело води. Ділянка рівна, доглянута, з плодовими молодими деревами. Просторий двір дозволяє облаштувати зону відпочинку, сад. Зручний заїзд, тиха вулиця, комфортне місце для життя. Переваги: -ділянка 20 соток -цегляний будинок -гараж та господарські споруди -фундамент під 2-поверховий будинок + проєкт -закуплені Вагомою перевагою є вже підготовлена база для нового будівництва: є фундамент під двоповерховий будинок та готовий проєкт — ви можете одразу розпочати реалізацію без зайвих витрат часу. будівельні блоки (за окрему плату) -власна криниця -кам’яний величезний погріб (може слугувати укриттям) -власний сад -тиха, спокійна локація Телефонуйте для детальної інформації та перегляду 0974619839, 0935597615
Черкассы
Будинок в Карпатах село Яблуниці Буковель Яремче 20
  • Трехкомнатная
  • 200 м2
  • 5 соток
137 000 $ Без комиссии
Пропонується до продажу новий двоповерховий котедж у мальовничому селі Яблуниця, одному з найпопулярніших туристичних напрямків Карпат. Локація — ідеальне поєднання природи, тиші та зручної інфраструктури. Розташування: біля центральної траси Івано-Франківськ – Рахів поруч із межею Закарпатської області 7 км до Буковелю 500 м до витягу «Коза» панорамні види на Говерлу, Яблуницький перевал, ліси та гірські річки З вікон будинку відкриваються захопливі карпатські пейзажі — місце, де справді панує тиша, спокій і відчуття безпеки. Про будинок: збудований у 2023 році, практично новий дерев’яна конструкція стіни — сендвіч-панелі з утепленням (пінопласт + мінеральна вата + гідроізоляція) зовнішнє облицювання — металевий сайдинг будинок дуже теплий та енергоефективний Котедж складається з двох автономних половин, кожна з окремим входом: перша половина — повністю готова до проживання: виконаний ремонт, меблі, техніка, все необхідне друга половина — на стадії внутрішніх робіт (усі матеріали в наявності) Після завершення ремонту вартість об’єкта суттєво зросте — вигідна можливість купівлі вже зараз. Комунікації та зручності: електричне опалення додатково — газовий обігрівач генератор повністю придатний для цілорічного проживання Земельна ділянка: 5 соток, приватизована, документи оформлені на території: альтанка мангал велика господарська споруда зручний заїзд місце для паркування кількох автомобілів Формат використання: Котедж ідеально підходить: для комфортного проживання 1–4 родин як готовий інвестиційний проєкт — міні-готель або котедж для туристів із стабільним доходом Інфраструктура поруч: продуктовий магазин квітковий магазин сауна на дровах кафе авто мийка
Яремче
Будинок у Ворохті 83 м² Яремче 16
  • Трехкомнатная
  • 83 м2
  • 2 сотки
85 000 $ Без комиссии
Пропонуємо до купівлі житловий будинок, розташований у Ворохті. Будинок знаходиться на земельній ділянці площею 2 сотки та має два паркомісця. Із будинку відкривається чудова панорама на навколишню місцевість. Збудований у 2023 році на бетонному фундаменті, з підвальним (цокольним) приміщенням. Будинок повністю укомплектований меблями та готовий до заселення. В наявності — три спальні кімнати, кухня та два суміжні санвузли: на першому і другому поверхах. Доїзд до будинку від центру Ворохти легкий і зручний у будь-яку пору року на легковому автомобілі. Відстань — 1,8 км. Якщо вас зацікавив цей будинок — телефонуйте за номером, вказаним на сайті, де ви переглядаєте оголошення.
Яремче
офлайн
Анна
На сайте с 16 апреля 2020