Продажа квартир в Черниговской области

Продам 1- но кімнатну Чернігв, ЦУМ, вул. Мстиславська (єВідновлення) Чернигов 20
  • Однокомнатная
  • 40 м2
  • 1 / 9 эт.
28 000 $
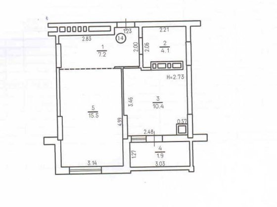
єВідновлення І світло тут не вимикають НІКОЛИ!!! Продам 1- но кімнатну квартиру в Чернігові по вул. Мстиславська, 56. Загальна площа 40м2, житлдова -18м2, кухня- 9м2. Розташована на 1- му поверсі, 9- ти поверхового панельного будинку. Вікна частково замінені, є великий погріб під балконом. Санвузол окремий, встановлені лічильники на світло, воду та загальний на опалення. Є можливість зробити велику гардеропну в коридорі. Меблі залишаються частково в квартирі. Будинок знаходиться біля 19 школи, поруч ЦУМ, садочки, поліклініка та лікарня. Зателефонуй, та запишись на перегляд.
Чернигов
Продам 1-но кімнатну квартиру. Чернигов 8
  • Однокомнатная
  • 32 м2
  • 5 / 5 эт.
25 000 $
Продам 1-но кімнатну квартиру 5/5 кирпич 32/17,1/6,6 зроблений косметичний ремонт, лічильники вода, газ, нова колонка, вікна, двері дерево, для невеликої родини ідеальний варіант для проживання. Ввічливі сусіди, гарний чистий під'їзд. Розвинута інфраструктура зупинки громадського транспорту пару хвилин від будинку, магазини, аптека, банки, ринок нива все поруч. За більш детальною інф. звертайтесь по телефону. Квартира вільна, документи готові до продажу.
Чернигов
Продам 1-но кімнатну, р-н Козацької Чернигов 7
  • Однокомнатная
  • 32 м2
  • 2 / 5 эт.
20 500 $
Вул. Козацька, 22 Квартира під ремонт. Колонка Лічильники на газ та воду. Гарна інфраструктура - школа, дитсадок, магазини, зупинки транспорта. Вільна.
Чернигов
Продам 1 но  комн 35 м2 Чернигов 10
  • Однокомнатная
  • 35 м2
  • 4 / 4 эт.
17 000 $
Квартира не угловая. переделанная с общежития. Старобелоусская.49. Без балкона.состояние жилое.
Чернигов
Продам 1-но комн. 54м2 с Автономным в ЖК Лесной, Яловщина, Голливуд Чернигов 16
  • Однокомнатная
  • 53.8 м2
  • 4 / 10 эт.
39 999 $
Продажа 1-но комнатной квартиры по ул.Лесная 42-Б, "ЖК" Лесной, р-н Hollywood. Общая площадь 53.8м2, большая комната комната 21.5м2, просторная кухня 14.2м2 с выходом на лоджию, санузел совмещен, есть место под гардеробную. Находится на 4-ом этаже 10-ти этажного нового, кирпичного, утепленного дома. Состояние после строителей с отделкой. По всей квартире разведена электрика, установлены радиаторы, сделана стяжка полов, штукатурка стен. Автономное отопление, установлен двухконтурный газовый котел, который обеспечит вас горячей водой и отоплением в любое время года. На все коммуникации установлены счетчики. В доме есть укрытие с удобствами. На территории жилого комплекса есть большая детская площадка. Экологически чистый район – рядом лес и река, свежий воздух. В пешей доступности ТРЦ "Hollywood.", 3 минуты на машине до Центра города. Есть и другие варианты квартир : 45м2, 54м2, 58м2, 70м2 Звоните отвечу на все ваши вопросы и организую показ.
Чернигов
Продам 1-но комн. квартиру по ул. Савчука, р-н Горсад Чернигов 12
  • Однокомнатная
  • 34.4 м2
  • 7 / 9 эт.
23 500 $
Продам 1-но комнатную квартиру по ул. Савчука, 3, р-н Горсад. Находится на 7-ом этаже 9-ти этажного дома, не угловая. Общая площадь 34.4м2, комната 17.4м2 с выходом на балкон, кухня 8.4м2, санузел раздельный. Квартира в хорошем, жилом состоянии. Окна заменены на металлопластиковые (REHAU). На все коммуникации установлены счетчики. Отличное местоположение все необходимое для жизни в шаговой доступности: золотой пляж, горсад, школа, садик, супермаркет и так далее. Документы готовы к продажи! Звоните, с удовольствием покажем и ответим на все ваши вопросы.
Чернигов
Продам 1-но комн. квартиру, р-н Боевая, Сертификат Є- Відновлення Чернигов 11
  • Однокомнатная
  • 37.6 м2
  • 2 / 5 эт.
24 000 $
Эксклюзивное предложение !!! Продам 1-но комнатную квартиру по ул. Мстиславская 169, р-н Боевая. Находится на 2-ом этаже 5-ти этажного, кирпичного дома, не угловая. Общая площадь 37.6 м2, большая комната 19м2, кухня 7.7м2, санузел смежный, есть кладовая. Состояние квартиры под Ваш ремонт. Окна заменены на металлопластиковые. Установлены счетчики на горячую и холодную воду. Хорошее месторасположение, всё необходимое для жизни в шаговой доступности, экологически чистый район – рядом лес и река, свежий воздух, в пешей доступности ТРЦ "Hollywood". Рассмотрим оформление под сертификат Є-Відновлення. Ключи на руках. Звоните, с удовольствием покажем и ответим на все ваши вопросы.
Чернигов
Продам 1-но комн. с Мебелью и Техникой, р-н Горсад, Сертификат Чернигов 20
  • Однокомнатная
  • 47 м2
  • 14 / 14 эт.
46 990 $
Продам 1-но комнатную квартиру по ул. Шевченко, 44 напротив Горсада. Квартира расположена на 14-ом этаже монолитного дома с прекрасным видом на город. Общая площадь 47 м2. Установлен свой счетчик учета тепла ( что позволяет экономить в отопительный сезон). Дом повышенной комфортности: свой закрытый двор, видеонаблюдения, консьерж 24/7, два лифта ( один грузовой ). Квартира продается с мебелью и техникой. Отличный вариант под жилье или сдачу в аренду с пассивным доходом. Рассмотрим оформление под все программы: Сертификат Є-відновлення, постановление 280 и 714. Документы готовы к продаже! Ключи на руках. Звоните, с удовольствием покажем и ответим на все ваши вопросы.
Чернигов
Продам 1-но комн. в Новом доме,  Пр-кт Мира Чернигов 11
  • Однокомнатная
  • 42.6 м2
  • 3 / 17 эт.
24 000 $
Продам 1-но комнатную квартиру в новом доме по ул. Пр-кт Мира, 277-а. Находится на 3-м этаже 17-ти этажного монолитного дома 2020 года постройки. Общая площадь 42,6 м2, большая комната 20.3м2, кухня 9м2 c выходом на балкон, санузел раздельный. Двор закрытого типа, видеонаблюдение, парковочные места. В доме своя котельная ( в каждой квартире установлен свой счетчик тепла, что позволяет экономить в отопительный сезон). Звоните, с удовольствием покажем и ответим на все ваши вопросы.
Чернигов
Продам 1-но комнатную квартиру в центре Чернигов 8
  • Однокомнатная
  • 29 м2
  • 3 / 9 эт.
23 000 $
Продам однокомнатную квартиру на ул. Национальной гвардии ( район гост. Градецкой ) на 3 этаже 9 этажного дома. Общая площадь квартиры 29 метров , комната 14,5 , кухня 6,5 . М/п окна , новая входная дверь. тел. 07******77
Чернигов
Продам 1-но комнатную квартиру в центре р-н Вала Чернигов 11
  • Однокомнатная
  • 34.5 м2
  • 2 / 5 эт.
32 000 $
Продам 1 -но комн. квартиру на ул. Преображенской в районе Вала на втором этаже пятиэтажного дома ( крыша шаровая). Общая площадь 34.5 м.кв., жилая площадь 20 м.кв.,кухня 6.5 . Квартира в отличном жилом состоянии м/п окна, газовая колонка, встроенная кухня. Детальная информация по телефону 07******77.
Чернигов
Продам 1-о кім.кв-ру у новому будинку   на Стрілецькій набережній! Чернигов 6
  • Однокомнатная
  • 52 м2
  • 8 / 10 эт.
51 500 $
Продам велику 1 -о кімнатну квартиру з красивим видом з вікон на річку стрижень !!! Під Ваш дизайнерський ремонт! Новий сучасний,цегляний . Будинок побудований по технології термо-будинок, Мальовничий вид! Свіже повітря! На 8-му поверсі із 10 !!! Автономка! Заг.пл.52м2,кух.17м2,кім.21м2 і лоджія 1,8м2 Квартира знаходиться в середині будинку! Частково зроблений ремонт; -проведена електропроводка, - вирівняні стелі, - зроблена тепла підлога по всій квартирі. - стоїть 2-о контурний газовий котел! На все стоять лічильники! Біля будинку є дитячий майданчик та парковка ! В пішій доступності зупинка,магазини,кафе та річка Стрижень! Реальному покупцю Торг! Дзвоніть! Организуємо показ!
Чернигов
Продам 1к. 39м2, автономне опалення, НОВОБУДОВА Прилуки 7
  • Однокомнатная
  • 39.1 м2
  • 9 / 9 эт.
23 046 $ Без комиссии
1-кім.квартира площею 39.1 м.кв. на 9-ому поверсі. Будинок введено в експлуатацію. Здійсненно пуск всіх коммунікаційних систем. - автономне опалення. - енергозберігаючі технології будівництва. - дитячий майданчик Єдиний будинок в місті, що підлягає кредитуванню за програмою єОселя під 3%. тел.: 09******79 05******85 Чернігівська обл., м. Прилуки вул. Кустівська(Михайловская) 63/1
Прилуки
Продам 1к  компактної квартири  в сучасному житловому комплексі Чернигов 12
  • Однокомнатная
  • 41 м2
  • 3 / 10 эт.
30 945 $
Продам 1 кімнатної компактної квартири в сучасному житловому комплексі загальна площа 41м2 - ціна 1333000 -- 3 поверх , запропоную всі наявні * Всі види угод : сертифікат , іпотека , розтермінування (супровід на всіх етапах ) - Мальовниче місце біля річки , та лісу - Зона для прогулок та відпочинку , дитячий майданчик - Поруч ТРЦ з усім необхідним , парковка в квартирі : - Автономне опалення, 2 контурний газовий котел - чорнова штукатурка стін та заливка підлоги - розведена ел проводка , встановлені радіатори - якісні вхідні двері та вікна (балкон ) , ОСББ за деталями звертайтесь Мстиславська 18 АН Благострой 06******31 Олександр
Чернигов
Продам 1к кв  | 3 поверх | 40м² | Цегляний будинок | Ціна найнижча! Чернигов 9
  • Однокомнатная
  • 40 м2
  • 3 / 9 эт.
27 000 $ Без комиссии
Пропонуємо до вашої уваги простору 1-кімнатну квартиру площею 40 м² на 3 поверсі цегляного будинку за адресою вул. 1 Травня, 165 (р-н Голлівуд). Локація — безперечна перевага! Будинок розташований навпроти ТРЦ “Голлівуд”, поруч магазини, транспорт, парк — усе необхідне для комфортного життя. Квартира світла та затишна: • площа кухні 6м² • зручне планування; • суміжний санвузол; • кухня в гарному стані; • рівні стіни — можна легко оновити інтер’єр під себе; • підключений інтернет; • централізоване опалення. Ціна — найнижча на ринку! Ідеальний варіант для життя чи інвестиції з перспективою ремонту під власний смак.
Чернигов
Продам 1к кв на Масанах! Будинок зданий, є внутрішні роботи! Чернигов 14
  • Однокомнатная
  • 45 м2
  • 2 / 11 эт.
34 900 $
Продам простору 1к квартиру в найкрасивішому ЖК «Незалежність»! Будинок зданий, люди вже живуть. Квартира підходить під програму єОселя та єВідновлення! Загальна площа: 45 м2 Кухня: 13 м2 Кімната: 15 м2 Санвузол: роздільний Поверх: 2 з 11. Особливості квартири: - встановлений двуконтурний газовий котел ( тепло регулюєте самі ); - м/п панорамні вікна якісного виробника і на кухні, і в спальні ( наповнює світлом Ваш простір ); - якісні вхідні двері ( заміна не потрібна! ); - гарна зроблена стяжка підлоги ( машинна, вже шліфована, залишилось підложку і ламінат ); - чистова штукатурка стін; - радіатори на кухні та в кімнаті; - розведена мідна проводка; - лічильники на воду, світло, газ. Кімната і кухня правильної прямокутної форми, що дозволить Вам і простір зберегти, і розставити всі необхідні меблі і техніку. Вид з вікна на благоустрій будинку і дитячий майданчик ( для тих, хто любить, щоб було не так шумно ). Стильна та комфортна вхідна група, дзеркало, домофон, підʼїзд в світлих та приємних тонах, безшумний ліфт. Багатофункціональна прибудинкова територія: дитячий і спортивний майданчики, зона відпочинку для дорослих, підземний паркінг. Район - ТОП! Інфраструктура дуже розвинена: магазини, аптеки, банки, садочки, кафе, незабаром відкриття «Сільпо», транспортна розвʼязка - можна доїхати в будь-яку точку міста. Гарно підійде для сімейної пари, яка цінує комфорт, якість і красу! Не зволікайте, чекаю Вас на перегляд! Деталі за вказаним телефоном або ж звертайтеся за адресою вул. Мстиславська, 18.
Чернигов
Продам 1к кв на Масанах! Вдале планування! Будинок зданий! єОселя! Чернигов 15
  • Однокомнатная
  • 44 м2
  • 8 / 10 эт.
35 000 $
Продам 1к квартиру в найрозвиненішому районі міста - Масани! Розглядаємо продаж під єОселю, сертифікат єВідновлення і інші державні програми. Адреса: вул. Незалежності, 21 Секція: 10/7 ( здана ) Загальна площа: 44 м2 Кухня: 10 м2 Санвузол: суміжний Квартира вже із зробленими внутрішніми роботами: • встановлений двуконтурний газовий котел ( тепло регулюєте самі ); • м/п панорамні вікна якісного виробника ( наповнює світлом Ваш простір ); • металеві броньовані двері ( заміна не потрібна ); • радіатори в кімнаті та на кухні; • розведена мідна проводка; • машинна стяжка підлоги і штукатурка несучих стін; • лічильники на воду, світло, газ. Квартира тепла і це відчувається одразу, коли відкриваєш двері. Вдале планування дає можливість збільшити кімнати і зробити гардеробну. Стильна та комфортна вхідна група, світлий підʼїзд ( до речі, також обігрівається), ліфт. Гарний вид на місто і на ліс в будь-яку пору року! Район - ТОП! Інфраструктура дуже розвинена: магазини, аптеки, банки, спортзал, садочки, кафе, незабаром відкриття «Сільпо», транспортна розвʼязка - можна доїхати в будь-яку точку міста. В будинку люди масово роблять ремонти, на продаж квартир залишилось мало! Дзвоніть! Деталі та перегляд за вказаним телефоном або ж звертайтеся за адресою вул. Мстиславська, 18
Чернигов
Продам 1к кв в зданому будинку Масани Сіті! Чернигов 11
  • Однокомнатная
  • 42 м2
  • 5 / 10 эт.
34 000 $
Продам 1к кв з гарним плануванням на середньому поверсі на Масанах! Підходить під програму єОселя, єВідновлення! Загальна площа: 42 м2 Кухня: 18 м2 Санвузол: суміжний Поверх: 5 з 10 Сам будинок монолітний, має зовнішнє і внутрішнє утеплення. Опалення автономне! Також є сучасний безшумний ліфт. Особливості квартири: - встановлений двуконтурний газовий котел ( тепло регулюєте самі ); - м/п панорамні вікна якісного виробника ( наповнює світлом Ваш простір ); - металеві броньовані двері ( заміна не потрібна ); - лічильник на газ в квартирі, а на воду і світло - в коридорі; - розведена мідна проводка; - висота від підлоги до стелі 2,8 м - є можливість зробити натяжну стелю. Квартира світла і простора - все передбачено для Вашого комфорту! Будинок зданий, багато хто вже зробив ремонти і живуть! Гарний вид на приватний сектор в будь-яку пору року! Район - ТОП! Найрозвиненіший в нашому місті! Комерційна інфраструктура є на першому поверсі- спортзал, салон краси, стоматологія, кафе і ін. І в пішій доступності - магазини, аптеки, банки, садочки, пошта, кафе, незабаром відкриття «Сільпо», транспортна розвʼязка - можна доїхати в будь-яку точку міста Перегляди за домовленістю, деталі за вказаним телефоном або за адресою вул. Мстиславська, 18
Чернигов
Продам 1к кв з ремонтом в новобудові ЖК Північний Чернигов 16
  • Однокомнатная
  • 43 м2
  • 7 / 17 эт.
43 000 $
Продам 1 кімнатну квартиру з гарним ремонтом в новобудові! ЖК "Північний" Адреса: просп. Миру, 277 Поверх: 7/17 Площа: 43 м2 Санвузол: суміжний Вікна: панорамні Будинок зданий 2021 року, має закриту територію з системою відеоспостереження, заїздом через шлагбаум. Квартира затишна і простора, по ремонту все продумано до дрібниць. Світла спальня, правильної форми - обставлена меблями і при цьому зберігається простір. Кухня класична, облаштова такими меблями і технікою: кухонні шафи верхні та нижні, стіл, стільці, плита, електрична духовка, витяжка, мікрохвильова піч, холодильник. З кухні вихід на лоджію. Можна використовувати як для зберігання речей, так і для зони відпочинку. До речі, відкривається неймовірний вид з вікна! По всій квартирі точкове освітлення. Ремонт робили для себе, все якісно, на перегляді самі переконаєтесь. Документи готові до продажу, податків нема. Деталі за телефоном або по вул. Мстиславська, 18
Чернигов
Продам 1к квартиру ЦЕНТР, АВТОНОМКА Чернигов 8
  • Однокомнатная
  • 48 м2
  • 2 / 10 эт.
42 000 $ Без комиссии
Продається велика 1 кімнатна квартира з індивідуальним газовим опаленням в центрі міста. Квартира площею 48кв.м. З вдалим плануванням, можна зробити повноцінну 2 кімнатну, і на зручному 2 поверсі 10 поверхового, нового будинку. Будинок зданий та введений в експлуатацію, підключені всі комунікації, є надійне укриття. Ідеальне розташування: центр міста вул. Гонча, поряд школи, садочки, супермаркети, кавʼярні і все необхідне для комфортного життя, прекрасна транспортна розвʼязка. Бажаєш жити в комфортному районі, в зручній затишній квартирі. Тоді цей варіант саме для тебе) За детальнішою інформацією звертайтесь за телефоном вказаним в оголошенні
Чернигов
Перейти на страницу