1  / 1
Фасадный МАГАЗИН на перекрестке с доходом 1000 у.е. в месяц! - фото 1

Фасадный МАГАЗИН на перекрестке с доходом 1000 у.е. в месяц!

Одеса, Приморський

Поскаржитись
120 000 $
1 714 $ за м²
0 переглядів оголошення | 0 сьогодні
Додано: 14 січня 2026, ID: 4666267
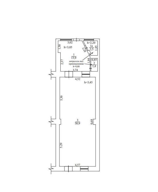
Характеристики
  • Расположение в торговом центре 
  • Общая площадь 70 м2
  • Этаж
  • Этажность
  • Ремонт Так 
  • Санвузол Так 
Опис
Новое фасадное помещение в оживленном месте на пешеходном переходе, рядом с арендатором все по 3. В помещении сделан качественный ремонт, заведены новые коммуникации, есть мощность 20 Квт. Работает сетевой стабильный арендатор! Пишите Таня 06******34 Вайбер
Зворотній зв’язок
ТАНЯ
офлайн
Схожі оголошення
Продаж комерційного приміщення за 500 дол за м.кв.! Луцьк 3
    465 $
    Продаж комерційного приміщення за 500 дол за м.кв.! Розташування: вул. Новочерчицька, 1. Зручна транспортна розв’язка та доїзд: ЦУМ – 10 хв, вул Ковельська – 5 хв, Київський майдан – 15 хв. Порт Сіті – 17 хв. Характеристики: - Площа – 214,7 кв.м. + підвал - Доступ 24/7 - Висота стелі: 250 см - 2 Санвузли - 2 Фасадні входи - Окремий вхід для погрузки/вигрузки товару з рампою - Можливість розміщення вивіски - Можливість поділу приміщення на частини Комунікації: 380V, водопостачання (лічильник), електроенергія (лічильник), пожежна та охоронна сигналізації, кондиціонер, відеоспостереження (3 камери), інтернет. менеджер об'єкту Ольга Синиця 095 805 1772
    Луцьк
    Продаж комерційного приміщення в ЖК "Kyiv Sky" Луцьк 2
      260 000 $
      Продаж комерційного приміщення в ЖК "Kyiv Sky" РОЗТАШУВАННЯ: м. Луцьк, вул. Рівненська, 4 ЖК "Kyiv Sky". Розвинена інфраструктура, поруч: аптека, магазин побутової хімії, продуктовий магазин, зупинки громадського транспорту, пошта. Активний автомобільний, пішохідний трафік. Зручна транспортна розв'язка. Фасадне приміщення. ?ХАРАКТЕРИСТИКИ: - площа: 29, 123 або 151 кв.м. - відкрите планування - 2-ий поверх - висота стелі: 330см. - цілодобовий доступ до приміщення - спільний вхід - свій санвузол - можливість розміщення рекламної вивіски з торця - парковка на більше 12 місць - великі вітрини ?КОМУНІКАЦІЇ: - електроенергія: лічильник - е-потужність 21кВт - автономне опалення - водопостачання: холодна-гаряча, (лічильник, каналізація) - природня вентиляція Вартість продажу - 260 000 дол. за 150 м.кв. (Без комісії для покупця) менеджер об'єкту Ольга Синиця 095 805 1772
      Луцьк
      Продаж комерційних площ поруч з ЖК "Яровиця"! Луцьк 7
        600 $
        Продаж комерційних площ поруч з ЖК "Яровиця"! Розташування: за 200 м. до ЖК Яровиця Адреса – м. Луцьк, вул. Івана Франка, 44в. Розвинена інфраструктура, поруч: продуктові магазини, заклади харчування, аптеки, РЦ "Промінь", Сільпо. Характеристики: - площа - 115,8 кв.м - 1-ий поверх, - цілодобовий доступ до приміщення, - кожне приміщення має окремий вхід, - санвузол, - парковка на 3-5 місць, - можливість розміщення реклами. Комунікації: - електроенергія: лічильник, - е-потужність 13кВт в кожному приміщенні, - автономне електричне опаленння, - водопостачання: холодна-гаряча, (лічильник, каналізація) - природня вентиляція, - інтернет, - охоронна сигналізація. Придбавши дане приміщення Ви отримаєте: 0 Можливість використання під різні види діяльності 0 Ліквідне приміщення в новобудові 0 Власне приміщення в центральній частині міста Вартість продажу - 600$/кв.м (без комісії для покупця) Менеджер об'єкту: Абрамович Іванна (050) 341 33 82
        Луцьк