1  / 8
Продам двухкомнатную квартиру в жк Гринвуд. Без ремонта - фото 1
Продам двухкомнатную квартиру в жк Гринвуд. Без ремонта - фото 2
Продам двухкомнатную квартиру в жк Гринвуд. Без ремонта - фото 3
Продам двухкомнатную квартиру в жк Гринвуд. Без ремонта - фото 4
Продам двухкомнатную квартиру в жк Гринвуд. Без ремонта - фото 5
Продам двухкомнатную квартиру в жк Гринвуд. Без ремонта - фото 6
Продам двухкомнатную квартиру в жк Гринвуд. Без ремонта - фото 7
Продам двухкомнатную квартиру в жк Гринвуд. Без ремонта - фото 8

Продам двухкомнатную квартиру в жк Гринвуд. Без ремонта

Одеса, Приморський

Поскаржитись
125 000 $
0 переглядів оголошення | 0 сьогодні
Додано: 3 квітня 2026, ID: 4902136
Характеристики
  • Без комісії Ні 
  • Кімнат
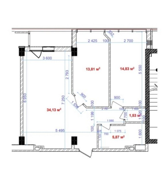
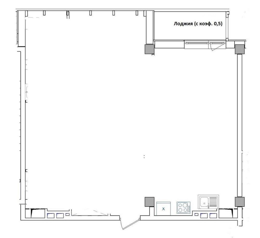
  • Загальна площа 77 м2
  • Площа кухні 20 м2
  • Поверх 12 
  • Поверховість 19 
  • Ремонт Після будівельників 
  • Планування Вільне планування 
  • Тип стін Монолітний 
  • Опалення Власна котельня 
  • Комфорт Видеонаблюдение, Охраняемая территория 
  • Коммуникации Центральный водопровод, Электричество, Центральная канализация, Канализация септик, Асфальтированная дорога 
Опис
Продажа 2-комнатной квартиры в ЖК «Гринвуд»

Предлагается просторная квартира площадью 77 м² на 12 этаже в престижном жилом комплексе «Гринвуд».

Из окон открывается красивый вид на море, вся сторона квартиры — видовая, есть балкон, где можно наслаждаться свежим морским воздухом и закатами.

Квартира без ремонта — чистый белый лист, идеальное пространство для реализации вашего собственного дизайнерского проекта и создания дома мечты.
Стоимость максимально приятная. Продажа срочная.

ЖК «Гринвуд» — один из самых престижных комплексов у моря.
Рядом Ботанический сад, море и лучшие прогулочные зоны города. Район тихий, зелёный и статусный — место, которое выбирают люди, ценящие комфорт, природу и высокий уровень жизни.

Напишите в личные сообщения, чтобы узнать детали и договориться о просмотре
Зворотній зв’язок
Лазаренко Татьяна
офлайн
Схожі оголошення
Продаж 2х кімнатної квартири на Ювілейній (вул.Співдружності) Кривий Ріг 9
  • Двокімнатна
  • 52 м2
  • 1 / 5 пов.
15 500 $
Пропонуємо вашій увазі 2х кімнатну квартиру розташовану на 1му поверсі 5ти поверхового будинку, по вул. Співдружності ( Ювілейна). Загальна площа: 52 кв.м, площа кухні 9 кв.м, в квартирі роздільне планування. Встановлено металопластикові вікна, є лоджия – дерев’яне засклення. В квартирі натяжна стеля, санвузол роздільний – встановлено бойлер. Квартира продається пуста, без меблів. Будинок має заасфальтовану, доглянуту територію, є дитячий майданчик, ОСББ. Інфраструктура дуже розвинута: є школи, дитячі садочки, в кроковій доступності ринок Ювілейний та ринок 173 кварталу, є АТБ, Варус, кав’ярні. Якщо вас зацікавила наша пропозиція – телефонуйте!
Кривий Ріг, Саксаганський
Продам 1к квартиру бульвар Рубіновий,7 Житловий стан Дніпро 18
  • Однокімнатна
  • 37 м2
  • 4 / 1 пов.
30 000 $
Продам 1к квартиру бульвар Рубіновий,7 Квартира в житловому стані. Площа 37/19/7,3 м2, кутова. Поверх 4/14. Вікна м/п, бойлер, електроплита, сан вузол суміжний. Хороша транспортна розв'язка. Реальним покупцям Торг!
Дніпро, Новокодакський
Продам 2к квартиру пр.Олександра Поля, 92а Житловий стан Дніпро 16
  • Двокімнатна
  • 43 м2
  • 3 / 5 пов.
20 000 $
Продам 2к квартиру по проспекту Олександра Поля, 92а Квартира в житловому стані, 43/29/5,5 м2, кімнати прохідні, санвузол суміжний, газова колонка. Поверх 3/5, будинок цегляний. Балкон відремонтований, засклений м/п вікнами. Лічильники на світло, воду, газ. Хороша транспортна розв'язка.
Дніпро, Центральний
офлайн
Лазаренко Татьяна
На сайті з 16 квітня 2020