1  / 6
Продаються сучасні таунхауси у Ворзелі - фото 1
Продаються сучасні таунхауси у Ворзелі - фото 2
Продаються сучасні таунхауси у Ворзелі - фото 3
Продаються сучасні таунхауси у Ворзелі - фото 4
Продаються сучасні таунхауси у Ворзелі - фото 5
Продаються сучасні таунхауси у Ворзелі - фото 6

Продаються сучасні таунхауси у Ворзелі

Ворзель

Поскаржитись
68 000 $
0 переглядів оголошення | 0 сьогодні
Додано: 24 лютого 2026, ID: 4781004
Характеристики
  • Без комісії Так 
  • Тип будинку Таунхаус 
  • Кімнат
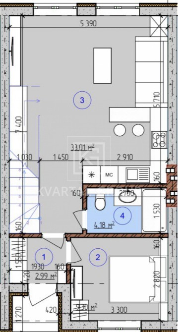
  • Загальна площа 98 м2
  • Поверховість
  • Площа ділянки 1.9 сот.
  • Ремонт Після будівельників 
  • Коммуникации Газ, Центральный водопровод, Электричество, Центральная канализация 
Опис
#1783
Пропонується сучасний таунхаус у затишному районі серед природи. Зручна транспортна розв’язка дозволяє швидко дістатися до Києва та інших напрямків.
Переваги та характеристики:
Простора земельна ділянка для відпочинку та затишних вечорів
Всі центральні комунікації
Вулиця вже заселена, доброзичливі сусіди
Будинок на стадії будівництва — можливість облаштувати все під свої потреби
В пішій доступності магазини, школи та інфраструктура
Локація:
Тихий і екологічно чистий район
Близько ліс, озера та місця для прогулянок
Зручний виїзд до Києва
Зворотній зв’язок
Анна
офлайн
Схожі оголошення
Продам трехэтажный Дом в Корабельном (р-н Жукова) Миколаїв 20
  • 6 комнатная
  • 240 м2
  • 2.5 сотки
70 000 $
В продаже половина капитального трехэтажного Дома с отдельным входом и кадастровым номером. Стены, пол и потолки выровнены и готовы под покраску. В доме имеется большой гараж в котором ворота открываются автоматически с пульта. С гаража вход в большой сухой подвал в котором также все стены выровнены под покраску. На первом этаже по проекту одна большая комната, кухня и все удобства. На втором этаже две комнаты. На третьем этаже расположены три комнаты. Дом утеплен по периметру. Толщина стен 700мм. Все окна пяти камерные металлопласт. Программируемый двухконтурный газовый котел. Дом расположен в тихом месте недалеко от пр. Богоявленского. В шаговой доступности речка, магазины, остановка и т.д. Приятным бонусом в нынешних реалиях резервуар с бесплатной подвозной питьевой водой. Приходите на просмотр!
Миколаїв, Корабельний
Продам Дом в Корабельном районе (р-н Балабановка) Миколаїв 12
  • Трикімнатна
  • 88 м2
  • 10 соток
31 000 $
В продаже дом в обычном жилом состоянии со всеми удобствами Новый ремонт в ванной и санузле Земля приватизированная На территории есть летняя кухня, хозпостройки и погреб Рядом остановка общественного транспорта Приглашаю к просмотру, звоните!
Миколаїв, Корабельний, Балабановка
Продам Дом в Корабельном районе (р-н Балабановка) Миколаїв 18
  • Трикімнатна
  • 60.1 м2
  • 10 соток
42 500 $
Возможна продажа по программам В доме сделан абсолютно новый ремонт. Стены, пол и потолок сбивались под "0" Абсолютно везде новая проводка и трубы Есть два котла: один АГВ-1 и электрический Подогрев воды - бойлер Все удобства в доме, санузел совмещен Окна - металлопласт При продаже остается встроенная кухня На территории также есть хозпостройки, летняя кухня и небольшой огород Земля приватизированная Тихий и спокойный район где прилетов не было По соседней улице ходит маршрутка Приглашаю к просмотру, Звоните!
Миколаїв, Корабельний, Балабановка
офлайн
Анна
На сайті з 16 квітня 2020