1  / 3
Оренда кафе, Преображенська, 72,4 кв. м - фото 1
Оренда кафе, Преображенська, 72,4 кв. м - фото 2
Оренда кафе, Преображенська, 72,4 кв. м - фото 3

Оренда кафе, Преображенська, 72,4 кв. м

Одеса, Приморський

Поскаржитись
100 грн.
1 грн. за м²
0 переглядів оголошення | 0 сьогодні
Додано: 8 березня 2026, ID: 4832181
Характеристики
  • Расположение в административном здании 
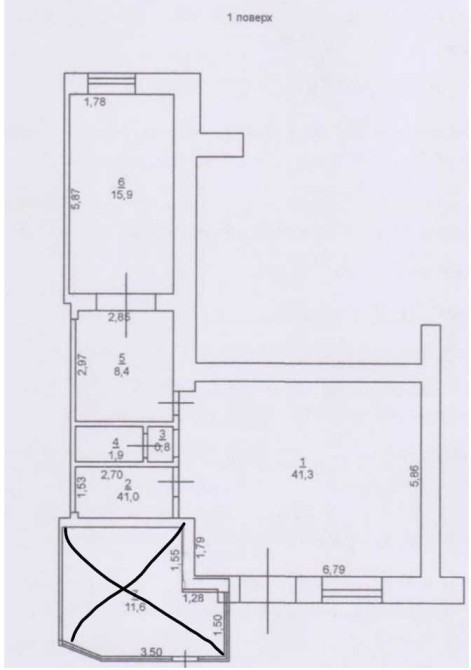
  • Общая площадь 72.4 м2
  • Этаж
  • Так 
  • Коммуникации Центральный водопровод, Центральная канализация 
Опис
Здається в оренду приміщення кафе — 72,4 кв. м.
Адреса: вул. Преображенська, 74/78, між Базарною та Великою Арнаутською.
Приміщення від власника. Ціна за телефоном -06*********12
-Зручне розташування у центрі міста
-Просторе та світле приміщення
-Хороші умови для ведення бізнесу
-Ідеально підходить для кафе, кав’ярні чи закладу харчування
Зворотній зв’язок
Олександр Львович
офлайн
Схожі оголошення
Оренда офісу в центрі (ПРИЗМА) Дніпро 9
    8 $
    Оренда офісу в центрі (ПРИЗМА) Свіжий ремонт, можем поставити меблі. 2 великих кімнати, серверна, кухня свої су, балкон і тд. Представницький офіс, Кабінетна система з перестінками (можна прибрати) 105 м2 8 долл м2 (гарний торг на місці) Руслан 050 63 49 895 Коммісія АН 50% ‼️Дзвоніть, відповідати на комети не має часу.‼️
    Дніпро
    Оренда Склада\ангара\виробництва на 2 поверсі (вантажний ліфт на 3 тони) Дніпро 10
      40 грн.
      Оренда Склада\ангара\виробництва на 2 поверсі (вантажний ліфт на 3 тони) Приміщення від 20-700 м2 під ваш бізнес; Висота стелі 4,55 м; Рампи і підїзні шляхи; Багато місця під вантажні авто; 600 кВт Електрики; Вантажний ліфт на 3 Т; Каналізація і подача води; ціна на час війни 40 грн\м2, після перемоги 60 Коммунальні окремо 050 63 49 895, телефонуйте Комісія АН 100%
      Дніпро
      Оренда маленького приміщення в Центрі. Окремий вхід Дніпро 8
        76 $
        Оренда маленького приміщення в Центрі. Окремий вхід Приміщення на червоній лінії, з окремим входом в ТЦ "Новий Центр" супер трафік. Місце під вивіску. електрика 10 квт. Ідеально під ломбард\обмін валют. 6 м2 76 долл\м2+електрика по лічильнику. 050 63 49 895, телефонуйте Комісія АН 100%
        Дніпро
        офлайн
        Олександр Львович
        На сайті з 16 квітня 2020