Аренда домов в Ромнах

Приміщення під оренду Ромны 5
    23 000 грн.
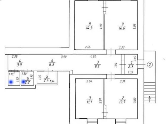
    Пропонуємо в оренду частину будинку комерційного призначення з окремим входом та парковкою, щойно після ремонту. В склад входять 4 приміщення (11, 13 та 14.5, 17 кв.м.). Довгий коридор, який можна за необхідності перегородити і використовувати як ще одне приміщення. Два окремі сан.вузли, комірка (2.5 кв.м.) Загальна площа 84 м2. Можлива оренда як усіх приміщень, так і по 2 кімнати. Ціна за оренду 2 кімнат (+ сан вузол) - 13000 грн Ціна за оренду всіх 4 кімнат - 23000 грн
    Ромны

    Цены на долгосрочную аренду домов в Ромнах

    Как снять частный дом в Ромнах дешево

    Как сдать дом в Ромнах быстро