1  / 5
Заселений будинок! Однокімнатна в Бучі ! + штукатурка - фото 1
Заселений будинок! Однокімнатна в Бучі ! + штукатурка - фото 2
Заселений будинок! Однокімнатна в Бучі ! + штукатурка - фото 3
Заселений будинок! Однокімнатна в Бучі ! + штукатурка - фото 4
Заселений будинок! Однокімнатна в Бучі ! + штукатурка - фото 5

Заселений будинок! Однокімнатна в Бучі ! + штукатурка

Буча

Поскаржитись
34 000 $
0 переглядів оголошення | 0 сьогодні
Додано: 31 березня 2026, ID: 4886100
Характеристики
  • Без комісії Ні 
  • Кімнат
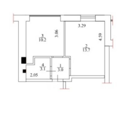
  • Загальна площа 30 м2
  • Площа кухні 11 м2
  • Поверх
  • Поверховість 10 
  • Планування Роздільна 
  • Комфорт Панорамные окна, Видеонаблюдение, Гостевой паркинг, Лифт, Грузовой лифт 
  • Коммуникации Газ, Центральный водопровод, Электричество, Центральная канализация, Вывоз отходов, Асфальтированная дорога 
Опис
Пропонується до продажу світла та компактна 1-кімнатна квартира в сучасному житловому комплексі ЖК Іділіка. Квартира розташована на комфортному 8 поверсі, що забезпечує гарний вигляд з вікон та багато природного світла.

Площа — 30 м², зручне планування для комфортного проживання або інвестиції під оренду.
Виконана гіпсова штукатурка стін, що значно спрощує подальший ремонт.
Встановлено індивідуальне газове опалення, що дозволяє самостійно регулювати температуру та економити на комунальних платежах.

ЖК Іділіка — сучасний комплекс із затишною територією, дитячими майданчиками та розвиненою інфраструктурою поруч.

Ідеальний варіант як для власного проживання, так і для вигідної інвестиції.

Телефонуйте для детальної інформації та перегляду!
Зворотній зв’язок
Єлизавета
офлайн
Схожі оголошення
Продам 2хком Альтаир Одеса 5
  • Двокімнатна
  • 68 м2
  • 16 / 24 пов.
90 000 $
Продаётся 2-комнатная квартира в ЖК «Альтаир 1» Цена 90000уе тел 0933464401 - Площадь 63,2 м - Кухня 14 м - Две отдельные комнаты правильной формы - 16 этаж из 25 Красивая квартира,ремонт,мебель и техника. Хороший комплекс. Звоните
Одеса, Київський
Продам 4хком Левитана Одеса 11
  • Чотирикімнатна
  • 85 м2
  • 4 / 9 пов.
60 000 $
Продам 4-кімнатну квартиру 60 000 $ | 4/9 пов. | 85 м² тел 0933464401 Київський район, Таїрова, Левітана вул., 77, дом с газом! -Кирпичный дом +-средний этаж -Правильная планировка -Раздельные комнаты -Лоджия + балкон (уже застеклены) -квартира под ремонт.
Одеса, Київський
Продам 2хком Одеса 8
  • Двокімнатна
  • 70 м2
  • 11 / 20 пов.
122 000 $
Продам 2 комнатную квартиру ЖК 2 Жемчужина (Аркадия) 122 000 $ тел 0933464401 - 11/20 этаж - площадь 70 м2 - спальня - кухня-гостиная - 35 м2 - смежный санузел - отдельная гардеробная комната - терраса - выполнен качественный ремонт с использованием дорогих материалов - оборудована дорогой мебелью и техникой - на лестничной площадке две оборудованные кладовые с морозильной камерой - закрытая территория под видео наблюдением - море 5 мин пешком
Одеса, Приморський
офлайн
Єлизавета
На сайті з 16 квітня 2020