1  / 2
В.Змиенка, ЖК "Варшавский 3", дом 10.7, тип 2С3 - фото 1
В.Змиенка, ЖК "Варшавский 3", дом 10.7, тип 2С3 - фото 2

В.Змиенка, ЖК "Варшавский 3", дом 10.7, тип 2С3

Київ, Подільський

Поскаржитись
82 500 $
0 переглядів оголошення | 0 сьогодні
Додано: 3 квітня 2026, ID: 4902552
Характеристики
  • Без комісії Так 
  • Кімнат
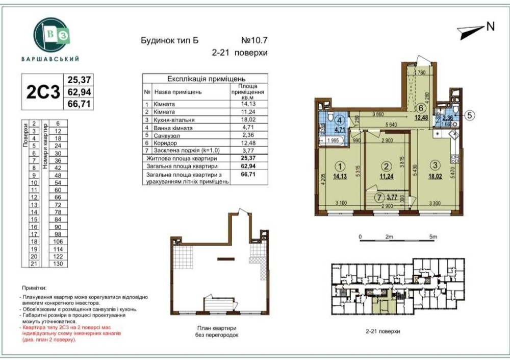
  • Загальна площа 67 м2
  • Площа кухні 18 м2
  • Поверх 12 
  • Поверховість 21 
Опис
Продам 2к квартиру ул. В.Змиенка, ЖК "Варшавский 3", дом 10.7
Сдача дома: 3 квартал 2027
Тип планировки 2С3
12 этаж
Состояние квартиры: после строителей (без отделки)
Цена: 82500$
В цену входят все расходы по оформлению.
Без комиссии.
Зворотній зв’язок
Владимир
офлайн
Схожі оголошення
ПРОДАЖА 3-квартиры по улице Костельная Кам'янське 16
  • Трикімнатна
  • 67 м2
  • 3 / 3 пов.
18 999 $
ПРОДАЖА 3-КОМНАТНОЙ КВАРТИРЫ, РАЙОН КОСТЁЛА✅️ Предлагается к продаже 3-комнатная квартира общей площадью 67 кв. м на 3 этаже 3-этажного дома по ул. Костельной (бывшая Р. Люксембург). ????О КВАРТИРЕ: · Планировка: Сделана перепланировка, комнаты изолированные. · Состояние: Требуется ремонт (оцените по фото). Но квартира очень теплая! · Ремонт: Частично заменена электропроводка, везде заменены трубы отопления на металлопластик. · Окна: Металлопластиковые. · Отопление: Центральное, установлены новые радиаторы. · Коммуникации: Установлены счетчики на воду и свет. Есть бойлер. · Покрытия: В комнатах — деревянный пол, на кухне — стяжка. С/совмещен. Установлен водонагреватель. ✅ ОСОБОЕ ПРЕИМУЩЕСТВО: В ДОМЕ НЕ ОТКЛЮЧАЮТ ЭЛЕКТРИЧЕСТВО!Это огромный плюс в настоящее время. ????О ДОМЕ И РАЙОНЕ: · Очень дружные соседи. · В пешей доступности: городской парк с зонами отдыха, детский сад, школы, супермаркет «АТБ», банк, Днепровский государственный технический университет (корпус №1), театр им. Леси Украинки, костёл, аптеки, остановки транспорта. ???? УСЛОВИЯ ПРОДАЖИ: Цена: $18 999 + $2 200 (задолженность за коммунальные услуги). Рассмотрим ваши варианты цены! Каждое предложение изучается индивидуально. Звоните, приезжайте, смотрите! ???? Наталья: 098 335 6371 Также для ваших друзей: Если у вас есть недвижимость для продажи или аренды— звоните! Работаем на ваших условиях: · Бесплатные юридические консультации. · Оформление всей документации. · Поиск потенциальных покупателей.
Кам'янське, заводской
Продажа 3-квартиры 2 мкр о-р Поликлиника Кам'янське 6
  • Трикімнатна
  • 64 м2
  • 5 / 9 пов.
40 000 $
ПРОДАЖА ОТЛИЧНОЙ 3-КВАРТИРЫ 2 МКРН о-р «ПОЛИКЛИНИКА» Продам отличную 3-х комнатную квартиру по проспекту Металлургов, Левый берег 2 мкрн, расположена на 5-м этаже 9-ти этажного дома, общей площадью 64 кв.м., не угловая, утеплена изнутри. Увеличена кухня за счёт кладовой 9.6 кв.м. Очень светла и теплая. В квартире установлено м/п окна, водонагреватель. Коммуникации: Полная замена электропроводки, труб водоснабжения и канализации. Отопление централизованное. Напольные покрытия: кафель, ламинат. Частично мебель и техника остается. Установлены металлическая входная, счетчики есть на все, что поможет вам контролировать семейный бюджет. с/у раздельный в современном кафеле, установлена душевая кабина. На балконе теплый пол. Ремонт: Сделан качественный капитальный ремонт перепланировкой. Стены и полы выровнены. Квартира ждет своих новых собственников. Дом расположен на 2-м микрорайоне с развитой инфраструктурой ОСББ с видеонаблюдением: школа 30, школа 21, гимназия 39, садики, спортивный комплекс "Русалка ", ДИТЯЧО-ЮНАЦЬКА СПОРТИВНА ШКОЛА "НАДІЯ", салоны красоты, отделение банка, «Новая почта», гипермаркет "Эпицентр", супермаркет "Варус", "АТБ", охраняемая автостоянка, все находится в шаговой доступности. Чистые ухоженные детские площадки и спортплощадки. Звоните! Приезжайте, смотрите, предлагайте свой вариант цены. Каждое предложение будет рассматриваться индивидуально. Цена 40 000 $ + комиссия АН
Кам'янське
Продаж 3кімнатної квартири.Проспект Центральний."Ліцей" Кривий Ріг 5
  • Трикімнатна
  • 56.6 м2
  • 3 / 5 пов.
17 000 $
Пропонуємо до продажу 3кімнатну квартиру розташовану у Центрально-Міському районі на головному проспекті міста Центральний, 25 (раніше вул.Лермонтова). Зупинка "Ліцей". Квартира підлягає капітальному ремонту! Про об'єкт: - загальна площа 56,6 м.кв. - житлова площа 41,7 м.кв. - стандартне планування. - двостороння. - лічильники в наявності. Локація: - зупинка громадського транспорту "Ліцей". - поряд навчальні заклади Центрально-Міський Ліцей, школа для першачків, дитячий садочок №121. - вихід до навчальних закладів на Гірничих інженерів. - поруч зі сквером. Ціна продажу 17 000 $
Кривий Ріг, Центрально-Міський
офлайн
Владимир
На сайті з 16 квітня 2020