1  / 4
Вигідна інвестиція, фасадне приміщення, Соборна - фото 1
Вигідна інвестиція, фасадне приміщення, Соборна - фото 2
Вигідна інвестиція, фасадне приміщення, Соборна - фото 3
Вигідна інвестиція, фасадне приміщення, Соборна - фото 4

Вигідна інвестиція, фасадне приміщення, Соборна

Ірпінь

Поскаржитись
75 000 $
1 559 $ за м²
0 переглядів оголошення | 0 сьогодні
Додано: 14 січня 2026, ID: 4663930
Характеристики
  • Расположение в торговом центре 
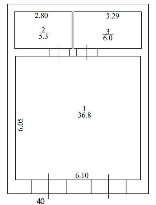
  • Общая площадь 48.1 м2
  • Этаж
  • Этажность
  • Ремонт Ні 
  • Меблірування Ні 
  • Санвузол Так 
  • Коммуникации Газ, Центральный водопровод, Электричество, Центральная канализация, Вывоз отходов, Асфальтированная дорога 
Опис
Обираєте куди інвестувати зароблені кошти?

Ліквідне комерційне приміщення - найкраще рішення для максимальної вигоди.

Повноцінний перший поверх зі стелею 4м, приміщення прямокутної форми, вже відокремлено підсобне приміщення та санвузол. Велика вхідна група, та панорамні вікна. Тут зручно буде розміститися будь-якому бізнесу. Приміщення має гарне природнє освітлення, прямий доступ з вулиці, гарну оглядовість з вул. Соборна, спеціально відведене місце для рекламної вивіски, парковку перед входом. І ключова перевага - газове опалення!

75 000$
Можливе придбання із розтермінуванням на індивідуальних умовах.

Телефонуйте і записуйтесь на перегляд вже сьогодні!
Зворотній зв’язок
Відділ ПРОДАЖУ
офлайн
Схожі оголошення
Продаж окремо розташованої будівлі, 1500 м.кв. Кривий Ріг 20
    1 200 000 $
    Ексклюзивна пропозиція! Продаж окремо розташованої, нежитлової будівлі 3 поверхи, загальною площею 1500 м.кв., з власною територією 16 сотих. Поруч відсутні об'єкти ризику. Автономне, газове опалення. Розташована в географічному центрі міста Кривий Ріг ( приблизно однакова відстань до кожного району) . Вулиця Софії Перовської 5, поруч площа Олександра Поля колишня ( артема ). Широкий спектр використання, офісно-торгівельний комплекс, готель, банк, лікарня, представництво, посольство, консульство, навчальні заклади...Гарний робочий стан, був зроблений якісний, капітальний ремонт, з заміною усіх комунікацій. Натуральні якісні матеріали. Вентиляція, кондиціонери, справжній твердопаливний камін. Зручне і продумане планування , ліфт OTIS, один центральний і два пожежних сходових маршів. Закрита територія з паркінгом для співробітників + 3 гаражі в самій будівлі, також великий гостьовий/клієнтський паркінг. Планування надам за потреби. Телефонуйте розповім детальніше. Ваш рієлтор Роман.
    Кривий Ріг, Саксаганський
    Продаж площі в ЖК "GRAND Липини"! Липини 5
      33 500 $
      Продаж площі в ЖК "GRAND Липини"! Активний пішохідний та автомобільний графік. Приміщення в оренду в новому, активному районі - зручна локація, сучасна забудова, хороший потенціал для Вашої справи! Характеристики: - вул. Європейська, 11 - площа: 23 кв.м, - відкрите планування, - новий ремонт, - сучасна система кондиціонування, - цілодобовий вхід, - вивіска на фасаді, Комунікації: - опалення тепловий насос, - відеоспостереження, - інтернет, - е/ен, - вивід на генератор. Вартість продажу - 33 500$ Менеджер об'єкту - Іванна Абрамович (050) 341 33 82
      Липини
      Продаж торгового приміщення, площа 1303 м2 Львів 4
        1 000 000 $
        Продаж торгового приміщення, площа 1303 м2, з ремонтом, стоянка, сигналізація охорона та пожежна, можна під любий вид бізнесу, 1-поверхова. Наявні усі комунікації: електроенергія до 0,5 МВт, вода, котельня на твердопаливних котлах. Висота стелі: 3,0 м Стан: відмінний Матеріал стін: цегла
        Львів, Шевченківський
        офлайн
        Відділ ПРОДАЖУ
        На сайті з 16 квітня 2020