1  / 3
Топ ціна! Продаж 2-к квартири 70м2 ЖК Варшавський 3 Виноградар - фото 1
Топ ціна! Продаж 2-к квартири 70м2 ЖК Варшавський 3 Виноградар - фото 2
Топ ціна! Продаж 2-к квартири 70м2 ЖК Варшавський 3 Виноградар - фото 3

Топ ціна! Продаж 2-к квартири 70м2 ЖК Варшавський 3 Виноградар

Київ, Подільський

Поскаржитись
94 999 $
0 переглядів оголошення | 0 сьогодні
Додано: 18 жовтня 2025, ID: 4397770
Характеристики
  • Без комісії Ні 
  • Кімнат
  • Загальна площа 70 м2
  • Площа кухні 22 м2
  • Поверх
  • Поверховість 25 
  • Ремонт Після будівельників 
  • Планування Роздільна 
  • Тип стін Газоблок 
  • Опалення Власна котельня 
Опис
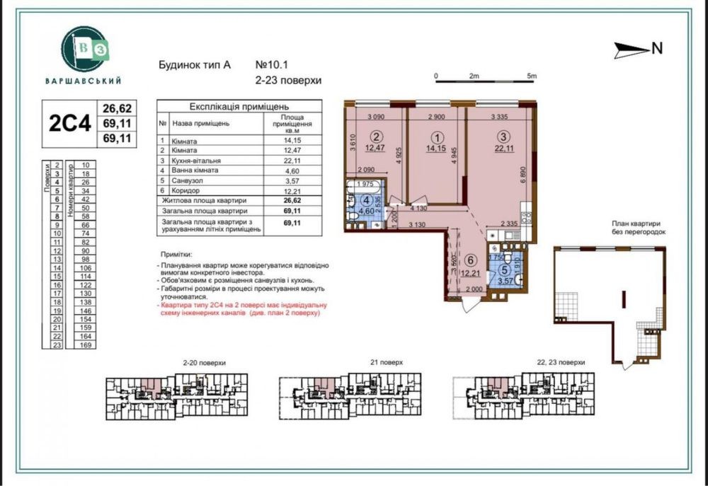
Продається 2-к квартира в житловому комплексі комфорт класу Варшавський 3 / Варшавский 3 Забудовник комплексу StolitsaGroup

Площа: 70м2
Тип планування: 2С4
Поверх: 3 / 25
Будинок: 10.1 ( будинок веденний в експлуатацію)

Поряд функціонує ТРЦ Retroville, Макдональз, є супермаркет Сільпо, Novus, піцерії, кавʼярні, нова пошта, поруч АТБ, перукарня, аптека, школа #3, дитячий садок їм. С.Русової., зручна транспортна розвʼязка.

До метро Нивки/Сирець 15 хвилин на транспорті. Будують станцію метро біля ЖК

Не втрачайте можливість стати власником цієї чудової квартири! Для отримання додаткової інформації телефонуйте за номером телефона, також підберемо вам варіанти по даному ЖК!

Поруч ЖК: Варшавський мікрорайон, Варшавський Плюс, Варшавський 2, Варшавський 3, Діброва Парк, Крістер Град, Ліпінка та ін.

Код: 30424
Зворотній зв’язок
Анна
онлайн
Схожі оголошення
Продаж 1-к квартири вул. Степана Рудницького 15 Київ 4
  • Однокімнатна
  • 30 м2
  • 1 / 10 пов.
53 000 $
Продаж 1-к квартири вул. Степана Рудницького 15. Квартира-студія. Перший поверх, високий цоколь. Поряд багато магазинів, озеро, парк, школи, садочки. Метро 7хв пішки. Квартира світла, простора. Продається з меблями. Зараз там живуть орендарі. Можна жити самому, або під здачу. 044 200 10 80
Київ, Голосіївський
Позняки, Драгоманова 40е, 3-х кімнатна квартира Позняки Київ 7
  • Трикімнатна
  • 105.5 м2
  • 24 / 25 пов.
140 000 $
Київ, метро Позняки, Драгоманова 40е, 3-х кімнатна квартира. Драгоманова 40е, 24-й поверх, простора видова квартира 3-х кімнатна, з сучасним якісним ремонтом. Загальна площа 105.5, житлова 54.4. Комора, гардероб. Повністю укомплектована меблями. Вбудована кухня з необхідною побутовою технікою, натуральна столярка, німецький дубовий паркет, кахель з підігрівом, встановлені фільтри на воду, бойлери на кухні та в коморі, інверторні кондиціонери, нові ТV, велика лоджія з підігрівом, чудовий краєвид на місто. "Добробут", супермаркети, два ліцеї, "Спортлайф", поряд парк із озером та зоною відпочинку, до М "Позняки" - 10 хвилин пішки. Все лишається у квартирі. 044 200 10 80
Київ, Дарницький
Продаж 2-х кімнатної квартири по вул.Лятошинського, 8 Київ 8
  • Двокімнатна
  • 54 м2
  • 16 / 16 пов.
59 000 $
2-х кімнатна квартира на Теремках-2, навпроти ТРЦ Республіка, Епіцентр, Метро. Зроблений ремонт (повністю зроблена заміна електрики, стоять лічильники та безперебійники). На кухні, ванній, в туалеті та коридорі - нова плитка. В кімнатах новий леноліум. Квартира оздоблена в світлих тонах. Є 2 лоджії. Є парковка біля дому безкоштовна. Ремонт зроблений до кінця, тільки змінити двері. Є лічильники на воду. Поряд магазин Веллмарт, АТБ, аптеки та ресторан. Через 1 зупинку ринок Столичний. Поряд 3 дитсадочки та 3 школи. Тихе місце для життя. т.044 200 10 80
Київ, Голосіївський
онлайн
Анна
На сайті з 16 квітня 2020