1  / 2
Таунхаус біля Дніпра, від забудовника - фото 1
Таунхаус біля Дніпра, від забудовника - фото 2

Таунхаус біля Дніпра, від забудовника

Черкаси

Поскаржитись
76 000 $
0 переглядів оголошення | 0 сьогодні
Додано: 26 жовтня 2025, ID: 4429534
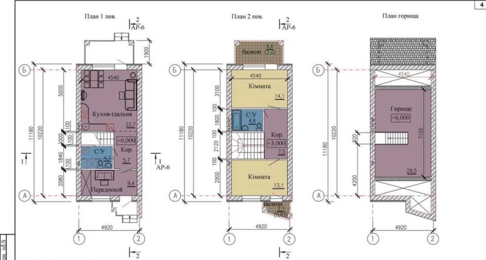
Характеристики
  • Без комісії Так 
  • Тип будинку Таунхаус 
  • Кімнат
  • Загальна площа 95 м2
  • Поверховість
  • Площа ділянки 0.5 сот.
  • Ремонт Під чистове оздоблення 
  • Комфорт Балкон, Тераса 
  • Коммуникации Газ, Центральный водопровод, Электричество, Центральная канализация, Асфальтированная дорога 
Опис
Пропонуємо стильний та комфортний таунхаус площею 95 м² у престижному та зеленому районі Дахнівка — ідеальне місце для життя поруч з природою та містом!
Планування:
1 поверх: простора кухня-їдальня — ідеальна для затишних вечорів з родиною або друзями.
2 поверх: 2 окремі житлові кімнати — для спокою, сну та приватності. З кожної кімнати вихід на балкон.
Третій поверх при бажанні також можна використати як житлову площу.
Санвузли на обох поверхах — максимальний комфорт для всієї родини.
Газове опалення — зручно, економно та тепло у будь-яку пору року.
Локація:
Екологічно чистий район Дахнівка.
Поруч річка Дніпро, піщані пляжі та ліс — ідеально для ранкових пробіжок, прогулянок з дітьми чи відпочинку на природі.
Ідеально підійде для молодої сім’ї та людей, які хочуть жити поряд із містом, але в гармонії з природою.
Вигідна ціна - 800$ за м2
Телефонуйте вже зараз, щоб домовитись про перегляд!
Покупець комісію не сплачує.
Зворотній зв’язок
Олександр
офлайн
Схожі оголошення
Продається затишний будинок в с. Макіївка Білоцерківського району Біла Церква 12
  • Чотирикімнатна
  • 100 м2
  • 60 соток
41 000 $
Продається затишний будинок в с. Макіївка Білоцерківського району Київської обл. в 50км. від Білої Церкви та 50 кв. Від Києва. Будинок цегляний 1990р. побудови. У будинку 5 кімнати, кухня, веранда, Можливість переобладнати другий повех під житло. Опалення газове, + твердотоплевний котел. Заведені всі комунікації ( світло, газ. вода. каналізація), встановлено металопластикові вікна. будинок в косметичному ремонті. На ділянці біля будинку літня кухня (з газом), криниця, сарай і господарські споруди, гараж, доглянутий молодий фруктовий сад. Велика рівна земельна ділянка (60сотки). Сполучення з містом відмінне, автобусна зупинка знаходиться в шаговій доступності. В селі розвинена інфраструктура - школа, дитячий сад, пошта, магазини, клуб, + Ставок для риболовлі, ліс. Остаточна ціна буде обговорюється з реальним покупцем! Цікава пропозиція Телефонуйте прямо зараз. Офіційно зареєстроване підприємство з постійною адресою, кваліфікованим персоналом та досвідом роботи, надає повний перелік послуг з питань, пов'язаних з нерухомістю. Безкоштовно приймаємо заявки від продавців і орендодавців. Гарантуємо об'єктивну оцінку, якісну рекламну компанію і юридичну підтримку. Юридичний супровід угод до моменту вручення правовстановлюючих документів, перевірка нерухомості на наявність арештів, обтяжень, и.т.п.
Біла Церква, с. Макіївка
Продається частина будинку на 2 входи в центрі міста Біла Церква 9
  • Чотирикімнатна
  • 72 м2
  • 0.5 соток
11 500 $
Продається частина будинку на 2 входи в центрі міста Біла Церква провулок Гоголя. , будинок під ремонт, загальою площею 72. м. (1- 44,7 кв. м., 2 – 28,2. м. ) Поруч знаходиться дитячі садки, школа, супермаркет, Базар, банки, зупинка міських і київських маршруток, різні розважальні центри. Остаточна ціна буде обговорюватися з реальним покупцем . Запрошуємо до співпраці власників нерухомості. Допоможемо продати чи здати Ваш ' нерухомості максимально швидко та по вигідній ринковій ціні! Надаємо безкоштовну юридичну консультацію власникам нерухомості та клієнтам. Звернувшись в Агенцію Нерухомості клієнт гарантовано отримає повний спектр послуг. Телефонуйте, є багато інших варіантів, чекаємо на зустріч !
Біла Церква, Центр
Продається окремо стоячий будинкок по вул. Олени Теліги Біла Церква 3
  • Чотирикімнатна
  • 69 м2
  • 5 соток
45 000 $ Торг
Продається окремо стоячий будинкок по вул. Олени Теліги ( Залізничне селище)! В 5 хв від ЖД Вокзалу Будинок цегляний 1970 року побудови . в жилитловому стані , загальною площею 68.3 кв. м. – 4 кімнати , кухня , ванна , всі комунікаціїї Будинок повністю утеплений Земельна ділянка 4.5 соток Господарські приміщення, фруктові дерева. Прекрасне місце для життя! Поруч в пішої доступності школа, садок, АТБ , зупинка громадського транспорту. Телефонуте цікава пропозиція! Остаточна ціна буде обговорюватися з реальним покупцем. Офіційно зареєстроване підприємство з постійною адресою, кваліфікованим персоналом та досвідом роботи, надає повний перелік послуг з питань, пов'язаних з нерухомістю. Безкоштовно приймаємо заявки від продавців і орендодавців. Гарантуємо об'єктивну оцінку, якісну рекламну компанію і юридичну підтримку. Юридичний супровід угод до моменту вручення правовстановлюючих документів, перевірка нерухомості на наявність арештів, обтяжень, и.т.п. З повагою агенство нерухомоcті "ЄвроДім"
Біла Церква, Залізнине селище
офлайн
Олександр
На сайті з 16 квітня 2020