1  / 5
Таун в закритому котеджному містечку по гарячій ціні ‼️ - фото 1
Таун в закритому котеджному містечку по гарячій ціні ‼️ - фото 2
Таун в закритому котеджному містечку по гарячій ціні ‼️ - фото 3
Таун в закритому котеджному містечку по гарячій ціні ‼️ - фото 4
Таун в закритому котеджному містечку по гарячій ціні ‼️ - фото 5

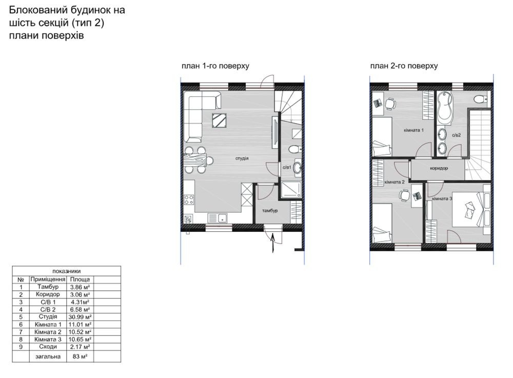
Таун в закритому котеджному містечку по гарячій ціні ‼️

Петропавлівська Борщагівка

Поскаржитись
83 000 $
1 000 $ за м²
0 переглядів оголошення | 0 сьогодні
Додано: 9 жовтня 2025, ID: 4362320
Характеристики
  • Без комісії Так 
  • Тип будинку Таунхаус 
  • Комнат
  • Общая площадь 83 м2
  • Этажность
  • Площадь участка 1 сот.
Опис
Таунхаус в закритому котеджному містечку під охороною , класна локація - ліцей в пішій доступності .
Тиха не проіздна , асфальтована вулиця

83 м2 - своя парковка на 2 авто , свій дворик

Комунікації :
-центральне водопостачання
-центральна каналізація
-газ
-електрика

Для деталей - телефонуйте
Зворотній зв’язок
Анастасія . Відділ продажу забудовника
офлайн
Схожі оголошення
Продаж нового будинку. Ластівка. Вулиця Паровозна. Кривий Ріг 20
    215 000 $
    Ластівка. Вулиця Паровозна. Широка асфальтована вулиця. Поруч уся інфраструктура. Продаж нового будинку. 2024 рік побудови. Будівництво з котлована ( не реконструкція ). Сучасний , комфортний , якісний , енергоефективний , енергонезалежний простір для вашого життя. Три види опалення ( газ, електрика, твердопаливний ). Є інвертор + батарея. Будинок утеплений. Усе зроблено якісно і дорого. Стильний і спільний дизайн як у дворі так і в будинку. Усі меблі на замовлення. Техніка преміум виробників. Чудове планування, 110 квадратних метрів + 23 квадратних метрів тераса. 3 окремі великі спальні, велика кухня-вітальня, коридор, великий санвузол, гардеробні. Велика тераса. Навіс на два авто. Автоматичні ворота. Технічне приміщення. Вуличний душ/туалет. 5 сотих приватизованої землі. Документи готові. Без боргів і проблем. Телефонуйте розповім детальніше. Ваш рієлтор Роман.
    Кривий Ріг, Довгинцівський
    Продам будинок Стиль фьюжн Меблі Техніка Ландшафтний дизайн Перемога-6 Дніпро 20
      310 000 $
      Продам будинок на березі р. Дніпро, в межах міста (р-н ж/м Перемога- 6, яхт-клуб). Будинок збудований у романтичному стилі фьюжн, на ділянці з чудовим ландшафтним дизайном, з рідкісними рослинами, ділянка 18 с. приватизована. Будинок повністю облаштований якісними меблями та технікою відомих європейських брендів. Всі меблі, техніка, предмети інтер'єру залишаються. Будинок спланований для комфортного проживання та затишку. Велика вітальня складається і обідньої, камінної та вхідної групи. Із вітальні є два виходи на вуличну терасу. На території також є басейн з розсувною алюмінієвою системою закривання, літня альтанка, сауна, що окремо стоїть, критий навіс на три авто, господарські споруди. 2 види опалення : електричне і газове. Електрика 380V, Газ, інтернет
      Дніпро, Соборний
      Продаж будинку. Центр міста. Вулиця Хібінська. 60 школа. Кривий Ріг 18
        57 000 $
        Центр міста. Вулиця Хібінська, перехрестя з вулицею Українська. Напроти 60 школа. Продаж 2-х поверхового будинку. Цегляний будинок. Оздобленний сайдингом. Центральна каналізація. Двухконтурний газовий котел. 2 кондиціонери. 3 кімнати, гардеробна, кухня, санвузол, коридор. ( планування додам до фото ). Металопластикові вікна і труби. Стан жилий, можлива косметика під себе. Лічильники на все. 6.5 сотих приватизованої землі. Капітальний гараж. Велика кладова. Гарні сусіди. Документи готові. Без боргів і проблем. Історичний, культурний і Гастрономічний центр міста Кривий Ріг. Поруч парк, річка, громадський транспорт, школи, дитячі садочки, кафе, ресторани, магазини... Телефонуйте розповім детальніше. Ваш рієлтор Роман.
        Кривий Ріг, Центрально-Міський
        офлайн
        Анастасія . Відділ продажу забудовника
        На сайті з 16 квітня 2020