1  / 4
Сучасна 1-кімнатна квартира в ЖК “Гранд Бурже” - 40 м² комфорту у Бучі - фото 1
Сучасна 1-кімнатна квартира в ЖК “Гранд Бурже” - 40 м² комфорту у Бучі - фото 2
Сучасна 1-кімнатна квартира в ЖК “Гранд Бурже” - 40 м² комфорту у Бучі - фото 3
Сучасна 1-кімнатна квартира в ЖК “Гранд Бурже” - 40 м² комфорту у Бучі - фото 4

Сучасна 1-кімнатна квартира в ЖК “Гранд Бурже” - 40 м² комфорту у Бучі

Буча

Поскаржитись
45 990 $
0 переглядів оголошення | 0 сьогодні
Додано: 4 грудня 2025, ID: 4535887
Характеристики
  • Без комісії Ні 
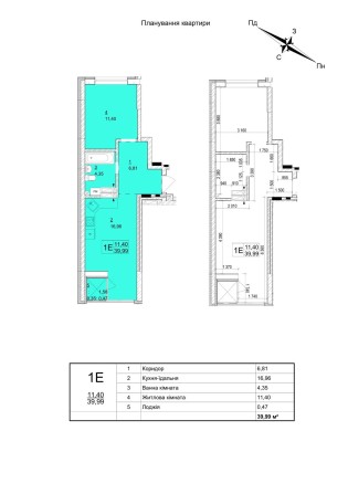
  • Кімнат
  • Загальна площа 40 м2
  • Площа кухні 17 м2
  • Поверх
  • Поверховість 16 
  • Планування Роздільна 
  • Тип стін Монолітний 
  • Комфорт Лифт 
Опис
Пропонується затишна 1-кімнатна квартира площею 40 м² у сучасному ЖК бізнес-класу “Гранд Бурже”.

Ідеальне рішення для тих, хто цінує простір, комфорт і сучасну інфраструктуру.

Про квартиру:
• Поверх: 4 із 16
• Кухня 17 м² - простір для кулінарних шедеврів та затишних сімейних вечерь
• Спальня 11.4 м² - затишна та світла
• Планування роздільне, що дозволяє зручно організувати простір
• Максимальне оздоблення від забудовника:
• гіпсова штукатурка стін
• тепла підлога
• лазерна стяжка підлоги
• розведена електрика
• встановлені радіатори
• Власна котельня - автономне опалення для комфорту в будь-яку пору року

Переваги комплексу:
• ЖК закритого типу з відеонаглядом та охороною
• Безліч зон відпочинку для дорослих та дітей
• Поруч - ТРЦ “Авенір Плаза”, басейн, кінотеатр
• У пішій доступності - гімназія, дитячий садок, зупинки громадського транспорту

Телефонуйте, щоб домовитися про перегляд!

Ця квартира - ваш перший крок до комфортного та сучасного життя в Бучі.
Зворотній зв’язок
Катерина
офлайн
Схожі оголошення
Продам 3-х.ком.кв. с дизайнерским ремонтом пр. Науки95 А. Дніпро 13
  • Трикімнатна
  • 110 м2
  • 3 / 14 пов.
165 000 $
Продам 3-комнатную квартиру на пр.Науки 95 А. район «ТРЦ NEO PLAZA» Общая площадь 110 м2,высота потолков 3 м.,расположена на 3 этаже (13). Качественный, авторский ремонт, дизайн проект. Своя котельная. Теплые полы,кухня,с/у,ванная. Много места для хранения вещей. Комплектация дорогой мебелью и техникой Siemens. Вся мебель, двери и сантехника Итальянская. Множество сценариев освещения, медная электро проводка. Есть своё парко место под навесом, двор закрыт,видео наблюдение,охрана. Рядом супермаркеты,парк,транспорт.
Дніпро, Шевченківський, Нагорный
1-к квартира Бучанський, Ірпінь, 50000 $ Ірпінь 9
  • Однокімнатна
  • 31 м2
  • 2 / 5 пов.
50 000 $
Квартира на середньому поверсі ! З ремонтом і ключами заходь і живи вже завтра. Не хочете чекати новобудову? Ця квартира вже повністю готова: з ремонтом, меблями та технікою просто занось валізи! Підходить під готівку або інвестування під оренду. Площа 31 кв.м, формат 1+ (кухня-вітальня + спальня). Повністю укомплектована: Whirlpool, Samsung, Indesit, тепла підлога, плитка по всій квартирі. Балкон із видом, фактично 2-й поверх (під квартирою комерція). Локація ЖК Молодість, Ірпінь: закрита територія, поруч ліс, набережна, транспорт до Києва 10 хвилин. Ідеально під здачу в оренду або комфортне проживання без зайвих витрат на ремонт. Уже кілька сімей переглянули схожі варіанти ця залишилася єдина з повним ремонтом. Ціна актуальна лише до найближчого зростання. Після вартість зросте. Телефонуйте поїдемо переглядати цю гарну студійну в Ірпені.
Ірпінь
Продаам 2х.комн.квартиру 4 мкрн Кам'янське 8
  • Двокімнатна
  • 53 м2
  • 8 / 10 пов.
27 444 $
Предлагаем вашему вниманию 2 комн.квартиру с ремонтом, Левый берег пр.Металлургов 4 мкрн. расположенную на 8-м этаже десятиэтажного дома, общей площадью 54 кв.м. Комнаты раздельные, не угловая. Металлопластиковые окна, новые межкомнатные двери, пол линолеум. Большим преимуществом квартиры является большая и просторная лоджия на 2 комнаты, которая утеплена и застеклена. Счетчики есть на все, что поможет контролировать ваш семейный бюджет. С/ у раздельный в кафеле, заменены трубы водопровода. Установлен водонагреватель. Отопление централизованное. Новому хозяину остается встроенная кухня, стиральная машина, водонагреватель, мягкая мебель. Долгов по квартире нет! Квартира достойна вашего внимания. Рядом с домом (супермаркет, ресторан, автостоянка, садик, остановка транспорта в шаговой доступности школа, рынок). 4 микрорайон, можно описать как спальный, через дорогу лесополоса, за ней канал. Чистый воздух, прекрасные места для отдыха. Звоните! Приезжайте, смотрите, предлагайте свой вариант цены. Каждое предложение будет рассматриваться индивидуально. Записывайтесь на просмотр прямо сейчас!!! Цена 27 500$ + %АН тел. 098 335 63 71 Наталья
Кам'янське, 4 мкрн
офлайн
Катерина
На сайті з 16 квітня 2020