1  / 5
Продаж видової 2к квартири 63м2 в ЖК Seven Севен Осокорки Славутич - фото 1
Продаж видової 2к квартири 63м2 в ЖК Seven Севен Осокорки Славутич - фото 2
Продаж видової 2к квартири 63м2 в ЖК Seven Севен Осокорки Славутич - фото 3
Продаж видової 2к квартири 63м2 в ЖК Seven Севен Осокорки Славутич - фото 4
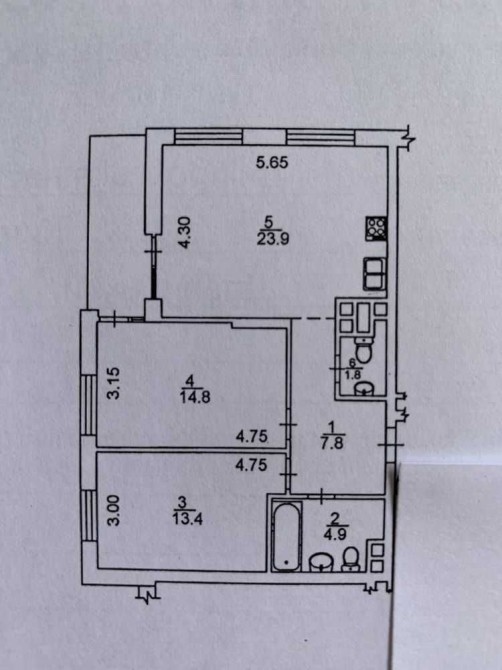
Продаж видової 2к квартири 63м2 в ЖК Seven Севен Осокорки Славутич - фото 5

Продаж видової 2к квартири 63м2 в ЖК Seven Севен Осокорки Славутич

Київ, Дарницький

Поскаржитись
134 900 $
0 переглядів оголошення | 0 сьогодні
Додано: 3 лютого 2026, ID: 4723011
Характеристики
  • Без комісії Ні 
  • Кімнат
  • Загальна площа 69 м2
  • Площа кухні 27 м2
  • Поверх 19 
  • Поверховість 26 
  • Ремонт Після будівельників 
  • Планування Роздільна 
  • Тип стін Шлакоблоковий 
  • Опалення Централізоване 
  • Комфорт Кондиционер, Подогрев полов, Пожарная сигнализация, Видеонаблюдение, Консъерж, Охраняемая территория, Парковочное место, Гостевой паркинг, Лифт, Грузовой лифт, Автономный электрогенератор 
  • Коммуникации Центральный водопровод, Скважина, Электричество, Центральная канализация, Канализация септик, Вывоз отходов, Асфальтированная дорога 
Опис
Продається чудова 2-кімнатна квартира комфорт-класу у новому ЖК "Севен" Seven, що знаходиться на вулиці Дніпровська Набережна, в сучасній частині Києва, прямо на березі Дніпра.

Квартира розташована на 19/25 поверсі та має загальну площу 69м2. У будинку є генератор, що завжди працюють ліфти при відключеннях. Квартира без ремонту після будівельників. Прекрасний панорамний вид на Дніпро, Печерську Лавру, Правий берег.

Розташування ЖК "Севен" також дуже зручне для транспорту. До станції метро "Осокорки" всього 3 хвилини пішки, що дає вам швидкий доступ до центру міста та інших районів Києва.

Телефонуйте !

Поруч розташовані ЖК Seven, Славутич, Зарічний, Русанівська Гавань, River Stone.
Зворотній зв’язок
Владислав
офлайн
Схожі оголошення
Продам 3хком Прохоровская Одеса 5
  • Трикімнатна
  • 99 м2
  • 5 / 18 пов.
95 000 $
ЖК Прохоровский квартал от СК СТИКОН Новострой, Центр, Сданный дом 5 этаж 3 комнатная в продаже 99.3 м² От строителей. цена 95000уе тел 0933464401
Одеса, Приморський
3-к квартира Дніпро, Центральний, 73000 $ Дніпро 13
  • Трикімнатна
  • 70 м2
  • 8 / 12 пов.
73 000 $
Продам 3к квартиру 70 м2 в ЖК Женева вул. Короленка, 22А, секція 6. Квартира в новобудові, після будівельників. Планується в кухню студію та 2 окремі кімнати з гардеробом. Автономне газове опалення. Вид на р. Дніпро.
Дніпро
2-к квартира Дніпро, Центральний, 34000 $ Дніпро 14
  • Двокімнатна
  • 36 м2
  • 9 / 9 пов.
34 000 $
Продам 2к квартиру по вул. Володимира Антоновича ( Свердлова), 10Б Площа квартири 36 м2, спланована в кухню-студію + окрема кімната. Поверх 9/9. Квартира з ремонтом, санвузол суміщений, ванна, пральна машина, бойлер,електрична плита. Опалення електричне. Меблі та техніка включені у вартість. В квартирі ніхто не прописаний. Право власності більше 3 років. Реальним покупцям Торг! Можна під здачу в оренду.
Дніпро
офлайн
Владислав
На сайті з 16 квітня 2020