1  / 1
Продаж квартири ЖК Elite Park! - фото 1

Продаж квартири ЖК Elite Park!

Сторожниця

Поскаржитись
37 250 $
1 перегляд оголошення | 0 сьогодні Показати статистику
Додано: 4 січня 2026, ID: 4629530
Характеристики
  • Без комісії Ні 
  • Кімнат
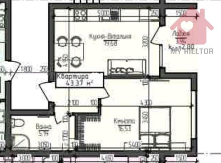
  • Загальна площа 43 м2
  • Площа кухні 19 м2
  • Поверх
  • Поверховість
Опис
Знову у продажі ❗❗❗



Розпочався старт продажу ЖК «Еліт парк 2». Ціни вражають❗

Адреса місця знаходження: с. Сторожниця



Площа квартири 43,31 м2 на 3-му поверсі 3-х поверхової будівлі.



Початок будівництва: січень-лютий 2026 року.

Черги будівництва:

1 черга - 18 місяців(літо 2027 року),

2 черга - 24 місяці (кінець 2027 року).



Наразі ви можете забронювати квартири за 1 тис. дол. США, до моменту укладення договорів.



Оформлення договорів розпочнеться в березені - квітні 2026 року, у момент укладання договору перший платіж від 30% від загальної вартості обєкту нерухомості. Решта суми розтерміновується до кінця будівництва, по кожній із черг.



Наявні квартири:

1 кім (34 кв.м. - 49 кв.м.)

2 кім (49 кв.м. - 67 кв.м.)

2 кімнати + кухня-студія



Вартість 1 м.кв.

- 1 поверх 830$;

- 2 поверх 890$;

- 3 поверх 860$;



Комплектування квартири:

- тепла підлога (водяний контур) по всій квартирі;

- штукатурка несучих стін;

- чистова стяжка;

- виведено випуски без сантехнічних приладів;

- Металопластикові, 5ти камерний профіль VEKA

- вхідні двері металеві з мдф накладками

- електронергії 11 квт., опалення електричне, котел не встановлюємо.



Затишна та тиха локація у передмісті Ужгороду! Центр міста 10хв на авто!



Незволікайте поки є ще варіанти і обирайте ту саму квартиру!
Зворотній зв’язок
Власта
офлайн
Схожі оголошення
Продаж 2-кімнатної квартири. м. Львів, вул. Талліннська, 14 (Левандівка) Львів 10
  • Двокімнатна
  • 42.9 м2
  • 2 / 2 пов.
45 000 $
Продаж 2-кімнатної квартири. м. Львів, вул. Талліннська, 14 (Левандівка) Пропонується комфортна 2-кімнатна квартира на 2-му поверсі малоквартирного будинку, ідеальна для життя або інвестиції під оренду. Основні характеристики: ▪ Загальна площа — 42,9 м² ▪ Житлова площа — 23 м² ▪ Кімната 1 — 15,3 м² ▪ Кімната 2 — 7,7 м² ▪ Санвузол — 3,3 м² ▪ Балкон — 0,6 м² ▪ Кухня-студія — 16 м² ▪ Висота стель — 2,35 м Технічне оснащення: ✔ Опалення — газовий конвектор ✔ Підігрів води — бойлер ✔ Світла, затишна квартира Переваги: ✅ Малоквартирний будинок — менше сусідів, комфорт і тиша ✅ Функціональне планування, кухня-студія ✅ Ідеально для молодої сім’ї або для здачі в оренду ???? Вартість: 45 000 $
Львів, Залізничний
Продаж 2-кімнатної дворівневої квартири у самому центрі міста — елітний район. Львів, вул. Огієнка, Львів 20
  • Двокімнатна
  • 68.4 м2
  • 1 / 2 пов.
125 000 $
Продаж 2-кімнатної дворівневої квартири у самому центрі міста — елітний район. Львів, вул. Огієнка, 11 Продається простора дворівнева квартира з окремим входом, розташована у добудові всередині австрійського будинку (2009 рік). Поєднання історичної архітектури та сучасного, якісного житла — рідкісний і дуже затребуваний формат у центрі міста. Квартира знаходиться в престижному та елітному районі Львова, де завжди стабільний попит на оренду та комфортне проживання. Загальна площа — 69,4 м² Житлова — 28,5 м² Кухня — 19,1 м² Висота стель — 2,86 м Планування: 1 рівень: ▪ коридор — 6,4 м² ▪ санвузол (ванна + туалет) — 4,5 м² ▪ простора кухня — 19,1 м² (меблі, газова плита, холодильник, телевізор, котел) 2 рівень: ▪ кімната — 18,2 м² ▪ кімната — 10,3 м² ▪ санвузол — 2,3 м² ▪ коридори — 7,2 м² Переваги квартири: ✔ добудова 2009 року в середині австрійського будинку ✔ окремий вхід ✔ індивідуальне газове опалення (двоконтурний котел Vaillant) ✔ цегляний будинок ✔ квартира повністю укомплектована меблями та технікою ✔ можна одразу заїжджати без додаткових витрат Локація: ✔ самий центр міста ✔ елітний, престижний район ✔ усе необхідне — у пішій доступності ✔ ідеальна локація як для життя, так і для орендного бізнесу ???? Вартість: 125 000 $
Львів, Галицький
Продається 1-кімнатна квартира в новобудові. Адреса: вул. Героїв Крут, 5 Львів 11
  • Однокімнатна
  • 42.05 м2
  • 6 / 7 пов.
63 000 $
Продається 1-кімнатна квартира в новобудові. Адреса: вул. Героїв Крут, 5 Характеристики: - Загальна площа: 42.05 кв.м -Житлова: 13.75кв.м - Кухня: 17,18 кв.м - Балкон: 3,9 кв.м - Гардероб: 3,38 кв.м - Коридор: 3.59 кв.м - Санвузол: 4.25 кв.м Переваги: - Зроблена стяжка, тепла підлога - Індивідуальне газове опалення - Проведені всі комунікації (світло, вода, газ) Будинок здається 1кв. 2026р. Продається по переуступці. ❗Вже йде оформлення права власності, починають робити ремонти❗ Ця квартира ідеальна для тих, хто цінує комфорт та сучасні умови проживання! Ціна: 63000$ Телефон: (066) 387-50-54
Львів, Сихівський
офлайн
Власта
На сайті з 16 квітня 2020