1  / 2
Продаж квартири з терасою 65,49м² - фото 1
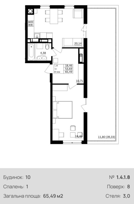
Продаж квартири з терасою 65,49м² - фото 2

Продаж квартири з терасою 65,49м²

Обухів

Поскаржитись
62 216 $
0 переглядів оголошення | 0 сьогодні
Додано: 14 лютого 2026, ID: 4753780
Характеристики
  • Без комісії Так 
  • Кімнат
  • Загальна площа 65.49 м2
  • Площа кухні 20.14 м2
  • Поверх
  • Поверховість 10 
  • Ремонт Після будівельників 
  • Планування Роздільна 
  • Тип стін Газоблок 
  • Комфорт Терраса, Панорамные окна 
  • Коммуникации Газ, Центральный водопровод, Электричество, Центральная канализация, Вывоз отходов, Асфальтированная дорога 
Опис
Продаж великої однокімнатної квартири з терасою від забудовника. ЖК Обухівський ключ. 10 черга будівництва. Введення в експлуатацію 2 квартал 2026 року.

Загальна площа квартири 65,49м². Кухня 20,14 м². Стеля 3м. Індивідуальне опалення - двухконтурний газовий котел. Квартира велика, дуже вдале планування. Шикарна видова тераса!

Останні квартири від забудовника в 10 черзі!
Телефонуйте або пишіть. Запис на перегляд за номером в оголошенні.
Зворотній зв’язок
Олена
офлайн
Схожі оголошення
Продається затишна 2-кімнатна квартира на Привокзальній площі по вул. Захисників Миколаєва Миколаїв 10
  • Двокімнатна
  • 42 м2
  • 2 / 5 пов.
28 000 $
Продається двокімнатна квартира з хорошим ремонтом в гарному житловому стані - можна заїхати та жити без додаткових вкладень. Квартира розташована на найзручнішому 2 поверсі пятиповерхівки. Будинок надійний та міцний з товстими стінами, побудований з цегли, всі вікна виходять у двір, на вікнах встановлені трикамерні склопакети. Замінені всі лічильники, а також встановлене реле напруги для захисту побутової техніки. Планування: одна кімната прохідна і одна окрема, санвузол суміжний є засклений балкон, є комора – додаткове місце для зберігання. Чудова локація: поруч ринок та залізничний вокзал — зручна транспортна розв’язка та вся необхідна інфраструктура в пішій доступності. Меблі можна залишити за домовленістю. Ціна договірна, можливий торг. Продаж по сертифікату не розглядається. Телефонуйте та приходьте на перегляд !!!
Миколаїв, Заводский
Продаж 3-к квартири Оболонь, просп. Володимира Івасюка, 9 Київ 20
  • Трикімнатна
  • 61 м2
  • 8 / 9 пов.
117 000 $
Продається 3-кімнатна квартира на Оболоні, проспект Володимира Івасюка, 9 (поруч з парком «Наталка»). Квартира двостороння, світла та дуже тепла. У 2022 році виконано якісний сучасний ремонт із використанням надійних матеріалів. Замінено стояки, труби, батареї опалення, повністю замінена електропроводка. У квартирі встановлено систему резервного електроживлення — при відключенні світла працюють освітлення та розетки. Також є реле напруги, яке автоматично відключає квартиру при стрибках напруги та захищає побутову техніку. Встановлений двозонний лічильник електроенергії (день/ніч). Оснащення квартири: два інверторні кондиціонери LG; бойлер Bosch на 80 л; натяжні стелі по всій квартирі; точкове освітлення; двоконтурне регульоване підсвічування в кімнатах. Додатково: зроблено ремонт у тамбурі; встановлена містка шафа, яка належить саме цій квартирі; охайний під’їзд, приємні сусіди. Локація та інфраструктура: Будинок розташований у престижному та зеленому районі Оболоні, поруч з парком «Наталка» та набережною Дніпра — ідеальне місце для прогулянок, спорту та відпочинку. У пішій доступності супермаркети, школи, дитячі садки, аптеки, кафе, спортклуби та вся необхідна інфраструктура для комфортного життя. Транспортна розв’язка: Зручне транспортне сполучення: поруч зупинки громадського транспорту, швидкий виїзд на Оболонський проспект. До станцій метро «Оболонь» та «Мінська» — близько 7–10 хвилин пішки. Швидке сполучення з центром міста та іншими районами Києва. Ціна:117000 у.о. 0937119421 Катерина.
Київ, Оболонський
Продаж 1-кімнатної квартири по вул. Липківського (Урицького), 38 ЖК Time Київ 5
  • Однокімнатна
  • 38 м2
  • 5 / 16 пов.
141 000 $
Продається 1к квартира з ремонтом у новому ЖК Тайм. Квартира розміщена на південному заході, вікна у двір. Загальна площа документів 37,9 м2, житлова 15,7 м2, робили розширення з допомогою балкона до 39 м2. Простора зона кухні поєднана з вітальнею та домашнім кінотеатром. Ванна кімната з душовою кабіною та вбудованим санвузлом. Сучасний РК з 2-х рівневим паркінгом. У дворі закритий дитячий та спортивні майданчики з ландшафтним дизайном. У пішій доступності Солом'янська площа. м Вокзальний центр міста, торгові центри, кінотеатри, супермаркети, банки. т.044 200 10 80
Київ, Солом'янський